安庆E网

搜索
查看: 3152|回复: 3

[装修公司] 【一号家居网】为您解析华茂1958三房111平装修价格

[复制链接]

11

收听

6

听众

2246

帖子

认证商家

注册时间
2008-6-9
精华
0
QQ
发表于 2015-7-9 15:03:58 | 显示全部楼层 |阅读模式
本帖最后由 安庆面对面装饰 于 2015-7-30 10:08 编辑
        华茂1958,位于安庆城市商业中心区与三湖城市景观区交集,控地256亩,总建筑面积逾60万方,是目前安庆市区建筑体量最大、业态类型最丰富、城市功能最完整的城中之城。 今天带大家看一下 ,什么样的价格能让你给自己装出一个满意的家。

             【案例信息】

              风格: 现代简约

              户型: 三房二厅一卫

              面积: 111平米

              造价: 7万

              套餐: 全包

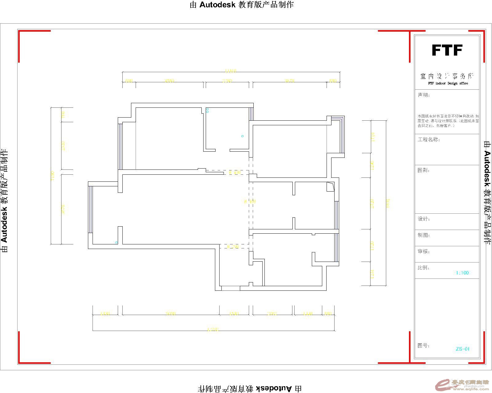
             【户型图】↓↓↓↓↓↓

                                                                                     114035609.jpg

【效果图展示】{:soso_e102:}{:soso_e102:}{:soso_e102:}
                                                                     114328520.jpg
把户内花园与客厅直接连接起来,因为外面是个很漂亮的景观区,这样客厅看的更加大气哦!
                                                                     114530315.jpg

餐厅旁边设计成了一个弹性空间,这样很有灵活性。
          对于不少人来说,现在事业的压力、繁琐的应酬让他们更加需要简单舒适的环境让自己的身心得无比的放松。这是位于安庆市华茂1958的110平的户型,它采用的是不拘小  节,没有束缚感的现代简约式风格,装修过程没有繁琐的工艺设计,完全通过材质的质感结合室内自然光线的完美结合,整体价格7万元,真正做到了环保自然的设计理念。

     本公司以诚信为本,主要为老百姓提供室内标准设计、标准施工工艺、主材低价配送、软装搭配、家电家具自主选购的一条龙服务,面对面装饰给大家提供的不仅仅是设计和施工,更多得是为消费者打造一种舒适的生活态度……
1.jpg


回复

使用道具 举报

头像被屏蔽

2

收听

2

听众

458

帖子

禁止访问

注册时间
2015-1-26
精华
0
发表于 2015-7-9 22:17:26 | 显示全部楼层
提示: 作者被禁止或删除 内容自动屏蔽
回复 支持 反对

使用道具 举报

0

收听

1

听众

151

帖子

E粉新星

注册时间
2012-8-28
精华
0
发表于 2015-7-10 14:44:17 | 显示全部楼层
本帖最后由 wxg789 于 2015-7-11 13:58 编辑

你们面对面还有脸发帖子??骗子公司骗子公司骗子公司!!
回复 支持 反对

使用道具 举报

11

收听

6

听众

2246

帖子

认证商家

注册时间
2008-6-9
精华
0
QQ
 楼主| 发表于 2015-7-31 13:41:38 | 显示全部楼层
{:soso_e179:}
回复 支持 反对

使用道具 举报

您需要登录后才可以回帖 登录 | 注册

本版积分规则

联系合作|手机版|手机APP|Archiver|

GMT+8, 2025-12-13 21:59 Powered by Discuz! X3.4

安庆E网生活网站 © 2001-2013 Comsenz Inc. ( 皖ICP备05012696号 )

QQ

安庆瑞易文化 地址:华茂1958-C7栋 联系电话:0556-5306667 联系邮箱:17779721@qq.com 互联网违法和不良信息举报电话和邮箱:0556-5306667 17779721@qq.com

皖公网安备 34080002000101号

    
快速回复 返回顶部 返回列表