安庆E网

搜索
查看: 121370|回复: 433

[装修日记] 小小烟波阁—皖江春晓装修纪事(伊丽伯特更换法拉利床板,上古画廊安装三联画)

  [复制链接]

0

收听

5

听众

941

帖子

E粉明星

注册时间
2009-7-29
精华
2
QQ
发表于 2015-8-8 22:08:36 | 显示全部楼层 |阅读模式
本帖最后由 烟波齑舟 于 2016-6-6 14:08 编辑

【前言】
        7月流火,月初本科校友毕业15周年聚会,北京潇洒走一遭;月末疗养,扬州、南京我来也。可能是觉得我过得太惬意了,母亲大人打算给我找点事干,于是乎命我着手装修一下寒舍。临阵磨枪,每晚在齐家网和E网装修版块、天猫商城浏览至深夜,无外乎学习他人的经验、借鉴其惨痛的教训、比较价格,尽量做到少花钱多办事,但往往事与愿违。
      每个人的生活习惯和审美眼光都不一样,结合自己的习惯选择适合自己的装修方式,写属于自己风格的日记,装自己的修,走自己的路,足矣!




❤※❤※❤※❤※❤※❤※ 直达电梯,为我加油!↖(^ω^)↗ ❤※❤※❤※❤※❤※❤※
装潢篇
一、【选择家装公司】       二、【平面布置图】       三、【美美哒效果图】       四、【开工仪式】      
五、【金牌卫浴美图】     六、【水电定位】     七、【锦致橱柜水电图】     八、【格力风管机的选择】      
九、【强、弱电箱的选择】                        十、【马可波罗瓷砖厨卫搭配方案的敲定】


十一、【锦致橱柜颜色的确定和效果图的最终定稿】           十二、【锦致橱柜定妆照】  

十三、【情定普吉尼衣柜,牵手帝王风木门】                 十四、【水电验收、水管试压】
     
十五、【马可波罗瓷砖客厅餐厅铺砖设计图】                十六、【即将启程-久盛地板“玖月奇迹”】

十七、【久盛玖月奇迹之旅,选择纤皮玉蕊和江山如画】

十八、【现场打柜子、定制柜子和购买成品柜的搭配组合】

十九、【木工装修施工流程和木工材料分类、用途】   二十、【客厅、餐厅吊顶完工,柜子框架成型、刷防水】      
二十一、【瓦工砌立管、刷防水、厨卫阳台抹水泥、开始贴砖】     二十二、【厨卫、阳台贴砖完工,实景照】      
二十三、【客厅、餐厅翠玉石大砖完工,美美哒实景照】   二十四、【木工安装柜体;制作柜门、电视背景墙】      
二十五、【瓦工扫尾,铺厨卫地砖、门槛石、飘窗石】     二十六、【家装油漆工序和对应油漆种类的选择】      
二十七、【木工结束,静待瓦工进场】                       二十八、【油漆工进场】
                    
二十九、【双十一前夕,苏宁易购入手A.O史密斯,雷士选择客厅吸顶灯和筒灯射灯灯带T5灯管】

三十、【普吉尼衣柜到货安装,贴石膏线】      三十一、【三遍腻子刮完】      三十二、【两底两面,喷漆完工】


三十三、【油漆工结束,开始各种安装】


❤※❤※❤※❤※❤※❤※ 直达电梯,为我加油!↖(^ω^)↗ ❤※❤※❤※❤※❤※❤※
安装篇
一、【安装A.O史密斯热水器、天盟吊灯、帝王风木门及门套】                     二、【安装奥普集成吊顶】

三、【锦致橱柜安装;雷士、欧普灯具安装】                                                 四、【贴索弗仑壁纸】

五、【贴美家美户墙布,装开关面板厨卫五金】                                           六、【安装老板烟机灶具】

七、【安装久盛地板-美国红栎】                                                    八、【安装金牌卫浴四件套和卡贝挂件】

                                              九、【硬装结束,附毕业照】



❤※❤※❤※❤※❤※❤※ 直达电梯,为我加油!↖(^ω^)↗ ❤※❤※❤※❤※❤※❤※
材料篇
一、【三星装饰半包材料清单】                                     二、【主材清单及价格】





❤※❤※❤※❤※❤※❤※ 直达电梯,为我加油!↖(^ω^)↗ ❤※❤※❤※❤※❤※❤※
软装篇
一、【安装索弗仑窗帘】                             二、【皇朝沙发】【适度茶几、电视柜、餐桌椅】安装

三、【安装伊丽伯特软床和板式床】

四、【久盛地板免费打蜡】、【安装心海珈蓝洗衣柜和师傅的建议】

五、【伊丽伯特更换法拉利床板】【上古画廊安装三联画】




人生若只如初见。珍藏美好的记忆,尘封过往,从此相忘
回复

使用道具 举报

0

收听

5

听众

941

帖子

E粉明星

注册时间
2009-7-29
精华
2
QQ
 楼主| 发表于 2015-8-8 22:29:37 | 显示全部楼层
本帖最后由 烟波齑舟 于 2015-11-24 19:02 编辑

【家装公司的选择】
        虽然不曾亲自操刀过装修,但在业主群和同事的聊天中,对安庆的装修公司也大体有个了解,其中以XY最为如雷贯耳,其次就是三星、DW、BD等。我首先微信咨询了XY的某位安庆知名设计师,她现在主做高端了,听完她的报价,我想我的蜗居还是不要麻烦人家了


       接着,我去三星和DW咨询了一下。三星的李工和DW的杨红都是很优秀的设计师,我比较喜欢找岁数大点的、有生活阅历的,因为设计必须贴近生活,有生活的阅历才能更好的满足咱们普通大众的需求,正如在单位我委托项目基础设计时,也是倾向于找有过作业部工作经历的。

李工和杨工分别出了平面图和概算,都挺有想法的,而且对于生活中的点滴细节比我考虑周到{:soso_e127:}(惭愧啊,都是比我岁数小的哈)。第一回合,难分轩辕。
      接着我去李工和杨工的工地看了,管理都很到位,工艺也都超出我的想象,改变了我装修公司和装修队水平差别不大的概念。第二回合,还是难以抉择。

每次去三星和DW,三星都是胡总和李工一齐上阵,接待来访的客人,好处是设计和监理负责人都在场,让客户对于整个工程的设计和施工质量都能相对放心;而DW就始终只是杨工一人,孤军作战,设计再好还是需要施工来实施的。所以最终我选择了三星装饰。

人生若只如初见。珍藏美好的记忆,尘封过往,从此相忘
回复 支持 反对

使用道具 举报

0

收听

5

听众

941

帖子

E粉明星

注册时间
2009-7-29
精华
2
QQ
 楼主| 发表于 2015-8-8 23:07:58 | 显示全部楼层
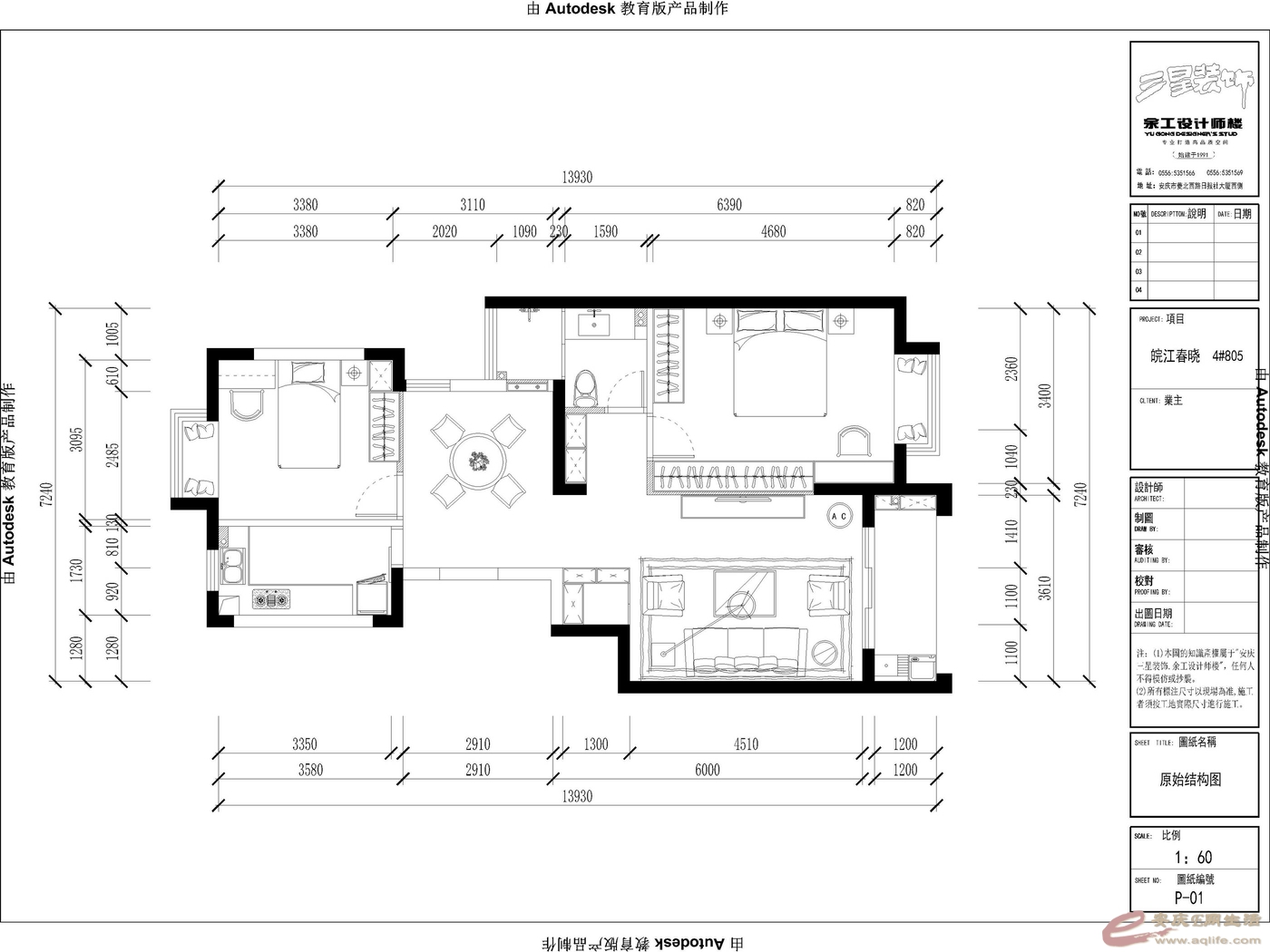
【平面图】
皖江春晓.JPG
人生若只如初见。珍藏美好的记忆,尘封过往,从此相忘
回复 支持 反对

使用道具 举报

0

收听

5

听众

941

帖子

E粉明星

注册时间
2009-7-29
精华
2
QQ
 楼主| 发表于 2015-8-8 23:22:20 | 显示全部楼层
【效果图】
1.JPG
2.JPG
3.JPG
4.JPG
5.JPG
人生若只如初见。珍藏美好的记忆,尘封过往,从此相忘
回复 支持 反对

使用道具 举报

0

收听

5

听众

941

帖子

E粉明星

注册时间
2009-7-29
精华
2
QQ
 楼主| 发表于 2015-8-8 23:24:37 | 显示全部楼层
本帖最后由 烟波齑舟 于 2015-11-24 18:30 编辑

          It's my life! 明晚继续,敬请期待,欢迎E网各路高手多多赐教。
人生若只如初见。珍藏美好的记忆,尘封过往,从此相忘
回复 支持 反对

使用道具 举报

0

收听

5

听众

411

帖子

E粉明星

注册时间
2014-9-4
精华
0
QQ
发表于 2015-8-9 08:22:39 | 显示全部楼层
李工确实设计独到也很重细节,是个很好的设计师,不过三星得费用和增项你也要好好控制,当然了,有钱人可以不用担心{:soso_e120:}

点评

爱生活,爱E网,爱加分!: 0.0
爱生活,爱E网,爱加分!: 0
  发表于 2015-8-9 20:38
安庆炫光灯改
安庆市盛唐湾路与裕庆路交叉口
TEL:13866611565 QQ:454523707
回复 支持 1 反对 0

使用道具 举报

头像被屏蔽

1

收听

1

听众

32

帖子

禁止访问

注册时间
2015-6-25
精华
0
发表于 2015-8-9 15:56:54 | 显示全部楼层
提示: 作者被禁止或删除 内容自动屏蔽
签名被屏蔽
回复 支持 1 反对 0

使用道具 举报

0

收听

5

听众

941

帖子

E粉明星

注册时间
2009-7-29
精华
2
QQ
 楼主| 发表于 2015-8-9 20:37:32 | 显示全部楼层
本帖最后由 烟波齑舟 于 2015-11-24 18:32 编辑
小野鹿 发表于 2015-8-9 08:22
李工确实设计独到也很重细节,是个很好的设计师,不过三星得费用和增项你也要好好控制,当然了,有钱人可以 ...


       谢谢提醒,我注意比较了三星的报价单,其中小砖砌立管、地面找平、门槛石的铺设费用都没列入,其他的暂时还没发现。因为三星是统一的报价单,所以后续有在三星做的同学必须在签合约前指出,以免以后发生纠纷。
人生若只如初见。珍藏美好的记忆,尘封过往,从此相忘
回复 支持 反对

使用道具 举报

0

收听

5

听众

941

帖子

E粉明星

注册时间
2009-7-29
精华
2
QQ
 楼主| 发表于 2015-8-9 20:56:23 | 显示全部楼层
本帖最后由 烟波齑舟 于 2015-11-24 19:04 编辑

【施工琐记】   8月3日  第一天

        8月3日上午9时28分,烟波阁主同三星装饰的胡总、李工、王监理在皖江春晓小区4栋805,举行了盛大的开工典礼,在响彻云霄的鞭炮声中,双方就深化经济合作事宜及共同关注的问题进行了亲切友好的会晤,深入的交换了意见,达成了重要共识,这次会晤不仅将促进深化双方务实合作,还将对烟波阁未来的装修远景产生积极影响,推动项目取得实质性成果{:soso_e182:}。

       好吧,我承认:实际上就是放了个万鞭,摆了8个苹果、两盒糕和一盒糖{:soso_e120:}。寓意平安吉祥、步步高升、甜甜蜜蜜。简单有效率的开工仪式后,我和王监理一起去物业办了施工手续。
人生若只如初见。珍藏美好的记忆,尘封过往,从此相忘
回复 支持 反对

使用道具 举报

0

收听

5

听众

941

帖子

E粉明星

注册时间
2009-7-29
精华
2
QQ
 楼主| 发表于 2015-8-9 21:00:45 | 显示全部楼层
本帖最后由 烟波齑舟 于 2015-11-24 19:04 编辑

【施工琐记】   8月4日  第二天     
暂未动工。

人生若只如初见。珍藏美好的记忆,尘封过往,从此相忘
回复 支持 反对

使用道具 举报

0

收听

5

听众

941

帖子

E粉明星

注册时间
2009-7-29
精华
2
QQ
 楼主| 发表于 2015-8-9 21:07:45 | 显示全部楼层
本帖最后由 烟波齑舟 于 2015-11-24 18:31 编辑

【施工琐记】   8月5日   第三天


1.jpg
2.jpg
3.jpg
人生若只如初见。珍藏美好的记忆,尘封过往,从此相忘
回复 支持 反对

使用道具 举报

3

收听

12

听众

2040

帖子

认证商家

注册时间
2009-5-5
精华
0
发表于 2015-8-9 21:10:36 | 显示全部楼层
请问楼主地板定了没有?
地址:一店:光彩四期E区13栋56号 服务热线:5309299;二店:光彩博览中心2楼37号电话:5299809
回复 支持 反对

使用道具 举报

0

收听

5

听众

941

帖子

E粉明星

注册时间
2009-7-29
精华
2
QQ
 楼主| 发表于 2015-8-9 21:16:11 | 显示全部楼层
本帖最后由 烟波齑舟 于 2015-11-24 19:05 编辑

      正式动工第一天,将北阳台的门和侧面的窗子砸了,基本完成了砸墙的工程,地面收拾得很干净,施工线整齐标准,门外也做了保洁,张贴了告示,一切有条不紊的进行着。大公司和施工队的区别就在于这些细节,为三星装饰的施工质量和工地管理点个赞!
psb15.jpg
psb16.jpg
psb17.jpg
人生若只如初见。珍藏美好的记忆,尘封过往,从此相忘
回复 支持 反对

使用道具 举报

0

收听

5

听众

941

帖子

E粉明星

注册时间
2009-7-29
精华
2
QQ
 楼主| 发表于 2015-8-9 21:19:47 | 显示全部楼层
安庆久盛地板 发表于 2015-8-9 21:10
请问楼主地板定了没有?

木有,你家地板我去看过,很热情,有合适的会考虑的
人生若只如初见。珍藏美好的记忆,尘封过往,从此相忘
回复 支持 反对

使用道具 举报

0

收听

5

听众

941

帖子

E粉明星

注册时间
2009-7-29
精华
2
QQ
 楼主| 发表于 2015-8-9 22:22:03 | 显示全部楼层
本帖最后由 烟波齑舟 于 2015-11-24 19:06 编辑

【施工琐记】   8月6日  第四天
同事儿子金榜题名,大家开怀畅饮,so,我没时间去工地了。。。

【施工琐记】   8月7日  第五天
砌墙完毕,待刷水泥。

1.jpg
2.jpg
墙1.jpg
墙11.jpg
6.jpg
墙2.jpg
人生若只如初见。珍藏美好的记忆,尘封过往,从此相忘
回复 支持 反对

使用道具 举报

0

收听

5

听众

941

帖子

E粉明星

注册时间
2009-7-29
精华
2
QQ
 楼主| 发表于 2015-8-9 23:28:00 | 显示全部楼层
本帖最后由 烟波齑舟 于 2015-11-24 19:07 编辑

【装修琐记】    8月8日  第六天
刷水泥完毕。
1.jpg
墙22.jpg
墙23.jpg
墙24.jpg
人生若只如初见。珍藏美好的记忆,尘封过往,从此相忘
回复 支持 反对

使用道具 举报

0

收听

5

听众

941

帖子

E粉明星

注册时间
2009-7-29
精华
2
QQ
 楼主| 发表于 2015-8-9 23:46:01 | 显示全部楼层
本帖最后由 烟波齑舟 于 2015-11-24 19:08 编辑

【装修琐记】  8月9日  第七天

      暴雨倾盆,施工暂停,欢迎大家到安庆来看海!

      古有陶渊明不为五斗米折腰,而哥却为了三瓜两枣,在暴雨中奔波{:soso_e150:}。再大的风,再大的雨,都阻挡不了我省钱的心{:soso_e185:}。话说回来,俺挑的东东都还是蛮好看滴{:soso_e113:}。

1.jpg
2.jpg
3.jpg
人生若只如初见。珍藏美好的记忆,尘封过往,从此相忘
回复 支持 反对

使用道具 举报

3

收听

12

听众

2040

帖子

认证商家

注册时间
2009-5-5
精华
0
发表于 2015-8-10 06:42:45 | 显示全部楼层
本帖最后由 安庆久盛地板 于 2015-8-10 06:45 编辑
烟波齑舟 发表于 2015-8-9 21:19
木有,你家地板我去看过,很热情,有合适的会考虑的

感谢回复!久盛人坚持货真价实,诚信服务,确保每一位客户满意。欢迎报名参加8月29号久盛工厂团购会!

点评

好的好的,29号没其他事肯定去  发表于 2015-8-10 11:15
地址:一店:光彩四期E区13栋56号 服务热线:5309299;二店:光彩博览中心2楼37号电话:5299809
回复 支持 1 反对 0

使用道具 举报

9

收听

7

听众

1349

帖子

认证商家

注册时间
2011-11-6
精华
0
发表于 2015-8-10 09:03:04 | 显示全部楼层
恭喜恭喜,祝装修一切顺利!
展厅地址:光彩国际家居博览中心一层61号
销售热线:8882250
客服热线:8882251
品鉴热线:13905569197   qq:2502490242
做适合中国人的厨房,您的满意是我们最高的荣誉[
回复 支持 反对

使用道具 举报

6

收听

4

听众

921

帖子

认证商家

注册时间
2013-5-23
精华
0
QQ
发表于 2015-8-10 09:06:35 | 显示全部楼层
恭喜楼主装修大吉
回复 支持 反对

使用道具 举报

6

收听

4

听众

921

帖子

认证商家

注册时间
2013-5-23
精华
0
QQ
发表于 2015-8-10 09:07:12 | 显示全部楼层
欢迎有时间来百年家居绿娃阳台门窗样品店坐坐
回复 支持 反对

使用道具 举报

0

收听

8

听众

634

帖子

资深E粉

注册时间
2010-10-7
精华
0
发表于 2015-8-10 09:09:29 | 显示全部楼层
恭喜你啊,终于开工了,很喜欢你家沙发背景墙的墙纸设计。
回复 支持 0 反对 1

使用道具 举报

4

收听

2

听众

1414

帖子

未认证商家

注册时间
2011-5-4
精华
0
QQ
发表于 2015-8-10 10:48:19 | 显示全部楼层
图片好小哦
青年装饰
地址:江畔尚城大门西侧
联系电话:18297709288   QQ:641125232
回复 支持 反对

使用道具 举报

0

收听

5

听众

941

帖子

E粉明星

注册时间
2009-7-29
精华
2
QQ
 楼主| 发表于 2015-8-10 11:13:32 | 显示全部楼层

谢谢,周末去你家看看,咨询一下封阳台的注意事项
人生若只如初见。珍藏美好的记忆,尘封过往,从此相忘
回复 支持 反对

使用道具 举报

0

收听

5

听众

941

帖子

E粉明星

注册时间
2009-7-29
精华
2
QQ
 楼主| 发表于 2015-8-10 11:15:20 | 显示全部楼层
有烟飘过 发表于 2015-8-10 09:09
恭喜你啊,终于开工了,很喜欢你家沙发背景墙的墙纸设计。

那个是效果图,实际上未必用墙纸,我还没考虑好是用微晶石还是墙纸做背景。美女的家装日记写得很有条理,不像我随意而至。
人生若只如初见。珍藏美好的记忆,尘封过往,从此相忘
回复 支持 反对

使用道具 举报

您需要登录后才可以回帖 登录 | 注册

本版积分规则

联系合作|手机版|手机APP|Archiver|

GMT+8, 2025-12-10 16:28 Powered by Discuz! X3.4

安庆E网生活网站 © 2001-2013 Comsenz Inc. ( 皖ICP备05012696号 )

QQ

安庆瑞易文化 地址:华茂1958-C7栋 联系电话:0556-5306667 联系邮箱:17779721@qq.com 互联网违法和不良信息举报电话和邮箱:0556-5306667 17779721@qq.com

皖公网安备 34080002000101号

    
快速回复 返回顶部 返回列表