安庆E网

搜索
楼主: Summer.

[装修日记] 润城尚郡简约风格装修日记(壁纸贴好啦,灯具装完啦~)

  [复制链接]

0

收听

1

听众

159

帖子

E粉新星

注册时间
2014-5-8
精华
0
发表于 2015-10-16 21:38:50 | 显示全部楼层
小妹是会计吧,跟我会计的名字一样。
回复 支持 反对

使用道具 举报

0

收听

0

听众

21

帖子

E粉新人

注册时间
2015-7-8
精华
0
发表于 2015-10-16 22:52:31 | 显示全部楼层
Summer. 发表于 2015-10-15 23:07
纠结出啥结果了,一起探讨探讨

师傅他们都说一起吊过去有2.3 ,不会感觉压抑,我想反正吊顶也还早等17楼弄好了去看看在决定。
回复 支持 反对

使用道具 举报

0

收听

0

听众

45

帖子

E粉新人

注册时间
2015-10-17
精华
0
发表于 2015-10-17 17:05:12 www.aqlife.com | 显示全部楼层
恭喜楼主,  刚刚看楼主上面说纠结厨房吊顶, 我家做奥华生态集成吊顶的楼主可以抽空过来坐坐
回复 支持 反对

使用道具 举报

0

收听

2

听众

226

帖子

E粉明星

注册时间
2014-8-11
精华
0
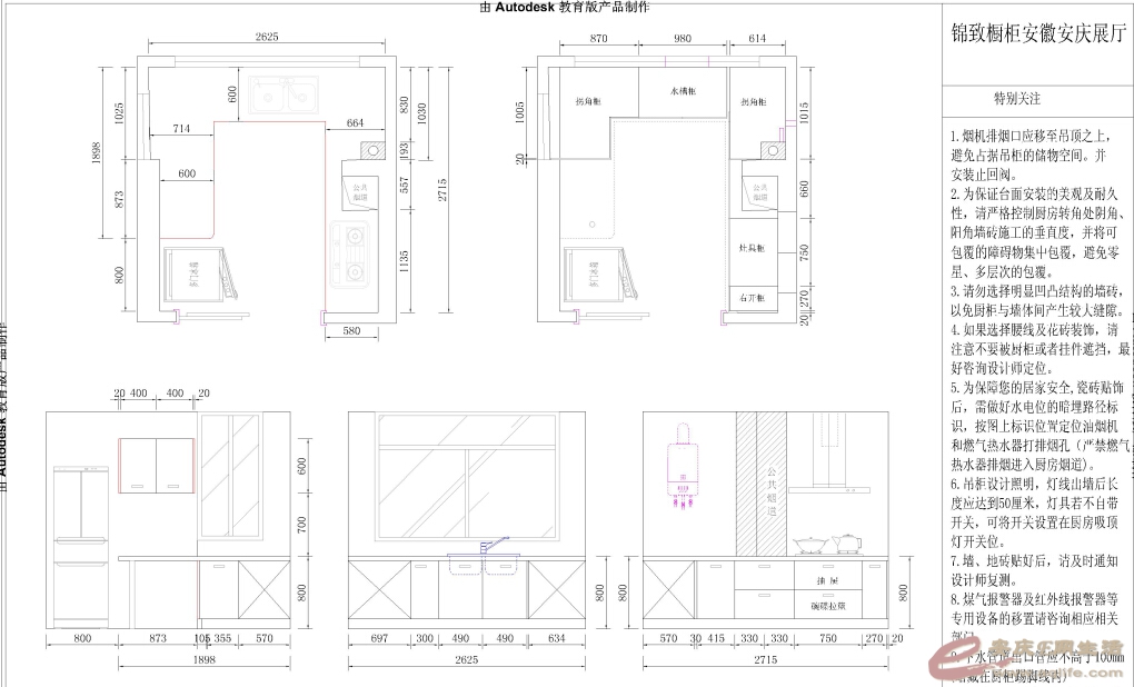
 楼主| 发表于 2015-10-19 20:45:13 | 显示全部楼层
本帖最后由 Summer. 于 2015-11-16 18:03 编辑

     【预定锦致橱柜】


     家里厨房瓷砖早就已经贴完了,橱柜尺寸复量也已经量过了。趁着周末,去了锦致把最后的方案定下来,然后就可以下单制作了。橱柜一般需要40天,看来家里面各项主材真正装完得11月底了。

      1019_1 (1).jpg
    选的是跟有烟飘过家一样的闪光香槟色金属烤漆,确实比纯色钢琴贵了不少。橱柜设计的是U字型,烟道位置底下是假门板,因为做柜子确实装不了什么东西,台面若是断开来又不太好看。所以只能这样设计了。左边留了一个小吧台,以后下面可以放一点菜啊,杂物啊,或者垃圾桶什么的,也就相当于把原来的地柜移到上面做了吊柜。

    3.jpg
   具体的尺寸图,发出来给大家做个参考吧。看着柜子有那么多,感觉以后厨房东西多了也放不下。
  



   【关于价格】
   台面 6米
   下柜4.5米
   吊柜0.84米
   加上假门板的拉手、吧台角、吧台垫板后约1万多。个人感觉相比于欧派、海尔这些一线品牌来说,价格不是特别有吸引力,对于我们这些又买房又装修的年轻人来说,是有压力的。只希望一分钱一分货,花钱买质量、花钱买服务、花钱买售后啊!!!当然,有什么不爽的,我依旧会来吐槽的。
   另外,老板的烟机灶具也是在锦致的老板电器定的,当时好像老板做活动吧,烟机型号8316,灶具型号7B13。


点评

想说,无论看单价看性价比,都买贵了。。。  发表于 2015-10-23 09:02
1400元一米含单色人造石台面  发表于 2015-10-22 00:10
这个橱柜真的没性价比,我订的是金苹果,老板特实在,橡木指接实木门,地柜1400元工/米,吊柜700一米  发表于 2015-10-22 00:09
回复 支持 反对

使用道具 举报

1

收听

3

听众

684

帖子

未认证商家

注册时间
2012-2-12
精华
0
发表于 2015-10-19 21:45:42 | 显示全部楼层
Summer. 发表于 2015-10-19 20:45
【预定锦致橱柜】

感谢楼主的信任与选购!锦致橱柜将竭诚为您服务!
锦致橱柜,做最适合中国人的厨房
展厅地址:南翔光彩国际家居博览中心一层61号
品鉴热线:8882250
服务热
回复 支持 反对

使用道具 举报

0

收听

0

听众

10

帖子

E粉新人

注册时间
2015-10-18
精华
0
QQ
发表于 2015-10-20 09:37:01 | 显示全部楼层
坐等墙纸……
安庆市几米装饰
地址:迎江世纪城·启航社2#1520室
电话:0556-5033233
回复

使用道具 举报

0

收听

4

听众

941

帖子

E粉明星

注册时间
2009-7-29
精华
2
QQ
发表于 2015-10-20 17:04:54 | 显示全部楼层
Summer. 发表于 2015-10-19 20:45
【预定锦致橱柜】

好漂亮啊!处理完事情,第一时间就来给美女加油
人生若只如初见。珍藏美好的记忆,尘封过往,从此相忘
回复 支持 反对

使用道具 举报

4

收听

1

听众

1414

帖子

未认证商家

注册时间
2011-5-4
精华
0
QQ
发表于 2015-10-21 15:29:22 | 显示全部楼层
橱柜很大气~~
青年装饰
地址:江畔尚城大门西侧
联系电话:18297709288   QQ:641125232
回复 支持 反对

使用道具 举报

0

收听

7

听众

634

帖子

资深E粉

注册时间
2010-10-7
精华
0
发表于 2015-10-23 08:56:58 | 显示全部楼层
本帖最后由 有烟飘过 于 2015-10-23 09:02 编辑
Summer. 发表于 2015-10-15 19:04
卫生间地砖缝隙的疑问

嘿嘿我家一开始我也看的很难受,但是后来时间长了,缝隙慢慢看不见了,有缝隙是必须的,热胀冷缩哦,不建议美缝,首先划不来,其次长时间真的会脏,还不如一开始就是黑色缝隙。另外厨房吊顶我家也有梁,但是还是抬高了,梁露出来的部分贴瓷砖的。当然吊顶抬高确实显得厨房宽敞很多不压抑,但是相对的我家的油烟机长度就不够了。
回复 支持 反对

使用道具 举报

0

收听

3

听众

217

帖子

E粉新星

注册时间
2015-9-19
精华
0
发表于 2015-10-23 09:42:58 | 显示全部楼层
Summer. 发表于 2015-10-19 20:45
【预定锦致橱柜】

LZ这个价格确实不便宜啊,和我们家的厨房差不多,哎,厨房最贵的支出应该就是橱柜了
回复 支持 反对

使用道具 举报

0

收听

3

听众

217

帖子

E粉新星

注册时间
2015-9-19
精华
0
发表于 2015-10-23 09:47:06 | 显示全部楼层

确实从整体性来考虑,现在有的定制的价格和打的也确实差不多,不过师傅手艺也很好,打的也蛮漂亮的,选个好看的移门就OK了
回复 支持 反对

使用道具 举报

0

收听

3

听众

217

帖子

E粉新星

注册时间
2015-9-19
精华
0
发表于 2015-10-23 09:51:17 | 显示全部楼层

阳台的砖很好看哎,在哪买的?价格能否短下
回复 支持 反对

使用道具 举报

0

收听

3

听众

217

帖子

E粉新星

注册时间
2015-9-19
精华
0
发表于 2015-10-23 09:52:29 | 显示全部楼层
百佳五金 发表于 2015-10-15 19:59
你好!美缝剂我店里有,而且还有工具给你们用,小红帽牌的,质量很不错的。

自己好操作吗?
回复 支持 反对

使用道具 举报

0

收听

2

听众

226

帖子

E粉明星

注册时间
2014-8-11
精华
0
 楼主| 发表于 2015-10-23 14:35:43 | 显示全部楼层
暴走的肉丸子 发表于 2015-10-23 09:42
LZ这个价格确实不便宜啊,和我们家的厨房差不多,哎,厨房最贵的支出应该就是橱柜了

555,都说我家橱柜买贵了,让我哭一会去!!!
回复 支持 反对

使用道具 举报

0

收听

2

听众

226

帖子

E粉明星

注册时间
2014-8-11
精华
0
 楼主| 发表于 2015-10-23 14:36:24 | 显示全部楼层
暴走的肉丸子 发表于 2015-10-23 09:51
阳台的砖很好看哎,在哪买的?价格能否短下

短给你了哦~
回复 支持 反对

使用道具 举报

0

收听

2

听众

226

帖子

E粉明星

注册时间
2014-8-11
精华
0
 楼主| 发表于 2015-10-23 14:38:33 | 显示全部楼层
有烟飘过 发表于 2015-10-23 08:56
嘿嘿我家一开始我也看的很难受,但是后来时间长了,缝隙慢慢看不见了,有缝隙是必须的,热胀冷缩哦,不建 ...

我都忘了你家厨房吊顶是什么样的了,等下去瞅瞅去。我现在也倾向把梁露出来,不过瓦工已经结束了。可能考虑用吊顶的铝扣板包了吧!
回复 支持 反对

使用道具 举报

0

收听

2

听众

226

帖子

E粉明星

注册时间
2014-8-11
精华
0
 楼主| 发表于 2015-10-23 20:53:14 | 显示全部楼层
    10月23日  晴


    漆工进场了以后,感觉轻松了不少,事不是那么多了。不过主材还有墙纸、地板、灯具没有订,别的都差不多搞定了。中午抽空去定了石膏线,唉,在宏达付了那么多钱,居然发现没有石膏线,还得自己去找。在光彩四期找了一家,包贴8块钱一米,好像石膏线都是这个价,6块的、7块的、8块的。然后去南翔的法恩莎定了台盆、龙头和下水,一共1200。实在是还不下来价,就此作罢吧!


1023_2.jpg

1023_3.jpg

一共35张抽奖券!!!就让我中一次奖吧,阿门!!!
1023_1.jpg

回复 支持 反对

使用道具 举报

0

收听

4

听众

941

帖子

E粉明星

注册时间
2009-7-29
精华
2
QQ
发表于 2015-10-23 21:19:19 | 显示全部楼层

好多奖券等着你中大奖了请客!
人生若只如初见。珍藏美好的记忆,尘封过往,从此相忘
回复 支持 反对

使用道具 举报

0

收听

2

听众

226

帖子

E粉明星

注册时间
2014-8-11
精华
0
 楼主| 发表于 2015-10-23 21:21:13 | 显示全部楼层
烟波齑舟 发表于 2015-10-23 21:19
好多奖券等着你中大奖了请客!

好嘞!!!
回复 支持 反对

使用道具 举报

9

收听

6

听众

1349

帖子

认证商家

注册时间
2011-11-6
精华
0
发表于 2015-10-23 21:44:23 | 显示全部楼层
Summer. 发表于 2015-10-23 14:35
555,都说我家橱柜买贵了,让我哭一会去!!!

细节,品质,后续服务决定一切。现在哭以后笑。
展厅地址:光彩国际家居博览中心一层61号
销售热线:8882250
客服热线:8882251
品鉴热线:13905569197   qq:2502490242
做适合中国人的厨房,您的满意是我们最高的荣誉[
回复 支持 反对

使用道具 举报

0

收听

0

听众

17

帖子

E粉新人

注册时间
2015-10-25
精华
0
发表于 2015-10-25 12:15:34 | 显示全部楼层
隔壁邻居,顶一个,顺便问下你家锦致橱柜整个搞下来几多钱?真心好看,就是怕money架不住啊
回复 支持 反对

使用道具 举报

头像被屏蔽

0

收听

0

听众

459

帖子

禁止发言

注册时间
2015-9-18
精华
0
QQ
发表于 2015-10-25 13:22:58 | 显示全部楼层
提示: 作者被禁止或删除 内容自动屏蔽
签名被屏蔽
回复 支持 反对

使用道具 举报

0

收听

2

听众

226

帖子

E粉明星

注册时间
2014-8-11
精华
0
 楼主| 发表于 2015-10-25 19:59:01 www.aqlife.com | 显示全部楼层
花花爱草草 发表于 2015-10-25 12:15
隔壁邻居,顶一个,顺便问下你家锦致橱柜整个搞下来几多钱?真心好看,就是怕money架不住啊

上面写了价格啊,一万六。你有兴趣可以去他家店里看看
回复 支持 反对

使用道具 举报

0

收听

0

听众

17

帖子

E粉新人

注册时间
2015-10-25
精华
0
发表于 2015-10-25 22:22:32 www.aqlife.com | 显示全部楼层
太贵了,看你写得好仔细,学到不少东西。加油哈
回复 支持 反对

使用道具 举报

0

收听

2

听众

226

帖子

E粉明星

注册时间
2014-8-11
精华
0
 楼主| 发表于 2015-10-26 08:43:58 | 显示全部楼层
10月26日 晴

     再也不去参加抽奖了,童话里都是骗人的!!!!5555555~在南翔参加了两次,舒怡一次。每次都是看着身边的人中奖,有的人还中两次,我的内心几乎是崩溃了。尼玛,这运气也太差了点吧。从小到大一个奖都没中过,上次舒怡国庆100个拖把呀~~~眼睁睁的看着它抽完,就是木有我!什么时候才能转运打破这个魔咒啊!!!
     插点题外话,周末去看了朋友家的房子,她家是订制的索菲亚衣柜,好像是799一个平方,这样算下来比我家衣柜便宜多了呢。整体看上去效果也不错,上图给你们瞅瞅!
       1026_1.jpg

      1026_2.jpg

   还有一个事情,就是我这朋友家,硬装基本上装好了。柜子也搞定了,地板也铺好了。可是她家的墙顶掉下来了,是的,顶掉下来了。所以她家现在只能把顶全部刮掉,重新处理了!具体是哪家装修公司我就不点名了,希望大家家里都不会出现这样的情况吧~
    1026_3.jpg
回复 支持 反对

使用道具 举报

您需要登录后才可以回帖 登录 | 注册

本版积分规则

联系合作|手机版|手机APP|Archiver|

GMT+8, 2025-10-25 23:56 Powered by Discuz! X3.4

安庆E网生活网站 © 2001-2013 Comsenz Inc. ( 皖ICP备05012696号 )

QQ

安庆瑞易文化 地址:华茂1958-C7栋 联系电话:0556-5306667 联系邮箱:17779721@qq.com 互联网违法和不良信息举报电话和邮箱:0556-5306667 17779721@qq.com

皖公网安备 34080002000101号

    
快速回复 返回顶部 返回列表