安庆E网

搜索
查看: 18697|回复: 67

[装修日记] 2016年怡庭公寓套内120平装修起航...

  [复制链接]

0

收听

1

听众

70

帖子

E粉新星

注册时间
2013-7-7
精华
1
发表于 2015-12-29 19:29:20 | 显示全部楼层 |阅读模式
本帖最后由 中国化石 于 2016-3-30 11:00 编辑

  今天是个纪念的日子,因为今天完成了两件大事。
  一是祝贺老妈七十大寿的准备工作今天全部完成,全家大团圆将在羊年最后一天汇聚一堂
  二是历经一个月的选择和对比,终于敲定了把新房以半包方式交给我们E网口碑非常好的宏达装饰公司。
  虽然这不是第一次装修了,却是我第一次记装修日记没啥经验。即使泡在E网多年,也对家装论坛的家装日记有些许了解,但落笔下去依然不知从何写起。为了给新居家装的过程留一个回忆和纪念,也想通过对装修全过程的记录让E网和我一样对家装没什么经验的朋友了解一下采购流程,工艺流程,对装修过程中出现的问题希望E网有家装经验的前辈多多指导!!

元旦开工计划因为合同未定的原因暂且延迟。甘总非常热心的打电话告知选购主材时候要注意的问题,在此非常感谢!

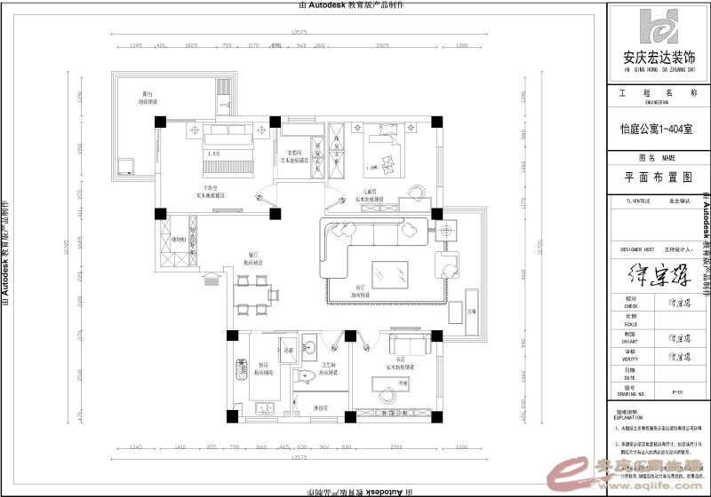
二:新房信息。最后一张是后来修改成强化地板的效果图,前面两个的地板效果还没出来,期待徐设计师闲暇之余做出效果图!
三:一次不愉快的退单之旅
主材篇:
整体橱柜

衣柜选择


装修篇
墙体拆建

水电铺设



mmexport1451980535032.jpg












mmexport1451980380872.jpg
mmexport1451980383379.jpg
QQ图片20160109092409.jpg
回复

使用道具 举报

0

收听

1

听众

70

帖子

E粉新星

注册时间
2013-7-7
精华
1
 楼主| 发表于 2015-12-29 19:42:14 | 显示全部楼层
本帖最后由 中国化石 于 2016-1-9 14:33 编辑

新房基本信息【户 型】:3室1厅1厨2卫
【面 积】:建筑面积130平方米  套内面积120平方米
【来自小区】: 怡庭公寓
【风 格】: 现代简约                                                
【家装公司】:宏达装饰【装修全部预算】:13~15万(不含家电)
【预计开工时间】:2016年元月二日
【预计交房时间】:2016年10月
  肯定有人问了,建筑面积130,套内面积却有120平?的确如此,因为怡庭公寓是宜龙地产(皖江春晓小区的地产商)最新开发的小区,栖居繁华老城区德宽路青岛啤酒正对面。没有东湖一品、华茂1958、格林顿等那样的规模化,只有区区33户,两个单元多层构筑,一层为商铺,所以公摊面积小。我们对施工工期要求不高。俗话说的慢工出细活也正是考验宏达装饰公司在如此长周期家装工程中的质量是否能达到更高一层。让我们拭目以待!
回复 支持 反对

使用道具 举报

0

收听

1

听众

70

帖子

E粉新星

注册时间
2013-7-7
精华
1
 楼主| 发表于 2015-12-29 19:48:12 | 显示全部楼层
   话说从选择家装公司开始,起先为了省钱想不找装修公司,自己找人装,后来考虑到时间问题和各个环节都要自己操心,所以还是选择找装修公司。因我们石化E网家装论坛的装修日记很出彩,所以来到论坛泡了好多天,装修日记看了好多,发现宏达装饰出镜率很高,而且评价似乎都挺好的,就多观察观察了。在寻寻觅觅一共看了三家装修公司并接触设计师之后,感觉设计思路类似,但价格差异很大。其中宏达装饰的甘总和我们谈起来的感觉比较实在,因为第一次去看房和验房时,甘总就亲身亲临带着那个小锤子对房子进行认真的检查并提出很多中肯的意见,设计师小徐也很专业化提出了装修的一些问题。还有东盛装饰的徐总,一个电话就从那么远的地方到房子去认真的画图量尺寸。但因为急着年前装修(黄道吉日元月二日),等不及了徐总的设计出台,在这里对徐总说声抱歉了。至于接触的雅美居装饰公司,其从江西南昌到安庆开业虽然不到一年,但公司业务开展迅速,质量和口碑都很不错,还有公司的设计师邱小姐不仅是美女也很专业和敬业,在这里赞一下!之所以选择宏达装饰,不仅考虑的是质量、口碑,更多的是本土大公司实力决定了家装各个环节的顺利进行和后期有力的保障。
回复 支持 反对

使用道具 举报

0

收听

1

听众

70

帖子

E粉新星

注册时间
2013-7-7
精华
1
 楼主| 发表于 2015-12-29 19:53:38 | 显示全部楼层
对家装我本是个半懂不懂的酱油瓶,在此要感谢宏达的设计师小徐,雅美居美女设计师小邱,特别是E网的好多网友,因为在家装论坛看到了团购的群后迅速加入,群里的网友对于我提出的问题及时给予解答和帮助。有的时候还真是相信缘分,有缘才能相聚,希望本次装修能合作顺利!
回复 支持 反对

使用道具 举报

0

收听

1

听众

70

帖子

E粉新星

注册时间
2013-7-7
精华
1
 楼主| 发表于 2015-12-29 20:10:53 | 显示全部楼层
本帖最后由 中国化石 于 2016-1-9 14:35 编辑

   强大的E网让我省了很多事,本来纠结着各个主材的选择。但进了E网装修论坛后发现自己根本不需要再去浪费时间东奔西走雾里看花。早上浏览了论坛人气超高的家装贴后,个性使然让我快速敲定了装修首要选择的主材之一:巧夫人整体橱柜。为啥选择这个整体橱柜相信大家都明白,因为巧夫人橱柜的口碑、质量在E网家装论坛好多名帖中都有详细介绍,这里不在赘述。巧夫人热情的老板娘果然名不虚传,从产品质量的介绍到E网XXX家刚定了她们家的最新款,从家装橱柜和集成灶的颜色搭配到后期橱柜保养和质量保障,没有华丽辞藻的语言和淳朴的质量承诺让我放心的掏腰包付了订金,让我们静待元月的开张大吉
回复 支持 反对

使用道具 举报

9

收听

7

听众

1349

帖子

认证商家

注册时间
2011-11-6
精华
0
发表于 2015-12-29 21:32:46 | 显示全部楼层
祝开工大吉!
展厅地址:光彩国际家居博览中心一层61号
销售热线:8882250
客服热线:8882251
品鉴热线:13905569197   qq:2502490242
做适合中国人的厨房,您的满意是我们最高的荣誉[
回复

使用道具 举报

0

收听

1

听众

70

帖子

E粉新星

注册时间
2013-7-7
精华
1
 楼主| 发表于 2015-12-30 11:29:27 | 显示全部楼层
  服务器不咋地啊,早上刚写的日记上传时候遇到网站崩溃
回复 支持 反对

使用道具 举报

0

收听

2

听众

57

帖子

E粉新人

注册时间
2015-5-29
精华
0
发表于 2015-12-30 11:35:17 | 显示全部楼层
不明白楼主的逻辑,东盛的预算还没出你就定宏达了,那一开始也不必要让东盛去测量啊,虽然是免费的,也是占用了别人的时间精力,最后看都不看,实在有点不尊重人
回复 支持 反对

使用道具 举报

1

收听

9

听众

5117

帖子

E粉明星

注册时间
2009-11-24
精华
0

室内装饰设计QQ243160571

QQ
发表于 2015-12-30 14:10:23 | 显示全部楼层
饭团 发表于 2015-12-30 11:35
不明白楼主的逻辑,东盛的预算还没出你就定宏达了,那一开始也不必要让东盛去测量啊,虽然是免费的,也是占 ...

楼主估计是太急,可以理解的,谢谢亲,祝楼主开工大吉,顺利
东盛装饰  您身边的装修专家!
地址:光彩四期烩街公寓6楼(光彩大舞台隔壁)
电话:13625565176   5200845
回复 支持 反对

使用道具 举报

头像被屏蔽

0

收听

1

听众

459

帖子

禁止发言

注册时间
2015-9-18
精华
0
QQ
发表于 2015-12-30 17:45:11 | 显示全部楼层
提示: 作者被禁止或删除 内容自动屏蔽
签名被屏蔽
回复 支持 反对

使用道具 举报

0

收听

1

听众

294

帖子

E粉明星

注册时间
2015-5-21
精华
1
发表于 2015-12-30 18:56:38 | 显示全部楼层
我家也快装修了,祝装修大吉~
回复 支持 反对

使用道具 举报

0

收听

1

听众

70

帖子

E粉新星

注册时间
2013-7-7
精华
1
 楼主| 发表于 2015-12-31 23:04:38 | 显示全部楼层
饭团 发表于 2015-12-30 11:35
不明白楼主的逻辑,东盛的预算还没出你就定宏达了,那一开始也不必要让东盛去测量啊,虽然是免费的,也是占 ...

  因为29日去宏达谈价价格时候,甘总亲自给予很优惠的价格,也正好赶上他们的活动,所以缴纳了订金(不是定金)。当时设计师问我有啥区别,我呵呵的笑着说订金可以退,不代表最后的确定,而定金不可退。当时签完单也马上打电话给东盛的徐总说了抱歉,或许东盛的徐总比较忙,而且路又远不方便,所以心里还是打了退堂鼓。我觉得这不算是不尊重吧...,徐总付出的心血在这里受领了,有机会我肯定会介绍朋友去那里的!
回复 支持 反对

使用道具 举报

0

收听

1

听众

70

帖子

E粉新星

注册时间
2013-7-7
精华
1
 楼主| 发表于 2015-12-31 23:21:42 | 显示全部楼层
  这两天跑了光彩和百年家居,对厨房整体橱柜、衣柜、衣柜门的店家进行了对比,按照E网家装介绍的几家品牌,先后去了巧夫人整体橱柜,顶固衣柜,好莱客衣柜,欧派衣柜。带着图纸逐一咨询。除了巧夫人在第一时间确定好以外,其它的比如衣柜方面因为有半包的合同,宏达给的品牌是顶固衣柜,所以去了顶固衣柜看了式样。顶固实体店的式样说实话符合我意的真不多,或许展示柜台面积有限,但顶固设计师(是不是老板不清楚也没问)很是热心,快速的设计出衣柜的式样和结构图以及预算价格。相比之下要比欧派的便宜一点,而且顶固的效果图品种很多,有点看花眼。
  今晚是老妈的七十大寿宴席,酒桌上刚好遇到亲戚正在装修,交流之中听说她的衣柜门是在欧派活动时候签的爆款价,比目前看到所有衣柜门的最低价还要低很多。立马有了兴趣,毕竟欧派有着强大的品牌效应,我让她明天早上带上爆款价单子陪我去欧派衣柜看看款式。因为久盛地板当时活动签的爆款价的确很低,至少现在店面的批发价和团购价都远比爆款价高,所以我对出厂爆款价还是很有兴趣的。明天早上起个早去欧派瞅瞅样式,顺便拍几张图片回来让大家参考一下给个意见

回复 支持 反对

使用道具 举报

0

收听

1

听众

70

帖子

E粉新星

注册时间
2013-7-7
精华
1
 楼主| 发表于 2015-12-31 23:29:23 | 显示全部楼层
  今天听亲戚说她家装的是中央空调,8400元还送一个挂机空调,和市场上柜机价格差不多,但装起来效果很好看。不知道E网有没有安装中央空调的网友,效果如果?
回复 支持 反对

使用道具 举报

0

收听

1

听众

294

帖子

E粉明星

注册时间
2015-5-21
精华
1
发表于 2016-1-1 09:14:43 | 显示全部楼层
额,中央空调这么便宜么?
回复 支持 反对

使用道具 举报

0

收听

1

听众

70

帖子

E粉新星

注册时间
2013-7-7
精华
1
 楼主| 发表于 2016-1-1 13:57:29 | 显示全部楼层
518 发表于 2016-1-1 09:14
额,中央空调这么便宜么?

  一拖一的,我也不懂她买一拖一的为啥用中央空调。
回复 支持 反对

使用道具 举报

0

收听

1

听众

70

帖子

E粉新星

注册时间
2013-7-7
精华
1
 楼主| 发表于 2016-1-1 14:24:10 | 显示全部楼层
   这种款式不知道能否定制
IMG_20160101_094130.jpg
回复 支持 反对

使用道具 举报

0

收听

1

听众

70

帖子

E粉新星

注册时间
2013-7-7
精华
1
 楼主| 发表于 2016-1-2 13:02:35 | 显示全部楼层
本帖最后由 中国化石 于 2016-1-2 13:31 编辑

    好莱客、顶固、欧派、皇朝家私的价格差价真是大
回复 支持 反对

使用道具 举报

1

收听

9

听众

5117

帖子

E粉明星

注册时间
2009-11-24
精华
0

室内装饰设计QQ243160571

QQ
发表于 2016-1-3 09:12:22 | 显示全部楼层
比较材料,再看价格,挑性价比高的,适合自己的最好
东盛装饰  您身边的装修专家!
地址:光彩四期烩街公寓6楼(光彩大舞台隔壁)
电话:13625565176   5200845
回复 支持 反对

使用道具 举报

0

收听

1

听众

70

帖子

E粉新星

注册时间
2013-7-7
精华
1
 楼主| 发表于 2016-1-3 17:04:36 | 显示全部楼层
本帖最后由 中国化石 于 2016-1-3 17:08 编辑

  戒急戒躁方能成事  装修这事说大不大说小不小的,任何细节都需要心平气和的去想,前期的准备工作包括主材的选择,合同的签署都不能意气用事。本人今天就感受到了心浮气躁的麻烦。昨天在亲戚的带领下去去一个品牌店看衣柜,一时兴起付钱拿了定单,注意不是订单而是定单,当时付完钱发现这个定单不合适要求改成订单(定单不可退,订单可以退),但品牌店店长承诺不用修改,熟人介绍的没有关系,就是这个看似不经意的允诺我却把它看成了一种约定成俗的承诺。  今天是和宏达签合同的日子,衣柜的预算问题使我和宏达之间多些时间来沟通,最终甘总的质量承诺和诚意让我决定衣柜选择顶固的全包,我相信贵有贵的理由,也期待着高性价比的顶固衣柜能够陪伴全家安居乐业几十年。签订了合同后就揣着昨天的定单去XX品牌店退款,却被告知不可退。即使面对面的对峙,也被说成熟人间的一种信任而做出的允诺,虽然她认为我不可能退订,但是意外总伴随着不经意。最终在不可退单又不愿花时间去计较的前提下,我在定单的基础上选择了此品牌酒柜的定制。这种妥协伴随着无奈,也让自己更清醒认识到家装市场的种种陷阱。
  家装有陷阱,处处需谨慎,此订非彼定,掏钱需看清!   


回复 支持 反对

使用道具 举报

0

收听

3

听众

271

帖子

E粉明星

注册时间
2015-5-22
精华
1
发表于 2016-1-3 17:08:45 | 显示全部楼层
中国化石 发表于 2016-1-1 13:57
一拖一的,我也不懂她买一拖一的为啥用中央空调。

那个是风管机,我家和茉莉家都装了。
回复 支持 反对

使用道具 举报

0

收听

1

听众

44

帖子

E粉新人

注册时间
2013-4-2
精华
0
发表于 2016-1-3 21:14:54 | 显示全部楼层
能率燃气热水器 发表于 2015-12-30 17:45
祝楼主装修大吉!热水器有需要欢迎到我们能率来坐坐,期待您的光临
因为专业,所 ...

有没有能率安装师傅电话 给个
回复 支持 反对

使用道具 举报

0

收听

1

听众

70

帖子

E粉新星

注册时间
2013-7-7
精华
1
 楼主| 发表于 2016-1-3 23:15:21 | 显示全部楼层
暴走的羊先森 发表于 2016-1-3 17:08
那个是风管机,我家和茉莉家都装了。

  风管机价格不便宜,你冷热用了效果如何?
回复 支持 反对

使用道具 举报

0

收听

3

听众

28

帖子

E粉新人

注册时间
2015-1-21
精华
0
发表于 2016-1-4 11:14:32 | 显示全部楼层
风管机是不是要装在吊顶里面啊,那岂不是会显得房子很矮吗?不太懂,请大家指点
回复 支持 反对

使用道具 举报

1

收听

9

听众

5117

帖子

E粉明星

注册时间
2009-11-24
精华
0

室内装饰设计QQ243160571

QQ
发表于 2016-1-4 14:37:46 | 显示全部楼层
wll2014 发表于 2016-1-4 11:14
风管机是不是要装在吊顶里面啊,那岂不是会显得房子很矮吗?不太懂,请大家指点

至少30公分的吊顶,但可以只做边吊,好好规整下,不会压抑的
东盛装饰  您身边的装修专家!
地址:光彩四期烩街公寓6楼(光彩大舞台隔壁)
电话:13625565176   5200845
回复 支持 反对

使用道具 举报

您需要登录后才可以回帖 登录 | 注册

本版积分规则

联系合作|手机版|手机APP|Archiver|

GMT+8, 2025-12-12 02:18 Powered by Discuz! X3.4

安庆E网生活网站 © 2001-2013 Comsenz Inc. ( 皖ICP备05012696号 )

QQ

安庆瑞易文化 地址:华茂1958-C7栋 联系电话:0556-5306667 联系邮箱:17779721@qq.com 互联网违法和不良信息举报电话和邮箱:0556-5306667 17779721@qq.com

皖公网安备 34080002000101号

    
快速回复 返回顶部 返回列表