安庆E网

搜索
楼主: 518

[装修日记] 【滨江至尊】+【天猫家装e站】=硬装结束

  [复制链接]

0

收听

1

听众

294

帖子

E粉明星

注册时间
2015-5-21
精华
1
 楼主| 发表于 2016-3-3 09:57:36 | 显示全部楼层
1918 发表于 2016-3-2 16:11
看图片,家装e站还是不错的,期待后续进展。

嗯,目前看还不错,希望后面会更好
回复 支持 反对

使用道具 举报

0

收听

1

听众

294

帖子

E粉明星

注册时间
2015-5-21
精华
1
 楼主| 发表于 2016-3-3 11:03:37 | 显示全部楼层
木工昨天已经进场了,使用的是千年舟的无荃石膏板,顶面框架已经搞好了
QQ图片20160303110309.jpg
吊顶材料图.jpg
回复 支持 反对

使用道具 举报

2

收听

1

听众

211

帖子

认证商家

注册时间
2013-7-24
精华
0
发表于 2016-3-3 11:36:41 | 显示全部楼层
518 发表于 2016-3-3 11:03
木工昨天已经进场了,使用的是千年舟的无荃石膏板,顶面框架已经搞好了

这木方跟顶面就一个劲的用射灯猛塞??? X1{E0DU2Q[DU0U83T1DS0.jpg
回复 支持 反对

使用道具 举报

0

收听

1

听众

294

帖子

E粉明星

注册时间
2015-5-21
精华
1
 楼主| 发表于 2016-3-7 20:52:59 | 显示全部楼层
习惯&就好 发表于 2016-3-3 11:36
这木方跟顶面就一个劲的用射灯猛塞???

您的意思是说没有使用膨胀螺丝吧?那天去看的时候,师傅不在,我拍的是半成品,第二天加了膨胀螺丝了,谢谢您的关注和提醒
回复 支持 反对

使用道具 举报

0

收听

1

听众

294

帖子

E粉明星

注册时间
2015-5-21
精华
1
 楼主| 发表于 2016-3-7 21:08:25 | 显示全部楼层
一到周末就拖延。。。补上上周四拍的照片。
QQ图片20160307210435_副本.jpg
回复 支持 反对

使用道具 举报

0

收听

1

听众

294

帖子

E粉明星

注册时间
2015-5-21
精华
1
 楼主| 发表于 2016-3-7 21:14:10 | 显示全部楼层
本帖最后由 518 于 2016-3-7 21:18 编辑

上周四过去看吊顶的时候,发现厨房和卫生间的线路图进行了标识
标识.jpg
回复 支持 反对

使用道具 举报

0

收听

1

听众

294

帖子

E粉明星

注册时间
2015-5-21
精华
1
 楼主| 发表于 2016-3-7 21:45:33 | 显示全部楼层
今天上午去房子里看了一下,吊顶已经完工
吊顶.jpg
回复 支持 反对

使用道具 举报

0

收听

8

听众

735

帖子

E网小编

注册时间
2014-10-14
精华
37
发表于 2016-3-8 11:45:35 | 显示全部楼层
可以参加报名16年装修日记大赛!
回复 支持 反对

使用道具 举报

1

收听

1

听众

219

帖子

未认证商家

注册时间
2015-11-22
精华
0
发表于 2016-3-8 14:07:09 | 显示全部楼层
恭喜恭喜
安徽君澜装饰
手机:15105563933
电话:0556-5545899
Q  Q/微信:1132225577
地址:皖江大道绿地LOFT 1#楼6层
回复

使用道具 举报

0

收听

1

听众

294

帖子

E粉明星

注册时间
2015-5-21
精华
1
 楼主| 发表于 2016-3-9 08:39:23 | 显示全部楼层
E网小风 发表于 2016-3-8 11:45
可以参加报名16年装修日记大赛!

已报名,请审核
回复 支持 反对

使用道具 举报

0

收听

1

听众

294

帖子

E粉明星

注册时间
2015-5-21
精华
1
 楼主| 发表于 2016-3-9 08:39:44 | 显示全部楼层

谢谢,祝生意兴隆~
回复 支持 反对

使用道具 举报

0

收听

1

听众

294

帖子

E粉明星

注册时间
2015-5-21
精华
1
 楼主| 发表于 2016-3-9 17:22:02 | 显示全部楼层
油漆进场准备工作~
客厅地砖上面铺了一层红地毯,貌似是全新的,任性
红地毯.jpg
回复 支持 反对

使用道具 举报

0

收听

1

听众

294

帖子

E粉明星

注册时间
2015-5-21
精华
1
 楼主| 发表于 2016-3-10 20:17:07 | 显示全部楼层
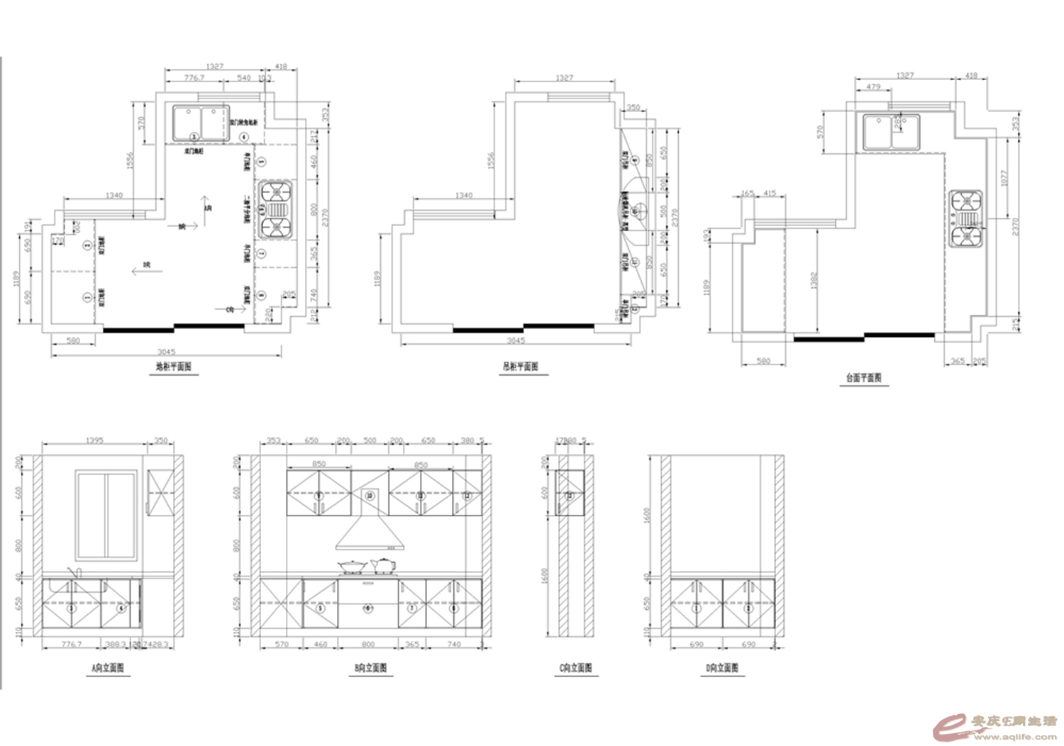
这几天项目经理、设计师在忙着联系厂家量尺寸、出图纸。
橱柜图纸雏形:
橱柜图纸_副本.jpg
回复 支持 反对

使用道具 举报

0

收听

1

听众

294

帖子

E粉明星

注册时间
2015-5-21
精华
1
 楼主| 发表于 2016-3-14 19:00:35 | 显示全部楼层
周末拖延症再度来袭
针对橱柜图纸,提了几点要求:
1.灶台右移,左边至少留800
2.460的做抽屉
3.365不要隔板
4.右侧操作台宽度改成600的
5.在柜子角落塞上防尘三角
6.水槽柜体的几个开孔处用铝箔纸包边
7.台盆要用台下盆
8.水槽下面贴防水铝箔
9.燃气灶安装处,底下有层板子隔着
10.底部踢脚线能用金属不锈钢
11.每个柜子之间都是单独封闭
回复 支持 反对

使用道具 举报

0

收听

1

听众

294

帖子

E粉明星

注册时间
2015-5-21
精华
1
 楼主| 发表于 2016-3-14 19:25:52 | 显示全部楼层
这段时间忙,都没时间去房子里看,都是从微信群里了解的动态。
刷墙固
墙固.jpg
回复 支持 反对

使用道具 举报

0

收听

1

听众

294

帖子

E粉明星

注册时间
2015-5-21
精华
1
 楼主| 发表于 2016-3-14 19:27:24 | 显示全部楼层
全墙面挂网,请忽略项目经理诡异的拍照角度

挂网.jpg
回复 支持 反对

使用道具 举报

0

收听

1

听众

294

帖子

E粉明星

注册时间
2015-5-21
精华
1
 楼主| 发表于 2016-3-15 11:36:32 | 显示全部楼层
刷墙材料
刷墙材料.jpg
回复

使用道具 举报

0

收听

1

听众

294

帖子

E粉明星

注册时间
2015-5-21
精华
1
 楼主| 发表于 2016-3-15 11:37:17 | 显示全部楼层
墙面第一遍处理
墙面处理.jpg
回复 支持 反对

使用道具 举报

0

收听

1

听众

294

帖子

E粉明星

注册时间
2015-5-21
精华
1
 楼主| 发表于 2016-3-15 19:24:31 | 显示全部楼层
柜子定制图
儿童房衣柜.jpg
酒柜.jpg
鞋柜.jpg
次卧衣柜.jpg
主卧室衣柜.jpg
回复 支持 反对

使用道具 举报

0

收听

1

听众

294

帖子

E粉明星

注册时间
2015-5-21
精华
1
 楼主| 发表于 2016-3-16 15:02:32 | 显示全部楼层
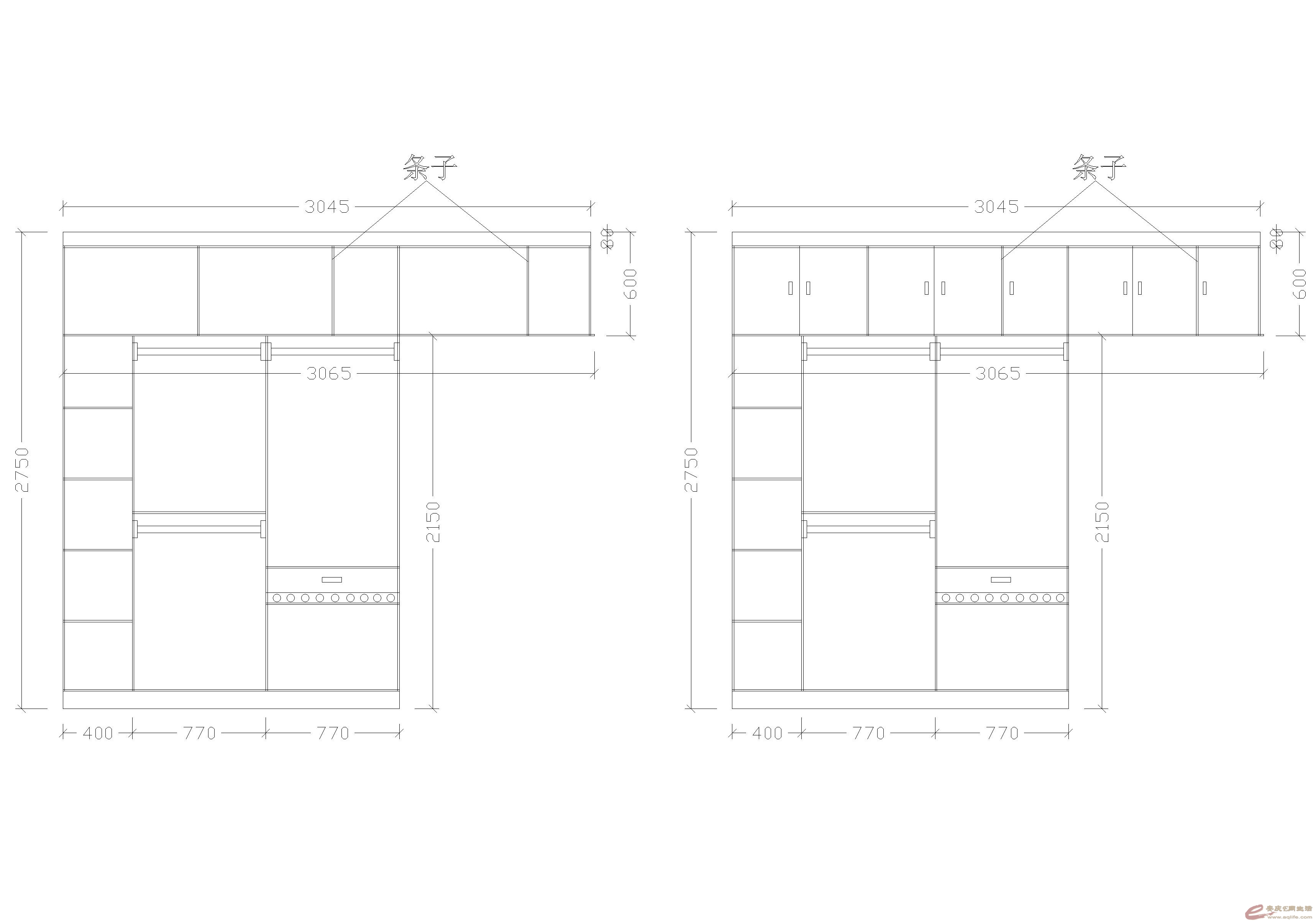
在和设计师檀军(子虫)的商量后,对柜子内部空间进行了调整
柜子.png
回复 支持 反对

使用道具 举报

0

收听

1

听众

294

帖子

E粉明星

注册时间
2015-5-21
精华
1
 楼主| 发表于 2016-3-17 15:43:49 | 显示全部楼层
地固,不用说,又是丘直拍的照
地固.jpg
回复 支持 反对

使用道具 举报

0

收听

1

听众

294

帖子

E粉明星

注册时间
2015-5-21
精华
1
 楼主| 发表于 2016-3-18 09:39:58 | 显示全部楼层
本帖最后由 518 于 2016-3-22 10:08 编辑

昨天去房子里时,刚好碰到订做柜子的厂家在核对尺寸,今天已经开始生产了。
选择的是千年舟E0级的板材,鞋柜和酒柜是红橡(马六甲)千年舟,衣柜是杰佳橡木(杉木)千年舟
板材.jpg
回复 支持 反对

使用道具 举报

0

收听

1

听众

294

帖子

E粉明星

注册时间
2015-5-21
精华
1
 楼主| 发表于 2016-3-22 10:15:24 | 显示全部楼层
阳台封好了
封阳台.jpg
回复 支持 反对

使用道具 举报

头像被屏蔽

0

收听

1

听众

17

帖子

禁止发言

注册时间
2016-3-22
精华
0
发表于 2016-3-22 13:07:33 | 显示全部楼层
提示: 作者被禁止或删除 内容自动屏蔽
回复 支持 反对

使用道具 举报

0

收听

1

听众

294

帖子

E粉明星

注册时间
2015-5-21
精华
1
 楼主| 发表于 2016-3-23 16:42:29 | 显示全部楼层
请设计师子虫把我家的每个空间的大小标示出来了,这样买家具也方便些
QQ图片20160323164458.png
回复 支持 反对

使用道具 举报

您需要登录后才可以回帖 登录 | 注册

本版积分规则

联系合作|手机版|手机APP|Archiver|

GMT+8, 2025-12-11 04:47 Powered by Discuz! X3.4

安庆E网生活网站 © 2001-2013 Comsenz Inc. ( 皖ICP备05012696号 )

QQ

安庆瑞易文化 地址:华茂1958-C7栋 联系电话:0556-5306667 联系邮箱:17779721@qq.com 互联网违法和不良信息举报电话和邮箱:0556-5306667 17779721@qq.com

皖公网安备 34080002000101号

    
快速回复 返回顶部 返回列表