安庆E网

搜索
查看: 5326|回复: 55

[设计交流] 安庆东方丽景二期135平顶层小复式三房设计案例

[复制链接]

0

收听

2

听众

107

帖子

认证商家

注册时间
2014-8-6
精华
0
发表于 2016-1-3 16:24:22 | 显示全部楼层 |阅读模式
本帖最后由 何工设计工作室 于 2016-1-12 19:25 编辑

本地地址:安庆东方丽景二期装修性质:私装
装修造价:不包含家具电器类约18万左右.
设计单位:安庆何敏设计工作室
设计风格:现代简约
工作室介绍:我们是一家以室内外纯设计为主设计工作室,我们是一种“设计+施工跟踪+后期配饰” 而不同于装饰公司以及“马路游击队”的全新装修方式!
联系方式:QQ,359808145 手机,18055667978李 18055667977何



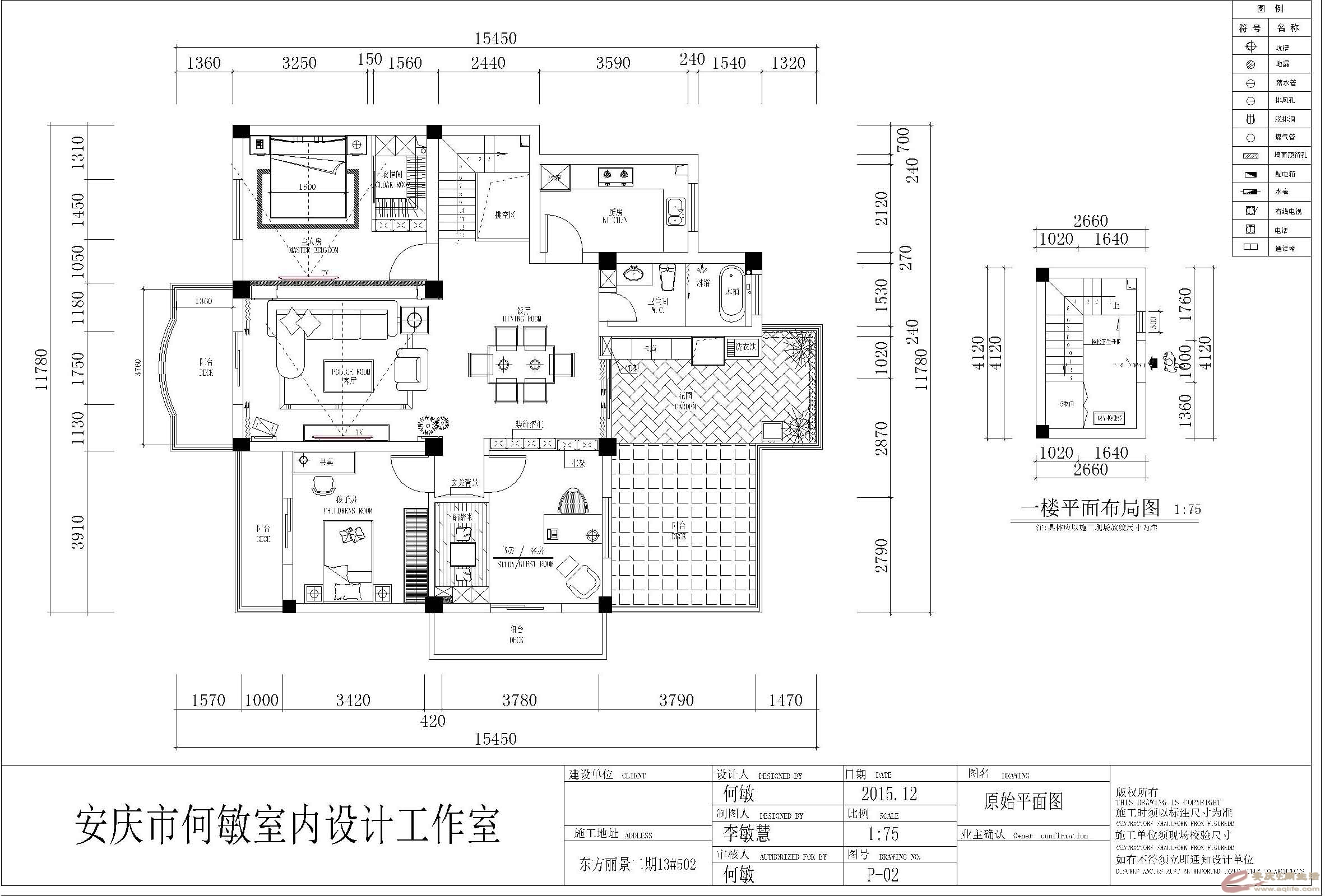
原始平面图

原始平面图

平面布局图

平面布局图

客厅全景

客厅全景

沙发背景墙

沙发背景墙

TV背景墙

TV背景墙

餐厅全景

餐厅全景

餐厅全景1

餐厅全景1

餐厅全景2

餐厅全景2

一楼入户

一楼入户

书房

书房

书房1

书房1
回复

使用道具 举报

2

收听

24

听众

1951

帖子

E粉明星

注册时间
2010-8-8
精华
0
发表于 2016-1-3 19:34:26 | 显示全部楼层
此帖仅作者可见

使用道具 举报

2

收听

24

听众

1951

帖子

E粉明星

注册时间
2010-8-8
精华
0
发表于 2016-1-3 19:36:13 | 显示全部楼层
此帖仅作者可见

使用道具 举报

2

收听

24

听众

1951

帖子

E粉明星

注册时间
2010-8-8
精华
0
发表于 2016-1-3 19:40:11 | 显示全部楼层
此帖仅作者可见

使用道具 举报

0

收听

2

听众

107

帖子

认证商家

注册时间
2014-8-6
精华
0
 楼主| 发表于 2016-1-3 23:59:16 | 显示全部楼层
此帖仅作者可见

使用道具 举报

0

收听

2

听众

107

帖子

认证商家

注册时间
2014-8-6
精华
0
 楼主| 发表于 2016-1-4 00:06:34 | 显示全部楼层
此帖仅作者可见

使用道具 举报

0

收听

2

听众

107

帖子

认证商家

注册时间
2014-8-6
精华
0
 楼主| 发表于 2016-1-4 00:11:06 | 显示全部楼层
此帖仅作者可见

使用道具 举报

2

收听

24

听众

1951

帖子

E粉明星

注册时间
2010-8-8
精华
0
发表于 2016-1-4 00:50:05 | 显示全部楼层
此帖仅作者可见

使用道具 举报

0

收听

2

听众

107

帖子

认证商家

注册时间
2014-8-6
精华
0
 楼主| 发表于 2016-1-4 10:28:43 | 显示全部楼层
此帖仅作者可见

使用道具 举报

0

收听

2

听众

107

帖子

认证商家

注册时间
2014-8-6
精华
0
 楼主| 发表于 2016-1-4 11:12:31 | 显示全部楼层
此帖仅作者可见

使用道具 举报

0

收听

2

听众

57

帖子

E粉新人

注册时间
2015-5-29
精华
0
发表于 2016-1-4 11:14:53 | 显示全部楼层
此帖仅作者可见

使用道具 举报

0

收听

0

听众

1

帖子

E粉新人

注册时间
2016-1-4
精华
0
发表于 2016-1-4 11:34:05 | 显示全部楼层
此帖仅作者可见

使用道具 举报

1

收听

9

听众

5117

帖子

E粉明星

注册时间
2009-11-24
精华
0

室内装饰设计QQ243160571

QQ
发表于 2016-1-4 14:35:49 | 显示全部楼层
此帖仅作者可见
东盛装饰  您身边的装修专家!
地址:光彩四期烩街公寓6楼(光彩大舞台隔壁)
电话:13625565176   5200845

使用道具 举报

2

收听

24

听众

1951

帖子

E粉明星

注册时间
2010-8-8
精华
0
发表于 2016-1-4 18:07:52 | 显示全部楼层
此帖仅作者可见

使用道具 举报

2

收听

24

听众

1951

帖子

E粉明星

注册时间
2010-8-8
精华
0
发表于 2016-1-4 18:14:52 | 显示全部楼层
此帖仅作者可见

使用道具 举报

2

收听

24

听众

1951

帖子

E粉明星

注册时间
2010-8-8
精华
0
发表于 2016-1-4 18:16:07 | 显示全部楼层
此帖仅作者可见

使用道具 举报

2

收听

24

听众

1951

帖子

E粉明星

注册时间
2010-8-8
精华
0
发表于 2016-1-5 11:23:44 | 显示全部楼层
此帖仅作者可见

使用道具 举报

2

收听

24

听众

1951

帖子

E粉明星

注册时间
2010-8-8
精华
0
发表于 2016-1-5 11:26:13 | 显示全部楼层
此帖仅作者可见

使用道具 举报

2

收听

24

听众

1951

帖子

E粉明星

注册时间
2010-8-8
精华
0
发表于 2016-1-5 11:32:58 | 显示全部楼层
此帖仅作者可见

使用道具 举报

2

收听

24

听众

1951

帖子

E粉明星

注册时间
2010-8-8
精华
0
发表于 2016-1-5 11:55:09 | 显示全部楼层
此帖仅作者可见

使用道具 举报

2

收听

24

听众

1951

帖子

E粉明星

注册时间
2010-8-8
精华
0
发表于 2016-1-5 11:55:48 | 显示全部楼层
此帖仅作者可见

使用道具 举报

3

收听

3

听众

1995

帖子

贵宾E粉

注册时间
2005-7-22
精华
4
发表于 2016-1-5 12:11:20 | 显示全部楼层
此帖仅作者可见

使用道具 举报

头像被屏蔽

2

收听

24

听众

1951

帖子

E粉明星

注册时间
2010-8-8
精华
0
发表于 2016-1-6 11:24:32 | 显示全部楼层
提示: 该帖被管理员或版主屏蔽

使用道具 举报

头像被屏蔽

2

收听

24

听众

1951

帖子

E粉明星

注册时间
2010-8-8
精华
0
发表于 2016-1-6 11:31:02 | 显示全部楼层
提示: 该帖被管理员或版主屏蔽

使用道具 举报

头像被屏蔽

2

收听

24

听众

1951

帖子

E粉明星

注册时间
2010-8-8
精华
0
发表于 2016-1-6 14:51:55 | 显示全部楼层
提示: 该帖被管理员或版主屏蔽

使用道具 举报

您需要登录后才可以回帖 登录 | 注册

本版积分规则

联系合作|手机版|手机APP|Archiver|

GMT+8, 2025-12-10 16:39 Powered by Discuz! X3.4

安庆E网生活网站 © 2001-2013 Comsenz Inc. ( 皖ICP备05012696号 )

QQ

安庆瑞易文化 地址:华茂1958-C7栋 联系电话:0556-5306667 联系邮箱:17779721@qq.com 互联网违法和不良信息举报电话和邮箱:0556-5306667 17779721@qq.com

皖公网安备 34080002000101号

    
快速回复 返回顶部 返回列表