安庆E网

搜索
查看: 4169|回复: 6

[设计交流] 建筑面积47 这个户型怎么搞?

[复制链接]

2

收听

24

听众

1951

帖子

E粉明星

注册时间
2010-8-8
精华
0
发表于 2016-1-12 11:25:44 | 显示全部楼层 |阅读模式
三代5口人       老人一对 一对夫妻带一个8岁男孩
1.jpg
回复

使用道具 举报

0

收听

4

听众

487

帖子

E粉明星

注册时间
2010-3-27
精华
0
发表于 2016-1-12 11:27:33 | 显示全部楼层
隔成2室一厅一厨一卫

点评

你往后看  发表于 2016-1-12 11:31
回复 支持 反对

使用道具 举报

0

收听

4

听众

487

帖子

E粉明星

注册时间
2010-3-27
精华
0
发表于 2016-1-12 11:27:53 | 显示全部楼层
厨房就做成开放式的

点评

感谢你的热情  发表于 2016-1-12 11:33
回复 支持 反对

使用道具 举报

2

收听

24

听众

1951

帖子

E粉明星

注册时间
2010-8-8
精华
0
 楼主| 发表于 2016-1-12 11:28:22 | 显示全部楼层
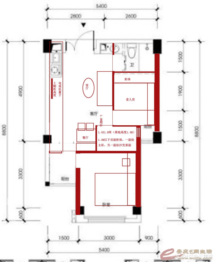
这是一些爱好者的草案
2.jpg
4.jpg
5.jpg
6.jpg
3.jpg
回复 支持 反对

使用道具 举报

2

收听

24

听众

1951

帖子

E粉明星

注册时间
2010-8-8
精华
0
 楼主| 发表于 2016-1-12 11:30:08 | 显示全部楼层
这是我经典草案
7.jpg
回复 支持 反对

使用道具 举报

您需要登录后才可以回帖 登录 | 注册

本版积分规则

联系合作|手机版|手机APP|Archiver|

GMT+8, 2025-12-10 19:03 Powered by Discuz! X3.4

安庆E网生活网站 © 2001-2013 Comsenz Inc. ( 皖ICP备05012696号 )

QQ

安庆瑞易文化 地址:华茂1958-C7栋 联系电话:0556-5306667 联系邮箱:17779721@qq.com 互联网违法和不良信息举报电话和邮箱:0556-5306667 17779721@qq.com

皖公网安备 34080002000101号

    
快速回复 返回顶部 返回列表