安庆E网

搜索
查看: 80005|回复: 98

[装修日记] 秀水华庭小窝装修记(巧夫人橱柜、衣柜安装完毕)

  [复制链接]

2

收听

2

听众

583

帖子

E粉明星

注册时间
2005-8-22
精华
0

发表于 2016-3-16 16:00:04 www.aqlife.com | 显示全部楼层 |阅读模式
本帖最后由 第四晚心情 于 2016-6-5 12:56 编辑

看了E网装修讨论帖,许多网友日记写的非常仔细,学习了许多知识;年后将小窝装修作为主要工作,简单的记录下来,和大家一起分享、讨论。

评分

参与人数 1鲜花 +1 收起 理由
馨福家装饰 + 1 为了让安庆更好,我来加分

查看全部评分

回复

使用道具 举报

2

收听

2

听众

583

帖子

E粉明星

注册时间
2005-8-22
精华
0

 楼主| 发表于 2016-3-16 16:04:32 www.aqlife.com | 显示全部楼层
简单点,上图
image.jpeg
回复 支持 反对

使用道具 举报

2

收听

2

听众

583

帖子

E粉明星

注册时间
2005-8-22
精华
0

 楼主| 发表于 2016-3-16 16:11:22 www.aqlife.com | 显示全部楼层
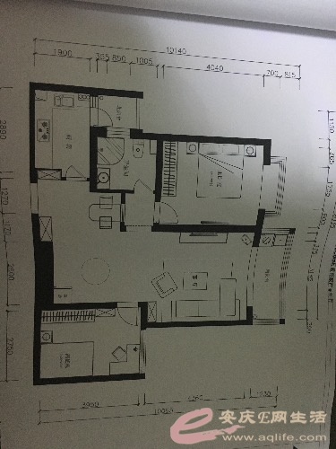
房子面积:106
装修公司:大维装饰
设计师:王美女
风格:简约、美式
image.jpeg
image.jpeg
image.jpeg
回复 支持 反对

使用道具 举报

3

收听

12

听众

2040

帖子

认证商家

注册时间
2009-5-5
精华
0
发表于 2016-3-16 16:20:23 | 显示全部楼层
祝楼主装修顺利!
地址:一店:光彩四期E区13栋56号 服务热线:5309299;二店:光彩博览中心2楼37号电话:5299809
回复 支持 反对

使用道具 举报

2

收听

2

听众

583

帖子

E粉明星

注册时间
2005-8-22
精华
0

 楼主| 发表于 2016-3-16 16:20:44 www.aqlife.com | 显示全部楼层
二月初二,开工啦!
image.jpeg
回复 支持 反对

使用道具 举报

3

收听

12

听众

2040

帖子

认证商家

注册时间
2009-5-5
精华
0
发表于 2016-3-16 16:21:51 | 显示全部楼层
这个地板效果很好!
地址:一店:光彩四期E区13栋56号 服务热线:5309299;二店:光彩博览中心2楼37号电话:5299809
回复 支持 反对

使用道具 举报

2

收听

2

听众

583

帖子

E粉明星

注册时间
2005-8-22
精华
0

 楼主| 发表于 2016-3-16 16:28:09 www.aqlife.com | 显示全部楼层
这几天简单,砸墙、砌墙,明天水电定位、开槽。
image.jpeg
image.jpeg
image.jpeg
回复 支持 反对

使用道具 举报

3

收听

71

听众

1万

帖子

超级版主

注册时间
2004-12-8
精华
287

情多累美人

公益义工

QQ
发表于 2016-3-16 20:22:01 | 显示全部楼层
欢迎报名安庆E网装修日记大奖赛:请点击下帖报名

2016年E网第七届“顶固衣柜”杯装修日记超级大奖赛!开始了!!!
http://www.aqlife.com/forum.php?mod=viewthread&tid=2021591&extra=page%3D1


曾因酒醉鞭名马,生怕情多累美人……℡易随飞ooO…………18955600753
回复 支持 反对

使用道具 举报

2

收听

2

听众

583

帖子

E粉明星

注册时间
2005-8-22
精华
0

 楼主| 发表于 2016-3-16 22:26:47 | 显示全部楼层
易随飞 发表于 2016-3-16 20:22
欢迎报名安庆E网装修日记大奖赛:请点击下帖报名

2016年E网第七届“顶固衣柜”杯装修日记超级大奖赛!开 ...

已经报名啦,谢谢!
回复 支持 反对

使用道具 举报

2

收听

2

听众

583

帖子

E粉明星

注册时间
2005-8-22
精华
0

 楼主| 发表于 2016-3-16 22:27:51 www.aqlife.com | 显示全部楼层
安庆久盛地板 发表于 2016-3-16 16:20
祝楼主装修顺利!

谢谢!
回复 支持 反对

使用道具 举报

9

收听

15

听众

825

帖子

E粉明星

注册时间
2012-9-24
精华
4
发表于 2016-3-17 08:52:42 | 显示全部楼层
祝楼主装修大吉!
上善若水 厚德载物
回复 支持 反对

使用道具 举报

1

收听

1

听众

219

帖子

未认证商家

注册时间
2015-11-22
精华
0
发表于 2016-3-17 09:15:30 | 显示全部楼层
装修大吉   恭喜恭喜
安徽君澜装饰
手机:15105563933
电话:0556-5545899
Q  Q/微信:1132225577
地址:皖江大道绿地LOFT 1#楼6层
回复 支持 0 反对 1

使用道具 举报

2

收听

2

听众

583

帖子

E粉明星

注册时间
2005-8-22
精华
0

 楼主| 发表于 2016-3-17 10:49:36 www.aqlife.com | 显示全部楼层
今天一早设计师、监理及水电师傅去房子确定水电位置,水走顶,可怜我的阳台不能进热水管了,师傅说留个小厨宝位置。
image.jpeg
回复 支持 反对

使用道具 举报

头像被屏蔽

0

收听

1

听众

459

帖子

禁止发言

注册时间
2015-9-18
精华
0
QQ
发表于 2016-3-17 14:30:03 | 显示全部楼层
提示: 作者被禁止或删除 内容自动屏蔽
签名被屏蔽
回复 支持 反对

使用道具 举报

0

收听

2

听众

7

帖子

E粉新人

注册时间
2016-3-13
精华
0
发表于 2016-3-18 12:42:44 www.aqlife.com | 显示全部楼层
恭喜楼主装修大吉
回复 支持 反对

使用道具 举报

2

收听

2

听众

583

帖子

E粉明星

注册时间
2005-8-22
精华
0

 楼主| 发表于 2016-3-18 16:24:30 www.aqlife.com | 显示全部楼层
厨房外的北阳台,小小面积,纠结该怎么弄,是把原来的墙面铲掉贴砖还是只铺地面呢……
image.jpeg
回复 支持 反对

使用道具 举报

2

收听

2

听众

583

帖子

E粉明星

注册时间
2005-8-22
精华
0

 楼主| 发表于 2016-3-23 11:44:05 www.aqlife.com | 显示全部楼层
周末小区要求无声作业,水电进展缓慢,大维公司送水管、电线,如图…
image.jpeg
image.jpeg
image.jpeg
image.jpeg
image.jpeg
image.jpeg
image.jpeg
image.jpeg
回复 支持 反对

使用道具 举报

2

收听

2

听众

583

帖子

E粉明星

注册时间
2005-8-22
精华
0

 楼主| 发表于 2016-3-23 11:56:54 www.aqlife.com | 显示全部楼层
今天急要强弱电箱,只好在实体店购买了,强电箱:鸿雁-15组白色配电箱,弱点:鸿雁-5u光纤箱,共325大洋。
image.jpeg
回复 支持 反对

使用道具 举报

2

收听

2

听众

583

帖子

E粉明星

注册时间
2005-8-22
精华
0

 楼主| 发表于 2016-3-26 13:15:56 www.aqlife.com | 显示全部楼层
水电基本完成了,下午伟星管业水压测试,明天大维公司验收水电,周一进瓦工了。
image.jpeg
image.jpeg
image.jpeg
image.jpeg
image.jpeg
回复 支持 反对

使用道具 举报

2

收听

2

听众

583

帖子

E粉明星

注册时间
2005-8-22
精华
0

 楼主| 发表于 2016-3-26 14:47:59 www.aqlife.com | 显示全部楼层
再来几张
image.jpeg
image.jpeg
image.jpeg
回复

使用道具 举报

2

收听

2

听众

583

帖子

E粉明星

注册时间
2005-8-22
精华
0

 楼主| 发表于 2016-3-26 14:49:08 www.aqlife.com | 显示全部楼层
接上
image.jpeg
image.jpeg
回复

使用道具 举报

2

收听

2

听众

583

帖子

E粉明星

注册时间
2005-8-22
精华
0

 楼主| 发表于 2016-3-27 14:22:02 www.aqlife.com | 显示全部楼层
周日,伟星管业来试水压,加压1Mpa,稳压20分钟,压力下降0.01Mpa,说是正常范围。大维公司现场拍摄水路及电路图做光盘给我们,水电部分基本结束,给为我们精心工作的水电师傅吴师傅点赞,很细心、专业!水电验收,按合同约定下午缴纳下一部分装修费用。明天瓦工师傅进场,大维装饰公司,加油哦!
image.jpeg
image.jpeg
image.jpeg
回复 支持 反对

使用道具 举报

2

收听

2

听众

583

帖子

E粉明星

注册时间
2005-8-22
精华
0

 楼主| 发表于 2016-3-27 14:28:14 www.aqlife.com | 显示全部楼层
橱柜、衣柜及鞋柜在巧夫人家定制,水电进场交代水电位置、测量尺寸,水电结束进行第二次测量、下单。
image.jpeg
回复 支持 反对

使用道具 举报

2

收听

2

听众

583

帖子

E粉明星

注册时间
2005-8-22
精华
0

 楼主| 发表于 2016-3-27 20:00:54 www.aqlife.com | 显示全部楼层
家里四扇门定好了,将近7000元,可是没有考虑到几个窗套、门套,一起定的话价格不菲,严重超支,大家有什么好办法把这一块费用省省
回复 支持 反对

使用道具 举报

2

收听

2

听众

583

帖子

E粉明星

注册时间
2005-8-22
精华
0

 楼主| 发表于 2016-3-30 23:35:16 www.aqlife.com | 显示全部楼层
瓦工进场两天,装修进展缓慢。
image.jpeg
image.jpeg
image.jpeg
回复 支持 反对

使用道具 举报

您需要登录后才可以回帖 登录 | 注册

本版积分规则

联系合作|手机版|手机APP|Archiver|

GMT+8, 2025-12-10 21:24 Powered by Discuz! X3.4

安庆E网生活网站 © 2001-2013 Comsenz Inc. ( 皖ICP备05012696号 )

QQ

安庆瑞易文化 地址:华茂1958-C7栋 联系电话:0556-5306667 联系邮箱:17779721@qq.com 互联网违法和不良信息举报电话和邮箱:0556-5306667 17779721@qq.com

皖公网安备 34080002000101号

    
快速回复 返回顶部 返回列表