安庆E网

搜索
查看: 4156|回复: 1

[设计交流] 东湖一品现代美式风

[复制链接]

0

收听

2

听众

107

帖子

认证商家

注册时间
2014-8-6
精华
0
发表于 2016-3-20 13:02:13 | 显示全部楼层 |阅读模式
本帖最后由 何工设计工作室 于 2016-3-28 18:20 编辑

本地地址:安庆东湖一品 装修性质:私装
设计单位:何敏设计工作室
设计风格:美式风格
工作室介绍:我们是一家以室内外纯设计为主设计工作室,我们是一种“设计+施工跟踪+后期配饰” 而不同于装饰公司以及“马路游击队”的全新装修方式!
联系方式:QQ,3168615558手机,18055667978李 18055667977何

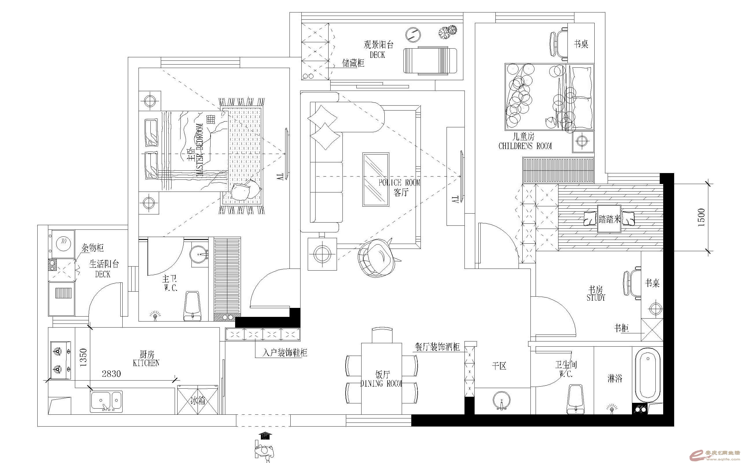
平面布局图

平面布局图

客厅

客厅

客厅

客厅

客厅

客厅

入户

入户

主卧

主卧

主卧

主卧

主卧

主卧

主卧

主卧

次卧

次卧

书房

书房
回复

使用道具 举报

0

收听

1

听众

25

帖子

E粉新人

注册时间
2016-3-21
精华
0
QQ
发表于 2016-3-22 13:15:18 | 显示全部楼层
此帖仅作者可见

使用道具 举报

您需要登录后才可以回帖 登录 | 注册

本版积分规则

联系合作|手机版|手机APP|Archiver|

GMT+8, 2025-12-10 15:32 Powered by Discuz! X3.4

安庆E网生活网站 © 2001-2013 Comsenz Inc. ( 皖ICP备05012696号 )

QQ

安庆瑞易文化 地址:华茂1958-C7栋 联系电话:0556-5306667 联系邮箱:17779721@qq.com 互联网违法和不良信息举报电话和邮箱:0556-5306667 17779721@qq.com

皖公网安备 34080002000101号

    
快速回复 返回顶部 返回列表