安庆E网

搜索
查看: 5313|回复: 13

[设计交流] 空间布局,再次修改方案

[复制链接]
头像被屏蔽

0

收听

1

听众

56

帖子

禁止访问

注册时间
2013-6-1
精华
0
发表于 2016-3-20 16:43:26 | 显示全部楼层 |阅读模式
提示: 作者被禁止或删除 内容自动屏蔽
回复

使用道具 举报

2

收听

1

听众

211

帖子

认证商家

注册时间
2013-7-24
精华
0
发表于 2016-3-20 17:50:45 | 显示全部楼层
拓者吧也是你发的吧!!!
回复 支持 反对

使用道具 举报

头像被屏蔽

0

收听

1

听众

56

帖子

禁止访问

注册时间
2013-6-1
精华
0
 楼主| 发表于 2016-3-21 09:53:29 | 显示全部楼层
提示: 作者被禁止或删除 内容自动屏蔽
回复 支持 反对

使用道具 举报

头像被屏蔽

0

收听

1

听众

56

帖子

禁止访问

注册时间
2013-6-1
精华
0
 楼主| 发表于 2016-3-21 11:56:32 | 显示全部楼层
提示: 作者被禁止或删除 内容自动屏蔽
回复 支持 反对

使用道具 举报

1

收听

1

听众

61

帖子

E粉新人

注册时间
2016-2-27
精华
0
发表于 2016-3-21 12:11:26 | 显示全部楼层
你是业主还是公司,如果是业主可以直接联系我们公司
公司网址:www.ahjb668.com
E-mail:179121134@qq.com
公司电话:13855693916   15391929168
公司地址:宜秀区兴业路远达大楼
回复 支持 反对

使用道具 举报

头像被屏蔽

0

收听

1

听众

56

帖子

禁止访问

注册时间
2013-6-1
精华
0
 楼主| 发表于 2016-3-21 15:32:59 | 显示全部楼层
提示: 作者被禁止或删除 内容自动屏蔽
回复 支持 反对

使用道具 举报

2

收听

24

听众

1951

帖子

E粉明星

注册时间
2010-8-8
精华
0
发表于 2016-3-21 16:03:28 | 显示全部楼层
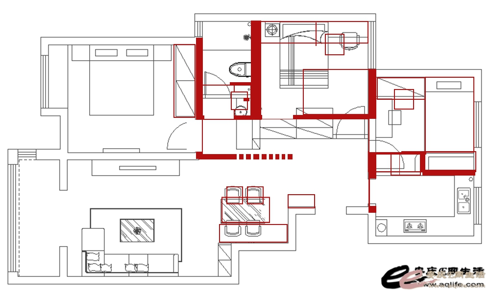
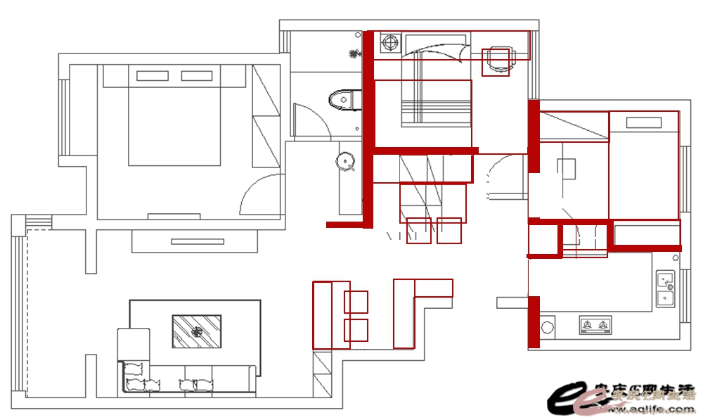
未标题-1.jpg
未标题-2.jpg
回复 支持 反对

使用道具 举报

头像被屏蔽

0

收听

1

听众

56

帖子

禁止访问

注册时间
2013-6-1
精华
0
 楼主| 发表于 2016-3-21 19:41:38 | 显示全部楼层
提示: 作者被禁止或删除 内容自动屏蔽
回复 支持 反对

使用道具 举报

0

收听

1

听众

105

帖子

未认证商家

注册时间
2010-6-2
精华
0
QQ
发表于 2016-3-23 10:47:52 | 显示全部楼层
方案不太好!楼主有待考虑!
新加坡(集团)易百装饰安庆店
承接室内外装饰设计、材料施工、
TEL:13966927552   QQ:365943831
回复 支持 反对

使用道具 举报

头像被屏蔽

0

收听

1

听众

56

帖子

禁止访问

注册时间
2013-6-1
精华
0
 楼主| 发表于 2016-3-23 16:23:08 | 显示全部楼层
提示: 作者被禁止或删除 内容自动屏蔽
回复 支持 反对

使用道具 举报

头像被屏蔽

0

收听

1

听众

56

帖子

禁止访问

注册时间
2013-6-1
精华
0
 楼主| 发表于 2016-3-26 16:24:19 | 显示全部楼层
提示: 作者被禁止或删除 内容自动屏蔽
回复 支持 反对

使用道具 举报

头像被屏蔽

0

收听

1

听众

56

帖子

禁止访问

注册时间
2013-6-1
精华
0
 楼主| 发表于 2016-3-27 09:40:40 | 显示全部楼层
提示: 作者被禁止或删除 内容自动屏蔽
回复 支持 反对

使用道具 举报

2

收听

8

听众

3219

帖子

E粉明星

注册时间
2009-10-21
精华
0
QQ
发表于 2016-3-29 11:46:25 | 显示全部楼层
这房子可变性比较大,设计很重要
低 调 奢 华,品 味 生 活
爱家装饰地址:吾悦广场B-1801-1802室
爱家装饰电话: 15856537787微信
回复 支持 反对

使用道具 举报

0

收听

1

听众

11

帖子

未认证商家

注册时间
2016-5-9
精华
0
发表于 2016-5-11 22:59:58 www.aqlife.com | 显示全部楼层
先找个先生布局!一五零五六六五一八六三
回复 支持 反对

使用道具 举报

您需要登录后才可以回帖 登录 | 注册

本版积分规则

联系合作|手机版|手机APP|Archiver|

GMT+8, 2025-12-13 20:49 Powered by Discuz! X3.4

安庆E网生活网站 © 2001-2013 Comsenz Inc. ( 皖ICP备05012696号 )

QQ

安庆瑞易文化 地址:华茂1958-C7栋 联系电话:0556-5306667 联系邮箱:17779721@qq.com 互联网违法和不良信息举报电话和邮箱:0556-5306667 17779721@qq.com

皖公网安备 34080002000101号

    
快速回复 返回顶部 返回列表