安庆E网

搜索
查看: 11104|回复: 46

[装修招标] 百花亭佳苑3#1405户型96.45m2装修招标,半包!

  [复制链接]

0

收听

5

听众

381

帖子

E粉新星

注册时间
2009-7-8
精华
0
发表于 2016-3-24 09:55:57 | 显示全部楼层 |阅读模式
本帖最后由 集中治理 于 2016-3-24 10:23 编辑

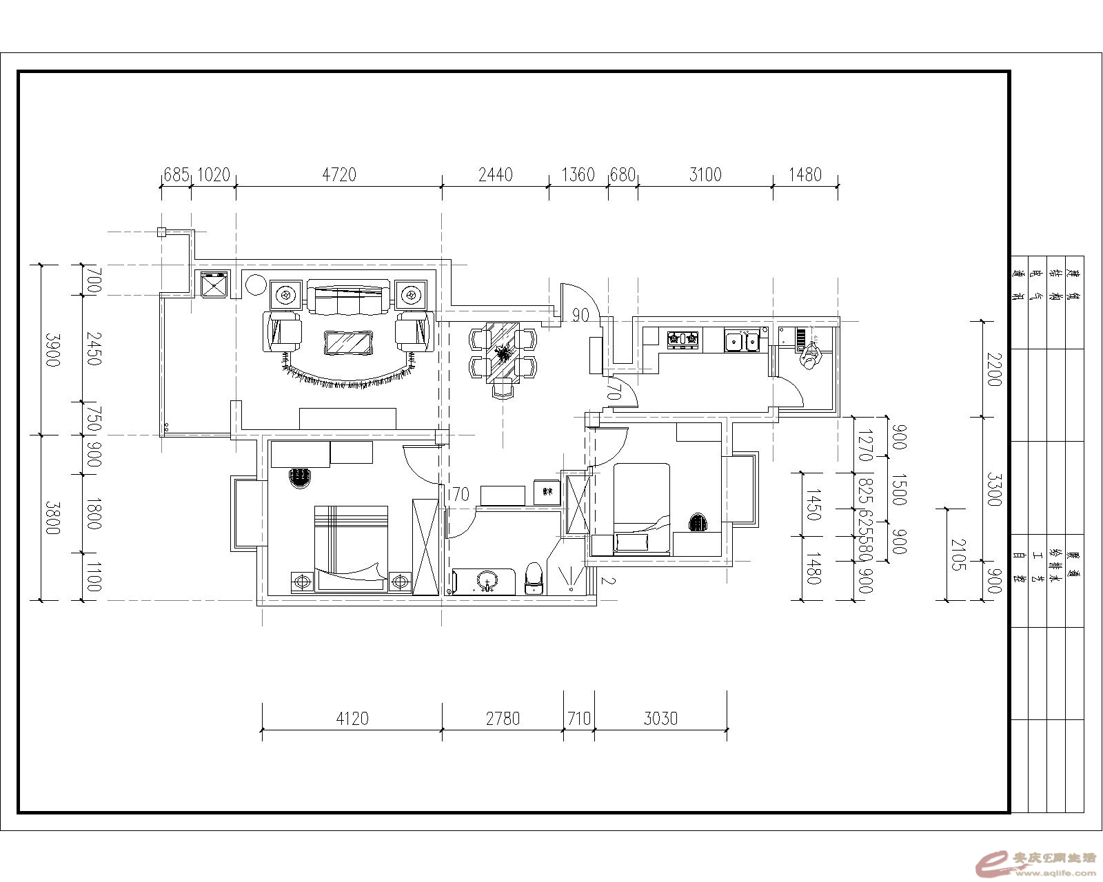
放了快3年了,今年想装了。平面布置我自己都做好了,色调搭配风格脑中也有印象,找了几张想购置的家具的背景定了整个家装的颜色搭配。有做过该户型的设计公司?我想做那种简约,中式家具的。


自己找四大工种也能做得起来啊。现在找清工也很好找,不想费神而已,工价都是死的,多谈多选!施工队也行啊。有施工队的总头目吗,我只想抓住一个人负责就行。
其实半包就是水电主要走顶部,结合吊顶四周的设计布线走管即可
木工打两个柜子,四周做点简单吊顶遮住水电顶层部管就行。
瓦工砌一匹折墙,厨卫贴砖,北阳台四周都是玻璃,只用贴点地砖,南阳台主要也是地砖。
油漆工只要负责刮腻子即可,后期主要贴墙纸或墙布。




平面图

平面图

主卧色调

主卧色调

客厅色调

客厅色调

餐厅色调

餐厅色调

卫生间色调

卫生间色调

厨房色调

厨房色调

点评

楼主您好,我们可以上门给您免费测量做方案及报价,而且我们是先装修后付款,前期不需要任何费用! 公司地址:安庆市宜秀区天柱山东路书香一品小区附2栋2层时馨装饰! 联系电话:5205689,18269720125陈经理  发表于 2016-4-16 16:35
回复

使用道具 举报

1

收听

9

听众

5117

帖子

E粉明星

注册时间
2009-11-24
精华
0

室内装饰设计QQ243160571

QQ
发表于 2016-3-24 10:18:06 | 显示全部楼层
本帖最后由 wjj11192226 于 2016-3-24 10:51 编辑

楼主你好,可以约我们去现场量房然后做预算,我是东盛装饰汪设计师,我的QQ243160571  手机13625565176
东盛装饰  您身边的装修专家!
地址:光彩四期烩街公寓6楼(光彩大舞台隔壁)
电话:13625565176   5200845
回复 支持 反对

使用道具 举报

0

收听

1

听众

422

帖子

未认证商家

注册时间
2016-3-17
精华
0
发表于 2016-3-24 10:33:30 | 显示全部楼层
楼主,你好!希望你能给我一个机会了解我公司做的工地,一定让你满意。

----------------------------------------------
安庆品尚装饰
只做精品工程/超越客户期待
电      话:15385561616(汪工)
QQ/微信:1643696920
地     址:绿地三期北大门口

回复 支持 反对

使用道具 举报

2

收听

24

听众

1951

帖子

E粉明星

注册时间
2010-8-8
精华
0
发表于 2016-3-24 12:17:52 | 显示全部楼层
007.jpg
回复 支持 1 反对 0

使用道具 举报

1

收听

3

听众

61

帖子

E粉新人

注册时间
2016-3-24
精华
0
QQ
发表于 2016-3-24 13:24:46 | 显示全部楼层
本帖最后由 大德智能 于 2016-3-24 13:30 编辑

楼主应该加上家庭智能化产品,比如家庭背景音乐系统,现在不装但是要预留音频线,不然以后想装就装不了。还有水电走线的时候每个开关面板里要走零火线,不能图省事直接并一条火线,这样以后想安装智能家居系统就可以直接换掉以前的开关面板。
全宅智能家居、豪力士智能锁
家庭背景音乐、高端私人影院
电话:8887098  手机:13965802958微信
回复 支持 反对

使用道具 举报

15

收听

1

听众

33

帖子

E粉新人

注册时间
2016-3-19
精华
0
发表于 2016-3-24 14:52:01 | 显示全部楼层
楼主您好,我是华浔品味装饰公司的,3月27日我们在天域花园大酒店有场活动,优惠力度很大,广东总部派资深设计师(曾2次参加过中央台交换空间栏目)前来为你出谋划策,专属定制,为您打造出属于自己最完美理想的家。咨询电话:15867037196 方经理
回复 支持 反对

使用道具 举报

头像被屏蔽

1

收听

2

听众

20

帖子

E粉新人

注册时间
2016-3-23
精华
0
发表于 2016-3-24 14:58:12 | 显示全部楼层
提示: 该帖被管理员或版主屏蔽
签名被屏蔽
回复 支持 反对

使用道具 举报

1

收听

2

听众

473

帖子

未认证商家

注册时间
2010-8-28
精华
0
QQ
发表于 2016-3-24 15:14:33 | 显示全部楼层
您好,我是福星装饰公司的,公司可免费上门量房、现场沟通,设计平面方案图和预算,也可根据您的平面设计方案来预算满意后出效果图,欢迎您的咨询与光临。QQ:14948722 电话:15856576258    0556-8798258

装修找福星 事事都顺心  装饰装修一级资质
地址:安庆市迎江区皖江大道绿地.启航社1号楼4层(恒大绿洲对面交通银行楼上)
电话:15856576258    0556-8798258  QQ:14948722
回复 支持 反对

使用道具 举报

3

收听

12

听众

2040

帖子

认证商家

注册时间
2009-5-5
精华
0
发表于 2016-3-24 16:08:46 | 显示全部楼层
恭喜楼主!
地址:一店:光彩四期E区13栋56号 服务热线:5309299;二店:光彩博览中心2楼37号电话:5299809
回复

使用道具 举报

头像被屏蔽

0

收听

0

听众

3

帖子

E粉新人

注册时间
2016-3-24
精华
0
QQ
发表于 2016-3-24 17:02:38 | 显示全部楼层
提示: 该帖被管理员或版主屏蔽
回复 支持 反对

使用道具 举报

头像被屏蔽

0

收听

1

听众

175

帖子

禁止发言

注册时间
2014-8-7
精华
0
QQ
发表于 2016-3-24 17:13:05 | 显示全部楼层
提示: 作者被禁止或删除 内容自动屏蔽
签名被屏蔽
回复 支持 反对

使用道具 举报

6

收听

4

听众

921

帖子

认证商家

注册时间
2013-5-23
精华
0
QQ
发表于 2016-3-24 17:22:10 | 显示全部楼层
楼主你 好、封闭阳台欢迎来康熙河百年家居B17号绿娃样品店看一看。比一比。联系电话13625672532吴
回复 支持 反对

使用道具 举报

头像被屏蔽

5

收听

1

听众

165

帖子

认证商家

注册时间
2014-2-17
精华
0
QQ
发表于 2016-3-24 17:42:03 www.aqlife.com | 显示全部楼层
提示: 该帖被管理员或版主屏蔽
回复 支持 反对

使用道具 举报

头像被屏蔽

0

收听

1

听众

22

帖子

禁止发言

注册时间
2015-12-10
精华
0
发表于 2016-3-24 19:57:25 | 显示全部楼层
提示: 作者被禁止或删除 内容自动屏蔽
回复 支持 反对

使用道具 举报

头像被屏蔽

3

收听

3

听众

153

帖子

E粉新星

注册时间
2013-4-11
精华
0
QQ
发表于 2016-3-25 09:12:58 | 显示全部楼层
提示: 该帖被管理员或版主屏蔽
回复 支持 反对

使用道具 举报

1

收听

1

听众

43

帖子

认证商家

注册时间
2015-3-7
精华
0
发表于 2016-3-25 09:50:23 | 显示全部楼层
楼主是3号楼的嘛?这个户型我们公司之前做过,有空您可以来我们公司了解一下。
低 调 奢 华,品 味 生 活
爱家装饰地址:湖心中路1号(原牌坊往北100米,绿化大队旁)
爱家装饰电话:5526533   18726129620
QQ:845861871
回复 支持 反对

使用道具 举报

头像被屏蔽

0

收听

1

听众

49

帖子

禁止发言

注册时间
2016-1-11
精华
0
发表于 2016-3-25 10:08:10 | 显示全部楼层
提示: 作者被禁止或删除 内容自动屏蔽
签名被屏蔽
回复 支持 反对

使用道具 举报

头像被屏蔽

0

收听

2

听众

530

帖子

禁止访问

注册时间
2011-7-26
精华
0
QQ
发表于 2016-3-26 10:37:36 | 显示全部楼层
提示: 作者被禁止或删除 内容自动屏蔽
回复 支持 反对

使用道具 举报

头像被屏蔽

0

收听

1

听众

9

帖子

禁止发言

注册时间
2016-3-26
精华
0
发表于 2016-3-26 18:31:28 | 显示全部楼层
提示: 作者被禁止或删除 内容自动屏蔽
回复 支持 反对

使用道具 举报

头像被屏蔽

1

收听

1

听众

219

帖子

未认证商家

注册时间
2015-11-22
精华
0
发表于 2016-3-27 09:51:06 | 显示全部楼层
提示: 该帖被管理员或版主屏蔽
签名被屏蔽
回复 支持 反对

使用道具 举报

头像被屏蔽

0

收听

1

听众

6

帖子

禁止发言

注册时间
2016-3-27
精华
0
发表于 2016-3-27 11:56:31 | 显示全部楼层
提示: 作者被禁止或删除 内容自动屏蔽
回复 支持 反对

使用道具 举报

头像被屏蔽

0

收听

1

听众

459

帖子

禁止发言

注册时间
2015-9-18
精华
0
QQ
发表于 2016-3-28 09:33:46 | 显示全部楼层
提示: 作者被禁止或删除 内容自动屏蔽
签名被屏蔽
回复 支持 反对

使用道具 举报

2

收听

8

听众

3219

帖子

E粉明星

注册时间
2009-10-21
精华
0
QQ
发表于 2016-3-29 11:26:15 | 显示全部楼层
家具不错
低 调 奢 华,品 味 生 活
爱家装饰地址:吾悦广场B-1801-1802室
爱家装饰电话: 15856537787微信
回复

使用道具 举报

0

收听

1

听众

5

帖子

E粉新人

注册时间
2016-3-29
精华
0
发表于 2016-3-29 13:46:22 | 显示全部楼层
楼祝您好,我是太禾装饰公司   您家里的户型我们设计施工过可以来我们公司了解一下情况
杨:13855698956
回复 支持 反对

使用道具 举报

3

收听

1

听众

50

帖子

认证商家

注册时间
2015-7-16
精华
0
发表于 2016-3-29 14:40:04 | 显示全部楼层

欢迎来“平价家装——雅美居装饰”了解下。
公司以透明化运作,来咨询可以领取《家装明码单价表》,价格公开透明,真正做到让客户明明白白消费 。
雅美居装饰15年一直至力于平价家装,并秉承 “平价做精品”的家装新模式。
在工程上,以垂直化管理,严把质量关。并保持着十五年零诉率的家装吉尼斯纪录,回头率高达50%以上。
平价客服热线:0556-5501169  5509169
地址:菱湖南路御景国际商铺写字楼2#2层(皖源国际大酒店斜对面/建行楼上)
平价热线:0556-5501169  5509169
地址:菱湖南路御景国际商铺写字楼2#2层(皖源国际大酒店斜对面/建行楼上)
回复 支持 反对

使用道具 举报

您需要登录后才可以回帖 登录 | 注册

本版积分规则

联系合作|手机版|手机APP|Archiver|

GMT+8, 2025-12-13 20:46 Powered by Discuz! X3.4

安庆E网生活网站 © 2001-2013 Comsenz Inc. ( 皖ICP备05012696号 )

QQ

安庆瑞易文化 地址:华茂1958-C7栋 联系电话:0556-5306667 联系邮箱:17779721@qq.com 互联网违法和不良信息举报电话和邮箱:0556-5306667 17779721@qq.com

皖公网安备 34080002000101号

    
快速回复 返回顶部 返回列表