安庆E网

搜索
查看: 3320|回复: 0

[设计交流] 120平方米新农村带露台阳台漂亮3层别墅设计图纸-居佳乐设计

[复制链接]

0

收听

0

听众

1

帖子

E粉新人

注册时间
2016-5-13
精华
0
发表于 2016-5-13 13:43:37 | 显示全部楼层 |阅读模式
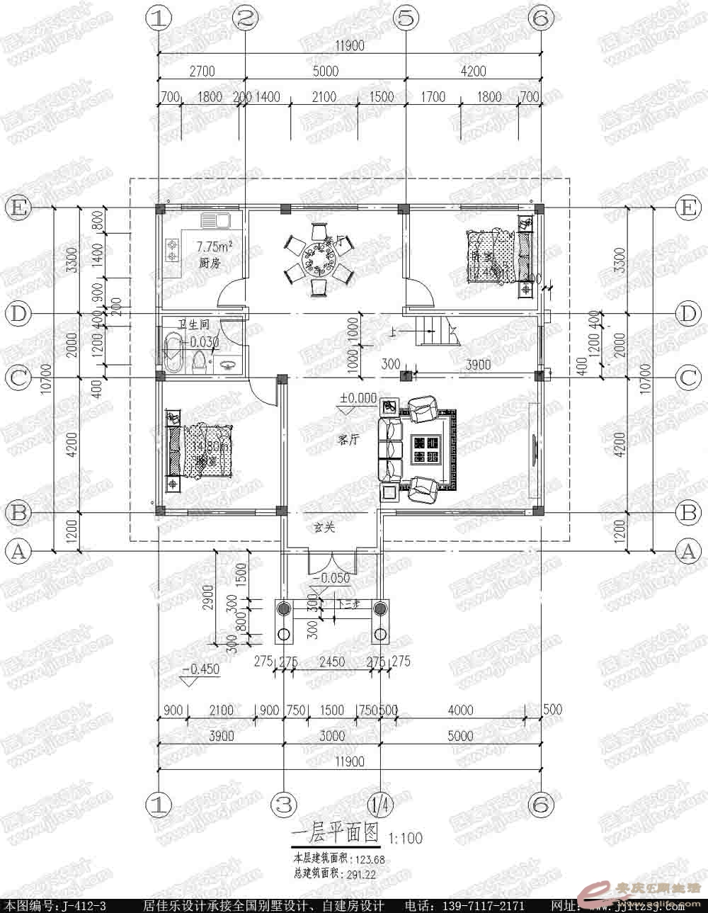
一 层:
2个卧室 卫生间 厨房 餐厅 楼梯 玄关 客厅
二 层:
三个卧室 一个书房 一个露台 一个卫生间
三 层:
三个卧室 一个书房 一个露台 一个卫生间
j-412-3.jpg
首层户型:
412-1f.jpg
回复

使用道具 举报

您需要登录后才可以回帖 登录 | 注册

本版积分规则

联系合作|手机版|手机APP|Archiver|

GMT+8, 2025-12-13 20:48 Powered by Discuz! X3.4

安庆E网生活网站 © 2001-2013 Comsenz Inc. ( 皖ICP备05012696号 )

QQ

安庆瑞易文化 地址:华茂1958-C7栋 联系电话:0556-5306667 联系邮箱:17779721@qq.com 互联网违法和不良信息举报电话和邮箱:0556-5306667 17779721@qq.com

皖公网安备 34080002000101号

    
快速回复 返回顶部 返回列表