本帖最后由 天若有情 于 2016-5-20 20:38 编辑
2014年6月就拿了钥匙,因为资金,时间的原因拖到现在,将近二年的时间陆陆续续跑了不少家装公司和参加了不少的商家活动,渐渐从一个家装门外汉变成了一个能靠着门往里偷窥的小白,家装的水真的好深啊  !写此日记,为了这个小窝,也为了纪念这段痛并快乐的过程。并有霏凡李工全程讲解各阶段验收标准。如果各位待装的网友能从此日记中有所收获,将是我最大的动力和欣慰。
基本情况
【户型】三房两厅一厨一卫
【室内面积】95平方米 【装修方式】现代简约 【独立监理】霏凡监理公司装修新模式(1+1+1)
【装修方式】半包 【独立质量监理】霏凡监理公司:李工
【独立设计师】何敏设计工作室:何工
【独立施工队】拆旧:邹师傅 水电:张师傅 瓦工:张师傅 木工:谢师傅 漆工:陈师傅
模式选择 独立的设计,独立的监理,独立的施工队伍,这就是1+1+1 不知道大家选择装修时候觉得最重要的是什么,其实不外乎三样,家装公司品牌,材料品牌,工人。选择家装公司品牌带来的是便利和省心还有售后,材料品牌的选择无外乎是金额的高低,而工人的选择恰恰是最难把握的,因为对于我们大多数的业主来说,工人没有品牌,我不知道谁好谁坏,但我相信一点,再好的公司也有烂工人,再差的公司也有好工人。选择霏凡监理公司李工,第一是他在E网上的口碑,第二是他专业的家装知识,第三就是他能为我把控的各个家装公司的好工人。第四就是带我去看他监理的工地,标准的确是相当的高。(说到工人质量,其实每个工种做到10年以上基本都能把活做好,但为什么有些工人胡差事呢,一个字:钱。家装公司拿点,项目经理拿点,工人拿到手的其实远远比合同书上写的少,他只能选择省略该有的步骤来缩短工期,以保证他每天出工的钱达到他的要求。)因为选择了这种模式,省心省力肯定不指望了,包括各个工种的价钱都要自己去谈,工艺标准按霏凡监理的国家标准来,价钱和家装公司差不多,比那些大牌的只少不多。(水电是家装公司的利润超级大头,再说说安庆某些大牌家装的操作方式,签下一单,设计师按总金额提成,总公司提成,本地公司提成,转给项目经理,项目经理提成。至于施工队伍,项目经理交纳家装公司保证金就可以在这家家装公司接活了。装修公司不会去鉴定你队伍的素质,只要你交了保证金,出了问题扣你保证金而已。)最后说说售后,现在选择的模式,是由霏凡监理公司提供的,说老实话,按我对家装的了解,只要你设计合理,工人按标准施工,材料选择正规品牌,监理到位,返工或者出问题的概率微乎其微。再加上监理公司提供质保,在感觉上可靠不少。顺便提一句:选择了李工,装修辅材上的标准的确提高了不少,带来的直接效应就是钞票少了不少,但选择真正环保材料,国标材料特别是隐蔽工程里的材料,我想还是用好点的为妙,毕竟要是材料出了问题,得不偿失。
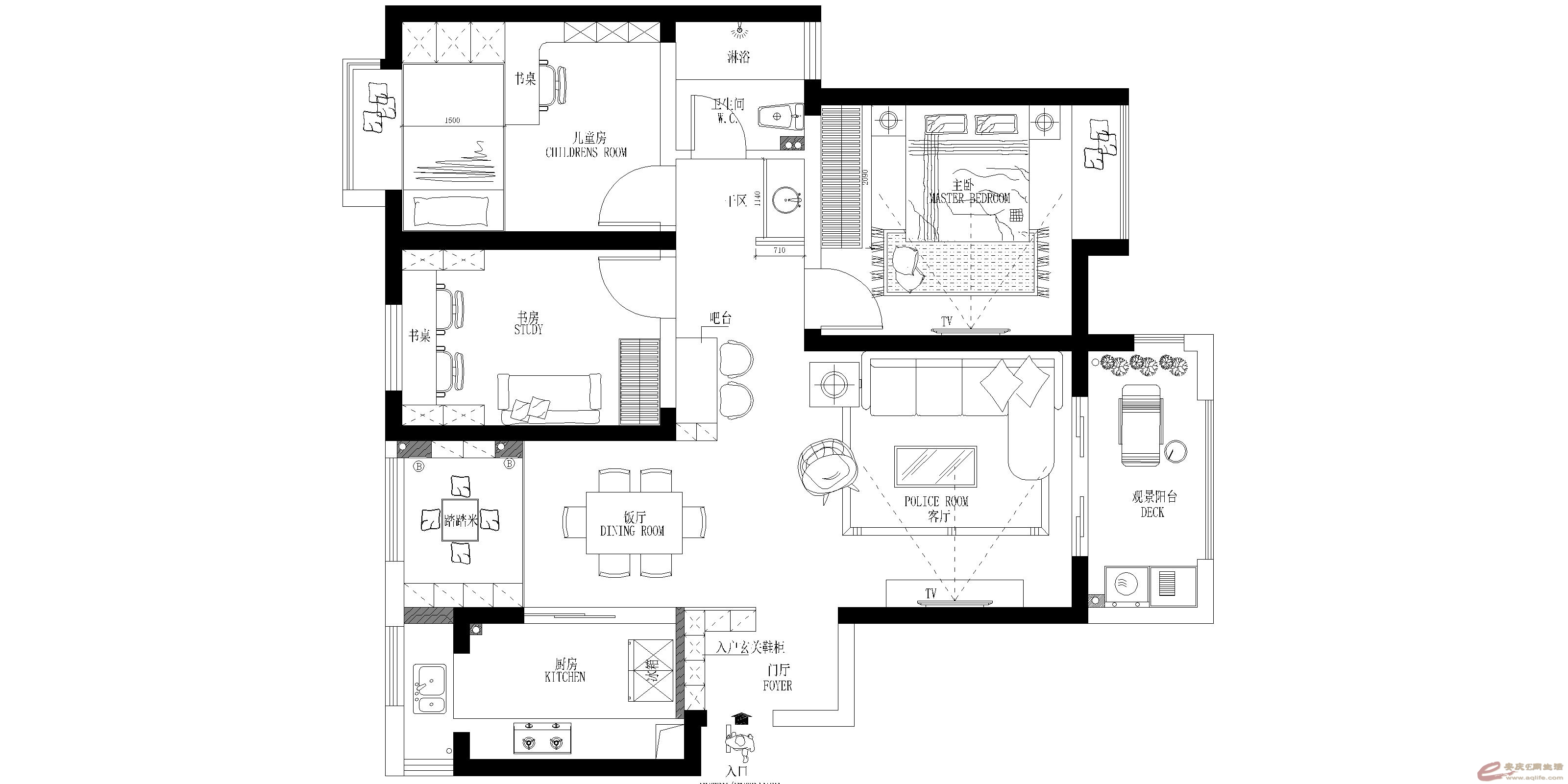
设计选择 独立设计 何敏设计 一直想找个独立的设计师,以前在天猫上也咨询过专门设计的,但是需要自己量尺寸提供照片,我们也不是专业的,万一哪个尺寸出现问题就是大问题了,只能作罢。也浏览过齐家,篱笆网大量装修帖子,自己找独立设计这种模式在大城市相当流行。找这种设计师首先的要点就是一定要懂施工,不能只会作图不懂施工,那会在和各个工种交接上出现很多问题。其次是我可以大胆的把预算报给他,他可以按预算做出大概合理的设计。(有没有感觉现在的家装公司的设计师很像业务员?因为有提成,10万以下3%,10万以上5%,更高的就不用说了,像这样有利益牵扯的我建议不要把自己真正的预算报出来。)安庆这种独立设计室相当的少啊。年前无意看到华茂有这么一家设计工作室,交流下来,收费,理念都还不错。因为大门对着厕所,按以前装修公司大多给出的解决方案就是过道用吧台或者柜体阻挡,效果不是很实用,何工的方案一下打动了我,具体见效果图。所以把设计这块交给了何敏设计。具体他们的介绍看链接吧。 http://www.aqlife.com/forum.php?mod=viewthread&tid=1949238&extra= 原始图 设计平面图 效果图
大门对厕所的处理,利用厨房墙面做鞋柜,并做出了个门厅玄关,有点符合中国人的习惯。 多方点效果图 |