安庆E网

搜索
查看: 68245|回复: 177

[装修日记] 格林小宅装修记

  [复制链接]

0

收听

1

听众

138

帖子

E粉新星

注册时间
2010-9-25
精华
0
发表于 2016-7-19 21:41:00 | 显示全部楼层 |阅读模式
格林小宅装修记



今天是个好日子,空了两年多的格林镇宅子开工了。


DSC04613.JPG
DSC04620.JPG
DSC04621.JPG

评分

参与人数 1鲜花 +1 +1 收起 理由
yaya6287 + 1 + 1 青年装饰 奋斗青年

查看全部评分

回复

使用道具 举报

0

收听

1

听众

93

帖子

E粉新星

注册时间
2012-10-21
精华
0
发表于 2016-7-20 09:08:15 | 显示全部楼层
我也是格林的 月底开工  你家平面图我看看吧 参考参考
回复 支持 反对

使用道具 举报

头像被屏蔽

0

收听

1

听众

459

帖子

禁止发言

注册时间
2015-9-18
精华
0
QQ
发表于 2016-7-20 09:14:01 | 显示全部楼层
提示: 作者被禁止或删除 内容自动屏蔽
签名被屏蔽
回复 支持 反对

使用道具 举报

4

收听

2

听众

1414

帖子

未认证商家

注册时间
2011-5-4
精华
0
QQ
发表于 2016-7-20 10:19:51 | 显示全部楼层
喝点小酒 发表于 2016-7-20 09:08
我也是格林的 月底开工  你家平面图我看看吧 参考参考

业主比较忙,呵呵
青年装饰
地址:江畔尚城大门西侧
联系电话:18297709288   QQ:641125232
回复 支持 反对

使用道具 举报

头像被屏蔽

0

收听

1

听众

59

帖子

禁止访问

注册时间
2015-2-27
精华
0
发表于 2016-7-20 20:28:01 www.aqlife.com | 显示全部楼层
提示: 作者被禁止或删除 内容自动屏蔽
回复 支持 反对

使用道具 举报

0

收听

1

听众

138

帖子

E粉新星

注册时间
2010-9-25
精华
0
 楼主| 发表于 2016-7-20 20:48:26 | 显示全部楼层
今天,物业告知空鼓已处理完,让我验收。发现漏了一处,只好再处理。但还是要给物业处理的速度点个赞!
回复 支持 反对

使用道具 举报

4

收听

2

听众

1414

帖子

未认证商家

注册时间
2011-5-4
精华
0
QQ
发表于 2016-7-21 10:00:38 | 显示全部楼层
本帖最后由 yaya6287 于 2016-7-21 10:21 编辑
支书cy 发表于 2016-7-20 20:28
青年装饰不错,老板夫妻俩挺负责的。我家也是他装修的。

O(∩_∩)O谢谢肯定嘻嘻
青年装饰
地址:江畔尚城大门西侧
联系电话:18297709288   QQ:641125232
回复 支持 反对

使用道具 举报

9

收听

7

听众

1349

帖子

认证商家

注册时间
2011-11-6
精华
0
发表于 2016-7-21 22:16:10 | 显示全部楼层
祝装修顺利!抽空来我们展厅坐坐。
展厅地址:光彩国际家居博览中心一层61号
销售热线:8882250
客服热线:8882251
品鉴热线:13905569197   qq:2502490242
做适合中国人的厨房,您的满意是我们最高的荣誉[
回复 支持 反对

使用道具 举报

3

收听

12

听众

2040

帖子

认证商家

注册时间
2009-5-5
精华
0
发表于 2016-7-22 06:40:27 | 显示全部楼层
祝楼主装修顺利!
地址:一店:光彩四期E区13栋56号 服务热线:5309299;二店:光彩博览中心2楼37号电话:5299809
回复 支持 反对

使用道具 举报

0

收听

1

听众

8

帖子

E粉新人

注册时间
2016-7-23
精华
0
发表于 2016-7-23 16:03:51 | 显示全部楼层


祝楼主装修顺利!如需要地角线、灶台、卫生间台面、洗衣池等石材.请联系18905569195,大众石材批发加工厂,价格从优
回复 支持 反对

使用道具 举报

4

收听

2

听众

1414

帖子

未认证商家

注册时间
2011-5-4
精华
0
QQ
发表于 2016-8-6 17:48:58 | 显示全部楼层
加油~~
青年装饰
地址:江畔尚城大门西侧
联系电话:18297709288   QQ:641125232
回复

使用道具 举报

0

收听

1

听众

138

帖子

E粉新星

注册时间
2010-9-25
精华
0
 楼主| 发表于 2016-9-3 16:45:43 | 显示全部楼层
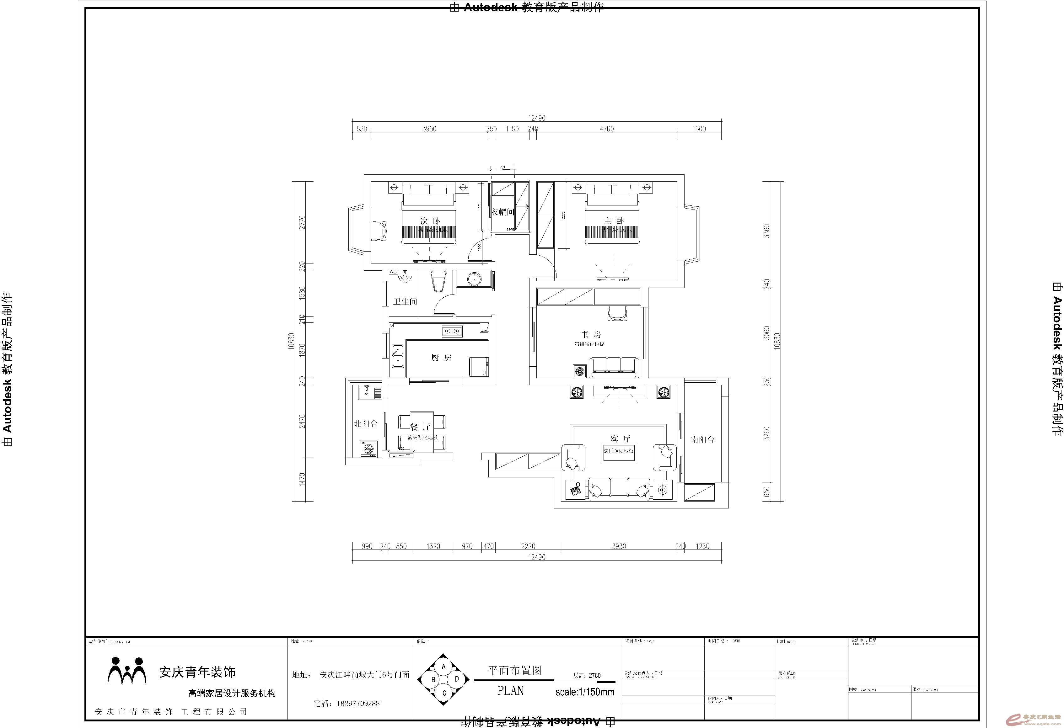
好长时间没有上网了。两个原因,一是天太热,电脑前坐不住。二是厂里大修太忙。三是人太懒。今天闲了将日记补一补。







先发几张图

户型平面图

户型平面图

效果图1

效果图1

效果图2

效果图2

效果图3

效果图3

效果图4

效果图4




回复 支持 反对

使用道具 举报

4

收听

2

听众

1414

帖子

未认证商家

注册时间
2011-5-4
精华
0
QQ
发表于 2016-9-3 17:54:15 | 显示全部楼层
叔辛苦啦~~
青年装饰
地址:江畔尚城大门西侧
联系电话:18297709288   QQ:641125232
回复

使用道具 举报

0

收听

1

听众

138

帖子

E粉新星

注册时间
2010-9-25
精华
0
 楼主| 发表于 2016-9-3 21:58:37 | 显示全部楼层

今天,来说说找装修公司的过程。首先当然是E网上的口碑。期间也谈了几家,个人感觉青年家比较靠谱。老板小潮八零后,正是拼博的年龄。我感觉找装修公司
也有缘分的因素。










回复 支持 反对

使用道具 举报

0

收听

1

听众

138

帖子

E粉新星

注册时间
2010-9-25
精华
0
 楼主| 发表于 2016-9-3 22:12:47 | 显示全部楼层
上一次装修房子是97年,近20年了,除了一点经验,材料用法和装修手法基本是报废的。因此,本人在装修上小白一个,只能从网上和装修过的朋友和同事处恶补。
回复 支持 反对

使用道具 举报

0

收听

1

听众

138

帖子

E粉新星

注册时间
2010-9-25
精华
0
 楼主| 发表于 2016-9-4 22:32:42 | 显示全部楼层
看样板房时有卧卫,交房后 IMG_20160723_161646.jpg IMG_20160723_161623.jpg 连上下水都没有。正好,改成衣帽间。门开在次卧。因为次卧面积小,正好省了家具面积。砸一面墙,再沏一面墙,上图
回复 支持 反对

使用道具 举报

6

收听

4

听众

921

帖子

认证商家

注册时间
2013-5-23
精华
0
QQ
发表于 2016-9-5 09:32:03 | 显示全部楼层
恭喜楼主装修大吉,楼主家的阳台这块,有没有考虑做起来啊,欢迎来康熙河,百年家居b17号绿娃阳台门窗看看,国庆中秋双节,厂家放价,买绿娃阳台送绿娃纱窗,详情请到店堂了解。联系电话13625672532吴
回复 支持 反对

使用道具 举报

0

收听

1

听众

138

帖子

E粉新星

注册时间
2010-9-25
精华
0
 楼主| 发表于 2016-9-6 21:41:32 | 显示全部楼层
水电已开始了,水电工小李师傅的手艺很不错的。上图


DSC04631.JPG DSC04630.JPG DSC04629.JPG DSC04633.JPG DSC04635.JPG
回复 支持 反对

使用道具 举报

0

收听

1

听众

57

帖子

E粉新星

注册时间
2010-4-25
精华
0
QQ
发表于 2016-9-7 16:53:15 | 显示全部楼层
顶地址:光彩四期 元山路三栋1号
电话:5709993   


顶固衣柜祝楼主装修大吉
我的QQ495690666
回复 支持 反对

使用道具 举报

4

收听

2

听众

1414

帖子

未认证商家

注册时间
2011-5-4
精华
0
QQ
发表于 2016-9-8 10:50:37 | 显示全部楼层
谢谢叔叔的信任和肯定~~加油~~
青年装饰
地址:江畔尚城大门西侧
联系电话:18297709288   QQ:641125232
回复 支持 反对

使用道具 举报

0

收听

1

听众

138

帖子

E粉新星

注册时间
2010-9-25
精华
0
 楼主| 发表于 2016-9-8 20:45:23 | 显示全部楼层
水电用的都是伟星管子,质量还是很不错的。继续上图

DSC04628.JPG DSC04632.JPG DSC04633.JPG DSC04622.JPG
回复 支持 反对

使用道具 举报

0

收听

1

听众

138

帖子

E粉新星

注册时间
2010-9-25
精华
0
 楼主| 发表于 2016-9-8 20:47:24 | 显示全部楼层
DSC04654.JPG DSC04653.JPG DSC04650.JPG DSC04648.JPG DSC04647.JPG DSC04652.JPG
回复 支持 反对

使用道具 举报

0

收听

1

听众

138

帖子

E粉新星

注册时间
2010-9-25
精华
0
 楼主| 发表于 2016-9-8 20:49:44 | 显示全部楼层
DSC04646.JPG DSC04645.JPG DSC04644.JPG DSC04640.JPG
回复 支持 反对

使用道具 举报

0

收听

1

听众

426

帖子

未认证商家

注册时间
2013-5-11
精华
7
QQ
发表于 2016-9-8 20:54:11 | 显示全部楼层
楼主家的水电线路走的很规范 ,给装修公司赞一个
象牌木门 安庆专卖店
地址:光彩四期建材新城E区3栋10号
电话:0556-529945  18655690236
  QQ:364278845
             和谐家  • 吉祥门
回复 支持 反对

使用道具 举报

0

收听

1

听众

138

帖子

E粉新星

注册时间
2010-9-25
精华
0
 楼主| 发表于 2016-9-10 19:38:33 | 显示全部楼层
继续上水电安装图

DSC04647.JPG DSC04648.JPG DSC04653.JPG DSC04654.JPG DSC04646.JPG
回复 支持 反对

使用道具 举报

您需要登录后才可以回帖 登录 | 注册

本版积分规则

联系合作|手机版|手机APP|Archiver|

GMT+8, 2025-12-12 02:15 Powered by Discuz! X3.4

安庆E网生活网站 © 2001-2013 Comsenz Inc. ( 皖ICP备05012696号 )

QQ

安庆瑞易文化 地址:华茂1958-C7栋 联系电话:0556-5306667 联系邮箱:17779721@qq.com 互联网违法和不良信息举报电话和邮箱:0556-5306667 17779721@qq.com

皖公网安备 34080002000101号

    
快速回复 返回顶部 返回列表