安庆E网

搜索
查看: 17033|回复: 36

[装修日记] 10年之后的第二篇装修日记——叶子的小窝之二(补日记之木作)

  [复制链接]

0

收听

1

听众

347

帖子

E粉明星

注册时间
2007-10-10
精华
0
发表于 2016-8-25 16:28:22 | 显示全部楼层 |阅读模式
本帖最后由 irenejw 于 2017-8-24 11:17 编辑

    十年前,第一次装修,也第一次在E网开贴写日记,得到了很多人的帮助和支持。
    今年,为了女儿上学,买了一套二手房,又要踏上装修之路了。年纪大了,人也懒了,本来不想再写日记,到E网翻看当年的日记,回忆起当年的点点滴滴,还是很有意思的。SO,在开工了十几天后,还是决定来写下日记,留个念想!
   
   1、选择橱柜   2、拆旧和砌墙
   3、阁楼钢结构雏形
   4、阳光房和厨卫顶改造
   5、瓷砖铺贴
   6、钢结构的汽车烤漆
   7、打的各种柜子   8、阁楼楼梯和储藏间
   9、凤铝的窗子和阳台门
   10、卧室木门

回复

使用道具 举报

0

收听

1

听众

347

帖子

E粉明星

注册时间
2007-10-10
精华
0
 楼主| 发表于 2016-8-25 16:30:36 | 显示全部楼层
本帖最后由 irenejw 于 2016-8-25 16:56 编辑

这个房子还是顶楼,7楼,没有电梯,就当做锻炼吧,房顶挺有意思的,发几张原来的图
原客厅_副本.jpg
原橱柜_副本.jpg
原主卧_副本.jpg 原衣帽间_副本.jpg
原次卧_副本.jpg


回复 支持 反对

使用道具 举报

0

收听

1

听众

347

帖子

E粉明星

注册时间
2007-10-10
精华
0
 楼主| 发表于 2016-8-25 16:59:33 | 显示全部楼层
本帖最后由 irenejw 于 2016-8-26 13:28 编辑

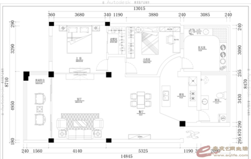
感觉原来房子的装修存在几个问题:
1、房顶中间吊得太低;
2、开放式厨房不实用;
3、主卧吊顶那是个梁;
4、次卧不规整。以下分别是之前的平面图和修改过的平面图,请大家多提意见!
锦江花园房屋原始_副本.jpg
京华装修1.jpg



回复 支持 反对

使用道具 举报

头像被屏蔽

0

收听

1

听众

815

帖子

禁止访问

注册时间
2010-6-24
精华
0
发表于 2016-8-25 19:38:37 | 显示全部楼层
提示: 作者被禁止或删除 内容自动屏蔽
回复 支持 反对

使用道具 举报

2

收听

24

听众

1951

帖子

E粉明星

注册时间
2010-8-8
精华
0
发表于 2016-8-25 20:35:15 | 显示全部楼层
顶楼吧 ?
回复

使用道具 举报

9

收听

7

听众

1349

帖子

认证商家

注册时间
2011-11-6
精华
0
发表于 2016-8-25 23:58:18 | 显示全部楼层
恭喜恭喜,我们都是e网老网友了
展厅地址:光彩国际家居博览中心一层61号
销售热线:8882250
客服热线:8882251
品鉴热线:13905569197   qq:2502490242
做适合中国人的厨房,您的满意是我们最高的荣誉[
回复 支持 反对

使用道具 举报

0

收听

1

听众

347

帖子

E粉明星

注册时间
2007-10-10
精华
0
 楼主| 发表于 2016-8-26 13:27:15 | 显示全部楼层
安庆活宝 发表于 2016-8-25 19:38
哈哈要是没看错,您这个房子是康健公寓的吧嘿嘿

不是地...
回复 支持 反对

使用道具 举报

0

收听

1

听众

347

帖子

E粉明星

注册时间
2007-10-10
精华
0
 楼主| 发表于 2016-8-26 15:09:45 | 显示全部楼层
本帖最后由 irenejw 于 2017-8-22 11:26 编辑

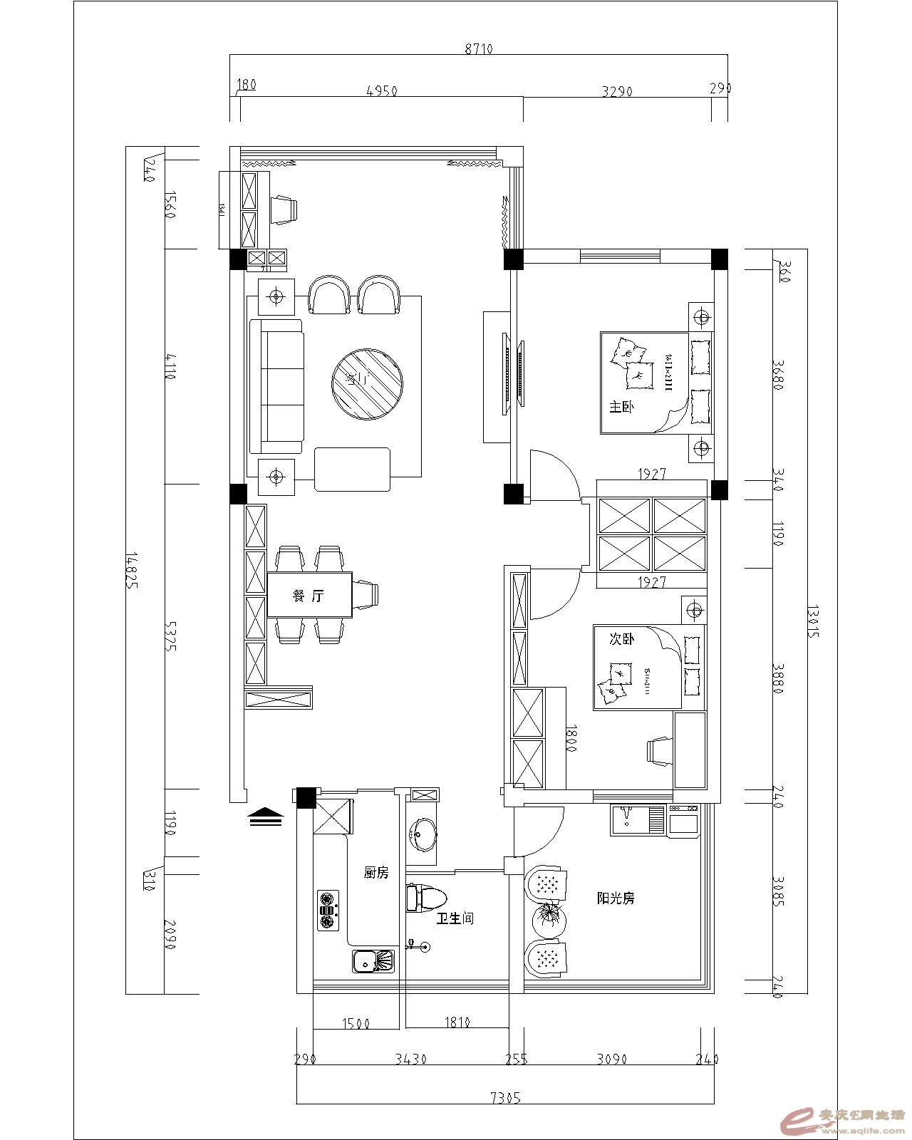
昨天去房子看了下,该拆的都拆了,墙也砌好了
拆完的顶好高,很是喜欢呢,考虑做个小跃层什么的
副本07.jpg
副本01.jpg 将原来厨房和卫生间间的墙打掉,重新分隔,做成封闭的厨房。
副本06.jpg
主卧的衣帽间打掉,两个卧室间做成背靠背的衣柜,次卧原来的弧形改直。
副本02.jpg
副本05.jpg



副本04.jpg
回复 支持 反对

使用道具 举报

3

收听

1

听众

469

帖子

E粉明星

注册时间
2010-10-8
精华
0
QQ
发表于 2016-8-27 13:55:46 | 显示全部楼层
恭喜楼主,祝装修顺利!
12年行业标准  移门行业领跑者
店址:安庆舒怡一期二楼电梯口旁普吉尼专卖店  8881558
回复 支持 反对

使用道具 举报

0

收听

1

听众

83

帖子

E粉新人

注册时间
2016-2-19
精华
0
发表于 2016-8-28 11:04:32 | 显示全部楼层
顶固衣柜欢迎楼主光临
店面地址:光彩四期元山路
回复 支持 反对

使用道具 举报

头像被屏蔽

0

收听

1

听众

459

帖子

禁止发言

注册时间
2015-9-18
精华
0
QQ
发表于 2016-8-28 16:03:55 | 显示全部楼层
提示: 作者被禁止或删除 内容自动屏蔽
签名被屏蔽
回复 支持 反对

使用道具 举报

0

收听

1

听众

347

帖子

E粉明星

注册时间
2007-10-10
精华
0
 楼主| 发表于 2016-9-2 09:42:36 | 显示全部楼层
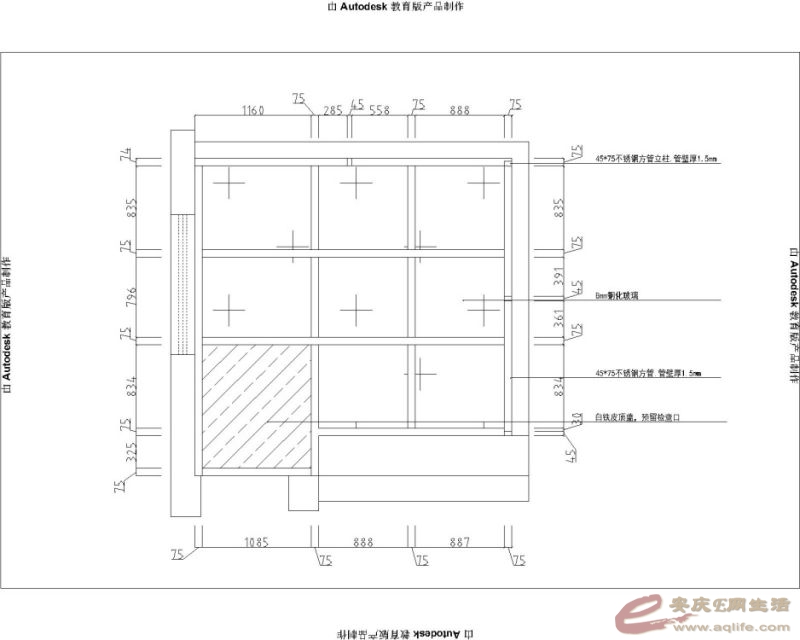
经过商量,现在考虑做一半的阁楼,担心层高有点矮 cad.png
回复 支持 反对

使用道具 举报

0

收听

1

听众

347

帖子

E粉明星

注册时间
2007-10-10
精华
0
 楼主| 发表于 2016-9-2 09:49:58 | 显示全部楼层
这是之前标的尺寸,我觉得下面矮了,决定调整到下面2米,正好和入户门一样高
CAD带尺寸.png
回复 支持 反对

使用道具 举报

2

收听

24

听众

1951

帖子

E粉明星

注册时间
2010-8-8
精华
0
发表于 2016-9-2 10:55:31 | 显示全部楼层
上面的通风和采光如何?

楼主要考虑loft使用率和一次性投入的成本比例啊
回复 支持 反对

使用道具 举报

6

收听

4

听众

921

帖子

认证商家

注册时间
2013-5-23
精华
0
QQ
发表于 2016-9-2 15:49:55 | 显示全部楼层
Gx恭喜楼主装修大吉,楼主家的阳光房这块,有没有考虑做起来啊,欢迎来康熙河,百年家居b17号绿娃阳台门窗看看,国庆中秋双节,厂家放价,买绿娃阳台送绿娃纱窗,详情请到店堂了解
回复 支持 反对

使用道具 举报

0

收听

1

听众

347

帖子

E粉明星

注册时间
2007-10-10
精华
0
 楼主| 发表于 2016-9-6 09:46:21 | 显示全部楼层
本帖最后由 irenejw 于 2016-9-6 11:03 编辑
竞叫战士 发表于 2016-9-2 10:55
上面的通风和采光如何?

楼主要考虑loft使用率和一次性投入的成本比例啊

顶楼采光应该没问题,不做全封闭的,通风应该也不影响吧,我也在纠结性价比这块,毕竟层高还是低了些
回复 支持 反对

使用道具 举报

0

收听

1

听众

83

帖子

E粉新人

注册时间
2016-2-19
精华
0
发表于 2016-9-6 14:33:54 | 显示全部楼层
地址:光彩四期 元山路三栋1号
电话:5709993   
2_看图王副本.jpg
回复 支持 反对

使用道具 举报

0

收听

1

听众

276

帖子

认证商家

注册时间
2016-2-24
精华
0
发表于 2016-9-6 22:16:37 | 显示全部楼层
这次重新装修要用美多集成灶了
欢迎您参加9月11日美多27周年直销中国——安徽站总裁签售会,报名热线:13905569197
美多集成灶安庆专卖店地址:光彩二期五区7栋28号
电话:5015980      13905569197
安庆二店地址:南翔光彩家居博览中心南厅一层61号
电话:8882250      13905569197
回复 支持 反对

使用道具 举报

6

收听

4

听众

921

帖子

认证商家

注册时间
2013-5-23
精华
0
QQ
发表于 2016-9-8 22:27:30 | 显示全部楼层
恭喜楼主装修大吉。楼主你好,我是绿娃阳台的小吴,绿娃阳台主营,阳台窗封闭。阳光房。防盗网,精钢网防盗纱门纱窗。普通纱门纱窗。欢迎楼主有时间来绿娃阳台窗样品店比一比。看一看,地址湖心南路。康熙河百年家居B17号。仅此一家。绝无分店。联系电话13625672532吴结娣期待您的光临
回复 支持 反对

使用道具 举报

0

收听

1

听众

347

帖子

E粉明星

注册时间
2007-10-10
精华
0
 楼主| 发表于 2016-9-20 11:51:12 | 显示全部楼层
本帖最后由 irenejw 于 2016-9-20 12:52 编辑

等着做钢结构的人出图纸,这之间把橱柜定下来了。
之前做了些简单的功课。
一、柜体板
  现在多是实木颗粒板,也有实木多层的或者全实木的(估计很贵),有18MM厚的和16MM厚的,当然厚些的好。问题是都是E1级的实木颗粒板,怎么比较好坏呢?网上看到的什么露水河的,爱格的板子,似乎这些品牌的也都没提。
二、台面
  多是石英石(大理石和不锈钢的我没考虑了),大部分是15MM厚。海尔和欧派是20MM厚。
三、柜门
  我不喜欢太亮的门板,实木什么的又太贵,性价比高的是双饰面了,但是有点担心哑光的容易脏,不好打理。
四、五金
  最好的是进口百隆的,据说有很多国内产的,不好分辨。其次是海蒂诗的,也不错。要注意好多品牌如果加阻尼是要另加钱的
五、垫板
  就是台面下面垫的,海尔是整块的垫板,有的是用的垫条。是不是整块的减震效果好些?但是有人说受潮后容易不平。
六、踢脚板
  有铝合金的和塑料的,铝合金的应该结实和美观些吧。
七、附加费
  这个乱七八糟加一块也不少钱啊。现在很多品牌推出套餐,但是超出部分的计价就很贵了,另外还有拉篮、抽屉、侧封板、水槽灶台的打孔费等等。
回复 支持 反对

使用道具 举报

0

收听

1

听众

347

帖子

E粉明星

注册时间
2007-10-10
精华
0
 楼主| 发表于 2016-9-20 16:55:29 | 显示全部楼层
本帖最后由 irenejw 于 2016-9-20 16:58 编辑

    平时都要上班,只有周末有时间看看装修材料,去了两趟南翔,看了几家店,定了樱花的。
    选择它家有几点原因:一是喜欢那款雕刻时光的门板花色;二是他家做活动,包括烟灶的套餐价格还不错;三是冲着樱花的厨房电器,毕竟他家原来是做这个起家的,其它牌子的烟灶套怕不专业;四是后期每年会上门维护橱柜和烟机。    我家是4米05的地柜、台面,1米9的吊柜,配了拉篮。18MM的实木颗粒柜体板,樱花铰链,台面加钱升级了LG的,铝合金踢脚线。超出套餐部分的真是贵啊,还有侧面板也要另外收费!

    樱花橱柜.jpg
    樱花橱柜2.jpg


回复 支持 反对

使用道具 举报

0

收听

1

听众

65

帖子

E粉新人

注册时间
2014-7-16
精华
0
发表于 2016-9-20 20:19:18 | 显示全部楼层
欧尼壁纸欢迎业主光临,一定物美价廉哦!南翔光彩国际家居博览中心2层5号 欧尼壁纸 18655650365 王经理
回复 支持 反对

使用道具 举报

0

收听

1

听众

347

帖子

E粉明星

注册时间
2007-10-10
精华
0
 楼主| 发表于 2017-8-18 16:58:09 | 显示全部楼层
本帖最后由 irenejw 于 2017-8-23 10:11 编辑

我这是懒癌晚期患者了,一年了还没装完,日记也没写了,现在抽空简单的补一下。
回复 支持 反对

使用道具 举报

0

收听

1

听众

347

帖子

E粉明星

注册时间
2007-10-10
精华
0
 楼主| 发表于 2017-8-22 10:36:14 | 显示全部楼层
本帖最后由 irenejw 于 2017-8-22 10:54 编辑

将近两个月的考虑和制作,11月份,二楼钢结构的雏形做好了,用的槽钢和工字钢 IMG_20161106_162237副本.jpg
微信图片_20170822105002.jpg
微信图片_20170822104959.jpg
微信图片_20170822104943.jpg


回复 支持 反对

使用道具 举报

0

收听

1

听众

347

帖子

E粉明星

注册时间
2007-10-10
精华
0
 楼主| 发表于 2017-8-22 11:27:38 | 显示全部楼层

阳台做成了阳光房,顶是不锈钢框架,12个的钢化玻璃

本帖最后由 irenejw 于 2017-8-24 10:25 编辑

微信图片_20170824101909_副本.jpg 微信图片_20170824101926_副本.jpg

厨卫顶用夹心板改造。下面是新旧对比图
副本04.jpg IMG_20161106_160404副本.jpg





回复 支持 反对

使用道具 举报

您需要登录后才可以回帖 登录 | 注册

本版积分规则

联系合作|手机版|手机APP|Archiver|

GMT+8, 2025-12-10 21:06 Powered by Discuz! X3.4

安庆E网生活网站 © 2001-2013 Comsenz Inc. ( 皖ICP备05012696号 )

QQ

安庆瑞易文化 地址:华茂1958-C7栋 联系电话:0556-5306667 联系邮箱:17779721@qq.com 互联网违法和不良信息举报电话和邮箱:0556-5306667 17779721@qq.com

皖公网安备 34080002000101号

    
快速回复 返回顶部 返回列表