安庆E网

搜索
查看: 10849|回复: 11

[样板间] 华茂1958黄先生杨姐吉宅(简约的美式风格)

[复制链接]

1

收听

5

听众

228

帖子

未认证商家

注册时间
2015-9-13
精华
0
发表于 2016-9-10 13:01:46 | 显示全部楼层 |阅读模式
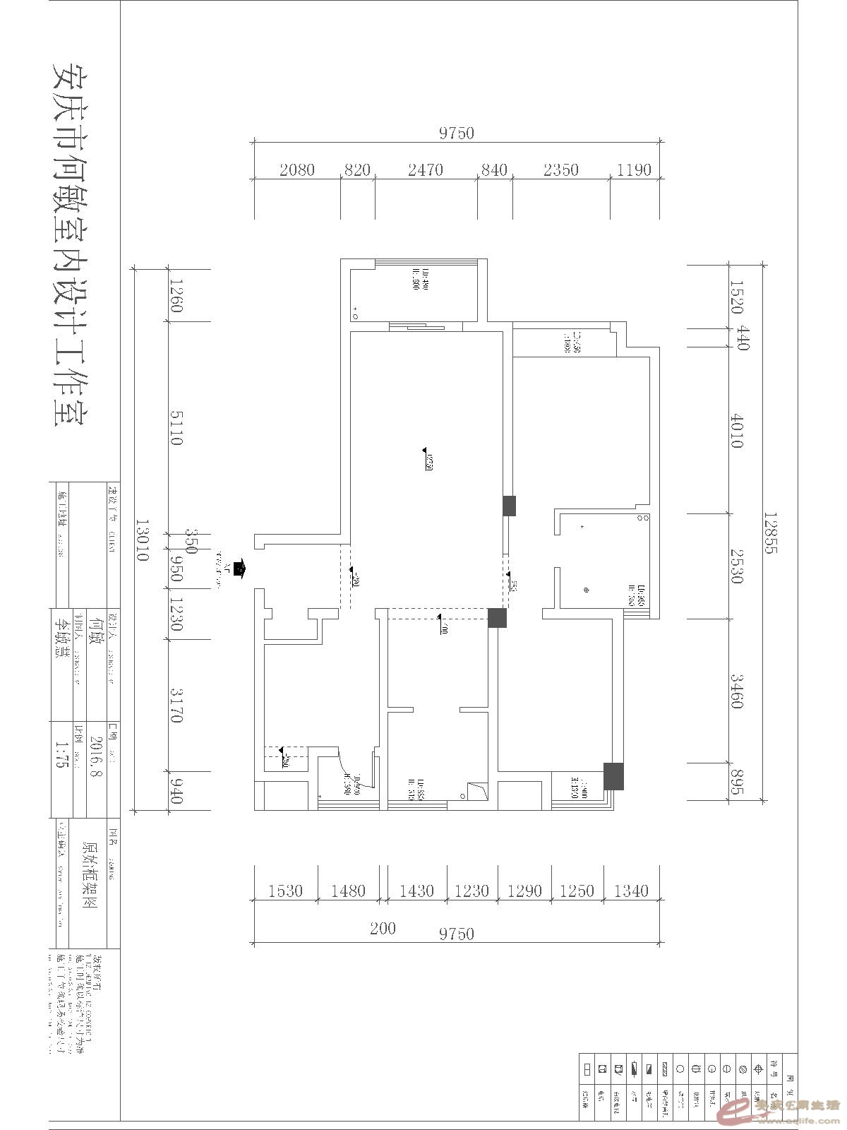
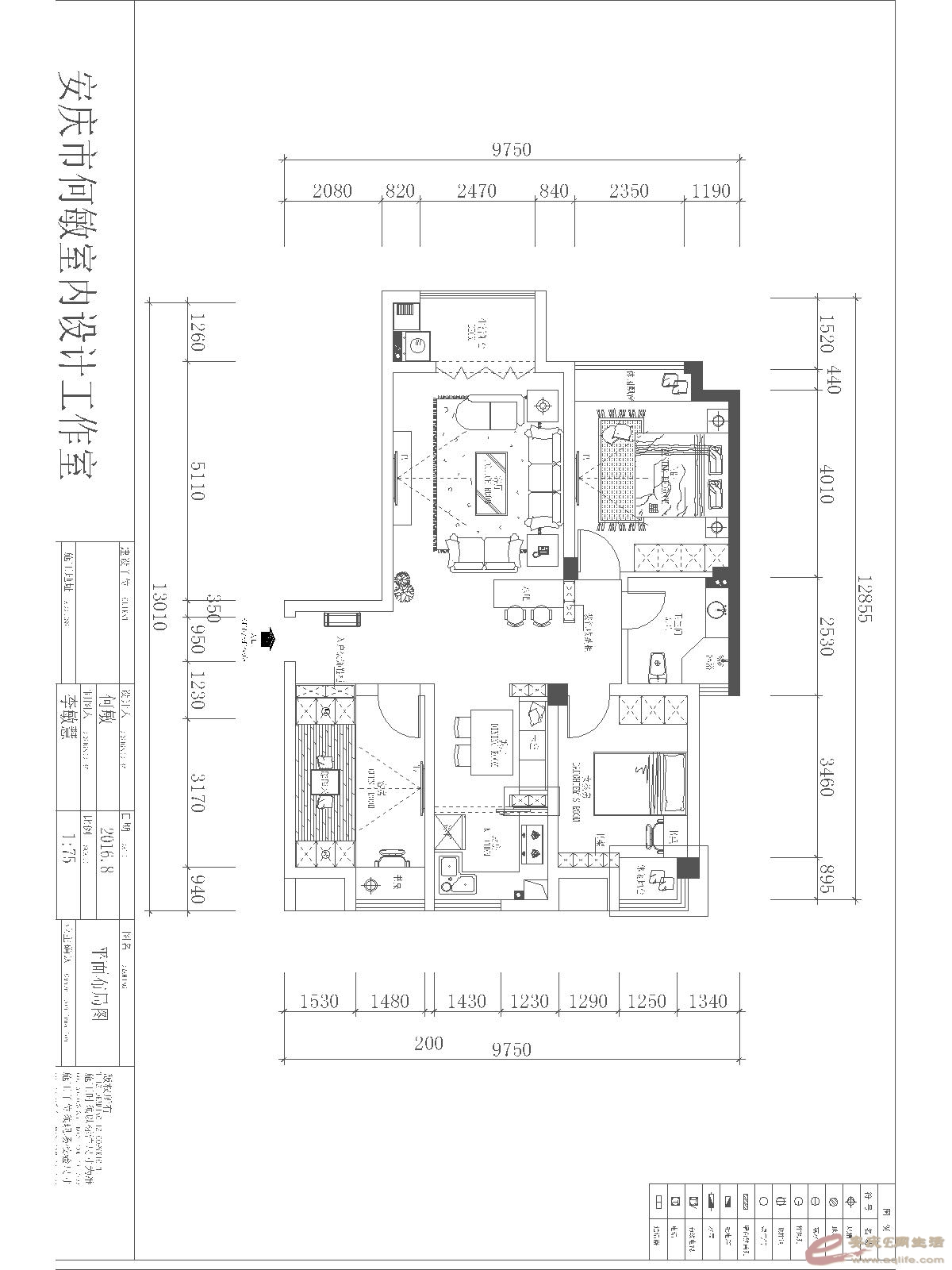
现在宜城的客户也很喜欢这种简约的美式风格!希望喜欢的点个赞,不喜欢的也勿喷啊!!毕竟每家每户喜欢的风格和需求也不一样!每户都是根据客户量身设计的!!原始图 原始图l.jpg 平面布局图 平面布局图.jpg 进户门 6.jpg 客厅电视背景墙 13.jpg 客厅 5.jpg 11.jpg 过道 12.jpg 餐厅 10.jpg 9.jpg 8.jpg 厨房视角 7.jpg 客房 4.jpg 女儿房 2.jpg 1.jpg
专业纯设计工作室:承接各种家装、工装的设计业务
地址:安庆华茂1958商业街B5#603室  电话:18055667977何工
何敏设计工作室
回复

使用道具 举报

1

收听

5

听众

228

帖子

未认证商家

注册时间
2015-9-13
精华
0
 楼主| 发表于 2016-9-11 15:00:41 | 显示全部楼层
专业纯设计工作室:承接各种家装、工装的设计业务
地址:安庆华茂1958商业街B5#603室  电话:18055667977何工
何敏设计工作室
回复

使用道具 举报

6

收听

4

听众

921

帖子

认证商家

注册时间
2013-5-23
精华
0
QQ
发表于 2016-9-11 20:21:24 | 显示全部楼层
给人清爽焕然一新的感觉挺一个
回复 支持 反对

使用道具 举报

1

收听

5

听众

228

帖子

未认证商家

注册时间
2015-9-13
精华
0
 楼主| 发表于 2016-9-12 10:41:21 | 显示全部楼层
绿娃门窗 发表于 2016-9-11 20:21
给人清爽焕然一新的感觉挺一个

谢谢你的点评!
专业纯设计工作室:承接各种家装、工装的设计业务
地址:安庆华茂1958商业街B5#603室  电话:18055667977何工
何敏设计工作室
回复 支持 反对

使用道具 举报

1

收听

5

听众

228

帖子

未认证商家

注册时间
2015-9-13
精华
0
 楼主| 发表于 2016-9-16 11:37:13 | 显示全部楼层
专业纯设计工作室:承接各种家装、工装的设计业务
地址:安庆华茂1958商业街B5#603室  电话:18055667977何工
何敏设计工作室
回复

使用道具 举报

1

收听

5

听众

228

帖子

未认证商家

注册时间
2015-9-13
精华
0
 楼主| 发表于 2016-9-19 10:31:55 | 显示全部楼层
顶起来!!
专业纯设计工作室:承接各种家装、工装的设计业务
地址:安庆华茂1958商业街B5#603室  电话:18055667977何工
何敏设计工作室
回复

使用道具 举报

0

收听

1

听众

65

帖子

E粉新人

注册时间
2014-7-16
精华
0
发表于 2016-9-20 20:22:09 | 显示全部楼层
欧尼壁纸欢迎业主光临,一定物美价廉哦!南翔光彩国际家居博览中心2层5号 欧尼壁纸 18655650365 王经理
回复 支持 反对

使用道具 举报

1

收听

5

听众

228

帖子

未认证商家

注册时间
2015-9-13
精华
0
 楼主| 发表于 2016-9-21 10:18:46 | 显示全部楼层
专业纯设计工作室:承接各种家装、工装的设计业务
地址:安庆华茂1958商业街B5#603室  电话:18055667977何工
何敏设计工作室
回复

使用道具 举报

头像被屏蔽

0

收听

1

听众

144

帖子

禁止发言

注册时间
2016-9-24
精华
0
发表于 2016-9-24 14:54:56 | 显示全部楼层
提示: 作者被禁止或删除 内容自动屏蔽
回复 支持 反对

使用道具 举报

1

收听

5

听众

228

帖子

未认证商家

注册时间
2015-9-13
精华
0
 楼主| 发表于 2016-9-25 16:58:51 | 显示全部楼层

顶上去
专业纯设计工作室:承接各种家装、工装的设计业务
地址:安庆华茂1958商业街B5#603室  电话:18055667977何工
何敏设计工作室
回复

使用道具 举报

1

收听

5

听众

228

帖子

未认证商家

注册时间
2015-9-13
精华
0
 楼主| 发表于 2019-4-1 16:07:14 | 显示全部楼层
专业纯设计工作室:承接各种家装、工装的设计业务
地址:安庆华茂1958商业街B5#603室  电话:18055667977何工
何敏设计工作室
回复

使用道具 举报

1

收听

5

听众

228

帖子

未认证商家

注册时间
2015-9-13
精华
0
 楼主| 发表于 2019-7-19 13:11:30 | 显示全部楼层
回复

使用道具 举报

您需要登录后才可以回帖 登录 | 注册

本版积分规则

联系合作|手机版|手机APP|Archiver|

GMT+8, 2025-12-10 16:03 Powered by Discuz! X3.4

安庆E网生活网站 © 2001-2013 Comsenz Inc. ( 皖ICP备05012696号 )

QQ

安庆瑞易文化 地址:华茂1958-C7栋 联系电话:0556-5306667 联系邮箱:17779721@qq.com 互联网违法和不良信息举报电话和邮箱:0556-5306667 17779721@qq.com

皖公网安备 34080002000101号

    
快速回复 返回顶部 返回列表