安庆E网

搜索
查看: 4867|回复: 0

[装修公司] 安庆泓邺装饰工程有限公司

[复制链接]

0

收听

1

听众

31

帖子

E粉新星

注册时间
2010-5-5
精华
0
发表于 2016-11-8 10:40:19 | 显示全部楼层 |阅读模式
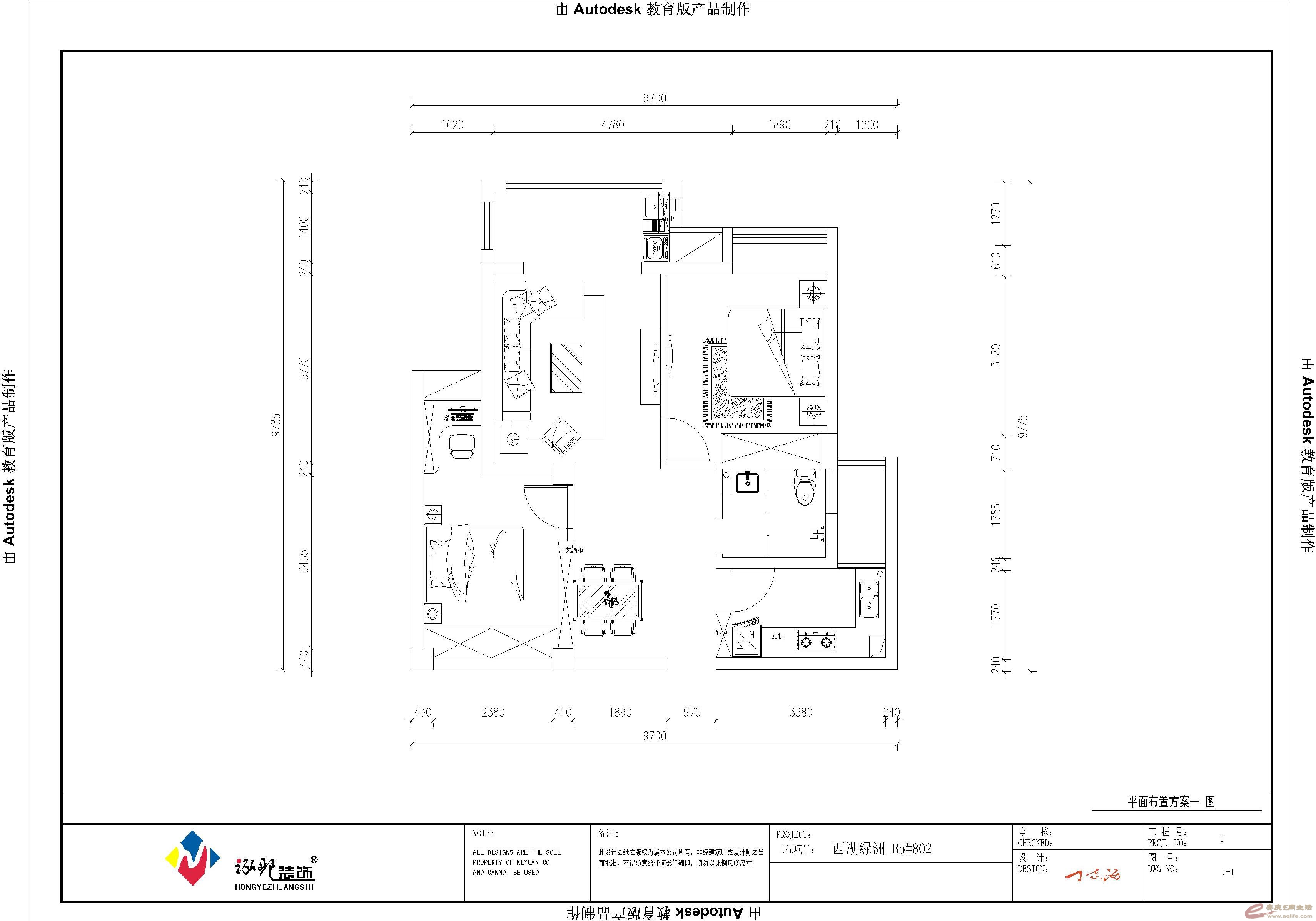
西湖绿洲城B5#

1.原始图: 西湖绿洲 B5#802-原始图.jpg

2.平面布置图: 西湖绿洲 B5#802-平面图.jpg

3.效果图展示: 客厅效果图-3.jpg 客厅效果图-1.jpg 客厅效果图-2.jpg


5.装修日记

     01、水电施工现场:
          FullSizeRender(11).jpg FullSizeRender.jpg FullSizeRender(1).jpg FullSizeRender(4).jpg FullSizeRender(5).jpg FullSizeRender(6).jpg FullSizeRender(7).jpg FullSizeRender(9).jpg FullSizeRender(10).jpg

02.木工图:

IMG_3402.JPG IMG_3403.JPG IMG_3404.JPG IMG_3405.JPG

后继续上图,质量与服务不错!值得推荐和信赖!!!
我选择我喜欢
回复

使用道具 举报

您需要登录后才可以回帖 登录 | 注册

本版积分规则

联系合作|手机版|手机APP|Archiver|

GMT+8, 2025-12-10 17:00 Powered by Discuz! X3.4

安庆E网生活网站 © 2001-2013 Comsenz Inc. ( 皖ICP备05012696号 )

QQ

安庆瑞易文化 地址:华茂1958-C7栋 联系电话:0556-5306667 联系邮箱:17779721@qq.com 互联网违法和不良信息举报电话和邮箱:0556-5306667 17779721@qq.com

皖公网安备 34080002000101号

    
快速回复 返回顶部 返回列表