安庆E网

搜索
楼主: ahaqhmj

[装修日记] 新河南岸、香水小宅装修杂记(平面方案微调)

  [复制链接]

0

收听

2

听众

40

帖子

E粉新人

注册时间
2015-7-20
精华
2
 楼主| 发表于 2016-12-13 14:05:05 | 显示全部楼层
    双12,在网上买了几样装修要用的小东西,试一下网购到底靠不靠谱。虽然这些东西在安庆也能买到,并且价格可能更实惠,质量更有保障,服务更好,但是不得不说:光彩实在是太大了,地方实在是找不到!
360截图20161213134539312.jpg
360截图20161213134710753.jpg
360截图20161213134741848.jpg
回复 支持 反对

使用道具 举报

6

收听

3

听众

2846

帖子

认证商家

注册时间
2008-5-12
精华
1

我的原则是今天的客户,明天的朋友,走自己的路让别人说去吧。

QQ
发表于 2016-12-14 20:14:27 | 显示全部楼层
ahaqhmj 发表于 2016-12-7 18:52
谢谢你的建议。开放式厨房会不会有油烟问题?

不客气,如果用开放式厨房建议您用集成灶。至于您说的用不了集成灶,我想到现场现场勘测之后给出合理的方案,应该可以的。
我的联系电话:13905569197
美多集成灶地址:南翔光彩博览中心一楼南厅61号  电话:8882250    13905569197
回复 支持 反对

使用道具 举报

0

收听

2

听众

40

帖子

E粉新人

注册时间
2015-7-20
精华
2
 楼主| 发表于 2016-12-15 20:14:30 | 显示全部楼层
新派橱柜 发表于 2016-12-14 20:14
不客气,如果用开放式厨房建议您用集成灶。至于您说的用不了集成灶,我想到现场现场勘测之后给出合理的方 ...

谢谢关注!经与家人商量,还是不考虑开放式厨房,到订厨柜的时候如果有问题再请教你。
回复 支持 反对

使用道具 举报

0

收听

2

听众

40

帖子

E粉新人

注册时间
2015-7-20
精华
2
 楼主| 发表于 2016-12-15 20:22:10 | 显示全部楼层
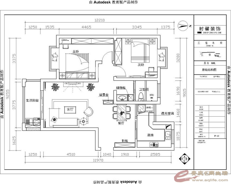
经确定:主卧的门无法改动!因此只能按现有的格局进行布置,初步确定的平面布置图如下,请大家提供宝贵意见。
6cc27c335cef48915f76132e2374009f_副本.jpg

点评

那个隔断 碍事。影响视觉  发表于 2016-12-16 11:09
回复 支持 反对

使用道具 举报

2

收听

24

听众

1951

帖子

E粉明星

注册时间
2010-8-8
精华
0
发表于 2016-12-16 10:55:49 | 显示全部楼层
222.jpg
回复 支持 反对

使用道具 举报

2

收听

24

听众

1951

帖子

E粉明星

注册时间
2010-8-8
精华
0
发表于 2016-12-16 11:05:34 | 显示全部楼层
232.jpg
回复 支持 反对

使用道具 举报

2

收听

24

听众

1951

帖子

E粉明星

注册时间
2010-8-8
精华
0
发表于 2016-12-16 11:32:34 | 显示全部楼层
还有餐厨区也有很大的变异

点评

感谢你的宝贵意见,受教了!主次卧对调跟楼主提过被否定了,厨房因楼主希望与原有的相近,可能每个人生活习惯和需求都不近相同!  发表于 2016-12-17 08:50
回复 支持 反对

使用道具 举报

0

收听

2

听众

40

帖子

E粉新人

注册时间
2015-7-20
精华
2
 楼主| 发表于 2016-12-16 22:02:18 | 显示全部楼层
本帖最后由 ahaqhmj 于 2016-12-16 22:04 编辑
竞叫战士 发表于 2016-12-16 11:32
还有餐厨区也有很大的变异

    谢谢你的意见。我上E网也有一点时间了,E网上的装修贴跟贴的90%以上都是商家,缺少外地的装修论坛装友之间相互交流、学习装修经验的气氛,可是却经常能看到你给别人无私提供参考建议,证明你是一个热心人,谢谢!
    设置隔断是个不得已的办法,因为门旁边还有一个垛子,如图:
户型图.jpg
       餐厅边设置餐边柜的做法我喜欢,已提供给设计师参考。
105546yl8oc3nlnyt70hh0 (2).jpg

点评

实地考察垛子的材质  发表于 2016-12-16 23:19
那个垛子 90%的情况下不是减力结构(包括下面的J字的底部 牵扯到施工成本问题),即便有垛子剔除切割0.2M ,不会有什么问题的。  发表于 2016-12-16 23:18
回复 支持 反对

使用道具 举报

9

收听

7

听众

1349

帖子

认证商家

注册时间
2011-11-6
精华
0
发表于 2016-12-18 20:53:24 | 显示全部楼层
如果那跺墙砸不掉的话,这个平面方案基本差不多了,唯一的是那个斜角做成圆弧的就更好了。
QQ截图20161218204902.png
展厅地址:光彩国际家居博览中心一层61号
销售热线:8882250
客服热线:8882251
品鉴热线:13905569197   qq:2502490242
做适合中国人的厨房,您的满意是我们最高的荣誉[
回复 支持 反对

使用道具 举报

9

收听

7

听众

1349

帖子

认证商家

注册时间
2011-11-6
精华
0
发表于 2016-12-18 20:55:34 | 显示全部楼层
战士的方案也不错,但灶具最好不要和冰箱正面相对
QQ截图20161218205005.png

点评

呵呵 风水只要紧抓三要素就很不错了。再说冰箱为什么五行属金?在穷苦的时代----属于大件---属于贵重物品。而现在冰箱相对于我们的生活,只能属于普通电器,五行我觉得属火。和灶台犯什么冲?  发表于 2016-12-20 22:10
展厅地址:光彩国际家居博览中心一层61号
销售热线:8882250
客服热线:8882251
品鉴热线:13905569197   qq:2502490242
做适合中国人的厨房,您的满意是我们最高的荣誉[
回复 支持 反对

使用道具 举报

3

收听

71

听众

1万

帖子

超级版主

注册时间
2004-12-8
精华
287

情多累美人

公益义工

QQ
发表于 2016-12-19 09:26:38 | 显示全部楼层
欢迎关注,安庆e网装修版有样板房直通车,装修小团,装修团购会,e网验房团等多种活动,可以及时关注版块置顶帖,12月31日,第三期安庆e网砍价小团走进索菲亚整体衣柜-移门,欢迎报名
跨年放大招 索菲亚·司米橱柜利动千城大促(31号E网专场团购会)
http://www.aqlife.com/forum.php? ... 18&fromuid=1540
(出处: 安庆E网)

曾因酒醉鞭名马,生怕情多累美人……℡易随飞ooO…………18955600753
回复 支持 反对

使用道具 举报

0

收听

2

听众

40

帖子

E粉新人

注册时间
2015-7-20
精华
2
 楼主| 发表于 2016-12-19 13:57:04 | 显示全部楼层
锦致橱柜 发表于 2016-12-18 20:53
如果那跺墙砸不掉的话,这个平面方案基本差不多了,唯一的是那个斜角做成圆弧的就更好了。

谢谢你的建议。
回复 支持 反对

使用道具 举报

0

收听

2

听众

40

帖子

E粉新人

注册时间
2015-7-20
精华
2
 楼主| 发表于 2016-12-19 15:46:33 | 显示全部楼层
本帖最后由 ahaqhmj 于 2016-12-19 16:00 编辑

    今天写一下关于设计师的选择过程。    我在网上发了询价的贴子后,联系的装饰公司和独立设计师有十几家,纯设计的报价一般在20——60元不等,还有更高的我直接PASS掉了,第一是因为资金有限请不起,第二是我感觉我的房子还没有奇葩到要象“梦想改造家”里那些牛叉的设计师进行脱胎换骨改造的地步。在20——60元这个区间里选择了几家量房,平面方案出来后基本雷同,只能说大同小异,最后决定在两家之间进行选择,一家就是现在合作的时馨装饰,还有另外一家。
    先说另外一家。这个设计师是朋友介绍的,以前跟朋友有过工作上的合作,原来在一家比较知名的装饰公司做设计师,后来自己出来开了设计工作室。开始时我是倾向于跟他合作的,可是后来发生的事让我改变了决定。一是量房后本来说两天左右出平面方案,可我等了快一周没有任何消息,我主动打电话问了一下,他说在县里有个工程在收尾,要第二天回来,回来后联系我。第二天又没有消息,到下午四点左右时我打开手机才知道原来在十一点多的时候他曾经发过一个微信,约我下午三点见面,我没有看到。微信未回是否可以电话联系一下?没办法又约到第三天上午十点,第三天上午我因有事不能准时到达,在9:50的时候我打电话告诉他要迟一点,他说行,不过12点多他要出差,我说我这边马上就完了,应该来得及。过了几分钟他又来电话,说时间搞错了,是11点多的票,今天见面时间来不及了,我说要不你把平面方案发一份给我,我先消化一下,他说不行,要见面谈,没办法只能又约到第四天下午三点,其实到这里我心里的天平已经开始倾斜了。第四天终于见了面,看了平面方案,和前面我已经看过的方案基本一样,没有新的亮点。至此,为了以后联系沟通的顺畅,只能选择忍痛割爱了。
    至于为什么选择了名不见经传的时馨装饰?是不是图便宜?其实不是。时馨的报价并不是最低的,选择时馨,一是因为何老板比较年轻,90后,跟我家孩子差不多。想到我家孩子找工作时的坚辛我觉得年轻人创业不容易,更需要支持。二是小伙子比较聪明,做事积极主动又不卑不亢,始终保持联系又把握有度,不会象牛皮糖一样粘着你让人烦。三是看了两个他做的工地,在可以接受的范围内。四是象我们这个年龄段的人已经养成了固定的生活习惯,认为装修的目的是为了方便生活,请设计师的目的是将自己一些零散的看法通过设计师的专业设计,最后形成兼顾美观和功能性的规范化的施工方案。所以选择了时馨装饰,从目前情况看,沟通还是比较顺畅,希望我们能有一个好的合作成果!




回复 支持 1 反对 0

使用道具 举报

1

收听

9

听众

5117

帖子

E粉明星

注册时间
2009-11-24
精华
0

室内装饰设计QQ243160571

QQ
发表于 2016-12-19 16:21:29 | 显示全部楼层
楼主楼上所述深有感触,之前也有不少业主看我们年轻支持我们创业,在此非常感激,信任一个人不容易,所以定当全力以赴,祝楼主装修顺利,顺心
东盛装饰  您身边的装修专家!
地址:光彩四期烩街公寓6楼(光彩大舞台隔壁)
电话:13625565176   5200845
回复 支持 反对

使用道具 举报

4

收听

2

听众

1414

帖子

未认证商家

注册时间
2011-5-4
精华
0
QQ
发表于 2016-12-19 17:30:46 | 显示全部楼层
楼主真的善解人意祝装修一切顺利~~
青年装饰
地址:江畔尚城大门西侧
联系电话:18297709288   QQ:641125232
回复 支持 反对

使用道具 举报

1

收听

1

听众

7

帖子

E粉新人

注册时间
2016-5-28
精华
0
发表于 2016-12-20 16:26:38 | 显示全部楼层
谢谢叔叔对我的信任和工作的大力支持!期待接下来的工作当中能够尽可能的为您排忧解难,希望在您乔迁之喜之时能够很开心,会觉得这就是我想要的。您的满意是我最大的动力,很幸运也很荣幸能够与您一起共同创造一份作品,相信结果会是圆满的。同时也欢迎各位同行及网友共同监督和指导!

点评

加油  发表于 2016-12-20 22:48
加油  发表于 2016-12-20 16:32
回复 支持 反对

使用道具 举报

2

收听

24

听众

1951

帖子

E粉明星

注册时间
2010-8-8
精华
0
发表于 2016-12-20 22:15:29 | 显示全部楼层
锦致橱柜 发表于 2016-12-18 20:55
战士的方案也不错,但灶具最好不要和冰箱正面相对

呵呵.jpg
回复 支持 反对

使用道具 举报

2

收听

24

听众

1951

帖子

E粉明星

注册时间
2010-8-8
精华
0
发表于 2016-12-20 22:21:04 | 显示全部楼层
呵呵  祝楼主好运。

实际上家装要注重边角的处理   做为设计师只能做到这些--------实际上这就是室内风水的调理
回复 支持 反对

使用道具 举报

2

收听

24

听众

1951

帖子

E粉明星

注册时间
2010-8-8
精华
0
发表于 2016-12-20 22:27:32 | 显示全部楼层
本帖最后由 竞叫战士 于 2016-12-20 22:31 编辑

字数补丁  字数补丁
回复 支持 反对

使用道具 举报

9

收听

7

听众

1349

帖子

认证商家

注册时间
2011-11-6
精华
0
发表于 2016-12-20 23:03:14 | 显示全部楼层
好久没看到这样的帖子了,探讨方案和心得才不失E网装修板块的存在,希望看到更多这样的好贴。
其实每个方案都有它的利与弊,风水这个东西信其者有,不信其者无,我们这些凡夫俗子很难说的清楚。可根据楼主喜欢的生活方式和欣赏眼光来取利大于弊的方案,就是最佳方案。

点评

为什么说四大文明古国就只剩下中国了?就是因为我们有风水学!连你都晓得灶台和冰箱(知其然不知其所以然)犯冲,可谓全名皆兵鸟。  发表于 2016-12-22 19:17
展厅地址:光彩国际家居博览中心一层61号
销售热线:8882250
客服热线:8882251
品鉴热线:13905569197   qq:2502490242
做适合中国人的厨房,您的满意是我们最高的荣誉[
回复 支持 反对

使用道具 举报

0

收听

2

听众

40

帖子

E粉新人

注册时间
2015-7-20
精华
2
 楼主| 发表于 2016-12-23 19:40:43 | 显示全部楼层
谢谢各位热心朋友的指点。堪舆、风水是一门高深的学问,城市商品住宅影响因素较多,在风水上没有缺陷的十分难得,况且我本人是一个唯物主义者,我的原则是在保证实用性、功能性、方便生活的基础上兼顾避免一些大家已经约定俗成的所谓风水缺陷,所以平面方案不做大的调整,只做一点微调。自己的想法,还未与设计师沟通。
回复 支持 反对

使用道具 举报

0

收听

2

听众

40

帖子

E粉新人

注册时间
2015-7-20
精华
2
 楼主| 发表于 2016-12-23 20:27:30 | 显示全部楼层
ahaqhmj 发表于 2016-12-23 19:40
谢谢各位热心朋友的指点。堪舆、风水是一门高深的学问,城市商品住宅影响因素较多,在风水上没有缺陷的十分 ...

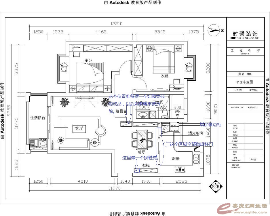
1、垛子是混凝土的,切掉我认为要慎重;
2、厨房的调整也只是灶具放在还是西墙的问题,放在墙厨房布局就跟我现在的厨房是一模一样的,用起来习惯,不过烟管要加长,到时买油烟机要买风量大一点的,放在西墙不用加长烟管,但热水器到卫生间的热水管线要长一点,这个等听取专业人士的意见后再定;
3、除了以上因素外,对平面布置图做一点微调;
平面布置图12.jpg
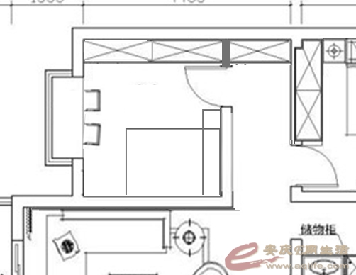
4、隔断位置准备放如图所示的成品家具。
隔断5.jpg 隔断6.jpg
回复 支持 反对

使用道具 举报

0

收听

1

听众

376

帖子

E粉新星

注册时间
2014-2-3
精华
0
发表于 2016-12-23 21:06:19 www.aqlife.com | 显示全部楼层
楼主的前置过滤器买了没有?如果没买就不要买了,没什么用,除非你家的自来水经常含有大颗粒的杂质。不锈钢过滤看起来高大上,其实空隙很大。
回复 支持 反对

使用道具 举报

2

收听

24

听众

1951

帖子

E粉明星

注册时间
2010-8-8
精华
0
发表于 2016-12-24 01:01:43 | 显示全部楼层
本帖最后由 竞叫战士 于 2016-12-24 01:14 编辑

唯物主义 居然在乎入户门与主卧门相穿?



我倒觉得你有些违心主义
回复 支持 反对

使用道具 举报

0

收听

2

听众

40

帖子

E粉新人

注册时间
2015-7-20
精华
2
 楼主| 发表于 2016-12-24 10:58:46 | 显示全部楼层
csvs 发表于 2016-12-23 21:06
楼主的前置过滤器买了没有?如果没买就不要买了,没什么用,除非你家的自来水经常含有大颗粒的杂质。不锈钢 ...

谢谢,双12的时候在网上买了一个相对便宜的。原因有两个:一是我在杭州呆过多年,喜欢上杭州的装修论坛,杭州的朋友装这个东西现在似乎已经是主流;二是我家的淋喷头过一段时间就会出现水流斜喷的现象,打开后会发现有砂子一样的东西堵住了喷口。反正钱不多,看看效果吧。
回复 支持 反对

使用道具 举报

您需要登录后才可以回帖 登录 | 注册

本版积分规则

联系合作|手机版|手机APP|Archiver|

GMT+8, 2025-12-12 01:41 Powered by Discuz! X3.4

安庆E网生活网站 © 2001-2013 Comsenz Inc. ( 皖ICP备05012696号 )

QQ

安庆瑞易文化 地址:华茂1958-C7栋 联系电话:0556-5306667 联系邮箱:17779721@qq.com 互联网违法和不良信息举报电话和邮箱:0556-5306667 17779721@qq.com

皖公网安备 34080002000101号

    
快速回复 返回顶部 返回列表