安庆E网

搜索
查看: 8992|回复: 24

[装修日记] 我的小家——吾悦小舍の装修记录

[复制链接]

0

收听

1

听众

13

帖子

E粉新人

注册时间
2016-12-6
精华
0
发表于 2016-12-6 14:30:01 | 显示全部楼层 |阅读模式
今天终于开始写装修记录了,不敢叫日记是因为不一定能坚持,而且打字的速度也慢。10月26日我的新家开始动工,早前几个月前我的主材就已经定了一大半了了,所以现在要轻松许多。我找的是君澜设计,因为其设计解决了我户型的不足同时满足了我储藏的功用,所以我挺满意。开工初期几天主要是砌墙,开线槽,都拍了照片后面会发上市。别的好像没什么了,就写写我订的主材吧,瓷砖冠珠,橱柜欧派,空调美的。今天就到这吧。
  • [url=]
    [/url]




518242676030431740.jpg
783106057552247310.jpg
740873955081241523.jpg
875937772241685817.jpg
857706013994522290.jpg
135147002967197927.jpg
13374939438076891.jpg
295611413140021787.jpg
322302477795356676.jpg
350890822498220197.jpg
361223636774314849.jpg
379635271773418292.jpg
396780963241069263.jpg
487275608381438004.jpg
688041059347721849.jpg
808236110860122956.jpg
回复

使用道具 举报

0

收听

2

听众

142

帖子

E粉明星

注册时间
2015-9-16
精华
0
发表于 2016-12-6 16:52:48 www.aqlife.com | 显示全部楼层
顶吾悦邻居
回复 支持 反对

使用道具 举报

3

收听

12

听众

2040

帖子

认证商家

注册时间
2009-5-5
精华
0
发表于 2016-12-6 19:34:55 | 显示全部楼层
请问楼主地板定了没有?
地址:一店:光彩四期E区13栋56号 服务热线:5309299;二店:光彩博览中心2楼37号电话:5299809
回复 支持 反对

使用道具 举报

0

收听

1

听众

24

帖子

E粉新人

注册时间
2016-8-15
精华
0
发表于 2016-12-7 09:21:07 | 显示全部楼层
本帖最后由 夏去秋来。 于 2016-12-7 09:22 编辑
安庆久盛地板 发表于 2016-12-6 19:34
请问楼主地板定了没有?

你们家最近在做活动吗
回复 支持 反对

使用道具 举报

0

收听

1

听众

24

帖子

E粉新人

注册时间
2016-8-15
精华
0
发表于 2016-12-7 09:21:49 | 显示全部楼层
无痕若梦 发表于 2016-12-6 16:52
顶吾悦邻居

来自手机APP客户端

我也来支持一下
回复 支持 反对

使用道具 举报

头像被屏蔽

0

收听

1

听众

459

帖子

禁止发言

注册时间
2015-9-18
精华
0
QQ
发表于 2016-12-7 10:59:51 | 显示全部楼层
提示: 作者被禁止或删除 内容自动屏蔽
签名被屏蔽
回复 支持 反对

使用道具 举报

0

收听

1

听众

276

帖子

认证商家

注册时间
2016-2-24
精华
0
发表于 2016-12-7 13:39:56 | 显示全部楼层
祝福楼主装修顺利!
美多集成灶安庆专卖店地址:光彩二期五区7栋28号
电话:5015980      13905569197
安庆二店地址:南翔光彩家居博览中心南厅一层61号
电话:8882250      13905569197
回复 支持 反对

使用道具 举报

0

收听

1

听众

13

帖子

E粉新人

注册时间
2016-12-6
精华
0
 楼主| 发表于 2016-12-7 14:03:49 | 显示全部楼层
安庆久盛地板 发表于 2016-12-6 19:34
请问楼主地板定了没有?

目前还没有
回复 支持 反对

使用道具 举报

0

收听

1

听众

13

帖子

E粉新人

注册时间
2016-12-6
精华
0
 楼主| 发表于 2016-12-7 14:04:11 | 显示全部楼层
能率燃气热水器 发表于 2016-12-7 10:59
恭祝楼主装修大吉!
选热水器的时候欢迎到我们能率来坐坐了解下!
65年的专业历史,好品牌好 ...

好的 谢谢!
回复 支持 反对

使用道具 举报

0

收听

1

听众

13

帖子

E粉新人

注册时间
2016-12-6
精华
0
 楼主| 发表于 2016-12-7 14:04:31 | 显示全部楼层
美多集成灶 发表于 2016-12-7 13:39
祝福楼主装修顺利!

谢谢!
回复 支持 反对

使用道具 举报

1

收听

1

听众

219

帖子

未认证商家

注册时间
2015-11-22
精华
0
发表于 2016-12-7 14:11:21 | 显示全部楼层
安徽君澜装饰
手机:15105563933
电话:0556-5545899
Q  Q/微信:1132225577
地址:皖江大道绿地LOFT 1#楼6层
回复

使用道具 举报

0

收听

1

听众

13

帖子

E粉新人

注册时间
2016-12-6
精华
0
 楼主| 发表于 2016-12-7 14:22:42 | 显示全部楼层
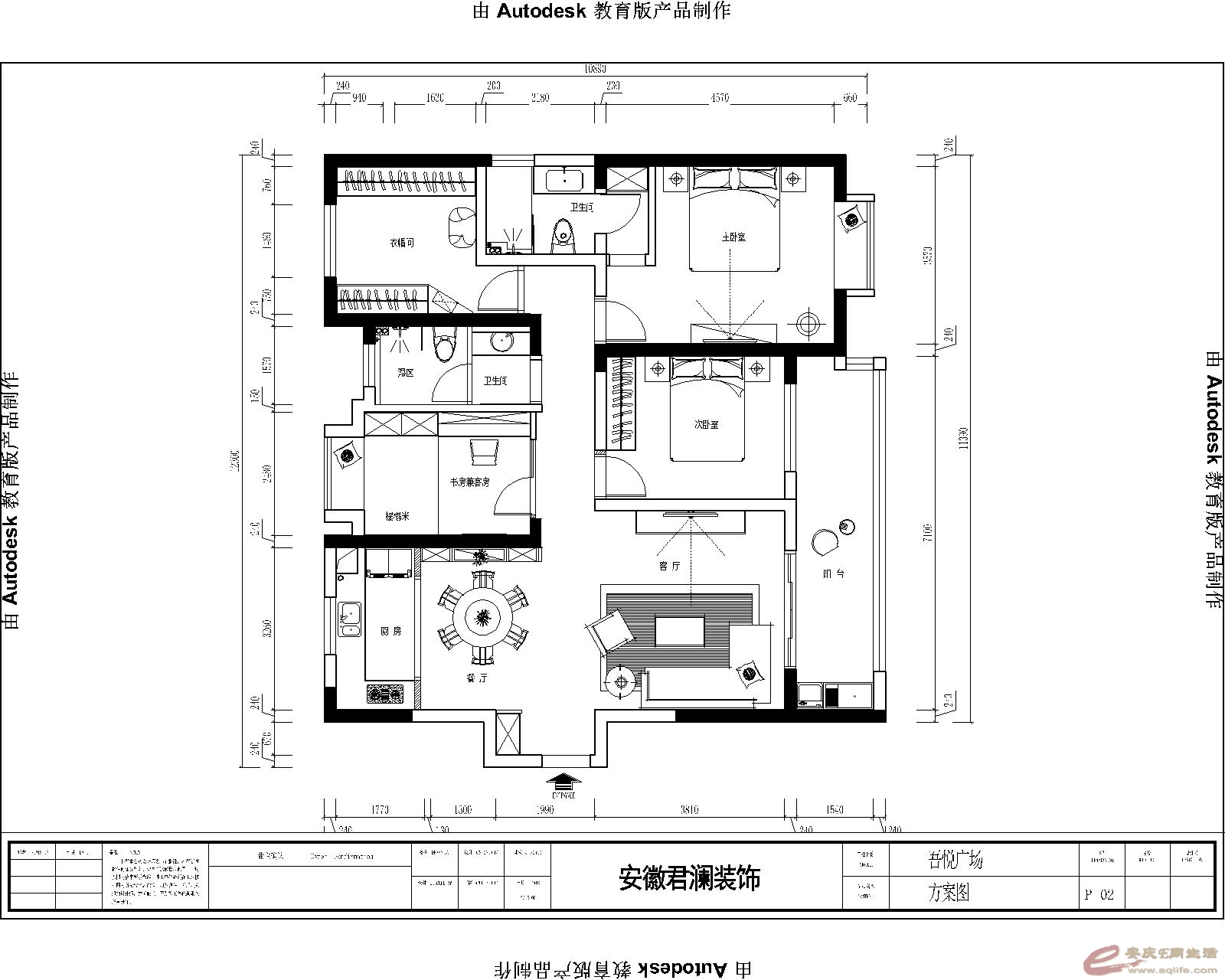
当初选择这个户型的一个决定性因素是阳台的面积,相对于其他户型都比较大,只是美中不足的是书房的面积较小。先上一张我家的户型图
6#1-2501-布局1.jpg
回复 支持 反对

使用道具 举报

0

收听

1

听众

13

帖子

E粉新人

注册时间
2016-12-6
精华
0
 楼主| 发表于 2016-12-7 14:28:15 | 显示全部楼层
之后经朋友的介绍,与君澜的设计师沟通,并在他的实地考察之后,针对我家的户型给出了一套我非常满意的方案,就是将小阳台与原本书房的位置打通,改成衣帽间。这样既不显得狭小拥挤,又满足我的储物需求,正好家里有个小女儿,东西多的很,哈哈,非常满意呀。
6#1-2501-布局2.jpg
回复 支持 反对

使用道具 举报

0

收听

1

听众

13

帖子

E粉新人

注册时间
2016-12-6
精华
0
 楼主| 发表于 2016-12-7 14:31:31 | 显示全部楼层
本来客房位置的飘窗是准备留着的,后来考虑到实用性还是不大,加上敲掉之后房间的面积更大,所以开工之后还是让师傅把飘窗打掉了,哈哈
回复 支持 反对

使用道具 举报

3

收听

12

听众

2040

帖子

认证商家

注册时间
2009-5-5
精华
0
发表于 2016-12-7 19:27:27 | 显示全部楼层

欢迎参加12.18号久盛工厂团购,价格很实惠。同质量的款式比市场要优惠10%以上。
地址:一店:光彩四期E区13栋56号 服务热线:5309299;二店:光彩博览中心2楼37号电话:5299809
回复 支持 反对

使用道具 举报

0

收听

1

听众

13

帖子

E粉新人

注册时间
2016-12-6
精华
0
 楼主| 发表于 2016-12-9 11:57:31 | 显示全部楼层
本帖最后由 夏天的风~ 于 2016-12-9 11:58 编辑

昨天水电结束了,于是约了空调来上门安装
安装空调1.jpg
安装空调2.jpg
安装空调3.jpg
安装空调4.jpg
回复 支持 反对

使用道具 举报

0

收听

1

听众

23

帖子

E粉新人

注册时间
2016-11-2
精华
0
发表于 2016-12-10 15:38:35 www.aqlife.com | 显示全部楼层
恭祝楼主装修大吉。 我是做中空门的。您中空门订了吗。 我家有活动   电话17730287588
回复 支持 反对

使用道具 举报

0

收听

1

听众

13

帖子

E粉新人

注册时间
2016-12-6
精华
0
 楼主| 发表于 2016-12-12 14:23:59 | 显示全部楼层
欧莱家门业 发表于 2016-12-10 15:38
恭祝楼主装修大吉。 我是做中空门的。您中空门订了吗。 我家有活动   电话17730287588

来自手机APP客户端

谢谢 有时间会去看看的
回复 支持 反对

使用道具 举报

3

收听

12

听众

2040

帖子

认证商家

注册时间
2009-5-5
精华
0
发表于 2016-12-12 18:52:38 | 显示全部楼层
夏去秋来。 发表于 2016-12-7 09:21
你们家最近在做活动吗

工厂团购活动。价格很实惠,品种多,并且能够亲眼所见现代化地板工厂和制造流程。报名热线:5299809,5800780
地址:一店:光彩四期E区13栋56号 服务热线:5309299;二店:光彩博览中心2楼37号电话:5299809
回复 支持 反对

使用道具 举报

0

收听

2

听众

174

帖子

E粉明星

注册时间
2016-10-7
精华
0
发表于 2016-12-13 06:52:02 | 显示全部楼层
水电铺设搞得很好,冷热水分开走,水管、电线管分别使用卡子固定,很牢靠。赞一个。
回复 支持 反对

使用道具 举报

0

收听

1

听众

8

帖子

E粉新人

注册时间
2016-12-13
精华
0
发表于 2016-12-13 10:43:59 | 显示全部楼层
装修顺利!
高瞻远瞩,易行天下!
地址:舒怡国际家居一期二楼
电话:5678825
回复

使用道具 举报

0

收听

1

听众

13

帖子

E粉新人

注册时间
2016-12-6
精华
0
 楼主| 发表于 2016-12-22 11:18:03 | 显示全部楼层
正清醇 发表于 2016-12-13 06:52
水电铺设搞得很好,冷热水分开走,水管、电线管分别使用卡子固定,很牢靠。赞一个。


回复 支持 反对

使用道具 举报

0

收听

1

听众

13

帖子

E粉新人

注册时间
2016-12-6
精华
0
 楼主| 发表于 2016-12-22 11:18:51 | 显示全部楼层
回复 支持 反对

使用道具 举报

4

收听

2

听众

1414

帖子

未认证商家

注册时间
2011-5-4
精华
0
QQ
发表于 2016-12-23 11:14:43 | 显示全部楼层
顶顶~~~
青年装饰
地址:江畔尚城大门西侧
联系电话:18297709288   QQ:641125232
回复

使用道具 举报

6

收听

4

听众

921

帖子

认证商家

注册时间
2013-5-23
精华
0
QQ
发表于 2017-1-15 14:39:15 | 显示全部楼层
预祝楼主装修大吉。不知道楼主对于自家新房阳台这块怎么规划?现在业主对阳台质量和安全这块的要求越来越高。绿娃专业封阳台。做阳光房。防盗网纱门纱窗。欢迎业主有时间来康熙河百年家居装饰城一楼绿娃阳台专卖店看看。详细了解相关信息。欢迎来店。13625672532吴结娣。正月初十。全城钜惠。不要错过哦。微信13625672532
回复 支持 反对

使用道具 举报

您需要登录后才可以回帖 登录 | 注册

本版积分规则

联系合作|手机版|手机APP|Archiver|

GMT+8, 2025-12-12 02:18 Powered by Discuz! X3.4

安庆E网生活网站 © 2001-2013 Comsenz Inc. ( 皖ICP备05012696号 )

QQ

安庆瑞易文化 地址:华茂1958-C7栋 联系电话:0556-5306667 联系邮箱:17779721@qq.com 互联网违法和不良信息举报电话和邮箱:0556-5306667 17779721@qq.com

皖公网安备 34080002000101号

    
快速回复 返回顶部 返回列表