安庆E网

搜索
查看: 13111|回复: 28

[装修日记] 自由自在的北欧风格BOC模式装修中(寻防水材料3.13日)

  [复制链接]

0

收听

1

听众

166

帖子

E粉新星

注册时间
2006-1-8
精华
0
发表于 2017-1-11 19:49:10 | 显示全部楼层 |阅读模式
本帖最后由 热带鱼 于 2017-3-13 20:40 编辑

      潜水论坛十余载,今朝装修重新回!看到自己论坛的号还能上,非常开心的一件事,虽然有十余年没在论坛发过贴,但期间还是参加E网论坛的好多活动。      谈到装修我 是一个门外汉,拿到房子钥匙的时候一片茫然,不知道从何入手于是就在本版块看了大量的装修日记,学习了大量的装修知识,写这篇日记也不是想写什么装修教科书,只是想把自己的一些装修体会与经验与大家分享,也希望更多的专业和非专业人士提出宝贵的意见。
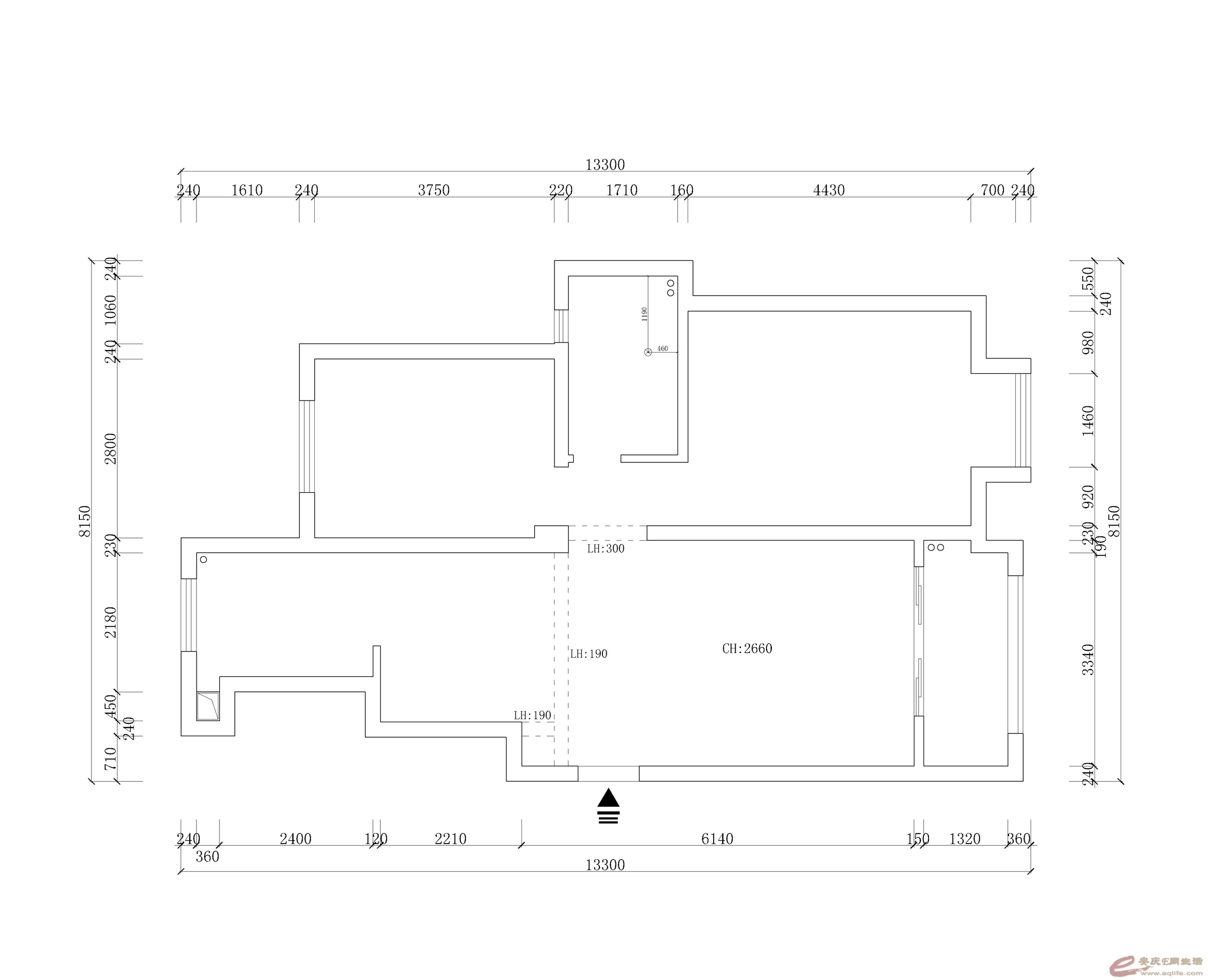
      先上户型图
5.jpg
房子南北通透,比较方正建筑面积100平方,一家三口住,还凑合吧。
下一步就是考虑装修风格,在网上看了大量的图片后,决定装修成极简北欧,简单、干净、明亮是我喜欢的风格。
期间找了好几位设计师来量房,设计平面布局,这里要感谢下几位设计师的辛苦了(没在你们家定装修
期间考虑过半包、全包、全屋整装以及清工。最后决定找设计师设计,包工,自己买材料,这样可以省下点钱(囊中羞涩的必选装修模式)
我是个淘宝达人,自己及家里的用品几乎都来自X宝,装修当然也必须上X宝,在找材料的时候,发现了个同城装修服务中心,一看店主是安庆人。果断进店逛逛。。。。为了广告嫌疑,这里就不把商家店铺地址打出来了,经过一番聊天,决定见面谈下装修事情。私装最麻烦的就是找工人,工人手艺的好坏决定了你家以后的家居上生活质量。
期间和店主有过多次接触提出的问题不但一一解答,还带我到各个工地实地学习,在这里要感谢一下。
最终准备尝试下装修新模式BOC模式。最近一直在外地出差,都跟不上我家装修进度了。。。。
经过左右横竖比较,终于确定了设计师。。
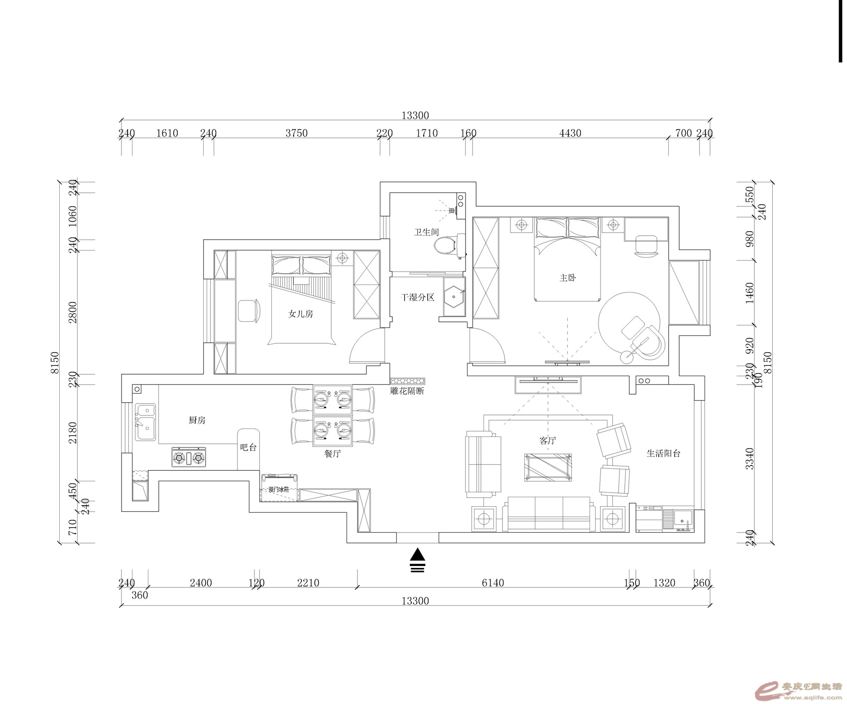
下面是我家平面布局图
6 副本.JPG

装修是个人觉得和高考、结婚并列的人生三大头疼的事,其中的各种纠结,各种付出只有经过的人才能领悟。。。。啊多么痛苦的领悟。。。。
和设计师促膝长谈后,我房子的效果图最终也出炉了。。。。。

北欧简约的客厅,到现在还在纠结客厅要不要主灯。。。。纠结。。。
北欧_View01 副本.JPG
餐厅也是我很纠结的地方,感觉还可以,但是不完美。。。
北欧_View02 副本.JPG
主卧按照我的要求修改的,估计后期还是要改。。。。感觉北欧的不彻底。。。
1 副本.jpg
这个是公主房,女儿一直吵吵要个美丽的公主房。。。。而这个房间至少还要陪她寒窗十年。。。。

女儿房

女儿房


回复

使用道具 举报

0

收听

1

听众

166

帖子

E粉新星

注册时间
2006-1-8
精华
0
 楼主| 发表于 2017-1-11 19:49:31 | 显示全部楼层
本帖最后由 热带鱼 于 2017-3-13 20:29 编辑

此前在淘宝买了好几个G的北欧装修风格图片。。
喜欢北欧简约装修风格的朋友留下QQ邮箱,我免费发给你们。。。
终于在淘宝同城装修服务中心,把 水电、瓦工、木工、油漆工、都确定下来了。。。。
同时感谢店主帮我一起比较价格,看技术比质量,四大金刚全部确定。。。。
定好吉日开工了。。。。

喷绘2个 90X200 副本.JPG 喷绘2个 90X200 副本w.JPG


回复 支持 反对

使用道具 举报

0

收听

1

听众

166

帖子

E粉新星

注册时间
2006-1-8
精华
0
 楼主| 发表于 2017-1-11 19:49:50 | 显示全部楼层
抢楼预定1
回复

使用道具 举报

0

收听

1

听众

166

帖子

E粉新星

注册时间
2006-1-8
精华
0
 楼主| 发表于 2017-1-11 19:50:13 | 显示全部楼层
抢楼预定1
回复

使用道具 举报

0

收听

1

听众

166

帖子

E粉新星

注册时间
2006-1-8
精华
0
 楼主| 发表于 2017-1-11 19:50:32 | 显示全部楼层
抢楼预定1
回复

使用道具 举报

0

收听

1

听众

166

帖子

E粉新星

注册时间
2006-1-8
精华
0
 楼主| 发表于 2017-1-11 19:51:02 | 显示全部楼层
抢楼预定1
回复

使用道具 举报

0

收听

1

听众

166

帖子

E粉新星

注册时间
2006-1-8
精华
0
 楼主| 发表于 2017-1-11 19:51:58 | 显示全部楼层
抢楼预定1
回复

使用道具 举报

0

收听

1

听众

166

帖子

E粉新星

注册时间
2006-1-8
精华
0
 楼主| 发表于 2017-1-11 19:52:16 | 显示全部楼层
抢楼预定1
回复

使用道具 举报

0

收听

1

听众

166

帖子

E粉新星

注册时间
2006-1-8
精华
0
 楼主| 发表于 2017-1-11 19:52:41 | 显示全部楼层
抢楼预定1
回复

使用道具 举报

0

收听

1

听众

166

帖子

E粉新星

注册时间
2006-1-8
精华
0
 楼主| 发表于 2017-1-11 19:59:17 | 显示全部楼层
抢楼预定1
回复

使用道具 举报

0

收听

1

听众

166

帖子

E粉新星

注册时间
2006-1-8
精华
0
 楼主| 发表于 2017-1-11 19:59:52 | 显示全部楼层
抢楼预定1
回复

使用道具 举报

0

收听

1

听众

166

帖子

E粉新星

注册时间
2006-1-8
精华
0
 楼主| 发表于 2017-1-11 20:00:29 | 显示全部楼层
抢楼预定1
回复

使用道具 举报

0

收听

1

听众

166

帖子

E粉新星

注册时间
2006-1-8
精华
0
 楼主| 发表于 2017-3-2 12:06:40 | 显示全部楼层
1抢楼预定1
回复 支持 反对

使用道具 举报

0

收听

1

听众

166

帖子

E粉新星

注册时间
2006-1-8
精华
0
 楼主| 发表于 2017-3-2 12:10:14 | 显示全部楼层
1抢楼预定1
回复 支持 反对

使用道具 举报

1

收听

4

听众

684

帖子

未认证商家

注册时间
2012-2-12
精华
0
发表于 2017-3-2 12:51:48 | 显示全部楼层
期待楼主到锦致橱柜实地考察哦!
锦致橱柜,做最适合中国人的厨房
展厅地址:南翔光彩国际家居博览中心一层61号
品鉴热线:8882250
服务热
回复 支持 反对

使用道具 举报

0

收听

1

听众

166

帖子

E粉新星

注册时间
2006-1-8
精华
0
 楼主| 发表于 2017-3-2 21:00:44 | 显示全部楼层

1抢楼预定1
回复 支持 反对

使用道具 举报

3

收听

12

听众

2040

帖子

认证商家

注册时间
2009-5-5
精华
0
发表于 2017-3-3 06:39:05 | 显示全部楼层
恭喜楼主!
地址:一店:光彩四期E区13栋56号 服务热线:5309299;二店:光彩博览中心2楼37号电话:5299809
回复

使用道具 举报

头像被屏蔽

0

收听

1

听众

459

帖子

禁止发言

注册时间
2015-9-18
精华
0
QQ
发表于 2017-3-3 09:56:38 | 显示全部楼层
提示: 作者被禁止或删除 内容自动屏蔽
签名被屏蔽
回复 支持 反对

使用道具 举报

0

收听

1

听众

573

帖子

未认证商家

注册时间
2013-7-14
精华
0
QQ
发表于 2017-3-3 12:38:48 | 显示全部楼层
您好!爱ta就给ta.馨福家,我是馨福家装饰(全裸透明家装倡导者),我们有专业的家装设计师一对一服务,愿为您提供免费量房设计和预算,公司地址:宜秀区迎宾东路文苑路神墩家居A馆一楼,手机微信:139-6660-5185,我们随时恭候您的光临!!!24小时360度网络视频,手机&电脑随时随地工地现场直播
安庆馨福家装饰【爱ta就给ta.馨福家】-全裸透明家装倡导者
地址:宜秀区迎宾东路文苑路神墩家居A馆一楼装乐汇
手机微信:139-6660-5185    监督电话:0556-5533123
回复 支持 反对

使用道具 举报

1

收听

3

听众

1557

帖子

E粉明星

注册时间
2005-5-11
精华
1

发表于 2017-3-9 16:13:14 | 显示全部楼层
期待楼主继续更新。。。
宠辱不惊,静观堂前花开花落;去留无意,漫看天边云卷云舒。[img]http://attachments.goapk.com/album/2012
回复 支持 反对

使用道具 举报

0

收听

1

听众

276

帖子

认证商家

注册时间
2016-2-24
精华
0
发表于 2017-3-9 21:57:36 | 显示全部楼层
我们美多集成灶3.15诚信惠民大行动,刘涛为您保驾护航,美多集成灶直击天猫,每满1000立减315,抢到就是赚到。期待您的光临。
美多集成灶安庆专卖店地址:光彩二期五区7栋28号
电话:5015980      13905569197
安庆二店地址:南翔光彩家居博览中心南厅一层61号
电话:8882250      13905569197
回复 支持 反对

使用道具 举报

0

收听

1

听众

166

帖子

E粉新星

注册时间
2006-1-8
精华
0
 楼主| 发表于 2017-3-10 16:18:56 | 显示全部楼层
hongzai 发表于 2017-3-9 16:13
期待楼主继续更新。。。

真不知道日记怎么写,就写些自己的想法吧。。。
回复 支持 反对

使用道具 举报

0

收听

1

听众

166

帖子

E粉新星

注册时间
2006-1-8
精华
0
 楼主| 发表于 2017-3-13 20:39:26 | 显示全部楼层
可有做防水材料的,留下联系方式!!!

点评

要自己去找才行,总代理或者专卖店产品  发表于 2017-3-14 08:22
回复 支持 反对

使用道具 举报

1

收听

9

听众

5117

帖子

E粉明星

注册时间
2009-11-24
精华
0

室内装饰设计QQ243160571

QQ
发表于 2017-3-14 08:21:51 | 显示全部楼层
楼主可以在市场上找马贝、东方雨虹或者德高这三个品牌的防水。任选一都很不错的,要专卖店的产品
东盛装饰  您身边的装修专家!
地址:光彩四期烩街公寓6楼(光彩大舞台隔壁)
电话:13625565176   5200845
回复 支持 反对

使用道具 举报

1

收听

1

听众

867

帖子

E粉明星

注册时间
2006-3-10
精华
0
发表于 2017-3-14 14:03:20 www.aqlife.com | 显示全部楼层
简洁自然,我也打算搞房子,微信qfdy017方便的话一起交流。
回复 支持 反对

使用道具 举报

您需要登录后才可以回帖 登录 | 注册

本版积分规则

联系合作|手机版|手机APP|Archiver|

GMT+8, 2025-12-10 16:50 Powered by Discuz! X3.4

安庆E网生活网站 © 2001-2013 Comsenz Inc. ( 皖ICP备05012696号 )

QQ

安庆瑞易文化 地址:华茂1958-C7栋 联系电话:0556-5306667 联系邮箱:17779721@qq.com 互联网违法和不良信息举报电话和邮箱:0556-5306667 17779721@qq.com

皖公网安备 34080002000101号

    
快速回复 返回顶部 返回列表