安庆E网

搜索
查看: 23028|回复: 30

[装修日记] 【顶固五金杯装修大赛NO.07】期待 温馨的新家(青年装饰)

  [复制链接]

0

收听

1

听众

26

帖子

E粉新星

注册时间
2011-7-23
精华
0
发表于 2017-2-7 10:28:14 | 显示全部楼层 |阅读模式
本帖最后由 易随飞 于 2017-10-11 09:46 编辑

                           新年新的开始 期待新家完工。09年家里旧房子简单装潢装潢就结婚了,真心对不住老婆,转眼儿子都要上小学了,也需要一个自己的空间,我上倒班中班夜班为了不影响家里人休息也需要单独的房间,这样家里就显小了,所以咬咬牙 就买了现在在房子。
                          房子买了又需要装潢,哎 我的票票呀!!!!   装饰公司没怎么挑 就选了E网口碑很好的青年装饰 ,相信大家应该没错的  
                          好吧 我承认还有个原因是青年的保姆式家装吸引了我。


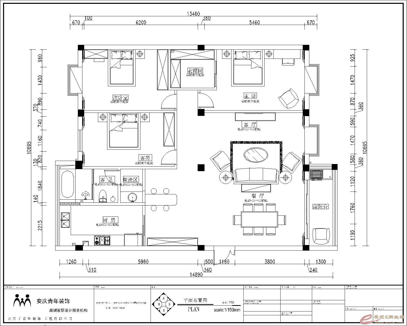
                           开工日期是老妈翻日历选定的  2月18号  农历22号  先上户型图和效果图

评分

参与人数 1鲜花 +1 收起 理由
馨福家装饰 + 1 为了让安庆更好,我来加分

查看全部评分

回复

使用道具 举报

0

收听

1

听众

26

帖子

E粉新星

注册时间
2011-7-23
精华
0
 楼主| 发表于 2017-2-7 11:08:06 | 显示全部楼层

1

1

回复 支持 反对

使用道具 举报

0

收听

1

听众

26

帖子

E粉新星

注册时间
2011-7-23
精华
0
 楼主| 发表于 2017-2-7 11:27:25 | 显示全部楼层

2

2

3

3

4

4

5

5
回复 支持 反对

使用道具 举报

4

收听

2

听众

1414

帖子

未认证商家

注册时间
2011-5-4
精华
0
QQ
发表于 2017-2-7 14:58:32 | 显示全部楼层
谢谢哥的信任,青年努力!合作愉快!
青年装饰
地址:江畔尚城大门西侧
联系电话:18297709288   QQ:641125232
回复 支持 反对

使用道具 举报

3

收听

12

听众

2040

帖子

认证商家

注册时间
2009-5-5
精华
0
发表于 2017-2-7 17:48:54 | 显示全部楼层
请问楼主地板定了没有?
地址:一店:光彩四期E区13栋56号 服务热线:5309299;二店:光彩博览中心2楼37号电话:5299809
回复 支持 反对

使用道具 举报

1

收听

1

听众

18

帖子

E粉新人

注册时间
2016-10-17
精华
0
发表于 2017-2-7 20:59:16 www.aqlife.com | 显示全部楼层
这个厅大气,期待。。。
回复 支持 反对

使用道具 举报

头像被屏蔽

1

收听

1

听众

85

帖子

禁止访问

注册时间
2013-12-12
精华
0
发表于 2017-2-10 15:41:08 | 显示全部楼层
提示: 作者被禁止或删除 内容自动屏蔽
回复 支持 反对

使用道具 举报

9

收听

7

听众

1349

帖子

认证商家

注册时间
2011-11-6
精华
0
发表于 2017-2-10 21:21:41 | 显示全部楼层
恭喜楼主,祝开工大吉!
我们20大品牌开年大戏活动正在进行中,欢迎您来店详细了解。
展厅地址:光彩国际家居博览中心一层61号
销售热线:8882250
客服热线:8882251
品鉴热线:13905569197   qq:2502490242
做适合中国人的厨房,您的满意是我们最高的荣誉[
回复 支持 反对

使用道具 举报

头像被屏蔽

0

收听

1

听众

459

帖子

禁止发言

注册时间
2015-9-18
精华
0
QQ
发表于 2017-2-11 10:48:53 | 显示全部楼层
提示: 作者被禁止或删除 内容自动屏蔽
签名被屏蔽
回复 支持 反对

使用道具 举报

4

收听

2

听众

1414

帖子

未认证商家

注册时间
2011-5-4
精华
0
QQ
发表于 2017-2-18 18:02:28 | 显示全部楼层
祝开工大吉!
青年装饰
地址:江畔尚城大门西侧
联系电话:18297709288   QQ:641125232
回复

使用道具 举报

6

收听

4

听众

921

帖子

认证商家

注册时间
2013-5-23
精华
0
QQ
发表于 2017-2-19 12:03:17 | 显示全部楼层
楼主你好。不知道楼主家的阳台定了没有?现在都是高层建筑。客户对阳台的要求越来越高。绿娃阳台不论是质量还是款式都能满足顾客的需求。欢迎来湖心南路。康熙河百年家居一楼B17号。绿娃阳台样品店看看。
回复 支持 反对

使用道具 举报

0

收听

1

听众

26

帖子

E粉新星

注册时间
2011-7-23
精华
0
 楼主| 发表于 2017-2-19 22:19:58 | 显示全部楼层
终于开工了 !!!!!!
IMG_20170218_094257.jpg IMG_20170218_094534.jpg IMG_20170218_094540.jpg mmexport1487480258285.jpg mmexport1487480269656.jpg mmexport1487480266585.jpg
回复 支持 反对

使用道具 举报

0

收听

1

听众

12

帖子

E粉新人

注册时间
2017-2-16
精华
0
发表于 2017-2-20 08:20:48 | 显示全部楼层
大气~~~~
回复

使用道具 举报

0

收听

8

听众

735

帖子

E网小编

注册时间
2014-10-14
精华
37
发表于 2017-2-20 09:04:00 | 显示全部楼层
楼主,可以报名参加本年度的装修日记大奖赛,报名贴在家装版置顶区!
回复 支持 反对

使用道具 举报

0

收听

1

听众

26

帖子

E粉新星

注册时间
2011-7-23
精华
0
 楼主| 发表于 2017-2-20 19:46:46 | 显示全部楼层
安庆久盛地板 发表于 2017-02-07 17:48
请问楼主地板定了没有?

已经定了你家的了  款式还没定
回复 支持 反对

使用道具 举报

9

收听

7

听众

1349

帖子

认证商家

注册时间
2011-11-6
精华
0
发表于 2017-2-21 21:18:34 | 显示全部楼层
祝开工大吉!
请问楼主您家的橱柜和集成灶定了吗?
展厅地址:光彩国际家居博览中心一层61号
销售热线:8882250
客服热线:8882251
品鉴热线:13905569197   qq:2502490242
做适合中国人的厨房,您的满意是我们最高的荣誉[
回复 支持 反对

使用道具 举报

1

收听

4

听众

684

帖子

未认证商家

注册时间
2012-2-12
精华
0
发表于 2017-2-26 15:52:00 | 显示全部楼层
锦致橱柜期待楼主的光临!
锦致橱柜,做最适合中国人的厨房
展厅地址:南翔光彩国际家居博览中心一层61号
品鉴热线:8882250
服务热
回复 支持 反对

使用道具 举报

0

收听

1

听众

420

帖子

未认证商家

注册时间
2009-3-9
精华
0
QQ
发表于 2017-2-27 11:32:57 | 显示全部楼层
恭喜楼主开工大吉!装修顺利、愉快!
公司地址:安庆市湖心北路6号香樟里后大门斜对过
联系电话:5225035,13866090429  QQ1826424285
回复 支持 反对

使用道具 举报

0

收听

1

听众

276

帖子

认证商家

注册时间
2016-2-24
精华
0
发表于 2017-2-28 22:04:22 | 显示全部楼层
楼主您好,美多集成灶3.15特惠活动周六正式启动。欢迎您来店详细了解优惠政策。
美多集成灶安庆专卖店地址:光彩二期五区7栋28号
电话:5015980      13905569197
安庆二店地址:南翔光彩家居博览中心南厅一层61号
电话:8882250      13905569197
回复 支持 反对

使用道具 举报

头像被屏蔽

0

收听

1

听众

54

帖子

E粉新人

注册时间
2017-2-27
精华
0
发表于 2017-3-1 17:04:53 | 显示全部楼层
提示: 该帖被管理员或版主屏蔽
签名被屏蔽
回复 支持 反对

使用道具 举报

0

收听

1

听众

26

帖子

E粉新星

注册时间
2011-7-23
精华
0
 楼主| 发表于 2017-3-2 16:53:05 | 显示全部楼层
每天的任务就是  砌墙 砌墙 砌墙 !!!









回复 支持 1 反对 0

使用道具 举报

4

收听

2

听众

1414

帖子

未认证商家

注册时间
2011-5-4
精华
0
QQ
发表于 2017-3-3 09:26:50 | 显示全部楼层
青年装饰
地址:江畔尚城大门西侧
联系电话:18297709288   QQ:641125232
回复

使用道具 举报

0

收听

1

听众

573

帖子

未认证商家

注册时间
2013-7-14
精华
0
QQ
发表于 2017-3-3 14:32:28 | 显示全部楼层
恭祝楼主装修大吉!同行路过,顶个帖子,为同行加油,共同净化安庆市场,美化千万个温馨幸福的家庭
安庆馨福家装饰【爱ta就给ta.馨福家】-全裸透明家装倡导者
地址:宜秀区迎宾东路文苑路神墩家居A馆一楼装乐汇
手机微信:139-6660-5185    监督电话:0556-5533123
回复 支持 反对

使用道具 举报

0

收听

1

听众

26

帖子

E粉新星

注册时间
2011-7-23
精华
0
 楼主| 发表于 2017-3-8 07:46:03 | 显示全部楼层
砌墙终于结束了  我家的墙还是很多的 昨天上班没时间去房子那边  李工自己做了浇水养护  据说花了一个多小时  辛苦了 mmexport1488929655577.jpg mmexport1488929658641.jpg mmexport1488929661756.jpg mmexport1488929664444.jpg
回复 支持 1 反对 0

使用道具 举报

4

收听

2

听众

1414

帖子

未认证商家

注册时间
2011-5-4
精华
0
QQ
发表于 2017-3-10 10:37:03 | 显示全部楼层
终于要走水电啦
青年装饰
地址:江畔尚城大门西侧
联系电话:18297709288   QQ:641125232
回复 支持 反对

使用道具 举报

您需要登录后才可以回帖 登录 | 注册

本版积分规则

联系合作|手机版|手机APP|Archiver|

GMT+8, 2025-12-10 22:37 Powered by Discuz! X3.4

安庆E网生活网站 © 2001-2013 Comsenz Inc. ( 皖ICP备05012696号 )

QQ

安庆瑞易文化 地址:华茂1958-C7栋 联系电话:0556-5306667 联系邮箱:17779721@qq.com 互联网违法和不良信息举报电话和邮箱:0556-5306667 17779721@qq.com

皖公网安备 34080002000101号

    
快速回复 返回顶部 返回列表