安庆E网

搜索
查看: 13934|回复: 24

[装修日记] 《格林童话》遇上《东盛装饰》

[复制链接]

10

收听

3

听众

188

帖子

E粉新星

注册时间
2010-9-13
精华
0
QQ
发表于 2017-3-12 18:18:36 | 显示全部楼层 |阅读模式
本帖最后由 黑崎一护 于 2017-6-9 19:17 编辑

3月12日,这天灰蒙蒙的,下这小雨,早九点开工
每个人都会遇见不同的事,也会遇见不同的人。“东盛”早些时候在我看来就是一个陌生的名字,而真正去了解,源于汪设计师的一遍遍的沟通交谈,这都是朝着一个目标就是把事情做完美,选择所喜欢的事物,就是这样

正因为我看不见,所以才可怕
回复

使用道具 举报

0

收听

1

听众

276

帖子

认证商家

注册时间
2016-2-24
精华
0
发表于 2017-3-12 20:40:24 | 显示全部楼层
恭喜楼主,祝开工大吉!
3.15诚信惠民大行动,刘涛为您保驾护航,美多集成灶直击天猫商城,每满1000立减315,以此类推。期待您的光临。
美多集成灶安庆专卖店地址:光彩二期五区7栋28号
电话:5015980      13905569197
安庆二店地址:南翔光彩家居博览中心南厅一层61号
电话:8882250      13905569197
回复 支持 反对

使用道具 举报

头像被屏蔽

0

收听

1

听众

459

帖子

禁止发言

注册时间
2015-9-18
精华
0
QQ
发表于 2017-3-13 15:23:48 | 显示全部楼层
提示: 作者被禁止或删除 内容自动屏蔽
签名被屏蔽
回复 支持 反对

使用道具 举报

1

收听

4

听众

684

帖子

未认证商家

注册时间
2012-2-12
精华
0
发表于 2017-3-14 13:13:24 | 显示全部楼层
锦致橱柜祝福楼主装修顺利!
锦致橱柜,做最适合中国人的厨房
展厅地址:南翔光彩国际家居博览中心一层61号
品鉴热线:8882250
服务热
回复 支持 反对

使用道具 举报

10

收听

3

听众

188

帖子

E粉新星

注册时间
2010-9-13
精华
0
QQ
 楼主| 发表于 2017-4-20 21:38:59 | 显示全部楼层
本帖最后由 黑崎一护 于 2017-6-9 19:22 编辑

地址:格林镇B区建筑面积:102.5  
                   套内面积大约:86
装修公司:东盛装饰
设计师:汪晶晶

风格:简约风
项目经理:汪经理
水      电:夫妻
瓦      工:胡师傅
木      工:胡师傅
楼主家设计图和户型图
IMG_20170312_090800.jpg
水电走向,比较正规,冷水管也包了套









回复 支持 反对

使用道具 举报

10

收听

3

听众

188

帖子

E粉新星

注册时间
2010-9-13
精华
0
QQ
 楼主| 发表于 2017-4-20 21:41:08 | 显示全部楼层
瓦工胡师傅,干活利索,就是听不懂说的话



点评

我家也是胡师傅O(∩_∩)O  发表于 2017-4-20 22:45
回复 支持 反对

使用道具 举报

0

收听

1

听众

70

帖子

E粉新人

注册时间
2017-4-17
精华
0
QQ
发表于 2017-4-21 11:30:33 | 显示全部楼层
安庆市金佳装饰工程有限公司是一家集专业设计、施工、售后服务为一体的现代化装饰企业。公司秉承“专业团队、品质服务”的企业精神,公司汇聚了一批国内高层管理人才、高素质设计精英和一流施工队伍,并多次安排员工到外地考察学习前沿的设计理念和工艺做法,把握流行趋势,以规范化的管理、专业的设计、科学优质的施工,周到全面的服务力求为客户创造一个高品质、时尚、舒适的满意空间。  公司自成立以来,一直秉承“质量与环保第一、装修体验至上”的经营理念,通过服务创新,来满足我们所服务的客户潜在需求;通过技术创新来改变原始施工模式;通过工艺创新来提高施工质量与装修环保,从而避免了业主使用中容易出现的售后问题;通过材料统一配送,减少中间环节杜绝假货进入施工现场;面对快速发展的装饰行业,金佳装饰工程将继往开来,发扬“与时俱进,追求卓越”的金佳精神,凭借优质的工程质量与环保保障,以市场化、多元化的经营理念开拓发展,几年来,公司一直凭借个性的设计构思、合理的预算报价、精良的施工工艺,优质的售后服务,真诚的为每一位顾客服务,施工验收合格率100%,客户满意度调查满意率95%以上。
公司地址:安庆市皖江大道绿地紫峰大厦A座十楼1013-1014室
公司电话:0556—5202116
公司网址:www.jinjia888.com
金品质 佳饰界
安庆市金佳装饰工程有限公司-皖江大道绿地紫峰大厦A座十层-05565202116
回复 支持 反对

使用道具 举报

头像被屏蔽

0

收听

1

听众

459

帖子

禁止发言

注册时间
2015-9-18
精华
0
QQ
发表于 2017-4-21 19:33:11 | 显示全部楼层
提示: 作者被禁止或删除 内容自动屏蔽
签名被屏蔽
回复 支持 反对

使用道具 举报

10

收听

3

听众

188

帖子

E粉新星

注册时间
2010-9-13
精华
0
QQ
 楼主| 发表于 2017-6-9 18:10:13 | 显示全部楼层
黑崎一护 发表于 2017-4-20 21:41
瓦工胡师傅,干活利索,就是听不懂说的话

你是哪个小区?木工师傅也姓胡
正因为我看不见,所以才可怕
回复 支持 反对

使用道具 举报

10

收听

3

听众

188

帖子

E粉新星

注册时间
2010-9-13
精华
0
QQ
 楼主| 发表于 2017-6-9 18:20:44 | 显示全部楼层
IMG_20170520_103854.jpg
阳台效果图
正因为我看不见,所以才可怕
回复 支持 反对

使用道具 举报

10

收听

3

听众

188

帖子

E粉新星

注册时间
2010-9-13
精华
0
QQ
 楼主| 发表于 2017-6-9 18:22:32 | 显示全部楼层
本帖最后由 黑崎一护 于 2017-6-9 18:28 编辑

IMG_20170520_103715.jpg
卫生间湿区
IMG_20170520_103803.jpg
卫生间干区
IMG_20170520_103918.jpg
厨房效果

正因为我看不见,所以才可怕
回复 支持 反对

使用道具 举报

10

收听

3

听众

188

帖子

E粉新星

注册时间
2010-9-13
精华
0
QQ
 楼主| 发表于 2017-6-9 18:34:19 | 显示全部楼层
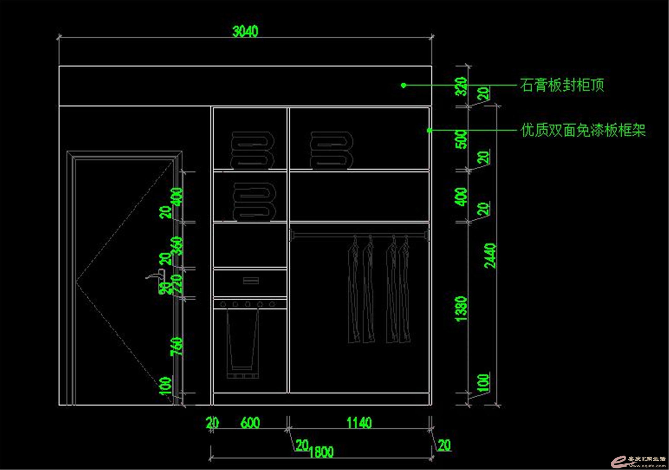
敲定木工活设计图
mmexport1495949211683.jpg
阳台柜子
mmexport1495949216396.jpg
榻榻米
mmexport1495949219546.jpg
书房柜子
mmexport1495949240566.jpg
主次卧衣柜
正因为我看不见,所以才可怕
回复 支持 反对

使用道具 举报

10

收听

3

听众

188

帖子

E粉新星

注册时间
2010-9-13
精华
0
QQ
 楼主| 发表于 2017-6-9 18:42:00 | 显示全部楼层
木板签订合同时是千年舟的免漆板208一张,后来去公司,汪设计师给我推荐了这款做活动的板材,水性科天,就是两种颜色,查了查水性科天原来是做防水材料的,现在也做免漆板,市场价要300多以上,活动给我230一张,1.22*2.44的规格,补了差价
IMG_20170517_162406.jpg



正因为我看不见,所以才可怕
回复 支持 反对

使用道具 举报

10

收听

3

听众

188

帖子

E粉新星

注册时间
2010-9-13
精华
0
QQ
 楼主| 发表于 2017-6-9 18:47:11 | 显示全部楼层
零甲醛,环保,板材横切面看着可以,真心不错,阳台还是用的千年舟的,毕竟比较贵一张
IMG_20170525_143954.jpg

IMG_20170525_144016.jpg

IMG_20170525_144109.jpg

阳台吊柜选的右下角的颜色
IMG_20170517_171816.jpg
IMG_20170529_120015.jpg

正因为我看不见,所以才可怕
回复 支持 反对

使用道具 举报

10

收听

3

听众

188

帖子

E粉新星

注册时间
2010-9-13
精华
0
QQ
 楼主| 发表于 2017-6-9 18:53:48 | 显示全部楼层
主次卧衣柜,背部防潮垫,双边石膏板加厚
IMG_20170529_121353.jpg
IMG_20170529_121359.jpg
IMG_20170606_160942.jpg
正因为我看不见,所以才可怕
回复 支持 反对

使用道具 举报

10

收听

3

听众

188

帖子

E粉新星

注册时间
2010-9-13
精华
0
QQ
 楼主| 发表于 2017-6-9 18:56:31 | 显示全部楼层
IMG_20170529_121555.jpg IMG_20170529_120927.jpg IMG_20170606_161004.jpg
榻榻米成型
正因为我看不见,所以才可怕
回复 支持 反对

使用道具 举报

10

收听

3

听众

188

帖子

E粉新星

注册时间
2010-9-13
精华
0
QQ
 楼主| 发表于 2017-6-9 18:59:06 | 显示全部楼层
进门鞋柜
IMG_20170529_120429.jpg
书房电脑桌和吊柜
IMG_20170606_161018.jpg
阳台吊柜
IMG_20170606_161347.jpg
正因为我看不见,所以才可怕
回复 支持 反对

使用道具 举报

10

收听

3

听众

188

帖子

E粉新星

注册时间
2010-9-13
精华
0
QQ
 楼主| 发表于 2017-6-9 19:07:39 | 显示全部楼层
用的泰山石膏板
IMG_20170526_185235.jpg
IMG_20170526_185527.jpg
IMG_20170526_185614.jpg
IMG_20170606_161434.jpg
这里原来是厨房封门头,我要求要挂吊灯,设计师给我改成了小吊顶,要不然吊灯会直接掉在集成吊顶上,忘记说了楼主家是开房厨房加小吧台
IMG_20170606_164917.jpg
正因为我看不见,所以才可怕
回复 支持 反对

使用道具 举报

10

收听

3

听众

188

帖子

E粉新星

注册时间
2010-9-13
精华
0
QQ
 楼主| 发表于 2017-6-9 19:11:59 | 显示全部楼层
顶固的五金,门把手10快一个,铰链选的固特的8块但是203还是几的纲,不是太纯,剩下的准备网购,顶固45的滑倒45元
IMG_20170528_111947.jpg
IMG_20170529_120204.jpg
正因为我看不见,所以才可怕
回复 支持 反对

使用道具 举报

10

收听

3

听众

188

帖子

E粉新星

注册时间
2010-9-13
精华
0
QQ
 楼主| 发表于 2017-6-9 19:14:28 | 显示全部楼层
木工活结束了,门把手还没安装,油漆工进场
IMG_20170608_191543.jpg
IMG_20170608_191551.jpg
墙角的阴阳角处理
IMG_20170607_190457.jpg
IMG_20170607_190311.jpg
正因为我看不见,所以才可怕
回复 支持 反对

使用道具 举报

1

收听

9

听众

5117

帖子

E粉明星

注册时间
2009-11-24
精华
0

室内装饰设计QQ243160571

QQ
发表于 2017-6-10 15:26:21 | 显示全部楼层
我们会加油的
东盛装饰  您身边的装修专家!
地址:光彩四期烩街公寓6楼(光彩大舞台隔壁)
电话:13625565176   5200845
回复 支持 反对

使用道具 举报

10

收听

3

听众

188

帖子

E粉新星

注册时间
2010-9-13
精华
0
QQ
 楼主| 发表于 2017-9-5 20:49:19 | 显示全部楼层
网购欧式门锁,三趟门一个429
IMG_20170711_173509.jpg

IMG_20170711_173449.jpg
正因为我看不见,所以才可怕
回复 支持 反对

使用道具 举报

10

收听

3

听众

188

帖子

E粉新星

注册时间
2010-9-13
精华
0
QQ
 楼主| 发表于 2017-9-5 20:52:17 | 显示全部楼层
主卧的粉粉哒
IMG_20170717_091727.jpg
玄关壁画,刚开始看他看着我都有点怕,现在没觉得了,
IMG_20170719_162315.jpg
餐厅刷了硅藻泥,幸福之树,听了设计师的建议
IMG_20170725_182024.jpg

IMG_20170725_182105.jpg
正因为我看不见,所以才可怕
回复 支持 反对

使用道具 举报

10

收听

3

听众

188

帖子

E粉新星

注册时间
2010-9-13
精华
0
QQ
 楼主| 发表于 2017-9-5 21:02:36 | 显示全部楼层

圣象家的强化地板,安装什么的都可以,就是楼主不想再他们家买脚线,因为太贵,买好后是10公分的,师傅说没有据,装不了,结果问了店里也不行,后来找的设计师找他们经理才给按,这个左等右等,等了快半个月,催了好几次才来给安装,而且还说收二次上门费,最后人工费很贵了,真是店大欺客啊

IMG_20170810_104908.jpg
卫生间干湿分区,中间是淋浴移门
这个台盆是二期东姿代理一个东北老乡开的,人不错,比较满意
IMG_20170813_092257.jpg
餐吊灯
IMG_20170815_125512.jpg
客厅灯,真心喜欢
IMG_20170815_125945.jpg


正因为我看不见,所以才可怕
回复 支持 反对

使用道具 举报

您需要登录后才可以回帖 登录 | 注册

本版积分规则

联系合作|手机版|手机APP|Archiver|

GMT+8, 2025-12-10 16:12 Powered by Discuz! X3.4

安庆E网生活网站 © 2001-2013 Comsenz Inc. ( 皖ICP备05012696号 )

QQ

安庆瑞易文化 地址:华茂1958-C7栋 联系电话:0556-5306667 联系邮箱:17779721@qq.com 互联网违法和不良信息举报电话和邮箱:0556-5306667 17779721@qq.com

皖公网安备 34080002000101号

    
快速回复 返回顶部 返回列表