安庆E网

搜索
查看: 22979|回复: 54

[装修日记] 绿地西斯莱公馆---(品尚装饰)

  [复制链接]

0

收听

1

听众

29

帖子

E粉新人

注册时间
2017-3-5
精华
0
发表于 2017-3-13 12:26:38 | 显示全部楼层 |阅读模式
    新房拿钥匙已经有一年多时间了,但由于本人常年在外地工作,不在安庆,所以新房装修一直没有提上日程。转眼孩子今年就要上小学了,考虑到这点,所以趁着去年年底回家过年时(好像是腊月22)就和老公去了装修公司。说到装修公司,我们没有像其他业主那样同时找几家公司比较,我们直接去的是之前和我们在网上聊过的品尚装饰,老板汪工为人很不错,一看就是脚踏实地,干实事的人!他们公司就在咱小区门口,听说在咱小区装修过十几户了,我和老公也去看了几户,有在建的,也有装修成功的,有半包也有全包的,都觉得很不错!尤其隐蔽工程做的让我和老公放心!要知道我们由于工作原因,装修时不在家监工,所以找个靠谱的公司是很有必要的!加上之前和汪工在网上,该了解的也了解过了,所以很快就确定了方案。春节过后,2月7号这天和贵公司正式签订合同!

评分

参与人数 1鲜花 +1 +1 收起 理由
馨福家装饰 + 1 + 1 为了让安庆更好,我来加分

查看全部评分

回复

使用道具 举报

0

收听

1

听众

29

帖子

E粉新人

注册时间
2017-3-5
精华
0
 楼主| 发表于 2017-3-13 12:27:39 | 显示全部楼层
本帖最后由 什么名字好呢 于 2017-3-13 12:31 编辑

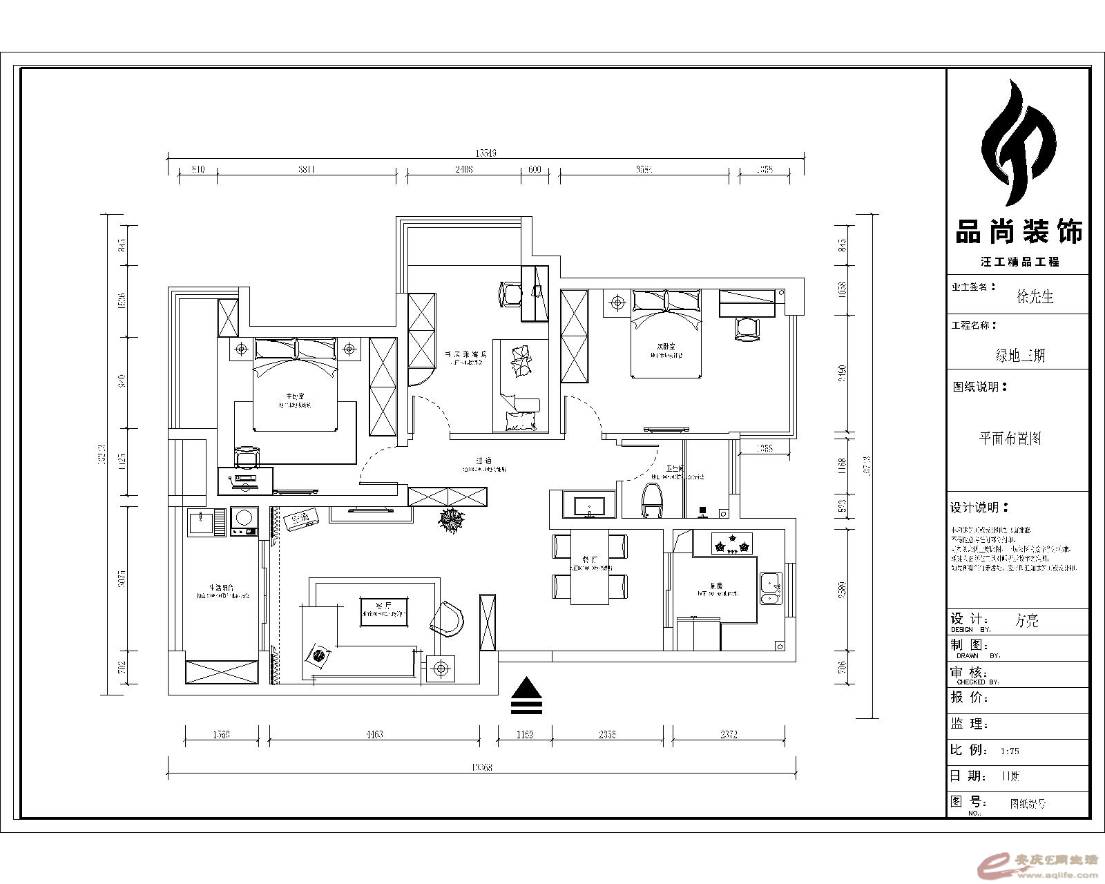
绿地三期2#2006室徐先生平面布置图.jpg
回复 支持 反对

使用道具 举报

0

收听

1

听众

29

帖子

E粉新人

注册时间
2017-3-5
精华
0
 楼主| 发表于 2017-3-13 12:28:01 | 显示全部楼层
本帖最后由 什么名字好呢 于 2017-3-13 13:13 编辑

http://720yun.com/t/3b0jO54uOm4?from=timeline&isappinstalled=0&pano_id=2158892

这是品尚装饰的设计师做的720效果图,现在有这么先进了,记得以前好像是图片的,现在是720全方位动态图,为品尚装饰设计师点赞谢谢,辛苦了





















回复 支持 反对

使用道具 举报

0

收听

1

听众

29

帖子

E粉新人

注册时间
2017-3-5
精华
0
 楼主| 发表于 2017-3-13 12:28:22 | 显示全部楼层
本帖最后由 什么名字好呢 于 2017-3-13 13:55 编辑

       在这里说一下,开帖是想留个纪念,见证房子一步步的成长过程,等以后闲来无事回味一下,也挺好。另外可以起到督促一下品尚装饰。PS:后期所有的照片都由品尚工作人员每天去工地拍下来发给我的。      接下来是开工了,家里父母找了个懂行的人看了黄历,说二月初三是黄道吉日,其实我和老公都不懂这些,就听老人的吧!所以日期选在二月初三这天。忙好了一些准备工作我就和老公出门打拼了,所以开工这天所有事项都由品尚装饰老板汪工代劳,在这里要谢谢品尚汪工,设计师小方,监理汪经理,以及所有的工人师傅。小屋装修就靠你们多操心了!

鞭炮摆的挺好看

鞭炮摆的挺好看

三个小伙

三个小伙

汪工说有点求婚的感脚

汪工说有点求婚的感脚

红红火火,开工大吉

红红火火,开工大吉

回复 支持 反对

使用道具 举报

0

收听

1

听众

29

帖子

E粉新人

注册时间
2017-3-5
精华
0
 楼主| 发表于 2017-3-13 12:28:44 | 显示全部楼层
本帖最后由 什么名字好呢 于 2017-4-3 18:49 编辑

s.jpg s1.jpg s2.jpg s3.jpg s4.jpg s5.jpg s8.jpg s9.jpg s10.jpg s6.jpg s5.jpg
回复 支持 反对

使用道具 举报

头像被屏蔽

0

收听

1

听众

459

帖子

禁止发言

注册时间
2015-9-18
精华
0
QQ
发表于 2017-3-13 14:59:55 | 显示全部楼层
提示: 作者被禁止或删除 内容自动屏蔽
签名被屏蔽
回复 支持 反对

使用道具 举报

0

收听

1

听众

422

帖子

未认证商家

注册时间
2016-3-17
精华
0
发表于 2017-3-16 15:33:24 | 显示全部楼层
顶一下,谢谢您和徐总的支持与信任!定不辜负
回复 支持 反对

使用道具 举报

0

收听

1

听众

573

帖子

未认证商家

注册时间
2013-7-14
精华
0
QQ
发表于 2017-3-20 12:37:46 | 显示全部楼层
恭祝楼主装修大吉!
安庆馨福家装饰【爱ta就给ta.馨福家】-全裸透明家装倡导者
地址:宜秀区迎宾东路文苑路神墩家居A馆一楼装乐汇
手机微信:139-6660-5185    监督电话:0556-5533123
回复 支持 反对

使用道具 举报

0

收听

1

听众

276

帖子

认证商家

注册时间
2016-2-24
精华
0
发表于 2017-3-21 22:31:02 | 显示全部楼层
恭喜恭喜,美多集成灶祝装修顺利!期待您的光临!
美多集成灶安庆专卖店地址:光彩二期五区7栋28号
电话:5015980      13905569197
安庆二店地址:南翔光彩家居博览中心南厅一层61号
电话:8882250      13905569197
回复 支持 反对

使用道具 举报

0

收听

1

听众

29

帖子

E粉新人

注册时间
2017-3-5
精华
0
 楼主| 发表于 2017-4-3 19:34:03 | 显示全部楼层
       这段时间有点忙,帖子都没更新了,趁着今天闲一些,上传水电走向图,各位大神们可看出来我家水电不一样的地方了,品尚装饰电路走的是活线,什么是活线?容我科普一下安装好线管后在穿线的工艺!强弱电线可以在线管里自由穿动,独特之处在于线是可以从管子里轻松拉出。水电工前期施工结束先退出施工现场,等瓦工施工结束再将所有的电线,包括闭路线,电话线,网络线,普通插座线等,拉入事先预埋在墙面和地面以下的线管里。这样做的好处就是装修结束若干年后线路绝缘发生老化而引起电路短路或断线故障时,可以不动家里已装修好的地面和墙面,进行重新更换电线进行修复,弱电线路随时可以更新升级,还可以将原功能而改变!(这些都是品尚汪工告诉我们的      个人觉得这样做真的很好!现在安庆市面上这样施工的好像很少吧,我再次觉得当初选择品尚是对的!
       好了,不啰嗦了,就到这里吧,后续慢慢上图
回复 支持 反对

使用道具 举报

3

收听

3

听众

1995

帖子

贵宾E粉

注册时间
2005-7-22
精华
4
发表于 2017-4-3 22:10:25 | 显示全部楼层
品尚公司的确认真负责的。顶一下!

点评

谢谢您的肯定!  发表于 2017-4-4 11:46
回复 支持 反对

使用道具 举报

0

收听

2

听众

100

帖子

E粉明星

注册时间
2016-7-26
精华
0
发表于 2017-4-3 22:49:19 www.aqlife.com | 显示全部楼层
什么名字好呢 发表于 2017-4-3 19:34
这段时间有点忙,帖子都没更新了,趁着今天闲一些,上传水电走向图,各位大神们可看出来我家水电不 ...

这个确实不错,安庆走活线的装修公司真不多

点评

谢谢您  发表于 2017-4-4 11:47
回复 支持 反对

使用道具 举报

0

收听

1

听众

29

帖子

E粉新人

注册时间
2017-3-5
精华
0
 楼主| 发表于 2017-4-4 09:43:31 | 显示全部楼层
晓雨 发表于 2017-4-3 22:10
品尚公司的确认真负责的。顶一下!

谢谢你的顶帖
回复 支持 反对

使用道具 举报

0

收听

1

听众

29

帖子

E粉新人

注册时间
2017-3-5
精华
0
 楼主| 发表于 2017-4-4 09:53:16 | 显示全部楼层
我读书少 发表于 2017-4-3 22:49
这个确实不错,安庆走活线的装修公司真不多

我和老公人不在安庆,装修的所有事情都由品尚汪工代办的,家里好几个亲戚家房子去年都是他们公司全包的,效果都不错,所以我们果断选择他们,而且他们公司今年所有人家电路都是走活线,更重要的是价格不变!价格不变!价格不变!!!重要的事情说三遍!
回复 支持 反对

使用道具 举报

6

收听

2

听众

221

帖子

E粉新星

注册时间
2011-10-30
精华
0
发表于 2017-4-4 10:37:51 | 显示全部楼层
走的近路
回复

使用道具 举报

0

收听

1

听众

422

帖子

未认证商家

注册时间
2016-3-17
精华
0
发表于 2017-4-4 11:45:15 | 显示全部楼层

像您说的走近路的情况下,如果走固定线,线路无法抽出确实省线,但咱们公司走的和别家不同,是走活线,线路可以随时抽出,做固定线路的话,横平竖直是无法抽出,达不到做活线的目的。活线做法对线管直径的要求和人工工艺要求远远高于固定线,成本也会高于固定线很多!活线电路在装修结束后,方便维护!另外,咱们公司水电终身质保!







安庆品尚装饰
电话:15385562988(微信同号)
地址:绿地三期北大门口旁(欧尚超市背后)
回复 支持 反对

使用道具 举报

6

收听

4

听众

921

帖子

认证商家

注册时间
2013-5-23
精华
0
QQ
发表于 2017-4-4 14:39:20 | 显示全部楼层

您好,绿娃阳台窗。产品升级。质量更好。性价比更高。厂家零利润推广。欢迎抢购
回复 支持 反对

使用道具 举报

6

收听

2

听众

221

帖子

E粉新星

注册时间
2011-10-30
精华
0
发表于 2017-4-8 11:07:27 | 显示全部楼层
安庆品尚装饰 发表于 2017-4-4 11:45
像您说的走近路的情况下,如果走固定线,线路无法抽出确实省线,但咱们公司走的和别家不同,是走活线,线 ...

我们说的话不在一个路上,哈哈
回复 支持 反对

使用道具 举报

0

收听

1

听众

70

帖子

E粉新人

注册时间
2017-4-17
精华
0
QQ
发表于 2017-4-20 15:54:17 | 显示全部楼层
安庆市金佳装饰工程有限公司是一家集专业设计、施工、售后服务为一体的现代化装饰企业。公司秉承“专业团队、品质服务”的企业精神,公司汇聚了一批国内高层管理人才、高素质设计精英和一流施工队伍,并多次安排员工到外地考察学习前沿的设计理念和工艺做法,把握流行趋势,以规范化的管理、专业的设计、科学优质的施工,周到全面的服务力求为客户创造一个高品质、时尚、舒适的满意空间。  公司自成立以来,一直秉承“质量与环保第一、装修体验至上”的经营理念,通过服务创新,来满足我们所服务的客户潜在需求;通过技术创新来改变原始施工模式;通过工艺创新来提高施工质量与装修环保,从而避免了业主使用中容易出现的售后问题;通过材料统一配送,减少中间环节杜绝假货进入施工现场;面对快速发展的装饰行业,金佳装饰工程将继往开来,发扬“与时俱进,追求卓越”的金佳精神,凭借优质的工程质量与环保保障,以市场化、多元化的经营理念开拓发展,几年来,公司一直凭借个性的设计构思、合理的预算报价、精良的施工工艺,优质的售后服务,真诚的为每一位顾客服务,施工验收合格率100%,客户满意度调查满意率95%以上。
公司地址:安庆市皖江大道绿地紫峰大厦A座十楼1013-10 ...查看全文
安庆市金佳装饰工程有限公司-皖江大道绿地紫峰大厦A座十层-05565202116
回复 支持 反对

使用道具 举报

头像被屏蔽

0

收听

1

听众

47

帖子

禁止发言

注册时间
2017-3-31
精华
0
发表于 2017-4-20 21:06:59 www.aqlife.com | 显示全部楼层
提示: 作者被禁止或删除 内容自动屏蔽
回复 支持 反对

使用道具 举报

0

收听

1

听众

70

帖子

E粉新人

注册时间
2017-4-17
精华
0
QQ
发表于 2017-4-21 09:59:47 | 显示全部楼层
安庆市金佳装饰工程有限公司是一家集专业设计、施工、售后服务为一体的现代化装饰企业。公司秉承“专业团队、品质服务”的企业精神,公司汇聚了一批国内高层管理人才、高素质设计精英和一流施工队伍,并多次安排员工到外地考察学习前沿的设计理念和工艺做法,把握流行趋势,以规范化的管理、专业的设计、科学优质的施工,周到全面的服务力求为客户创造一个高品质、时尚、舒适的满意空间。  公司自成立以来,一直秉承“质量与环保第一、装修体验至上”的经营理念,通过服务创新,来满足我们所服务的客户潜在需求;通过技术创新来改变原始施工模式;通过工艺创新来提高施工质量与装修环保,从而避免了业主使用中容易出现的售后问题;通过材料统一配送,减少中间环节杜绝假货进入施工现场;面对快速发展的装饰行业,金佳装饰工程将继往开来,发扬“与时俱进,追求卓越”的金佳精神,凭借优质的工程质量与环保保障,以市场化、多元化的经营理念开拓发展,几年来,公司一直凭借个性的设计构思、合理的预算报价、精良的施工工艺,优质的售后服务,真诚的为每一位顾客服务,施工验收合格率100%,客户满意度调查满意率95%以上。
公司地址:安庆市皖江大道绿地紫峰大厦A座十楼1013-1014室
公司电话:0556—5202116
公司网址:www.jinjia888.com
金品质 佳饰界
安庆市金佳装饰工程有限公司-皖江大道绿地紫峰大厦A座十层-05565202116
回复 支持 反对

使用道具 举报

0

收听

1

听众

70

帖子

E粉新人

注册时间
2017-4-17
精华
0
QQ
发表于 2017-4-21 10:33:58 | 显示全部楼层
安庆市金佳装饰工程有限公司是一家集专业设计、施工、售后服务为一体的现代化装饰企业。公司秉承“专业团队、品质服务”的企业精神,公司汇聚了一批国内高层管理人才、高素质设计精英和一流施工队伍,并多次安排员工到外地考察学习前沿的设计理念和工艺做法,把握流行趋势,以规范化的管理、专业的设计、科学优质的施工,周到全面的服务力求为客户创造一个高品质、时尚、舒适的满意空间。  公司自成立以来,一直秉承“质量与环保第一、装修体验至上”的经营理念,通过服务创新,来满足我们所服务的客户潜在需求;通过技术创新来改变原始施工模式;通过工艺创新来提高施工质量与装修环保,从而避免了业主使用中容易出现的售后问题;通过材料统一配送,减少中间环节杜绝假货进入施工现场;面对快速发展的装饰行业,金佳装饰工程将继往开来,发扬“与时俱进,追求卓越”的金佳精神,凭借优质的工程质量与环保保障,以市场化、多元化的经营理念开拓发展,几年来,公司一直凭借个性的设计构思、合理的预算报价、精良的施工工艺,优质的售后服务,真诚的为每一位顾客服务,施工验收合格率100%,客户满意度调查满意率95%以上。
公司地址:安庆市皖江大道绿地紫峰大厦A座十楼1013-1014室
公司电话:0556—5202116
公司网址:www.jinjia888.com
金品质 佳饰界
安庆市金佳装饰工程有限公司-皖江大道绿地紫峰大厦A座十层-05565202116
回复 支持 反对

使用道具 举报

头像被屏蔽

0

收听

1

听众

459

帖子

禁止发言

注册时间
2015-9-18
精华
0
QQ
发表于 2017-4-21 19:59:41 | 显示全部楼层
提示: 作者被禁止或删除 内容自动屏蔽
签名被屏蔽
回复 支持 反对

使用道具 举报

0

收听

1

听众

29

帖子

E粉新人

注册时间
2017-3-5
精华
0
 楼主| 发表于 2017-4-30 15:31:24 | 显示全部楼层
这段时间忙的都没顾得上写贴子,不好意思了。虽然我忙,但工地施工还是有条不紊的进行着,废话不多说,上图

地砖到了

地砖到了

地砖拼花

地砖拼花

卫生间墙砖,好喜欢,干净简单

卫生间墙砖,好喜欢,干净简单

师傅手艺很棒

师傅手艺很棒

工艺非常棒

工艺非常棒

厨房墙砖

厨房墙砖
6.jpg 7.jpg

阳台

阳台

卫生间地面防水层已做好

卫生间地面防水层已做好

等待涂刷防水材料

等待涂刷防水材料

马贝防水

马贝防水

闭水试验成功

闭水试验成功

回复 支持 反对

使用道具 举报

0

收听

1

听众

29

帖子

E粉新人

注册时间
2017-3-5
精华
0
 楼主| 发表于 2017-4-30 16:37:16 | 显示全部楼层
趁着今天放假有时间就多写一点吧,假期一结束又不知道哪天闲了。家里瓦工基本结束,就等后面收尾了接下来是封阳台和木工了,先上材料图吧

兔宝宝EO级环保板材

兔宝宝EO级环保板材

兔宝宝EO级板材

兔宝宝EO级板材

扣条

扣条

兔宝宝EO级 沃克布纹

兔宝宝EO级 沃克布纹

吊顶用的轻钢龙骨

吊顶用的轻钢龙骨

五金也到了,质量不错,铰链304缓冲液压式的,滑轨质量很好!

五金也到了,质量不错,铰链304缓冲液压式的,滑轨质量很好!

封阳台,广东粤之星1.4铝合金

封阳台,广东粤之星1.4铝合金








回复 支持 反对

使用道具 举报

您需要登录后才可以回帖 登录 | 注册

本版积分规则

联系合作|手机版|手机APP|Archiver|

GMT+8, 2025-12-11 20:12 Powered by Discuz! X3.4

安庆E网生活网站 © 2001-2013 Comsenz Inc. ( 皖ICP备05012696号 )

QQ

安庆瑞易文化 地址:华茂1958-C7栋 联系电话:0556-5306667 联系邮箱:17779721@qq.com 互联网违法和不良信息举报电话和邮箱:0556-5306667 17779721@qq.com

皖公网安备 34080002000101号

    
快速回复 返回顶部 返回列表