安庆E网

搜索
查看: 234145|回复: 328

[装修日记] 【顶固五金杯装修大赛NO.09】迎春颐和城+简美风格(更新:费用清单及遗憾心得)

  [复制链接]

2

收听

1

听众

276

帖子

E粉明星

注册时间
2013-10-9
精华
0
发表于 2017-3-21 14:54:41 | 显示全部楼层 |阅读模式
本帖最后由 青苔仙子 于 2018-3-5 10:57 编辑

         为了装修在E网潜伏了有大半年时间,有事无事上来溜达溜达,拜读各位装友帖子,学习不少啊!在此真的很感谢各位前辈们!
      
      当初第一套新婚房,都是我老公一人在忙,他找施工队,他买材料,包括工人的吃喝采买都归他管。只是到后期带我去挑挑窗帘颜色,选选门的图案和把手,还是他指定好的一家店铺。我苦恼啊!看不中也只此一家,别无二家可选!为了节约成本,至今我们家除了门和橱柜安了把手外,其余床头柜、平开门的衣柜、书柜上都没有把手,就靠我这手指头的意念掰开就可以了

      从准备买房时,我就提出了找设计公司,半包的形式来装修新屋。他出于工作上太忙,从一开始也没打算插手二套房的装修,欣然同意了我的意见!那么找哪家装修公司呢?
      我们开始只在家附近几家装饰公司看,主要为图方便。比如E网口碑不错的HD。美女设计师厉害了,第一次去就当场设计出平面图,看着很满意,只是太快了,心里没底啊!无论从价格上,设计上我们都没底,果不其然,经过后期其他装饰公司上门实际测量时,当时美女第一套设计方案多数都被否掉了。关键是到现场一看,我们小区飘窗是打不掉的。据说当时开发商做飘窗时还是经过开会研究过,做成这样就是为了防止业主私自乱砸乱敲!好吧,就做你原本的面貌吧,我的L型大飘窗。想借此砸掉你来增加主卧空间,是甭想了!就这样我们在家附近看了大概有三家装饰公司。另外跑远点是去了我家里人介绍的DW(原先替他们家装修过的公司),量了房后,也答应去了他们举办活动现场看设计方案,只能说是有缘无份。我决定了最多再跑一家,凑一只手的数,就在这五家里选,多了也不去,太累人呐,关键是心累啊!      最后这家公司是我原本计划要去的,只怪离我们家也远了,想到每次看图都要跑老远的路,所以才放到最后去了。就是现在我签订的时顺装饰公司——可能这缘份在十年前就订下了吧他们主打原木家装,第二次就带上老公去看他们公司隔壁小区嘉和至尊的一套刚装完在透气的房子。老公老家在农村,认识柜子里的材料都是他们家门前那种杉树,他告诉我:原先农村打的木箱子都是用这种材料打成,再刷成红漆,当成嫁妆抬走,一用就是一辈子。把头伸进衣柜里闻到的都是木材原本的味道,设计师说这个柜里只用沙纸稍微抹平,不再上任何涂料,就是为了环保。但是门板用的实木加刷开放漆的工艺,能看见木头的纹理。关键是做出来的效果是不错,至少现场我们看到的是这样。转而一想到我家是美式风格,都是以实木为主,而家里最主要收纳空间就靠柜子了,在市场我也看了些定制的成品柜,价格也不便宜,或许遇到做活动有便宜的吧,又担心材料问题!虽然我老公对时顺公司还有储多不满,比如水电这块是通过实际测量来收费,又比如要等效果图出来才能做出详细的预算方案,然而我们考虑到两个小孩,环保最主要,另外他家打柜子的工艺也让人放心,还是同意了。柜体这方面要求全部以杉木来做,可能打开柜子里面会有些不好看,花花的一片,看着就眼晕,可是挂上衣服应该就好了,另外书柜下面是做实木门,关上门也不影响观瞻。
      现在设计终于敲定了,装修公司也选定了,我心里也落下一块石头。借此写帖一是为了方便自己查验,有份记录。二是老公太忙,监督工地这种事,我拜托各位大师们啦!三是因为装修过程是件痛苦并快乐的事,要在短时间内做出多种选择,可我偏偏又是位困难选择症者,这该是多么揪心伤脑的过程啊!写份日记记录下一段学习的过程,也给自己留下一份难得的回忆!
      




评分

参与人数 1鲜花 +1 +1 收起 理由
馨福家装饰 + 1 + 1 为了让安庆更好,我来加分

查看全部评分

回复

使用道具 举报

2

收听

1

听众

276

帖子

E粉明星

注册时间
2013-10-9
精华
0
 楼主| 发表于 2017-3-21 14:57:05 | 显示全部楼层
本帖最后由 青苔仙子 于 2018-3-5 10:59 编辑

地址:迎春颐和城建筑面积:149.8  
                   套内面积大约:126
装修公司:时顺装饰
设计师:凌丽

风格:简美舒适
项目经理:何经理
瓦      工:潮师傅(夫妻二人)
木      工:钱师傅(师徒二人)漆      工:刘师傅(夫妻二人)



   写了有两页了,才发现我建的电梯不是直达的。原先的电梯只知道复制整个页面的,不能直接进入楼层看内容。现在明白了,只要在添加链接中复制楼层的网址,填写上楼层的内容标题提交就OK了。
(由于本人直接点击电梯链接总有部分内容会跳转到其它层,是啥原因?请指教!多谢!所以现在我只好在链接前面加上楼层号,如果点击进入不是本楼层,请自行按楼层号翻找就可以找到要看的内容哈,请多包涵!)

楼层号        直达电梯

藤   椅        平面设计图
板   凳        效果图
第29层    开工了
第52层    砌墙1
第82层    水电定位
第105层   水电材料进场
第106层   水电验收图
第115层   订磁砖
第134层   油漆知识恶补
第209层    增减项目核算
第217层    不可忽视的细节
第237层   选壁纸
第290层    各种窗帘安装
第308层    沙发垫网购链接
第314层    美式家具(图)
第315层    说说自己的遗憾心得(补充)
















回复 支持 反对

使用道具 举报

2

收听

1

听众

276

帖子

E粉明星

注册时间
2013-10-9
精华
0
 楼主| 发表于 2017-3-21 15:45:43 | 显示全部楼层
本帖最后由 青苔仙子 于 2017-5-18 15:02 编辑

    首先,在这里我要感谢在这之前跑的几家公司的设计师们的心血,尤其要感谢在我之前发帖中为我出谋划策的东盛设计师晶晶美女,你的方案也非常不错,我是真的很喜欢,希望你的生意越做越大,越来越好!
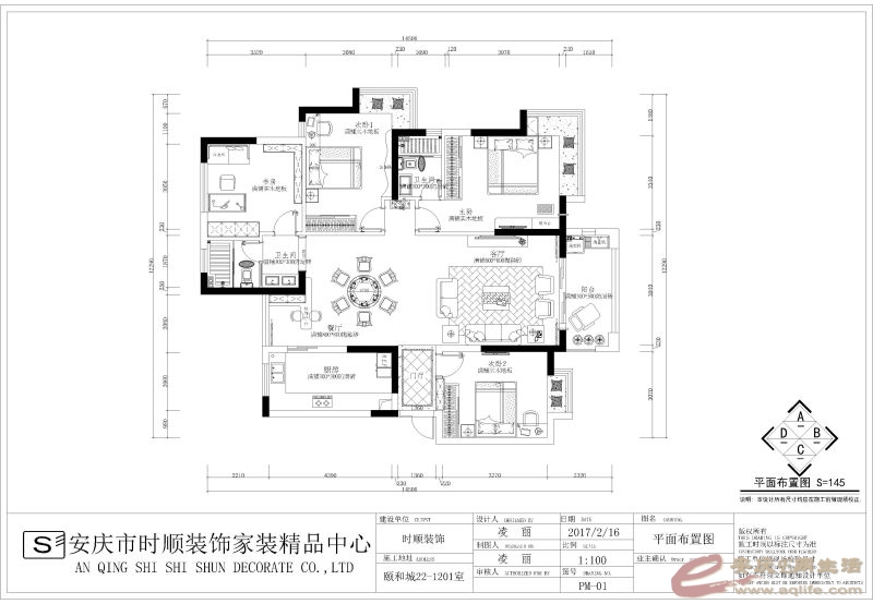
  为什么最终敲定这样的平面设计呢?我现在也不得而知了,总之是依据自己的喜欢来定了,以实用为最主要的。也和现在合作的凌工改了多次才定稿的。

我们是四口之家,一对夫妻,一双儿女。主卧为夫妻房,书房为女儿房,紧挨着书房的次卧,也就是靠北边的房间为书房兼客房,而靠南边的次卧,也就是进大门处的房间为儿子的卧房。现在我们考虑的是原本户型图中书房面积显小。于是将过道的面积纳入书房内,扩充女儿房的面积,毕竟每一平方都是花钱买来了,都要利用上,不能浪费在过道上。

这是开发商宣传册上做的户型图

165447v9tr2tpaz2dflzzf.jpg


原始平面图
mmexport1490076017663.jpg

    我把最终定稿的平面设计图大概说一下:    从一开始跑各楼盘买房时,对结构这块,我个人比较欣赏动静分开的那种设计。多家楼盘都是这样。进门大厅就是客餐厅带厨房,再往后就一过道将活动区域与睡觉区域区分开来,过道左右两边就是卧室、儿童房、书房之类的。我最先看中的是恒和东尚的整个小区的运动环境,只可惜当时没有四房的,售楼员说可以把三房二厅的隔出四个房间,可我们觉得那不太好用,只好放弃!包括这块周边楼盘都跑了,也就不一一说了,反正那段时间一到周末就开车在东部新城挨个看楼盘。最终老公被我说的没办法,去碧桂园1号公园,小区的确是美的像公园一样,我们去看的时候四房的较少了,售楼员又出好主意,整个一号公园最后一排都是80多平米的小户型,面朝长江,没有遮档物。让我们购买在一个楼层的2个小户,然后再将其中间打通改为四室二厅,这行吗?晕菜!包括后期碧桂园刚推出的精装修140平米的四房也去看了,就属于这种动静分开的结构设计,样板间也是这样布局的。超好,只是样板间是设在售楼部一号公园对面的草坪上。我晕,这还能看得出来实际效果吗?房间里的确是南北通透,阳光充足,再加上屋外的绿化植物,打开窗户就能闻到花香味,真是美不胜收.......打住!各位亲,这个可不是在实际楼盘里的样板间,是单独盖一层140平米的独门独户,怎么看都觉得没底。我是挺满意的,关键都是精装,我不需要啊!包括推荐的208平米的江景房也看了,价格的确是优惠啊!样板间做的也大气漂亮,旁边就是市政幼儿园包括小学都有。老公也有点心动了,只是房是真大,路也遥远啊,每天上下班的都不方便啊!就这样,我们不再看了,直接转站到欧尚附近楼盘,再看就靠近光彩四期这边了,包括我新房对面的凯旋尊邸也去看过了,只是我们看的四房户型里的厨房就像鸽子笼那么小,也不知道是咋设计的。于是我们就到了现在小区楼盘看了,离我们现在的家也不算远,上班也就行了。市立医院新院区就在斜对角,大型商超也有。据说我们小区就有不少市立医院的员工在那买的房,怪不得,上次看地板时,一听说是迎春颐和城,就问我是不是市立医院上班的扯远了,还没说到设计图呢?
    其实从确定买下房之后,我就对我家房的结构是了然于心啊!天天想、天天看,怎么不熟呢?每当一个设计师要跟说方案时:这是进门门厅,那是什么.....不需要这么一一介绍,我看得懂,太熟悉太熟悉了,熟悉的不能再熟悉了!因为太爱这个家了!对于传统的国人来说,无论这个窝是大是小,每次从外面回到家或者旅行回来总有一句话常伴我耳边:金窝银窝不如自家的狗窝好!

mmexport1490076021070.jpg

    我们就从主卧开始吧。大门正对就是主卧和次卧的门对门中间的过道,设计师预留1米2距离,正好与进门门厅(门厅有1米35)对齐,到时在这面墙上做个背景,一进门就能看到,非常大气漂亮。可是这样主卫的门就必须往卧室里挪,否则卫生间的门宽度不够,这样就得将卫生间的门做成斜开式,那么就会占据主卧衣柜的部分位置,那么我的衣柜就要缩短变小了,仲么办?就为这么一个1米2过道,就变动这么多,我们认为不值,于是凌工将两门之间距离缩短至90公分,既不用变动卫生间门,又不影响过道双方进出门。我们认为这样过道太小,不大气。于是,我提出向女儿房挪点距离,使两门之间过道仍然保持1米2的距离,虽然不能跟进门门厅正好对上,有所偏离,但是这样改动不大又不会浪费面积,因为女儿现在还小,缺一个玩具架,在女儿房进门突出的墙角处可以横向靠墙做一个木质的玩具架直至飘窗处,这样飘窗整个拐角空地都可以成为玩耍的好地方,现在放玩具,将来当书架。想 得不错吧!
    一直向北面,紧靠着女儿房的就是书房。书房的摆放是我最头疼的地方。原本我是打算买张能收缩的实木床,收起来后1.5*1.1(稍后发图片)因为考虑到是老人家睡,虽然只是偶尔过来睡睡的,实木的还是比较适合老人家的。可是老公说买沙发床就可以了,可能是发现这么多年来,我们家除了孩子奶奶过来睡的时间多点,那还是为了照顾我做月子和小孩。平常过来也只小住两个晚上,最多一个星期,一年来不了两回。没办法,老人家住不惯城里,乡下空气不仅好,出门就是山和树。都说城里是房子比树高,而孩子奶奶家是房屋被树林包围在其中,天然的大氧吧,每次过节回家小住几日,甚是舒畅啊!我儿子更是喜欢的不得了。田间、树木、山头到处都是他们这群孩子的身影和欢声笑语。真的很想有机会,能把老家的房子也改造改造。
    话说回来,现在整间书房需要2米以上长的书柜、书桌要买独立的,不打连体式的,还有衣柜和伸缩的实木床(要预留出整张床的位置),怎么摆放都不合适啊!我们也不考虑榻榻米,因为我需要的是整间书房的质感,需要的是书香气,整体是以书房为主的,卧室为辅的,于是和凌工经过多次摆放无果后,决定将我在淘宝上找了半天才看中的伸缩实木床更换为沙发床。不过,好在我儿子接受了我的意见,就是爹爹、奶奶过来睡的话,把床和房间让出来,当然其他人来就不用管了,随他自己让与不让。因为两个孩子的床选的都是硬板床,而我们的床又太软了,只好这样要求儿子了。不过这两年没关系,凌工提出来说,现在我女儿小,一直还跟着我们夫妻一起睡的,所以暂时来人可以先睡次卧。这也是个办法。
    我们把书房与客卫之间的24公分的墙敲掉,改为12公分并且缩小客卫的宽度,增加30公分宽度到书房,依墙做一组衣柜,这样新砌的墙防潮效果不知道会怎样?书房进门一眼望到头的就是拐角书柜,靠书柜墙角安置沙发床,这样安装线路时就可以在这面墙上安上床头灯和双向开关。沙发床前面就是书桌,平时电脑上网放个电影啥的,靠在沙发上看也挺惬意的。只是我现在又有了新想法。书桌的正前方是衣柜,在这顶上安装个升降幕布,在另一头沙发床顶头安装个投影仪,这样看起电影来岂不更爽了!从沙发床至衣柜距离是3米35,去掉50CM衣柜深度,这样距离够投影仪的投放距离吗?另外我对这个一窍不通,只想买个能看电影的,对声音效果没有要求。
    客卫没什么好说的,干湿分区,镜子对着书房门的问题也解决了,我原本做个旋转镜子,不用时转到一边;还有一种是镜柜门也是可以的。晶晶也给我支招,发了组照片给我看,也是镜柜,只是推拉形式,把镜子可以很好遮档起来(稍后发图)
    最后,再说一下餐厅的吧台!原本我和老公都不太认同这个吧台,认为是个鸡肋,最多小孩在上面吃个早点,还不知道用得上不。最后出来的效果图是个完整的L型的吧台,上面有一组吊柜。这样,我就暗暗欢喜欢了,女人就爱柜子,尤其是我见了柜子真是欢喜的不得了。吊柜里可以放上各种茶杯以及零食,奶茶、咖啡等饮料....到时小资一下,买个咖啡机回来,嘿嘿...吊柜下方的吧台台面上可以放开水瓶和我们平时喝水的杯子,吧台中间是抽屉,下方也是柜子,又可以收纳不少零散的东西了,我简真太爱了,关键是凌工把吧台向前延伸出台面,上面做两个置物架,可以放点小的装饰品或者绿植也不错!(效果图上可以看到)大体就这样吧。


回复 支持 反对

使用道具 举报

2

收听

1

听众

276

帖子

E粉明星

注册时间
2013-10-9
精华
0
 楼主| 发表于 2017-3-21 15:59:37 | 显示全部楼层
本帖最后由 青苔仙子 于 2017-3-22 14:43 编辑

    3月15日下午和老公一起去时顺公司看期盼已久的效果图。或许是和设计师沟通不到位,毕竟在这之前,我们很少聊到这方面,只知道我们是选择做美式。
  因为我喜欢美式的家具,有时代感,适合我们这种渐近中年人的选择,沉稳中不失大气。
  关于美式风现在说法多了。有大美、小美、简美,还有古典美式,乡村美式等等很多种说法。但是我们倾向于轻装修重装饰,符合简美。不需要浓稠重笔的装修材料,主要想通过后期以家具和配饰来搭配起整个家的感觉。设计师是从专业角度来设计的美式风格,整个色调略显沉重了。当天下午沟通并不顺利,可是我又想急切让设计师知道我的想法,所以回家后上网搜了些图片发给设计师,又提出了些整改方案。设计师出于负责任态度,认为当面沟通更好。
  于是16号下午我又去了时顺公司。这次认为沟通应该比较不错,似乎明白我要的风格,一切以简约和素色为基调,要大改!回到家,老公说我是不是把设计师给搞晕了!他知道我是个跳跃型思维的人,经常想到哪说到哪!中间有一段沟通的确把设计师也给搞得摸不清方向,找不着北的感觉。

    下面就是效果图,请自动忽略壁纸的颜色,这个还要到现场时再定!

客厅电视背景墙

客厅电视背景墙

客厅沙发背景

客厅沙发背景

进门门厅朝里看

进门门厅朝里看

L型的实用吧台

L型的实用吧台

餐厅及照片墙

餐厅及照片墙
回复 支持 反对

使用道具 举报

0

收听

1

听众

276

帖子

认证商家

注册时间
2016-2-24
精华
0
发表于 2017-3-21 22:23:06 | 显示全部楼层
恭喜恭喜,美多集成灶祝装修顺利!期待您光临美多集成灶专卖店。
美多集成灶安庆专卖店地址:光彩二期五区7栋28号
电话:5015980      13905569197
安庆二店地址:南翔光彩家居博览中心南厅一层61号
电话:8882250      13905569197
回复 支持 反对

使用道具 举报

1

收听

4

听众

684

帖子

未认证商家

注册时间
2012-2-12
精华
0
发表于 2017-3-22 13:59:39 | 显示全部楼层
买房子不容易,装修房子更不容易!
祝福楼主装修顺利!
锦致橱柜,做最适合中国人的厨房
展厅地址:南翔光彩国际家居博览中心一层61号
品鉴热线:8882250
服务热
回复 支持 反对

使用道具 举报

2

收听

1

听众

276

帖子

E粉明星

注册时间
2013-10-9
精华
0
 楼主| 发表于 2017-3-22 14:44:54 | 显示全部楼层
美多集成灶 发表于 2017-3-21 22:23
恭喜恭喜,美多集成灶祝装修顺利!期待您光临美多集成灶专卖店。

谢谢啦!都不知道说什么好,现在我是决定用集成灶,可是选哪款还真没定好
回复 支持 反对

使用道具 举报

2

收听

1

听众

276

帖子

E粉明星

注册时间
2013-10-9
精华
0
 楼主| 发表于 2017-3-22 14:46:27 | 显示全部楼层
锦致橱柜客服1 发表于 2017-3-22 13:59
买房子不容易,装修房子更不容易!
祝福楼主装修顺利!

谢谢你的祝福!在没选好装饰公司时,就已经订好了橱柜,至于是哪家,稍后日记中会写到。
回复 支持 反对

使用道具 举报

2

收听

1

听众

276

帖子

E粉明星

注册时间
2013-10-9
精华
0
 楼主| 发表于 2017-3-22 16:25:45 | 显示全部楼层
本帖最后由 青苔仙子 于 2017-7-1 14:58 编辑

    补发当时在淘宝上看中的一款伸缩实木床。虽然我家是用不上了,书房里已经有两组柜子了,确实无法再容得下这张大型实木床,虽然它可以伸缩,仍然找不到合适的位置放下。    由于我个人认为,这款床挺实用的,如果和家中风格搭,无论老人还是孩子睡这样的床,对腰板也好。我们家还是改为沙发床,虽然款式多,也容易挑选了。可我仍然对它恋恋不忘,所以推荐给更加需要的人们。
-17568157.png

1212486154.jpg

1139779266.jpg



回复 支持 反对

使用道具 举报

2

收听

1

听众

276

帖子

E粉明星

注册时间
2013-10-9
精华
0
 楼主| 发表于 2017-3-22 19:29:15 | 显示全部楼层
求助各位,想购买投影仪和电动幕布。安装在书房,亮度在800-1200流即可,上网查了下现在家用主流分辨率:1920*1080,原始对比度达到200:1就可以满足家用。投影距离,我家整个书房长3米35,因为幕布是悬挂在衣柜前面,大概去60公分柜深距离。只是用来看看电影,不需要什么立体环绕声和什么功放,只需要音响能放出声音就好。幕布只要国产的就好了,这样大概需要多少银子?另外在走水电时,要如何埋线呢,是要请专业的师傅来安装吗?
回复 支持 反对

使用道具 举报

0

收听

1

听众

276

帖子

认证商家

注册时间
2016-2-24
精华
0
发表于 2017-3-22 22:05:02 | 显示全部楼层
青苔仙子 发表于 2017-3-22 14:44
谢谢啦!都不知道说什么好,现在我是决定用集成灶,可是选哪款还真没定好

具体用哪一款在橱柜下单之前确定就可以,关键是水电布置要安装集成灶的电位来布置。期待您光临美多集成灶。
美多集成灶安庆专卖店地址:光彩二期五区7栋28号
电话:5015980      13905569197
安庆二店地址:南翔光彩家居博览中心南厅一层61号
电话:8882250      13905569197
回复 支持 反对

使用道具 举报

2

收听

1

听众

276

帖子

E粉明星

注册时间
2013-10-9
精华
0
 楼主| 发表于 2017-3-23 09:43:18 | 显示全部楼层
美多集成灶 发表于 2017-3-22 22:05
具体用哪一款在橱柜下单之前确定就可以,关键是水电布置要安装集成灶的电位来布置。期待您光临美多集成灶 ...

已经去看过了。汪总已经多次和我联系沟通过了。还在考虑当中,应该快了吧,走水电之前肯定要订下的
回复 支持 反对

使用道具 举报

2

收听

3

听众

1037

帖子

E粉明星

注册时间
2007-3-25
精华
0
发表于 2017-3-23 19:23:43 | 显示全部楼层
顶邻居,加油!
[img][/img]
回复 支持 反对

使用道具 举报

0

收听

1

听众

483

帖子

认证商家

注册时间
2015-2-26
精华
0
QQ
发表于 2017-3-24 09:44:08 | 显示全部楼层
床的中式样式跟你家装饰风格不搭,要整体搭配好
青年装饰
地址:安庆江畔尚城大门西侧人民东路144号
联系电话:18297709288
回复 支持 反对

使用道具 举报

头像被屏蔽

0

收听

1

听众

459

帖子

禁止发言

注册时间
2015-9-18
精华
0
QQ
发表于 2017-3-24 11:42:44 | 显示全部楼层
提示: 作者被禁止或删除 内容自动屏蔽
签名被屏蔽
回复 支持 反对

使用道具 举报

0

收听

1

听众

5

帖子

E粉新人

注册时间
2017-3-23
精华
0
发表于 2017-3-24 13:47:15 | 显示全部楼层
缺钱找我,电话18712195163朱,低息高额速度快。
回复 支持 反对

使用道具 举报

0

收听

1

听众

276

帖子

认证商家

注册时间
2016-2-24
精华
0
发表于 2017-3-27 23:38:51 | 显示全部楼层
青苔仙子 发表于 2017-3-23 09:43
已经去看过了。汪总已经多次和我联系沟通过了。还在考虑当中,应该快了吧,走水电之前肯定要订下的

呵呵,知道您是谁了。明天去美多总部开会,估计30号晚上到安庆,回来后我与您联系。
美多集成灶安庆专卖店地址:光彩二期五区7栋28号
电话:5015980      13905569197
安庆二店地址:南翔光彩家居博览中心南厅一层61号
电话:8882250      13905569197
回复 支持 反对

使用道具 举报

2

收听

1

听众

276

帖子

E粉明星

注册时间
2013-10-9
精华
0
 楼主| 发表于 2017-3-29 16:28:35 | 显示全部楼层
安庆青年装饰 发表于 2017-3-24 09:44
床的中式样式跟你家装饰风格不搭,要整体搭配好

看了你们的美式装修风格,原本打算也去你们公司看的,只是路途远了点,一直拖着就没去了。不过还是要谢谢你的关注!我知道这床是不搭的,原先也是为老人家睡着舒服才选的。现在不需要了,正好不用我愁了。
回复 支持 反对

使用道具 举报

2

收听

1

听众

276

帖子

E粉明星

注册时间
2013-10-9
精华
0
 楼主| 发表于 2017-3-29 16:29:37 | 显示全部楼层
老翁 发表于 2017-3-23 19:23
顶邻居,加油!

谢谢!我们同一小区,你哪一幢啊!
回复 支持 反对

使用道具 举报

2

收听

1

听众

276

帖子

E粉明星

注册时间
2013-10-9
精华
0
 楼主| 发表于 2017-3-29 17:00:40 | 显示全部楼层
本帖最后由 青苔仙子 于 2017-4-1 09:45 编辑

    我们丢订金的第一站就是巧夫人厨柜,应该说那时我们设计公司还没定下来呢。
    看到前辈们都说走水电之前,就要先看好橱柜,而厨房对我们四口之家来说,是个很重要的地方,因为不想让两个孩子经常在外面用餐吧,只能在家烧的多!既不能超预算又要好看。真是难为我了
    我首先去了百年家居看了有海尔的、志邦的等几家大品牌。真的是很美、高大上,加上店铺灯光一打,陈设的摆放,恨不得立刻搬回家呀!不光是东西好,钱也好啊!每一个报价都超出我的预算。包手E网熟悉的锦致橱柜也看了,关键是我家厨房面积大,即使活动价算下来,也远远超预算呐!还是趁早离开去光彩找E网上另一家口碑不错,性价比高的巧夫人橱柜吧。借着在网上抄的地址,我这个路痴在光彩二期足足绕了三圈才看到巧夫人,结果传说中热情似火的老板娘在光彩四期新开的店铺里,一听说是E网来的,立马来人带我去新店。
    因为老公没有太多时间花在装修上,每次我会先摸下市场情况,挑选两三家再带老公去订,这样做的目的一是为省去他的时间(加上男人本就不喜好逛街的)二是让他有参与感,毕竟家是我们俩要一起共同生活的地方,不能让他当甩手掌柜!
    巧夫人的确是性价比高的一家,关键老板娘亲自接待每一位E网客户,交待的清楚,不玩猫腻,实实在在的,这点让我老公很欣赏,就是说话的时候过急过火,恨不得一下子一咕噜全倒出来,想让我们了解到她是带着十二万分真诚对待E网的网友似的,所以带老公第一次去巧夫人家看橱柜,并且在其它的橱柜也没去看和比较的情况下,老公也不愿再另跑其它家看了,当场就下订金。我也是晕了,老公的一惯作风是“货比三家不吃亏”!这次破例了

回复 支持 反对

使用道具 举报

2

收听

1

听众

276

帖子

E粉明星

注册时间
2013-10-9
精华
0
 楼主| 发表于 2017-3-29 17:04:37 | 显示全部楼层
能率燃气热水器 发表于 2017-3-24 11:42
恭祝楼主装修大吉!
选热水器的时候欢迎到我们能率来坐坐了解下!

谢谢!每次去光彩都经过你们店铺,有时间一定去看看。
回复 支持 反对

使用道具 举报

0

收听

1

听众

276

帖子

认证商家

注册时间
2016-2-24
精华
0
发表于 2017-3-31 23:29:04 | 显示全部楼层
青苔仙子 发表于 2017-3-23 09:43
已经去看过了。汪总已经多次和我联系沟通过了。还在考虑当中,应该快了吧,走水电之前肯定要订下的

美女你好,昨天晚上已回到安庆,因为几天不在安庆 今天需要处理的事比较多,所以没有及时给你打电话说声抱歉,明天你可要时间来店里确定集成灶,正好昨天店里到了一款新款集成灶性价比超高。期待你的光临。
美多集成灶安庆专卖店地址:光彩二期五区7栋28号
电话:5015980      13905569197
安庆二店地址:南翔光彩家居博览中心南厅一层61号
电话:8882250      13905569197
回复 支持 反对

使用道具 举报

2

收听

1

听众

276

帖子

E粉明星

注册时间
2013-10-9
精华
0
 楼主| 发表于 2017-4-1 09:42:06 | 显示全部楼层
本帖最后由 青苔仙子 于 2017-4-1 09:49 编辑

    不知道为什么现在喜欢美式的人越来越多,是一种流行趋势吗?从一开始我喜欢的是简约风,只是无意间看到美式家具,真的是越看越喜欢,于是决定为简约美式。听设计师说美式体现是一种张扬的个性,可我需要的却是一种低调含蓄的美!需要整体简洁,不要凌乱,求整勿散(储藏空间要多并且是带柜门的,不要隔板形式裸露在外,这样易乱又不好搞卫生,没法办我这人比较懒)。另外需要大气而不能缺乏家的温馨感(需要一组照片墙),并且要耐看、素静、复古又不失生活情趣。在家具的选择上希望有质感,有品味!可这这需要很多银子,而家具选择却是整个家装过程中收尾工程。只希望能在前期硬装上力求简洁,捂紧钱袋子,多留点预算出来,以便后期做出更好的选择。
于是我也上网搜了下关于对美式风的设计理念。以下为转载复制内容:

美式风格设计理念

美式风格有着欧罗巴的奢侈与贵气,但又结合了美洲大陆这块水土的不羁,这样结合的结果是剔除了许多羁绊,但又能找寻文化根基的新的怀旧、贵气加大气而又不失自在与随意的风格。美式家居风格的这些元素也正好迎合了时下的文化资产者对生活方式的需求,即:有文化感、有贵气感,还不能缺乏自在感与情调感。

美式风格设计特点
  客厅简洁明快
  客厅作为待客区域,一般要求简洁明快,同时装修较其它空间要更明快光鲜,通常使用大量的石材和木饰面装饰;美国人喜欢有历史感的东西,这不仅反映在软装摆件上对仿古艺术品的喜爱,同时也反映在装修上对各种仿古墙地砖、石材的偏爱和对各种仿旧工艺的追求上。总体而言,美式田园风格的客厅是宽敞而富有历史气息的。

  厨房开敞
  厨房在美国人眼中一般是开敞的(由于其饮食烹饪习惯),同时需要有一个便餐台在厨房的一隅,还要具备功能强大又简单耐用的厨具设备,如水槽下的残渣粉碎机,烤箱等。需要有容纳双开门冰箱的宽敞位置和足够的操作台面。在装饰上也有很多讲究,如喜好仿古面的墙砖、橱具门板喜好用实木门扇或是白色模压门扇仿木纹色。另外,厨房的窗也喜欢配置窗帘等。

  卧室布置温馨
  美式家居的卧室布置较为温馨,作为主人的私密空间,主要以功能性和实用舒适为考虑的重点,一般的卧室不设顶灯,多用温馨柔软的成套布艺来装点,同时在软装和用色上非常统一。

  书房简单实用
  美式家居的书房简单实用,但软装颇为丰富,各种象征主人过去生活经历的陈设一应俱全,被翻卷边的古旧书籍、颜色发黄的航海地图、乡村风景的油画、一支鹅毛笔……即使是装饰品,这些东西也足以为书房的美式风格加分。家庭室:家庭室作为家庭成员休息交流的中心,属私密性很强的空间,一般设于餐厅旁,并有电视机,同时沙发和座椅选择轻松明快的式样,室内绿化也较为丰富,装饰画较多。
美式古典风格植根于欧洲文化,并不过分强调繁复的雕刻,以舒适和多功能为主,但同时也不失怀旧、浪漫的感觉。
    看了之后终于知道自己第一眼看上了美式家具,就特别喜爱的原因。大家都说美式家具跟中式家具有异曲同工之处,都是以实木为主,颜色深沉,怀旧复古。有历史感的东西就是耐看!

回复 支持 反对

使用道具 举报

2

收听

3

听众

1037

帖子

E粉明星

注册时间
2007-3-25
精华
0
发表于 2017-4-1 10:50:54 | 显示全部楼层
青苔仙子 发表于 2017-3-29 16:29
谢谢!我们同一小区,你哪一幢啊!

我23号楼,明天开工,你家进行的那一步了
[img][/img]
回复 支持 反对

使用道具 举报

1

收听

3

听众

61

帖子

E粉新人

注册时间
2016-3-24
精华
0
QQ
发表于 2017-4-2 11:04:28 | 显示全部楼层
青苔仙子 发表于 2017-3-22 19:29
求助各位,想购买投影仪和电动幕布。安装在书房,亮度在800-1200流即可,上网查了下现在家用主流分辨率:19 ...

可以来我公司参观考察。
全宅智能家居、豪力士智能锁
家庭背景音乐、高端私人影院
电话:8887098  手机:13965802958微信
回复 支持 反对

使用道具 举报

您需要登录后才可以回帖 登录 | 注册

本版积分规则

联系合作|手机版|手机APP|Archiver|

GMT+8, 2025-12-10 21:51 Powered by Discuz! X3.4

安庆E网生活网站 © 2001-2013 Comsenz Inc. ( 皖ICP备05012696号 )

QQ

安庆瑞易文化 地址:华茂1958-C7栋 联系电话:0556-5306667 联系邮箱:17779721@qq.com 互联网违法和不良信息举报电话和邮箱:0556-5306667 17779721@qq.com

皖公网安备 34080002000101号

    
快速回复 返回顶部 返回列表