安庆E网

搜索
查看: 9144|回复: 21

[装修日记] 大发宜景城三期111㎡三房装修日记

  [复制链接]

0

收听

2

听众

20

帖子

E粉新人

注册时间
2013-9-5
精华
0
发表于 2017-3-24 15:11:25 | 显示全部楼层 |阅读模式
本帖最后由 E网小风 于 2017-3-27 11:29 编辑

赶在房子涨价之前,父母帮忙买了套房子。转眼两年过去了,总算迎来了拿房装修的一天。
这是原始户型布局,当时也是看中了客厅餐厅南北通透,然后吧。。。便宜。。。安庆也就这么两三个小区,能这么便宜了。


下面是效果图,底下跟帖也有放。3D全景的呢。
回复

使用道具 举报

0

收听

2

听众

20

帖子

E粉新人

注册时间
2013-9-5
精华
0
 楼主| 发表于 2017-3-24 15:17:22 | 显示全部楼层
本帖最后由 海夜声 于 2017-3-25 08:51 编辑

第一次玩E网。。。不熟诶。
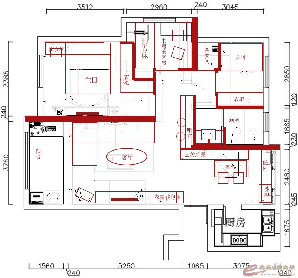
所谓房子买来,户型就是要改的,早早的就把平面图纸找人弄好了。
QQ截图20170324145715.jpg
回复 支持 反对

使用道具 举报

5

收听

1

听众

165

帖子

认证商家

注册时间
2014-2-17
精华
0
QQ
发表于 2017-3-24 16:28:36 | 显示全部楼层
楼主! 你好 世奇装饰在大发有完工的工地   可以参观   也可以参观正在施工的工地    我们前期一切免费  
电话:18726182808
世奇装饰
                  装修 · 我们更专业!
地址:光彩烩街13栋11楼22-23号(南翔大舞台附近)
手机:18726182808  5203989
回复 支持 反对

使用道具 举报

0

收听

1

听众

108

帖子

E粉新星

注册时间
2017-2-23
精华
0
发表于 2017-3-24 17:33:49 | 显示全部楼层
您好 !我想您的需求希望是要装修的大气,让人眼前一亮的感觉。我是天猫家装E站的工作人员,公司有700多家分站,我的微信里有主材包的链接,您可以加我好友方便您参考。联系电话17356092696.微信号18252964188.地址安庆市湖心南路百年家居2楼天猫家装
回复 支持 反对

使用道具 举报

0

收听

1

听众

422

帖子

未认证商家

注册时间
2016-3-17
精华
0
发表于 2017-3-25 14:43:46 | 显示全部楼层
楼主,您好!品尚装饰来报道!期待为您服务!





安庆品尚装饰
电话:15385562988(微信同号)
地址:绿地三期北大门口(欧尚超市背后一条街)
回复 支持 反对

使用道具 举报

3

收听

2

听众

684

帖子

未认证商家

注册时间
2014-6-5
精华
0
QQ
发表于 2017-3-25 15:15:15 | 显示全部楼层

你好;我是安庆惠民装饰公司的,我们公司可以给您免费提供整套服务!新房精装修全包一口价668平方,一线品牌材料任您选,让您省心又省钱,前期我们可以免费上门量房出方案和预算,欢迎您来我们公司坐坐。联系0556   5057922    15856578988  


地址;菱湖南路110号正奇家居三楼。
回复 支持 反对

使用道具 举报

0

收听

1

听众

31

帖子

E粉新人

注册时间
2016-4-4
精华
0
发表于 2017-3-25 16:36:04 | 显示全部楼层
占个位置!相信你的选择!只有你想不到的没有我们做不到的!
安庆永乐装饰      公司地址中兴大道51#(4812工厂斜对面,美食广场正对面)  联系人  洪经理18130575945
回复 支持 反对

使用道具 举报

0

收听

2

听众

20

帖子

E粉新人

注册时间
2013-9-5
精华
0
 楼主| 发表于 2017-3-25 16:40:46 | 显示全部楼层
先发点原始户型的照片,讲真的,房间太小了,平面图上看不出来。一进卧室,这也只够摆一张床了吧。。。

主卧

主卧
回复 支持 反对

使用道具 举报

0

收听

2

听众

20

帖子

E粉新人

注册时间
2013-9-5
精华
0
 楼主| 发表于 2017-3-25 16:49:11 | 显示全部楼层
客厅各方面还是挺大的,阳台还可以,光线打八十分吧。
P60828-095308.jpg
P60828-095141.jpg
P60828-095234.jpg
P60828-095645.jpg
P60828-100049.jpg
P60829-133739.jpg
回复 支持 反对

使用道具 举报

0

收听

2

听众

20

帖子

E粉新人

注册时间
2013-9-5
精华
0
 楼主| 发表于 2017-3-25 16:50:56 | 显示全部楼层
本帖最后由 E网小风 于 2017-3-27 11:32 编辑

这几天效果图出来了,做的还是三维全景的,感觉好先进。扫手机,弄一下就能看到。
QQ图片20170325165030.png
回复 支持 反对

使用道具 举报

0

收听

2

听众

20

帖子

E粉新人

注册时间
2013-9-5
精华
0
 楼主| 发表于 2017-3-25 16:57:00 | 显示全部楼层
目前已经准备贴砖了,今天先把前几天水电施工的图放出来,望大神指点下,我看哪里还要不要改。
IMG_20170322_164401.jpg
IMG_20170322_164328.jpg
IMG_20170322_164317.jpg
IMG_20170322_164309.jpg
IMG_20170322_164617.jpg
IMG_20170322_164435.jpg
IMG_20170322_164420.jpg
回复 支持 反对

使用道具 举报

0

收听

2

听众

20

帖子

E粉新人

注册时间
2013-9-5
精华
0
 楼主| 发表于 2017-3-25 16:58:15 | 显示全部楼层
好了,回头贴砖时候,我再跟帖。
回复 支持 反对

使用道具 举报

0

收听

1

听众

573

帖子

未认证商家

注册时间
2013-7-14
精华
0
QQ
发表于 2017-3-26 08:53:13 | 显示全部楼层
祝楼主装修大吉
安庆馨福家装饰【爱ta就给ta.馨福家】-全裸透明家装倡导者
地址:宜秀区迎宾东路文苑路神墩家居A馆一楼装乐汇
手机微信:139-6660-5185    监督电话:0556-5533123
回复 支持 反对

使用道具 举报

头像被屏蔽

0

收听

1

听众

15

帖子

禁止发言

注册时间
2017-3-23
精华
0
发表于 2017-3-26 12:19:23 | 显示全部楼层
提示: 作者被禁止或删除 内容自动屏蔽
回复 支持 反对

使用道具 举报

头像被屏蔽

0

收听

1

听众

459

帖子

禁止发言

注册时间
2015-9-18
精华
0
QQ
发表于 2017-3-27 10:19:59 | 显示全部楼层
提示: 作者被禁止或删除 内容自动屏蔽
签名被屏蔽
回复 支持 反对

使用道具 举报

2

收听

24

听众

1951

帖子

E粉明星

注册时间
2010-8-8
精华
0
发表于 2017-3-27 21:03:08 | 显示全部楼层

未标题-1.jpg
回复 支持 反对

使用道具 举报

2

收听

24

听众

1951

帖子

E粉明星

注册时间
2010-8-8
精华
0
发表于 2017-3-27 21:35:26 | 显示全部楼层
十年的执着 我发现我越来越老到  祝楼主好运
回复 支持 反对

使用道具 举报

2

收听

24

听众

1951

帖子

E粉明星

注册时间
2010-8-8
精华
0
发表于 2017-3-27 21:41:14 | 显示全部楼层
本帖最后由 竞叫战士 于 2017-3-27 22:00 编辑

现在家庭对书房要求较高 孩子小的的话 将来有陪读或家教  

书房很快就能排上用场   

我自己的书房当时就没有考虑很多……尽管自己的孩子已经到外地上班  1.4M的书台  总觉得憋屈




楼主的房 主要想避开厕所门对主卧门  一个次卧门不想对上浴室镜。我只不过拉长廊道讲次卧变小了些,同时增加了很多收纳空间。
尺寸容许的话 吧台很多柜体门或抽屉门都可以朝厕所开  什么内衣 个人的袜子 厕所日用品常用物品……用起来很方便

杂物间不起眼  像换季落地电风扇 取暖器 人字梯 一些需要保存的包装盒箱……真有用

回复 支持 反对

使用道具 举报

0

收听

1

听众

276

帖子

认证商家

注册时间
2016-2-24
精华
0
发表于 2017-3-27 23:56:29 | 显示全部楼层
楼主您好,祝装修顺利!瓷砖还没开贴,建议楼主使用集成灶,至于为什么建议您使用集成灶,来我们店里细聊,看看我们的建议是否合理。美多集成灶期待您的光临。
美多集成灶安庆专卖店地址:光彩二期五区7栋28号
电话:5015980      13905569197
安庆二店地址:南翔光彩家居博览中心南厅一层61号
电话:8882250      13905569197
回复 支持 反对

使用道具 举报

1

收听

4

听众

684

帖子

未认证商家

注册时间
2012-2-12
精华
0
发表于 2017-3-28 09:37:46 | 显示全部楼层
仔细拜读了楼主的帖子,水电已经在走了嘛,不知道橱柜可有时间了解下锦致?
期待您的光临哦!
锦致橱柜,做最适合中国人的厨房
展厅地址:南翔光彩国际家居博览中心一层61号
品鉴热线:8882250
服务热
回复 支持 反对

使用道具 举报

0

收听

1

听众

23

帖子

E粉新人

注册时间
2016-11-2
精华
0
发表于 2017-4-1 15:09:45 | 显示全部楼层
恭喜楼主开工大吉。门窗移门要做可以联系 17730287588
回复 支持 反对

使用道具 举报

0

收听

1

听众

43

帖子

E粉新人

注册时间
2017-5-7
精华
0
发表于 2017-5-7 13:58:59 www.aqlife.com | 显示全部楼层
你好,需要做阳光房,封阳台,做防盗网,移门可以找我做哦,我在小区做了好多家了哦。13074025600小涂,期待与你的合作
回复 支持 反对

使用道具 举报

您需要登录后才可以回帖 登录 | 注册

本版积分规则

联系合作|手机版|手机APP|Archiver|

GMT+8, 2025-12-11 03:23 Powered by Discuz! X3.4

安庆E网生活网站 © 2001-2013 Comsenz Inc. ( 皖ICP备05012696号 )

QQ

安庆瑞易文化 地址:华茂1958-C7栋 联系电话:0556-5306667 联系邮箱:17779721@qq.com 互联网违法和不良信息举报电话和邮箱:0556-5306667 17779721@qq.com

皖公网安备 34080002000101号

    
快速回复 返回顶部 返回列表