安庆E网

搜索
查看: 5376|回复: 1

[装修日记] 合肥原树提香小户型装修

[复制链接]

0

收听

1

听众

31

帖子

E粉新人

注册时间
2016-4-4
精华
0
发表于 2017-3-25 17:27:33 | 显示全部楼层 |阅读模式
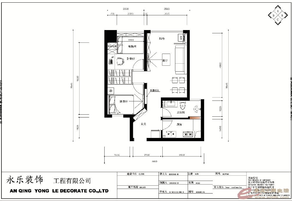
第一次接异地装修,比较忐忑先附上原始图纸房子比较小只有57个㎡,但是业主要求还是比较多的

原始平面图

原始平面图

总的来说有以下几点:第一,希望储物柜能多点,第二希望有一个吧台,第三希望有有一个洗晒区!第四点,宝宝房要有一个可以学习的地方,以及一个配套的大大的书架,第五点卫生间要大一点,希望能有一个单独的淋浴间,第六点厨房采光要好点!
在死了无数的脑细胞后,终于拿出初稿、

001.png
方案修改意见,一不做电视背景墙,利用柜体把电视背景墙区分出来,第二拆除卧室和餐厅之间隔墙的部分做一个折叠吧台,第三在客厅隔开部分区域用作洗晒区,第四,卧室02用作宝宝房,卧室01用作主卧室,俩者之前利用柜体分隔开节省空间的同时分开房间!第五把卫生间的设备平台改到卫生间里面,改成淋浴房,第六点,利用玻璃砖把卫生间和厨房分隔开。可以起到很好的采光作用的同时又避免了厨房和卫生间同时使用的尴尬!
方案得到业主的最终认可!
最终在以死了无数脑细胞的情况下,效果图出来了!
custom.png
全套做下来不含家具,电器以57400的预算价格成功签下!
开工日期初定3月28,这天刚好是业主小夫妻相识的日子
施工照片后期同步上传!
安庆永乐装饰      公司地址中兴大道51#(4812工厂斜对面,美食广场正对面)  联系人  洪经理18130575945
回复

使用道具 举报

0

收听

1

听众

31

帖子

E粉新人

注册时间
2016-4-4
精华
0
 楼主| 发表于 2017-3-25 17:28:33 | 显示全部楼层
沙发沙发,这次应该没有广告植入了吧!
安庆永乐装饰      公司地址中兴大道51#(4812工厂斜对面,美食广场正对面)  联系人  洪经理18130575945
回复 支持 反对

使用道具 举报

您需要登录后才可以回帖 登录 | 注册

本版积分规则

联系合作|手机版|手机APP|Archiver|

GMT+8, 2025-12-11 05:41 Powered by Discuz! X3.4

安庆E网生活网站 © 2001-2013 Comsenz Inc. ( 皖ICP备05012696号 )

QQ

安庆瑞易文化 地址:华茂1958-C7栋 联系电话:0556-5306667 联系邮箱:17779721@qq.com 互联网违法和不良信息举报电话和邮箱:0556-5306667 17779721@qq.com

皖公网安备 34080002000101号

    
快速回复 返回顶部 返回列表