安庆E网

搜索
查看: 11865|回复: 11

[设计案列] 【钻石郡+简中风格】装修日志探讨

[复制链接]

0

收听

1

听众

573

帖子

未认证商家

注册时间
2013-7-14
精华
0
QQ
发表于 2017-4-2 09:47:18 | 显示全部楼层 |阅读模式
还没有开工,在做开工前准备,先上几张图吧,后期将继续跟进
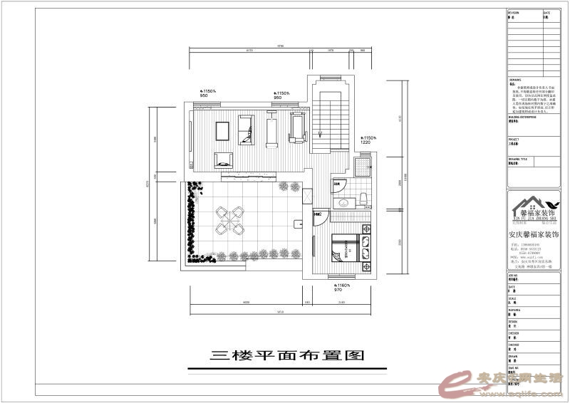
1、平面布置:

QQ图片20170402093512.jpg
QQ图片20170402093534.jpg
QQ图片20170402093541.jpg
2、暖光效果:
QQ图片20170402093545.jpg
QQ图片20170402093549.jpg
QQ图片20170402093553.jpg
QQ图片20170402093601.jpg
3、冷光效果:
QQ图片20170402093608.jpg
QQ图片20170402093604.jpg
QQ图片20170402093557.jpg

4、开工前准备:
QQ图片20170402093613.jpg
QQ图片20170402093623.jpg

安庆馨福家装饰【爱ta就给ta.馨福家】-全裸透明家装倡导者
地址:宜秀区迎宾东路文苑路神墩家居A馆一楼装乐汇
手机微信:139-6660-5185    监督电话:0556-5533123
回复

使用道具 举报

0

收听

1

听众

573

帖子

未认证商家

注册时间
2013-7-14
精华
0
QQ
 楼主| 发表于 2017-4-4 16:50:07 | 显示全部楼层
1.png
2.png
3.png
4.png
5.png
安庆馨福家装饰【爱ta就给ta.馨福家】-全裸透明家装倡导者
地址:宜秀区迎宾东路文苑路神墩家居A馆一楼装乐汇
手机微信:139-6660-5185    监督电话:0556-5533123
回复 支持 反对

使用道具 举报

0

收听

1

听众

14

帖子

E粉新人

注册时间
2017-2-3
精华
0
发表于 2017-4-5 11:19:47 | 显示全部楼层
恭喜恭喜
回复 支持 反对

使用道具 举报

0

收听

1

听众

573

帖子

未认证商家

注册时间
2013-7-14
精华
0
QQ
 楼主| 发表于 2017-4-7 10:27:04 | 显示全部楼层

谢谢
安庆馨福家装饰【爱ta就给ta.馨福家】-全裸透明家装倡导者
地址:宜秀区迎宾东路文苑路神墩家居A馆一楼装乐汇
手机微信:139-6660-5185    监督电话:0556-5533123
回复 支持 反对

使用道具 举报

0

收听

1

听众

573

帖子

未认证商家

注册时间
2013-7-14
精华
0
QQ
 楼主| 发表于 2017-4-8 14:45:10 | 显示全部楼层
本帖最后由 馨福家装饰 于 2017-4-8 14:47 编辑

钻石郡300-1实时监控安装现场拍摄
QQ图片20170408134547.jpg
QQ图片20170408134506.jpg

QQ图片20170408134557.jpg

QQ图片20170408134552.jpg

QQ图片20170408134539.jpg

QQ图片20170408134534.jpg


安庆馨福家装饰【爱ta就给ta.馨福家】-全裸透明家装倡导者
地址:宜秀区迎宾东路文苑路神墩家居A馆一楼装乐汇
手机微信:139-6660-5185    监督电话:0556-5533123
回复 支持 反对

使用道具 举报

0

收听

1

听众

573

帖子

未认证商家

注册时间
2013-7-14
精华
0
QQ
 楼主| 发表于 2017-4-19 13:21:30 | 显示全部楼层
面对大大小小的本土派、京派、粤派、“杂派”几百家装修公司,有的装修公司以各种套餐式的低价格诱惑客户;有的以“山寨”设计、中等价格招揽客户;有的以出身名门、名匠施工吸引客户……即使您做了预习“功课”、火线探底,心里仍无底:“到底选择哪家装修公司?”“我们的新房该怎样装修?”

最近总是有客户问我:“你们馨福家同其它装饰公司相比,优势在那里?”“XX样板房你看过吗?你觉得怎么样?”.......

1、“优势在哪里?我们可以比设计、质量、服务、价值。”设计是魂。一套房屋装修得好与坏、满意不满意关键在设计。设计的核心在原创,原创的精髓在和美。

2、不要过分迷信样板房,装房之前也不要抱着什么“欧式”、“地中海式”、“田园式”、“中式”、“现代式”先入为主的来定势基调。我们会用专业的心,做专业的事。我们设计的理念是“一户一设计。我们将根据每个客户,不同的生活习惯、性格爱好、经济状况、文化修养再有机地结合其房屋的户型结构、地理位置、周边环境、风水采光、家庭成员等要素,量体裁衣,订身设计。我们做设计首先要在满足:养身、养体、养家的家居自然功能的前提下,在软装、艺装上着力,对空间裁剪、材质组合、光彩控制、色彩搭配,并赋于房屋亲情空间、文化空间、思想空间、艺术空间,让空间具有特性的灵魂,营造一种氛围,创造一种生活。品味空间,生活无限。

3、质量是本,它是企业的生命线。

psb (4).jpg psb (3).jpg psb (2).jpg psb (1).jpg psb (5).jpg psb (6).jpg psb (7).jpg psb (8).jpg psb (9).jpg psb (10).jpg psb (11).jpg psb (12).jpg psb (13).jpg psb (14).jpg psb (15).jpg psb.jpg 1.jpg 2.jpg 3.jpg 4.jpg 5.jpg 7.jpg 8.jpg 9.jpg 10.jpg 11.jpg 12.jpg


安庆馨福家装饰【爱ta就给ta.馨福家】-全裸透明家装倡导者
地址:宜秀区迎宾东路文苑路神墩家居A馆一楼装乐汇
手机微信:139-6660-5185    监督电话:0556-5533123
回复 支持 反对

使用道具 举报

0

收听

1

听众

573

帖子

未认证商家

注册时间
2013-7-14
精华
0
QQ
 楼主| 发表于 2017-4-29 09:55:26 | 显示全部楼层
馨福家装饰 发表于 2017-4-19 13:21
面对大大小小的本土派、京派、粤派、“杂派”几百家装修公司,有的装修公司以各种套餐式的低价格诱惑客户; ...

t018caba01017e5dcce.jpg

mdnbGks6KVbanQmHt3r8-SrJjNeYuLmauGnpRziGqskJ-Y3HrTgmefcZqKa5uXraOsfc52mXyvaquroW.jpg

安庆馨福家装饰【爱ta就给ta.馨福家】-全裸透明家装倡导者
地址:宜秀区迎宾东路文苑路神墩家居A馆一楼装乐汇
手机微信:139-6660-5185    监督电话:0556-5533123
回复 支持 反对

使用道具 举报

0

收听

1

听众

573

帖子

未认证商家

注册时间
2013-7-14
精华
0
QQ
 楼主| 发表于 2017-5-2 09:07:49 | 显示全部楼层

2017年5月1日9:08分  钻石郡300-1开工仪式
QQ图片20170502090013.jpg

QQ图片20170502090008.jpg

QQ图片20170502090003.jpg

QQ图片20170502085931.jpg

QQ图片20170502085944.jpg

QQ图片20170502085937.jpg

QQ图片20170502085949.jpg

QQ图片20170502085954.jpg

QQ图片20170502085959.jpg
安庆馨福家装饰【爱ta就给ta.馨福家】-全裸透明家装倡导者
地址:宜秀区迎宾东路文苑路神墩家居A馆一楼装乐汇
手机微信:139-6660-5185    监督电话:0556-5533123
回复 支持 反对

使用道具 举报

0

收听

1

听众

573

帖子

未认证商家

注册时间
2013-7-14
精华
0
QQ
 楼主| 发表于 2017-6-5 09:46:51 | 显示全部楼层
馨福家装饰 发表于 2017-5-2 09:07
2017年5月1日9:08分  钻石郡300-1开工仪式

钻石郡300-1一楼防水防潮处理,地面开挖中
微信图片_20170603151132.jpg
安庆馨福家装饰【爱ta就给ta.馨福家】-全裸透明家装倡导者
地址:宜秀区迎宾东路文苑路神墩家居A馆一楼装乐汇
手机微信:139-6660-5185    监督电话:0556-5533123
回复 支持 反对

使用道具 举报

0

收听

1

听众

573

帖子

未认证商家

注册时间
2013-7-14
精华
0
QQ
 楼主| 发表于 2017-8-13 09:15:39 | 显示全部楼层
馨福家装饰 发表于 2017-6-5 09:46
钻石郡300-1一楼防水防潮处理,地面开挖中

微信图片_20170813090552.jpg
微信图片_20170813090622.jpg
微信图片_20170813090626.jpg
微信图片_20170813090631.jpg
微信图片_20170813090635.jpg
微信图片_20170813090640.jpg
微信图片_20170813090739.jpg
微信图片_20170813090756.jpg
微信图片_20170813090800.jpg
微信图片_20170813090818.jpg
微信图片_20170813090807.jpg
微信图片_20170813090812.jpg

安庆馨福家装饰【爱ta就给ta.馨福家】-全裸透明家装倡导者
地址:宜秀区迎宾东路文苑路神墩家居A馆一楼装乐汇
手机微信:139-6660-5185    监督电话:0556-5533123
回复 支持 反对

使用道具 举报

0

收听

1

听众

573

帖子

未认证商家

注册时间
2013-7-14
精华
0
QQ
 楼主| 发表于 2017-8-27 09:05:08 | 显示全部楼层
安庆馨福家装饰【爱ta就给ta.馨福家】-全裸透明家装倡导者
地址:宜秀区迎宾东路文苑路神墩家居A馆一楼装乐汇
手机微信:139-6660-5185    监督电话:0556-5533123
回复 支持 反对

使用道具 举报

0

收听

1

听众

573

帖子

未认证商家

注册时间
2013-7-14
精华
0
QQ
 楼主| 发表于 2017-9-4 13:45:58 | 显示全部楼层
现场跟踪,水电+地暖+中央空调+新风系统施工中。。。。。
QQ图片20170903173003.jpg

QQ图片20170903173033.jpg

QQ图片20170903173038.jpg

QQ图片20170903173433.jpg

QQ图片20170903173438.jpg

QQ图片20170903173441.jpg

QQ图片20170904132738.jpg

QQ图片20170904132750.jpg

QQ图片20170904132753.jpg

QQ图片20170904132757.jpg

QQ图片20170904132800.jpg

QQ图片20170904132803.jpg

QQ图片20170904132805.jpg

QQ图片20170904132808.jpg

QQ图片20170904132811.jpg

QQ图片20170904132813.jpg

QQ图片20170904132816.jpg

QQ图片20170904132819.jpg

QQ图片20170904132822.jpg

QQ图片20170904132824.jpg

QQ图片20170904132827.jpg

QQ图片20170904132829.jpg

QQ图片20170904132832.jpg

QQ图片20170904132835.jpg

QQ图片20170904132838.jpg

QQ图片20170904132840.jpg
安庆馨福家装饰【爱ta就给ta.馨福家】-全裸透明家装倡导者
地址:宜秀区迎宾东路文苑路神墩家居A馆一楼装乐汇
手机微信:139-6660-5185    监督电话:0556-5533123
回复 支持 反对

使用道具 举报

您需要登录后才可以回帖 登录 | 注册

本版积分规则

联系合作|手机版|手机APP|Archiver|

GMT+8, 2025-12-12 01:38 Powered by Discuz! X3.4

安庆E网生活网站 © 2001-2013 Comsenz Inc. ( 皖ICP备05012696号 )

QQ

安庆瑞易文化 地址:华茂1958-C7栋 联系电话:0556-5306667 联系邮箱:17779721@qq.com 互联网违法和不良信息举报电话和邮箱:0556-5306667 17779721@qq.com

皖公网安备 34080002000101号

    
快速回复 返回顶部 返回列表