本帖最后由 山里娃 于 2017-8-5 10:37 编辑
新房已开工有几天了,今天突然心血来潮也来开个贴记录下点滴装修记,希望懒懒的我能坚持下去 !其实新房交付有几年了,一直因工作忙,也不是太着急住所以装修的事一直拖到去年年底才开始琢磨,开始空了就网上逛家居,逛装修,想对装修有更多的了解,心里有个大概的蓝图和预算,对装修是铆足了劲在做准备 !还咨询了身边刚刚装修的朋友,想省点心 ,他强烈向我推荐了爱尚装饰,他家也是他们家装的,他对他们很是满意,不过装修也是件大事,我也想对比参考下,所谓货比三家才不上当,于是从年初后也跑了几 家心怡的装饰公司,也都量了房出了设计和报价,我和先生反反复复的对比后,还是觉得爱尚的方案让我感觉更舒适合理,报价也实在细致,设计师小裴做事严谨,考虑周到,把我想要的都融入到设计中去了,讲解也很条理清晰,朋友说他们项目经理李工人特实在,做事很是负责,除了初期选材后期几乎不用操心,还有朋友家实景效果,综合所有的还是和先生最后敲定了爱尚,期待三个月后的成果!!!
开工大吉大利:一切顺顺利利里面,八八发,新居好寓意    !!!
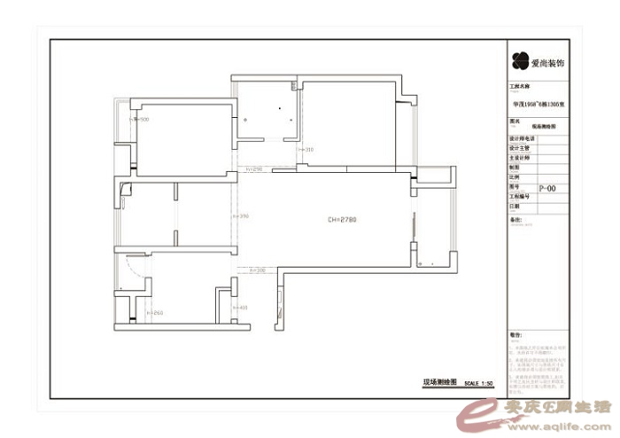
拆改前
设计后
妥妥的地面保护
妥妥的地面保护
正式动工,砸墙拆改中
今天正好来新房边办事,顺路就进来晃一下,墙体已砌好部分,开始有点小模样了,比之前美观了不少,师傅们正在专心干活,细致的工程经理还耐心的给我讲解了下工序,原来新墙合老墙结合的地方要用植筋胶加钢筋穿插,以便更好的结合和固定 ,还有新墙和老墙粉刷的时候还要给老墙体的原有粉刷层打掉一些然后再挂钢丝网,起到拉伸墙体防止墙体开裂的作用,原来看着简单的彻墙还有这么专业和讲究在里面,又涨知识了 !!!
墙固已刷好,水电槽也开好,马上可以走线了,一步步的改变更新,期待中  !!!
还有这里,清清爽爽让我对以后的布局一目了然,爱尚装饰比我当初预想的更细致专业,越看越放心了,想想还是很幸运的选择     !!!由衷的感谢  !!!
难得有空,我又来啦,上几张新图,记念下我家的水电走线工程,工工整整的,专业,细致,感谢水电史师傅的精工细作,感谢李经理的周到负责,有你们,真的让我省心省力,在这为师傅们为爱尚点个赞    !!!
‘
墙砖,地砖铺贴中,虽然我不专业但看着很舒适!表面水平,砖缝齐齐相应,看师傅每块铺下后都会均匀的敲打下,很是细心专业!这个天,还能这么不急不燥的耐心专注的干活,真心感谢!
|