安庆E网

搜索
查看: 6407|回复: 0

[装修日记] 新中式风格,装修日记海量效果图,欢迎围观

[复制链接]

0

收听

1

听众

6

帖子

E粉新人

注册时间
2017-6-8
精华
0
发表于 2017-6-9 14:40:49 | 显示全部楼层 |阅读模式
开工好久了,一直打算发点儿照片去。可是一直都忘记了。从来没有想过有一天自己会踏上装修这条苦逼的道路,苦苦找了好久的装修公司,最后还是选择了北京交换空间装饰。

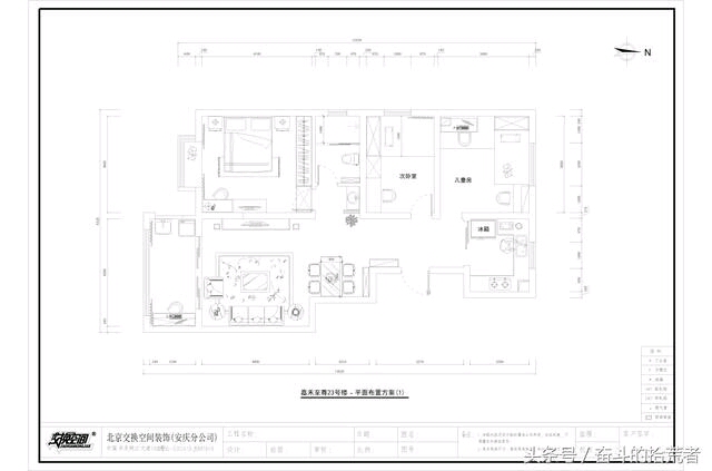
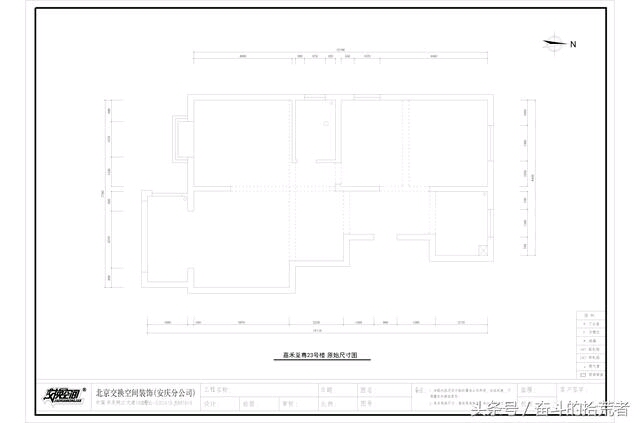
房子地址:嘉禾至尊面积:113㎡装修公司:交换空间设计师:小倪帅哥

预算:全包十万风格:新中式

装修风格:新中式风格设计上延续了明清时期家居配饰理念,提炼了其中经典元素并加以简洁清秀,同时又打破了传统中式空间布局中等级,尊卑等文化思想,空间配色上也更为轻松自然。

传统新中式风格家具以木质材料居多,颜色多以访花梨木和紫檀色为主。墙壁既可四白落地,也可以选择配合深褐色家具的米白,米黄或沙色。最具代表性的家具是茶几,地砖,圈椅窗棂,屏风,月亮门等。

倪大设计说绿植是新中式风格中不可缺少的元素,看来以后要多买点儿绿植物了呢!感谢交换空间倪设计出的设计我和我的爱人十分喜欢!













回复

使用道具 举报

您需要登录后才可以回帖 登录 | 注册

本版积分规则

联系合作|手机版|手机APP|Archiver|

GMT+8, 2025-12-12 03:13 Powered by Discuz! X3.4

安庆E网生活网站 © 2001-2013 Comsenz Inc. ( 皖ICP备05012696号 )

QQ

安庆瑞易文化 地址:华茂1958-C7栋 联系电话:0556-5306667 联系邮箱:17779721@qq.com 互联网违法和不良信息举报电话和邮箱:0556-5306667 17779721@qq.com

皖公网安备 34080002000101号

    
快速回复 返回顶部 返回列表