安庆E网

搜索
查看: 68807|回复: 52

[装修日记] 【逸龙湾小区】携手 时馨装饰 塑造温馨之家!(大波实景图来袭,欢迎围观)

[复制链接]

0

收听

1

听众

50

帖子

E粉新人

注册时间
2016-5-31
精华
0
发表于 2017-6-14 09:00:08 | 显示全部楼层 |阅读模式
本帖最后由 大哥. 于 2017-12-6 12:30 编辑

开篇小谈:
能结缘于时馨
,却也是意料之中。楼主自己本身是个灰常粗心大意的人,对于装修更是妥妥的门外汉,至今还不明白半包不含主材为什么还要打柜子;对于楼主这个为了提升逼格而不得不上网看资料结果看资料看到游戏里的人来说,这么个对于专业的设计师来讲明显弱智的问题我肯定是不会拉下老脸的去问的,太丢逼格了。

内心知道
像我们这样啥都不懂的,唯一的途径只能找装司,可是同样也害怕找装司,怕被坑,不怕多一点钱,只要能装好,就怕多花了钱装的还不如人意。书到用时方恨少,只能临时抱佛脚;
    量房找了好几家公司,其中不乏比较知名的装修公司。其实设计师是对这个装修公司第一印象如何的关键,有的设计师明显感觉到不靠谱,特别能忽悠,很多不必要的工序,和你说的好像不做不行。很多必要的工序,报价马马虎虎不清晰。总之让人感觉目的就是一个:赶紧签合同。几家聊下来就觉得装修的水太深了。
时馨是最后才约的,何工我和家人一致都觉得很好,聊得时候觉得很多意见都比较中肯,很实在。我们一共去了三次,每次都很耐心的解答我们的许多问题。但是因为假期有限,回到外地后一直在网上沟通,支付点定金让何工出了效果图,之后等图——修改——修改——确定。年底太忙又没有时间,等到年后才能慢慢的步入装修正轨。总结下时馨脱颖而出的原因:

1:对设计师的第一印象好,形象、性格还有专业度以及人实诚。

2:公司的口碑、服务周到。并且承诺先装修后付款,这样可以解除后顾之忧

3:同小区有做过,也一起去现场看过,那么质量这一块心里也有底了

其他:本地的,开业有一定年限,有自己的施工、一整套的管理制度。


最终确定下来,还是因为每一步的详细图纸,确实是解决我这样‘文盲’的大难题。就像后面何工说的,施工直接对比手上的图纸,有什么不一样的直接可以来公司,再加上能在安庆生存这么久,口碑也是有目共睹的,天气越来越热,真不想后期大热天去跑工地。

回复

使用道具 举报

0

收听

1

听众

50

帖子

E粉新人

注册时间
2016-5-31
精华
0
 楼主| 发表于 2017-6-17 09:05:24 | 显示全部楼层
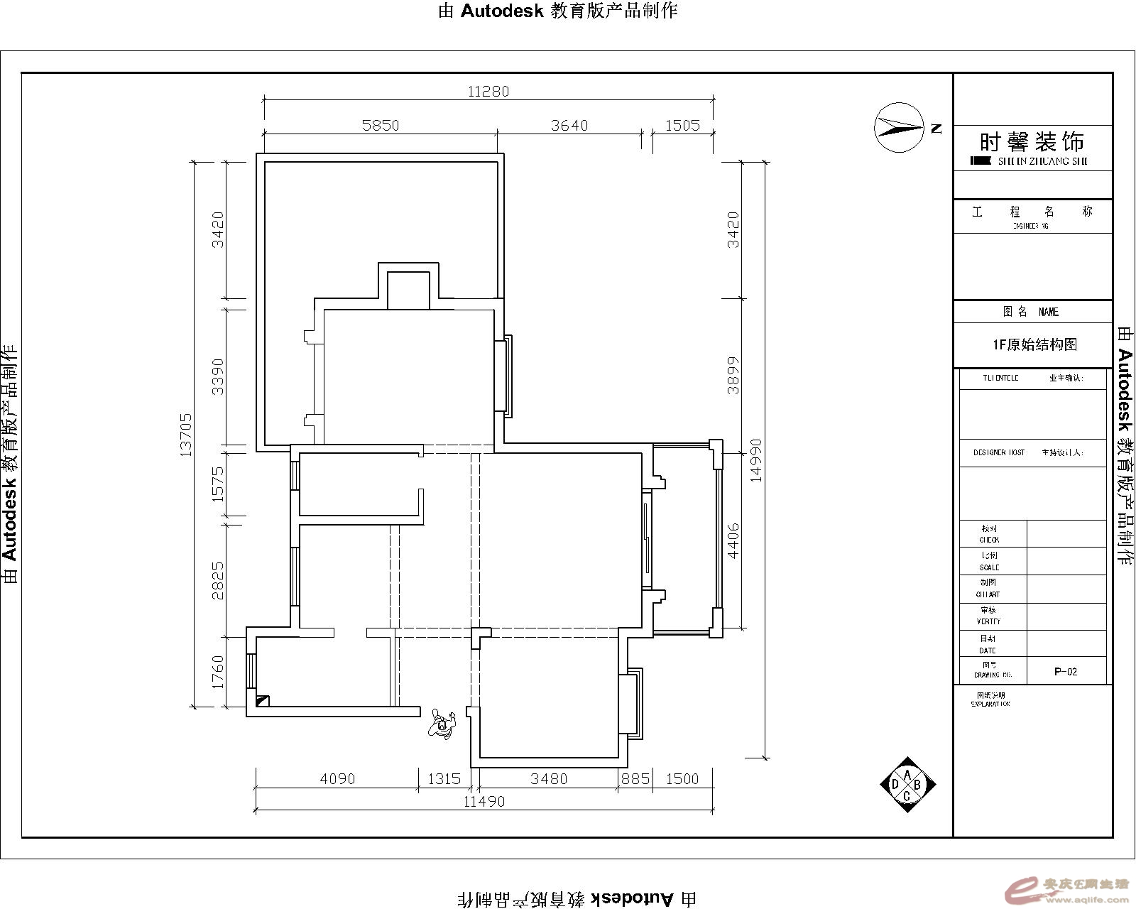
最近几天一直忙着跑市场就没更了,直接上图开始切入主题了
原始结构图.jpg
回复 支持 反对

使用道具 举报

0

收听

1

听众

50

帖子

E粉新人

注册时间
2016-5-31
精华
0
 楼主| 发表于 2017-6-17 09:27:51 | 显示全部楼层
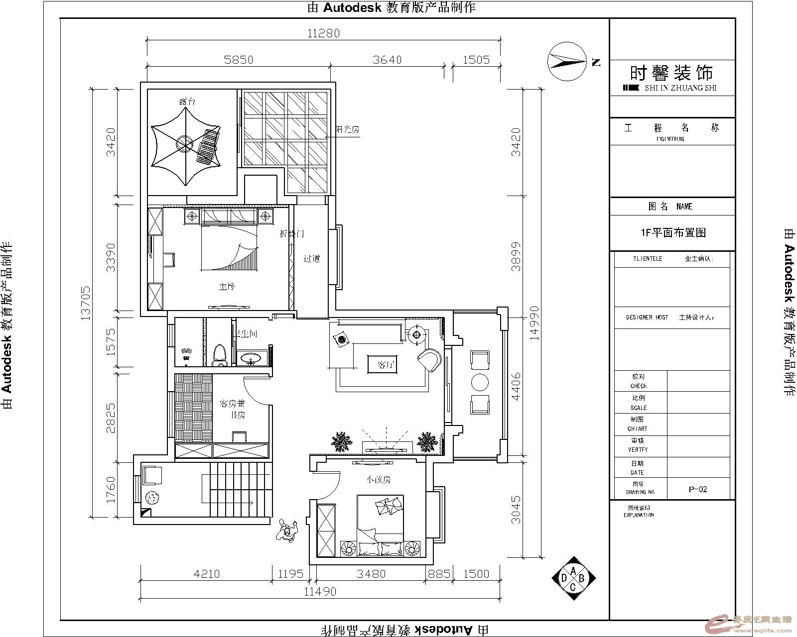
对于户型的平面布局确实是伤透脑筋,看了很多同户型的改造都还不错但是好像又缺点什么!因为是小复式,上面还有一层那么肯定是需要做楼梯上二楼的,但对于楼梯的位置就是最头痛的!不想破坏掉整体布局又能最大化利用,想过二楼做房间可是顶层温度高是必定的所以直接PASS,经过跟何工的反复商讨做了个大胆的决定将厨房餐厅放至二楼,楼梯从原厨房位置上去,原餐厅处做休闲房间那么整体格局就规整了!对于主卧的改造,本着房间能大就大的想法,所以原阳台废弃增至主卧。从南边开个门洞通至阳台这样就避免了从房间去阳台的尴尬局面!但是这样一来主卧里面就增加了个过道,而我又不想浪费所以何工给了个建议做折叠门!晚上睡觉的时候可以把门推至一边过道成房间空间,白天就把门拉上过道就出来了!对于沙发处何工安排做了个隐形门,避免了进门就看到很深一条过道的尴尬。在此感谢下何工,真的是完美的解决了我们每一个难点!
逸龙湾2#501-Model.jpg
回复 支持 反对

使用道具 举报

0

收听

1

听众

50

帖子

E粉新人

注册时间
2016-5-31
精华
0
 楼主| 发表于 2017-6-17 09:29:13 | 显示全部楼层

开工大吉!!!

本帖最后由 大哥. 于 2017-6-20 10:39 编辑

6月13日9点58分良辰吉日开工大吉
新建文件夹-(2)IMG_2425.jpg
新建文件夹 (2)IMG_2331.JPG
回复 支持 反对

使用道具 举报

0

收听

1

听众

50

帖子

E粉新人

注册时间
2016-5-31
精华
0
 楼主| 发表于 2017-6-17 09:29:29 | 显示全部楼层
占楼123
回复

使用道具 举报

0

收听

1

听众

50

帖子

E粉新人

注册时间
2016-5-31
精华
0
 楼主| 发表于 2017-6-17 09:29:48 | 显示全部楼层
   占楼123
回复 支持 反对

使用道具 举报

0

收听

1

听众

50

帖子

E粉新人

注册时间
2016-5-31
精华
0
 楼主| 发表于 2017-6-20 10:23:26 | 显示全部楼层
效果图出来了,整体看着很舒服是我想要的!在这个过程中跟何工也做了很多的沟通和调整,过程是繁琐的是煎熬的但结果我很满意。有种苦尽甘来的感觉哈哈,不过都是值得的
001.jpg
002.jpg
回复 支持 反对

使用道具 举报

0

收听

1

听众

50

帖子

E粉新人

注册时间
2016-5-31
精华
0
 楼主| 发表于 2017-6-20 11:02:57 | 显示全部楼层
速度还是挺快的哈,昨天去看了下墙体拆除完毕。接下来是阳光房楼梯以及做墙体了,真是一天一个样现在就在期待完工的成品了!!!
新建文件夹-(2)IMG_2426.jpg
新建文件夹-(2)IMG_2428.jpg
新建文件夹-(2)IMG_2430.jpg
新建文件夹-(2)IMG_2432.jpg
新建文件夹-(2)IMG_2434.jpg
回复 支持 反对

使用道具 举报

0

收听

1

听众

50

帖子

E粉新人

注册时间
2016-5-31
精华
0
 楼主| 发表于 2017-6-23 15:34:09 | 显示全部楼层
最近几天一直在逛淘宝,跑建材市场按这个形式下去装修完工我最少能减10斤。之前听朋友说装修多麻烦我还不以为然,真正轮到自己头上真的是深刻体会。主要是一些主材之间的对比,因为厨房放至二楼准备做开放式的,经过朋友的介绍和推荐还是决定做环保灶,不得不去找度娘恶补,经过了解决定用莫品牌但是价格有点偏高所以就纠结了!所以想问下大家可有性价比好点的能否介绍下?
回复 支持 反对

使用道具 举报

0

收听

1

听众

50

帖子

E粉新人

注册时间
2016-5-31
精华
0
 楼主| 发表于 2017-6-23 15:43:15 | 显示全部楼层
阳光房材料昨天到场,楼梯钢架也焊接完工。总体还是比较满意,相当牢固这里得感谢下方师傅夫妇的辛劳付出!
1.JPG
2.JPG
3.JPG
4.JPG
5.JPG
回复 支持 反对

使用道具 举报

0

收听

1

听众

50

帖子

E粉新人

注册时间
2016-5-31
精华
0
 楼主| 发表于 2017-6-27 15:23:40 | 显示全部楼层
阳光房框架搭建完毕,墙体改造完毕接下来就是水电改造了!
IMG_2501.JPG
IMG_2502.JPG
IMG_2503.JPG
IMG_2504.JPG
IMG_2506.JPG
回复 支持 反对

使用道具 举报

0

收听

2

听众

49

帖子

E粉新星

注册时间
2010-4-30
精华
0
QQ
发表于 2017-6-27 22:41:50 www.aqlife.com | 显示全部楼层
你家多少平方,预算多少的呀,我之前也联系何工上门量房啦,只是一直没时间装。
回复 支持 反对

使用道具 举报

0

收听

1

听众

50

帖子

E粉新人

注册时间
2016-5-31
精华
0
 楼主| 发表于 2017-6-28 13:45:27 | 显示全部楼层
喵呜 发表于 2017-6-27 22:41
你家多少平方,预算多少的呀,我之前也联系何工上门量房啦,只是一直没时间装。

价格已短。
回复 支持 反对

使用道具 举报

0

收听

1

听众

50

帖子

E粉新人

注册时间
2016-5-31
精华
0
 楼主| 发表于 2017-7-4 15:31:04 | 显示全部楼层
最近在外地出差,房子的事就没时间管了!期待回去看到房子的又一次蜕变,目前水电正在施工(持续更新中.....)
回复 支持 反对

使用道具 举报

0

收听

1

听众

50

帖子

E粉新人

注册时间
2016-5-31
精华
0
 楼主| 发表于 2017-7-8 11:08:28 | 显示全部楼层
前两天就接到通知,水电验收!只能说怎么这么快,没办法前天收拾东西回家昨天验收完毕。对于外行来说我是什么都看不懂,看了下水管和电线的品牌然后厂家试压完毕,签个字搞定!话说水电完工了,白花花的银子得往出洒了
回复 支持 反对

使用道具 举报

0

收听

1

听众

50

帖子

E粉新人

注册时间
2016-5-31
精华
0
 楼主| 发表于 2017-7-8 11:11:16 | 显示全部楼层
因为前期说好的,先装后付水电完工了,看了下材料和质量个人认为没什么问题.  PS:我也不懂啊,怎么看 幸好他们详细的给我介绍了下,然后就个人习惯我让他们增加了几个插座,忘记听谁说的了(插座越多越好)在这里跟工人师傅说声不好意思了
回复 支持 反对

使用道具 举报

0

收听

1

听众

50

帖子

E粉新人

注册时间
2016-5-31
精华
0
 楼主| 发表于 2017-7-8 11:14:07 | 显示全部楼层
接下来上水电图
水电图IMG_2691.JPG
水电图IMG_2654.JPG
水电图IMG_2655.JPG
水电图IMG_2656.JPG
水电图IMG_2658.JPG
水电图IMG_2659.JPG
水电图IMG_2660.JPG
水电图IMG_2661.JPG
水电图IMG_2663.JPG
水电图IMG_2666.JPG
水电图IMG_2669.JPG
水电图IMG_2673.JPG
水电图IMG_2679.JPG
水电图IMG_2683.JPG
水电图IMG_2685.JPG
水电图IMG_2688.JPG
回复 支持 反对

使用道具 举报

1

收听

1

听众

7

帖子

E粉新人

注册时间
2016-5-28
精华
0
发表于 2017-7-11 08:42:43 | 显示全部楼层
感谢李总对我们时馨的信任和工作的大力支持,一定不负厚望尽力一起去创建属于您温馨而时尚的家
回复 支持 反对

使用道具 举报

0

收听

1

听众

50

帖子

E粉新人

注册时间
2016-5-31
精华
0
 楼主| 发表于 2017-7-13 14:13:32 | 显示全部楼层
时馨设计装饰 发表于 2017-7-11 08:42
感谢李总对我们时馨的信任和工作的大力支持,一定不负厚望尽力一起去创建属于您温馨而时尚的家

很荣幸能够和你们一起见证小家的建立,同时也预祝接下来的装饰中能够愉快的相处!
回复 支持 反对

使用道具 举报

0

收听

1

听众

50

帖子

E粉新人

注册时间
2016-5-31
精华
0
 楼主| 发表于 2017-7-13 14:17:07 | 显示全部楼层
瓦工线槽粉刷中,因考虑到卫生间毛巾架的放置问题、经过跟何工的商讨将原有的移门改为平开门。地砖已到场签收,话说装修真是无底洞白花花的银子往外洒,心痛自己一秒钟
IMG_2721.JPG
IMG_2718.JPG
IMG_2717.JPG
IMG_2737.JPG
回复 支持 反对

使用道具 举报

0

收听

1

听众

50

帖子

E粉新人

注册时间
2016-5-31
精华
0
 楼主| 发表于 2017-7-18 10:31:55 | 显示全部楼层
持续更新中。。。。瓦工在贴砖中,后续上成品图!
回复 支持 反对

使用道具 举报

0

收听

1

听众

50

帖子

E粉新人

注册时间
2016-5-31
精华
0
 楼主| 发表于 2017-7-18 10:32:15 | 显示全部楼层
占楼。。。
回复

使用道具 举报

0

收听

1

听众

50

帖子

E粉新人

注册时间
2016-5-31
精华
0
 楼主| 发表于 2017-7-18 10:33:48 | 显示全部楼层
关于板材的选择有点小纠结了,公司里面有三个品牌供我选择分别是千年舟、兔宝宝、莫干山。说是安庆市场比较好的,对于选择困难户的我各位装友可有什么好的建议?
回复 支持 反对

使用道具 举报

1

收听

9

听众

5117

帖子

E粉明星

注册时间
2009-11-24
精华
0

室内装饰设计QQ243160571

QQ
发表于 2017-7-18 14:05:51 | 显示全部楼层
这三个品牌确实不错,有条件可以考虑用杉木芯的。
东盛装饰  您身边的装修专家!
地址:光彩四期烩街公寓6楼(光彩大舞台隔壁)
电话:13625565176   5200845
回复 支持 反对

使用道具 举报

0

收听

1

听众

50

帖子

E粉新人

注册时间
2016-5-31
精华
0
 楼主| 发表于 2017-7-19 10:52:14 | 显示全部楼层
wjj11192226 发表于 2017-7-18 14:05
这三个品牌确实不错,有条件可以考虑用杉木芯的。

谢谢,经过考虑还是决定用千年舟的!主要还是看中了有一款板材的颜色好看,是不是太草率了点
回复 支持 反对

使用道具 举报

您需要登录后才可以回帖 登录 | 注册

本版积分规则

联系合作|手机版|手机APP|Archiver|

GMT+8, 2025-12-10 20:15 Powered by Discuz! X3.4

安庆E网生活网站 © 2001-2013 Comsenz Inc. ( 皖ICP备05012696号 )

QQ

安庆瑞易文化 地址:华茂1958-C7栋 联系电话:0556-5306667 联系邮箱:17779721@qq.com 互联网违法和不良信息举报电话和邮箱:0556-5306667 17779721@qq.com

皖公网安备 34080002000101号

    
快速回复 返回顶部 返回列表