安庆E网

搜索
查看: 50591|回复: 16

[装修日记] 【顶固五金杯装修大赛NO.13】【汪工 品尚装饰】落院安家---小美到底有多美

[复制链接]

0

收听

2

听众

1189

帖子

E粉明星

注册时间
2008-7-1
精华
1
发表于 2017-7-27 11:45:26 | 显示全部楼层 |阅读模式
本帖最后由 jwyk 于 2017-11-23 10:10 编辑

前言:
某为80后的平凡一代,如同众多DS一样,从踏入工作岗位的第一天开始,就为房所困。

然而“树高千丈,叶落归根”,未曾想过从三代之内的格局,仍是在这二里之内。

既然缘固如此,不如尽兴入趣,来一场
趁心乐意的装修吧。

装修公司BOSS是老同学的妹婿之一,坦率的同代俊杰。项目经理小汪工话少活细,设计师小苏倒像更像是家里的小表弟,大家交流起来毫无障碍。


他们家的工地也是跑了不少,活线套管,横平竖直,自家的师傅手艺也不赖,堪比“某达”。

最终眼缘占了上风,一二把手都决定投给他们。

因为父母家“全包”装修有前车之鉴,一开始我们最不愿意的“半包”反而成了定稿。

一个不惧麻烦的“半包”,一篇罗哩喽嗦的装修日记,我会淡定的写完,欢迎大家分享经验。


直达电梯:
1、前言(户型图、装饰公司、开工准备)---本楼;    2、墙体拆除和新砌         3、平面效果图

4、电工进场之开关插座定位                                                  5、水电开槽                   6、铺设水管

7、铺设电线                          8、封阳台       9、木工施工  10、瓦工施工   11、漆工施工


设计风格:

从脑海中的“新中式”到赞叹同事家的“地中海”,最终期待将来到我们面前的“小美”。



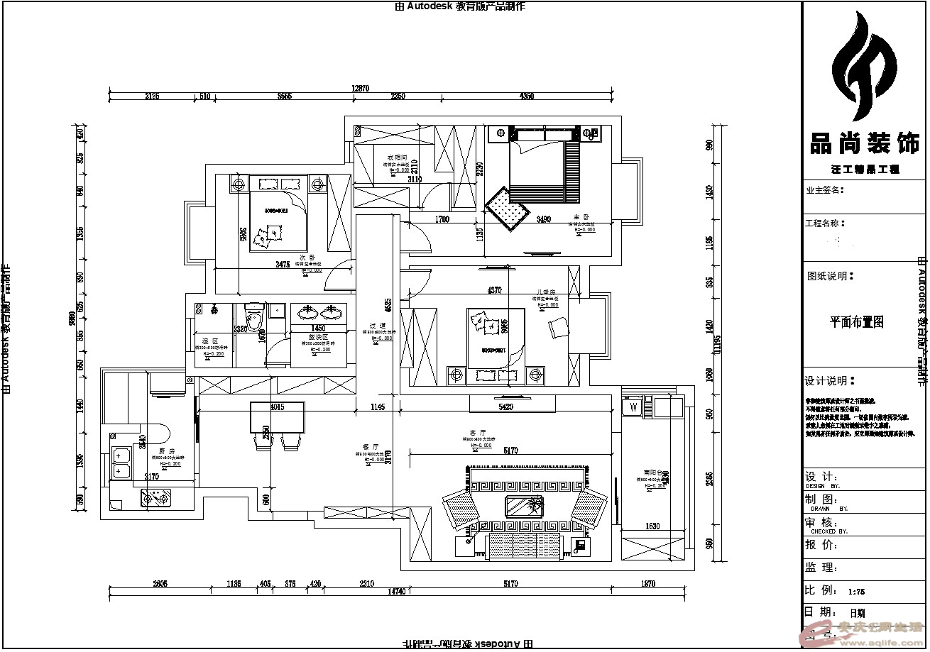
平面户型图: 户型.jpg


开工大吉:
1、俗套也不能落,炸鞭、敲墙板,一套是一套...
炮竹.jpg

炮竹2.jpg

2、开工准备来一发,只有正规才有机会....
包门.jpg
微信图片_20170727114846.jpg
微信图片_20170727114850.jpg
微信图片_20170727114855.jpg
微信图片_20170727114837.jpg







回复

使用道具 举报

0

收听

2

听众

1189

帖子

E粉明星

注册时间
2008-7-1
精华
1
 楼主| 发表于 2017-7-30 22:04:42 | 显示全部楼层
本帖最后由 jwyk 于 2017-8-10 08:53 编辑

7月末完成墙体拆除结束。阳台门拆除后扩大到了3.1米,感谢小汪工和师傅们顶着高温安排施工,非常辛苦! 微信图片_20170730215950.jpg
微信图片_20170730220012.jpg
微信图片_20170730220024.jpg
微信图片_20170730220019.jpg
微信图片_20170730220350.jpg

8月初完成墙体基础工程,结束切断和新砌墙体、预埋钢筋、铲除原始墙面

地面够干净吧,厨房和衣帽间新砌门洞上口加装预制板过搭,墙面待刮糙时新老墙体还要预埋钢丝网加固。
餐厅 砌.jpg
衣帽间.jpg
客厅 砌墙.jpg
微信图片_20170809172325.jpg











回复 支持 反对

使用道具 举报

0

收听

1

听众

422

帖子

未认证商家

注册时间
2016-3-17
精华
0
发表于 2017-8-9 12:36:23 | 显示全部楼层
顶顶




安庆品尚装饰
电话:15385562988(微信同号)
          0556-5200370
地址:绿地三期北大门口(欧尚超市背后)
回复 支持 反对

使用道具 举报

0

收听

2

听众

1189

帖子

E粉明星

注册时间
2008-7-1
精华
1
 楼主| 发表于 2017-8-9 18:04:15 | 显示全部楼层
效果图闪亮登场
餐厅
餐厅_副本.jpg

客厅
客厅2_副本.jpg
客厅_副本.jpg

儿童房
儿童房_副本.jpg







回复 支持 反对

使用道具 举报

0

收听

2

听众

1189

帖子

E粉明星

注册时间
2008-7-1
精华
1
 楼主| 发表于 2017-8-10 09:02:51 | 显示全部楼层
本帖最后由 jwyk 于 2017-8-10 09:12 编辑

8月10日电工进场
前几天开关插座已落位,接下来放线,确定插座高度,家里所有规定尺寸插座在一条线上
电工开槽划线.jpg
电工开槽划线4.jpg

电工开槽划线2.jpg

电工开槽划线3.jpg


回复 支持 反对

使用道具 举报

0

收听

2

听众

1189

帖子

E粉明星

注册时间
2008-7-1
精华
1
 楼主| 发表于 2017-8-11 11:16:02 | 显示全部楼层
本帖最后由 jwyk 于 2017-8-21 11:30 编辑

水电开槽
墙面:
微信图片_20170811110646.jpg

微信图片_20170811110651.jpg

微信图片_20170811110655.jpg
微信图片_20170817085518.jpg

微信图片_20170817085526.jpg

微信图片_20170817085601.jpg



地面
微信图片_20170811110714.jpg

微信图片_20170811110559.jpg

微信图片_20170811110616.jpg

微信图片_20170811110620.jpg

微信图片_20170811110627.jpg

微信图片_20170811110637.jpg

微信图片_20170811110642.jpg



槽坑都是圆角过弯的,后期走管道电线可以更换,定管不定线,自创的“活线”技术安庆独一份!

这么圆角的折腾,师傅用了近一周的时间才完成开槽的工序。
微信图片_20170813113808.jpg \
微信图片_20170813113822.jpg

微信图片_20170813113830.jpg

微信图片_20170813113836.jpg
微信图片_20170815091253_副本.jpg

微信图片_20170817085531.jpg

微信图片_20170817085536.jpg

微信图片_20170817085542.jpg

微信图片_20170817085556.jpg




最后来一张“电锯狂人”镇楼
微信图片_20170811110701_副本.jpg

大热天的,确实辛苦!









回复 支持 反对

使用道具 举报

0

收听

1

听众

422

帖子

未认证商家

注册时间
2016-3-17
精华
0
发表于 2017-8-14 17:50:35 | 显示全部楼层
这两天温度下降了点,真是福音,师傅们施工起来也好过一点






汪工.品尚装饰
电话:15385562988
           0556-5200370
地址:绿地三期北大门口(欧尚超市背后)
回复 支持 反对

使用道具 举报

0

收听

2

听众

1189

帖子

E粉明星

注册时间
2008-7-1
精华
1
 楼主| 发表于 2017-8-19 16:29:01 | 显示全部楼层
本帖最后由 jwyk 于 2017-8-25 10:23 编辑

铺设水管
不管冷水热水管都使用加厚的伟新热水管铺设,热水管再用加以保温工艺包裹,师傅的手艺绝对严谨,让人放心。


才开始,先上几张图
微信图片_20170819162726.jpg

微信图片_20170819162740.jpg

微信图片_20170819162820.jpg

微信图片_20170819162825.jpg

微信图片_20170819162830.jpg

微信图片_20170819162835.jpg

8月下旬完成加压,一切顺利,汪总说他们从未失手,希望后面也一直是这样
微信图片_20170825100147.jpg

微信图片_20170825100206.jpg
回复 支持 反对

使用道具 举报

0

收听

2

听众

1189

帖子

E粉明星

注册时间
2008-7-1
精华
1
 楼主| 发表于 2017-8-21 11:07:43 | 显示全部楼层
本帖最后由 jwyk 于 2017-11-13 23:30 编辑

铺设电线
底盒开孔上锁母,所有接头带胶,以便后期穿线,其次防止进水。安庆没有一家做出来是活线,虽然都是横平竖直,但做出来的很多都是死线,后期万一电路出现任何问题都无法更换。这个就不一样了,随时更换电线。
微信图片_20170821105001_副本.jpg

微信图片_20170821104956.jpg

微信图片_20170821104942.jpg

微信图片_20170821104938.jpg

微信图片_20170821104951.jpg


接头带胶
微信图片_20170822221123.jpg

微信图片_20170822221134.jpg
微信图片_20170822221140.jpg

微信图片_20170822221145.jpg

微信图片_20170822221216.jpg

微信图片_20170822221221.jpg

微信图片_20170821104923.jpg




微信图片_20170821104919.jpg

红色是强电管,蓝色是弱电管,这些个密密麻麻的的管线密集恐惧人的人慎入。。。



微信图片_20170824082556.jpg
微信图片_20170824082606.jpg

微信图片_20170824082637.jpg

微信图片_20170824082643.jpg


在现场我还发现师傅自己给添了几个当时定位没考虑到的底座,比如水槽下面、镜柜上面,简直省心到家


开关插座的底座已经封上保护了




回复 支持 反对

使用道具 举报

0

收听

2

听众

1189

帖子

E粉明星

注册时间
2008-7-1
精华
1
 楼主| 发表于 2017-8-25 11:05:56 | 显示全部楼层
本帖最后由 jwyk 于 2017-8-25 11:13 编辑

封阳台

封阳台对于伪土著小资,是一个令人纠结的话题,看到网上辣么多漂漂的美丽的阳台照片,寻了五六家本地的著名商家后,我们只能感概,有钱人真TM不少。


看到我家二楼近3.7米的大阳台,如何最大的开合窗户+最小的超预算,赐我们一家店吧!

勤劳的人总是到最后才有好运气,在一个“明媚温暖”的夏午,我和LD扫街看门的时候,碰到了莱骐宋总的店,交通指挥中心旁湖心南路的西侧,偏偏我们是从反方向开始扫街的。。。。。


宋总家封阳台的确实花样不少,啥两轨的、三轨的、断桥的,各种厚度、各种特点,这些通通都没记住。

但是,重要的是,宋总在了解了我们家的大阳台尺寸之后,介绍了上海莱骐一款四轨封阳台,划重点了同学们:

厚度1.4,双玻四扇+金钢纱窗三扇,开合可以达到70%以上,又能兼顾防盗,LD很满意,价格也很美丽!

先来一张别人家的四轨实物图吧,期待我们家完工后的模样:
微信图片_20170825102355.jpg


以下各种花样,专供挑剔的处女座挑选:
微信图片_20170825101757.jpg

微信图片_20170825101811.jpg

微信图片_20170825101816.jpg

微信图片_20170825101825.jpg



回复 支持 反对

使用道具 举报

0

收听

2

听众

1189

帖子

E粉明星

注册时间
2008-7-1
精华
1
 楼主| 发表于 2017-9-8 15:29:04 | 显示全部楼层
本帖最后由 jwyk 于 2017-11-23 10:08 编辑

木工进场

装修不会有飞一般的速度,BUT人生会有飞一般的感觉,瓦工师傅家里有事要停个两周,为了减少影响整体进度,汪总安排了木工先插个队

辣么,三天过去了现场有亮点吗?答案是肯定的 ------ 一眼看去,楼上那家已经菊花朵朵开。。。。。

★龙骨

吊顶.jpg
铝合金龙骨.jpg
吊顶3.jpg

在安装客厅吊顶前要先安装风管机
风管机.jpg

今天11月13日,好消息是木工斯师傅完工了整个柜体的部分,80%的柜门是另外定制的,首长说只有实木的拉门才能更有效果。同志们,100%的都是拉门。于是这个整个装修中最费钱的工序,我个人也是觉得最有也是最有效率的部分,竟然是木工。斯师傅每周都要做礼拜,这么多的柜体+20%的柜门的部分实际工作不到两周。

★各种柜子配图清单:

1、主卧衣柜(配定制实木拉门)
主卧衣柜.jpg

2、衣帽间(配柜体同色非定制实木拉门)
图片漏照。。。


3、儿童房(配白色定制实木拉门)
①衣柜:
儿童房衣柜.jpg

②书桌+书柜(中腰空)
儿童房书桌.jpg


4、次卧(大杂烩)
感谢汪工的支持,这个下面的五门底柜是老妈家搬过来的全友板柜(红标的部分),而上面半截的顶柜是斯师傅另外给补的(蓝标的部分),这色差也可以说很接近了。

虽然是买了不到一年的品牌货,但是这种板柜实际是很脆皮的,拆运运输过程中我曾一度怀疑是否还拼的起来,不过结果很好,斯师傅完美的还原了整个柜子。

次卧的整体风格是差异最大的,整个房间完工后相当长一段时间也只有这面柜子,如果以后真的有二宝的话,希望他不要怪我们
次卧衣柜_副本.jpg


5、餐厅卡座(配白色定制实木拉门,中腰空)
开门入户的第一眼,超级期待它完工的样子
餐厅卡座.jpg


6、入户鞋柜(配白色定制实木拉门)+功能区
最右边换鞋的那个小板座十二年前我还是可以挤进去的,现在就。。。
入户鞋柜.jpg



7、过道橱柜(配白色定制实木拉门,中腰空)
照片太烂,回重拍
过道橱柜.jpg




8、客厅书柜(配白色定制实木拉门)
侧接鞋柜
客厅书柜.jpg




9、电视机墙造型+装饰柜
说实话,到现在我还不知道背景墙到底怎么处理好看,贴砖还是咋的
客厅电视背景墙.jpg



10、阳台柜(配柜体同色非定制实木拉门)
阳台柜.jpg


11、厨房橱柜(配浅咖实木定制实木拉门)
厨房橱柜1.jpg

厨房橱柜2.jpg
★花絮部分

封边                                 
封边.jpg      虽然不是百隆的,但有液压杆
   铰链.jpg

主卧吊顶
主卧吊顶.jpg

餐厅吊顶造型
餐厅吊顶.jpg

客厅吊顶
吊顶1.jpg















回复 支持 反对

使用道具 举报

0

收听

1

听众

422

帖子

未认证商家

注册时间
2016-3-17
精华
0
发表于 2017-9-9 11:50:01 | 显示全部楼层
哥,我来顶顶,很欣赏你的幽默!
回复 支持 反对

使用道具 举报

0

收听

2

听众

1189

帖子

E粉明星

注册时间
2008-7-1
精华
1
 楼主| 发表于 2017-9-30 09:55:31 | 显示全部楼层
本帖最后由 jwyk 于 2017-11-23 10:10 编辑

瓦工施工


最近事情比较多影响了更新的速度,瓦工的活其实没的多描述的,大伙拿眼睛看就知分晓。


厨房正墙和卫生间马桶背景墙费工的斜贴工艺,砖要提前加工,贴好后的吊线可以看出师傅的手艺赞不赞!

再统计一下各种砖的样式:
1、厨房墙砖(彩 30*30)-斜贴
2、厨房地砖+角(棕黄仿古 60*60)同客餐厅 -正贴
3、卫生间干区地砖(棕黄 30*30)-正贴
4、卫生间干区墙砖(棕黄 30*30)-正贴
5、卫生间干区腰线(棕黄 10*30)-正贴
6、卫生间湿区墙砖(淡蓝 30*30)-正贴
7、卫生间湿区地砖(淡蓝 30*30)-正贴
8、卫生间湿区马桶背景墙(波导线60*15+ 彩方 30*30-斜贴
9、餐厅地砖+角+波导线棕黄仿古 60*60  +波导线60*15 -正贴
10、客厅地砖+角+波导线(棕黄仿古 60*60 +波导线60*15 -正贴
11、客厅砖拼花地毯 棕黄仿古 60*60 +波导线60*15-斜贴
12、踢脚线瓷砖 (60*15
13、阳台地砖+墙砖(未定30*30)-正贴
14、过廊地砖+角(棕黄仿古 60*60 + 波导线60*15)同客餐厅 -正贴

抠抠手,一共有9种不同花色的砖....

在打这段字的时候,我仿佛能听到瓦工师傅和项目经理的“咆哮”,但是,没有相当的品控,哪个公司敢这么设计?!


同时也顺路吐槽一下另一家装饰公司,另一个60平的小户装了四个月了现在还不知道结束时间,全包有风险,找一个成天吹牛的装饰公司还不如找游击队,请擦亮眼睛,三思而定。


偶遇瓷砖胶送货过来:
微信图片_20170930102553.jpg

科普一下,只有瓷片在贴之前要泡水,瓷片大部分都是30×45和30×60的,我这一屋的都不是瓷片,跟地砖一样,上墙牢不牢全指望这瓷砖胶的质量了。

★各处墙砖地砖铺贴
厨房:
厨房2.jpg


厨房.jpg

厨房3.jpg

厨房4.jpg


阳台:
阳台.jpg
洗衣机柜那个面和地上回头补个照,这个是柜子后面的砖,看看就好。。。。


卫生间:
卫生1.jpg

卫生2.jpg
卫生6.jpg

卫生5.jpg



卫生7.jpg

卫生间砖.jpg
今天11月9日,瓦工方师傅已经在上周离场,那一块块拼花已经neng疯他了,每次见到他都要“疯狂的批评“我们的小苏设计师,为此我尽量就不去工地现场刺激他了。

终于,令人疯狂的瓷砖铺贴结束了,但是哥几个也太勤奋了,立马就把石膏板也铺上了,没图让说个啥?

翻遍手机找了一张客厅刚完工的样子,过道、餐厅也都是圈着波导线走的,先凑合看看吧。
客厅.jpg
★卫生间防水施工
手机抢救回一张当时拍的照片,没记错的话是泡了三天后验证的
卫生间防水.jpg

★关于卫生间干区和过道隔断
这个隔断原先的设计是做一个半椭圆形的假窗户,美式的诶,老美了,于是前期敲墙的时候,麻溜的就给干掉大半截了,干掉之后的样子如下图,我记得青年装饰的哪家弄过类似的效果,本来它应该是这个姿势的:
原计划.jpg

但是,现实是残酷的。我们对下面三种方案纠结了很久,究其原因还是qiong,看图说话:
initpintu_副本.jpg

Plan 1和3 区别就是要么是木工做或者是定踢脚线的成品,最终打败它们的是后期会不会把东西堆上架子的判断结果,而且出来的效果有点”不中不洋“的感觉。

最终定了Plan 2,因为我们要秀一下那个美美的1.6米长的双盆美浴柜。而那个小墩子,在后期还可以放个小鱼缸,放个小盆景之类的。

关于砖的总结,希望后来人要有心理准备,因为是斜贴,师傅都不会分块的去干,往往就是一面墙从底下一直起上去,那些赠送的什么柜子后面的免费砖就不要多想了,而装饰公司对这种工艺往往都是要另外加钱干的,瓷砖加工费要另算,实际铺贴的料废也多,这些都是实打实的支出。我们砖的实际费用跟原预算比增加了约25%,鱼和熊掌不能兼得,要效果就要舍得去浪。

★关于卫生间湿区的淋浴区的地面处理

看图说话,已经弄成这样了(同样是盖了石膏板,借一张图吧)
回水.png

纠结的过程是,为了石材防滑,要开纵横的过水槽,听说这玩意有点脏不好撸,而且掉了毛必须手动挡才能清理干净。

优点也粗暴,下水快,几乎不会存水,洗澡的过程中完全不用顾忌会有积水会泡你的脚丫子。

决定是否弄可以简单的用卫生承包制化解,那个决定要这个效果的人负责后期清理,当然也有被迫同意的。。。。

安装的过程,简直用折腾可以诠释,我们可能选了个假的石材供应商,来来回回他们返工了好几次,错的原因也很简单,尺寸不对。

比如:这玩意(挡水条)窄了,这玩意不窄的时候又短了...... ..
淋浴石材 问题2.jpg
吐槽一下:门槛石背面有断纹(再粘上),说是天然的石材无法避免。结账的时候收了两次160块钱的运费,求证是否被套路了。

★北阳台外墙砖
外墙砖_副本.jpg






回复 支持 反对

使用道具 举报

0

收听

2

听众

1189

帖子

E粉明星

注册时间
2008-7-1
精华
1
 楼主| 发表于 2017-11-23 09:45:09 | 显示全部楼层
本帖最后由 jwyk 于 2017-11-24 17:12 编辑

漆工进场

今天是11月23日,漆工何师傅进场约一周了,跟木工斯师傅一样,也是夫妻同上战场,汪总介绍说也是又快有好的典范人物。一周的确实进度也蛮喜人的,完全铲掉了原内墙基层,滚刷完了墙固(好黄的那个),满墙挂网防止后期开裂,板材接缝处黏贴牛皮纸,阴阳角处PVC角条保护,修补齐边上底层石膏找平,再接下来刷耐水腻子,基本完成了底层的平整工作,接下来就看老天爷可给力了,盼晴天了

辅料2.jpg

上周末去看到满墙的“针眼”,是不是为了方便铲啊?
过道.jpg

刷1.jpg

主卧:
主卧4.jpg

主卧3.jpg

主卧2.jpg

主卧顶.jpg

儿童房:
儿童房.jpg

次卧:
次卧.jpg

客厅:
电视背景墙.jpg

刷2.jpg

刷4.jpg

墙壁1.jpg

墙壁3.jpg

各处筒灯开孔已完成
墙顶3.jpg








回复 支持 反对

使用道具 举报

0

收听

2

听众

1189

帖子

E粉明星

注册时间
2008-7-1
精华
1
 楼主| 发表于 2018-1-23 15:49:10 | 显示全部楼层
本帖最后由 jwyk 于 2018-1-23 16:16 编辑

地板铺装

请不要介意我的懒,掐指一算,房子硬装已经完工一周了。年底了,大家都好忙,放点假都想咪一会,慢慢补吧。。。

地板没什么好讲的,是17年10月份定的, 安装是18年1月12日。------论持久战

  地板的选择也是简单暴力:
  一、品牌:
  A.老丈人十多年的安装的地板完美,口碑加分;
  B.这家的小导购小檀,电话太热心了,几乎是呼四我了,为了“鼓(制)励(止)”这种轰炸。

  所以我们决定,还是买久盛地板。

  二、选材:     A.四个房间,两个实木(主卧、儿童房),两个强化(次卧、衣帽间)。脚线用的久盛专用款,师傅是父子俩个,安装了两整天才结束。
   B.实木的挑了圆盘豆,强化的挑了最像圆盘豆的一款。。。   

   土豪可以全铺实木

微信图片_20180112100654.jpg

微信图片_20180112100633.jpg
微信图片_20180112100618.jpg
微信图片_20180112100707.jpg

“恰巧”保洁的阿姨也在(其实是汪总安排的),为了更BT一点,汪总亲自上阵,帮忙把铺地龙时产生的木屑,一行一行,一点一点的给干掉了。安装地板的师傅表示很不理解这种找虐的心态,但是真心感到一丝暖流,一个声音久久在我脑中回放:
“腰好一切都好...”

微信图片_20180123155733.jpg
微信图片_20180123155743.jpg
微信图片_20180123155714.jpg
微信图片_20180123155724.jpg
微信图片_20180123155753.jpg


微信图片_20180123155644.jpg

微信图片_20180123155704.jpg

微信图片_20180113113017.jpg
微信图片_20180113113028.jpg
微信图片_20180123160930.jpg

微信图片_20180123160940.jpg



下面是强化地板,请忽略图中17年618买的惠达智能马桶
微信图片_20180123155804.jpg


结束后,房间终于有了脱胎换骨的效果,为自己英明神武的决定赞一下。因为圆盘豆的木质很硬,以至于我踩上去后,恍惚的以为满铺了一种地板。。。。








回复 支持 反对

使用道具 举报

0

收听

2

听众

1189

帖子

E粉明星

注册时间
2008-7-1
精华
1
 楼主| 发表于 2018-1-23 16:35:41 | 显示全部楼层
美缝

     美缝的事情很巧,只是仅仅在电梯里,我们碰到一个拿着工具箱的师傅礼貌性的打了个招呼,可能是自来熟的属性发了疯吧。我们从5楼聊到1楼,确定了厨房门和美缝的安排。

    目前看,如果碰不到这哥们,我们可能要多付出30%的造价去完成这110平的美缝工程。最让人欣慰的是,这哥们推荐的山东妹子,缝合技术一流,干活的时候,让人放心。

   美缝效果图在我的朋友圈里获得了17年度第二的点赞量及N+1人的咨询,为了感谢她的鼎立支持,我觉得有必要分享给大家 :
   13955615602 马菇凉美缝团队

   另外楼主目前情绪稳定,我只是想先把好更新的给更新了,美缝的图片也可以看出,小美的风格已经变成大美了。。。


    微信图片_20180123162611.jpg

微信图片_20180123162600.jpg

微信图片_20180113113042.jpg

微信图片_20180123162313.jpg

微信图片_20180123162327.jpg

微信图片_20180123162340.jpg

微信图片_20180123162358.jpg

微信图片_20180123162409.jpg

微信图片_20180123162426.jpg

微信图片_20180123162439.jpg

微信图片_20180123162450.jpg
回复 支持 反对

使用道具 举报

6

收听

4

听众

563

帖子

E粉明星

注册时间
2014-12-4
精华
0
发表于 2018-1-23 19:00:01 | 显示全部楼层
本帖最后由 可怜小白兔 于 2018-1-23 19:01 编辑

美缝效果不错啊
情不知所起,而一往情深

恨不知所终,而纠结流离
回复 支持 反对

使用道具 举报

您需要登录后才可以回帖 登录 | 注册

本版积分规则

联系合作|手机版|手机APP|Archiver|

GMT+8, 2025-12-10 14:27 Powered by Discuz! X3.4

安庆E网生活网站 © 2001-2013 Comsenz Inc. ( 皖ICP备05012696号 )

QQ

安庆瑞易文化 地址:华茂1958-C7栋 联系电话:0556-5306667 联系邮箱:17779721@qq.com 互联网违法和不良信息举报电话和邮箱:0556-5306667 17779721@qq.com

皖公网安备 34080002000101号

    
快速回复 返回顶部 返回列表