安庆E网

搜索
查看: 89527|回复: 24

[样板间] 望江~望华西苑别墅效果表现

[复制链接]

1

收听

5

听众

228

帖子

未认证商家

注册时间
2015-9-13
精华
0
发表于 2017-9-20 10:02:47 | 显示全部楼层 |阅读模式
本帖最后由 何敏设计工作室 于 2017-9-20 15:48 编辑

望江~望华西苑别墅,胡总对家里的装修是非常的上心的,和我们接触到装修完成一直都是自己一手操办这样的好男人点个赞
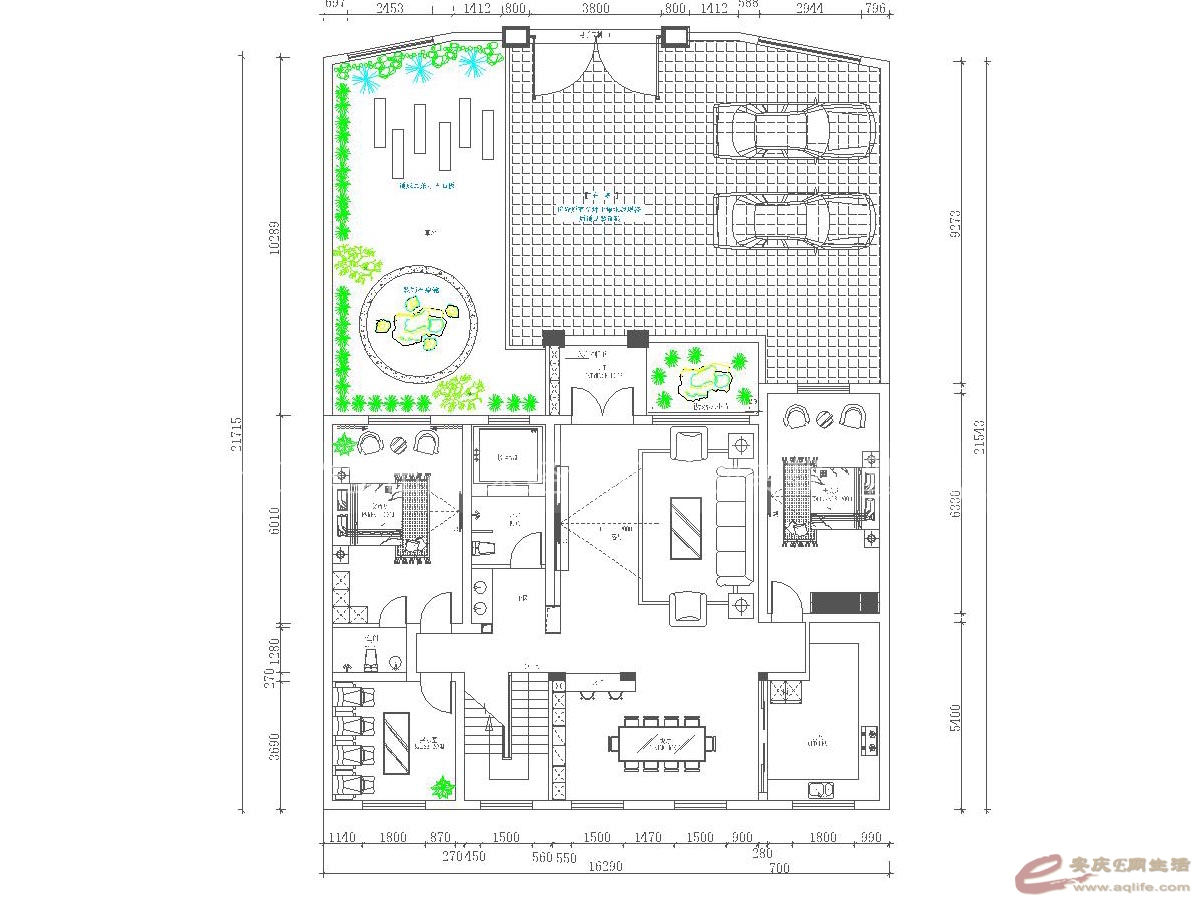
胡总家的房子改动还是非常大的!感谢胡总对我们的信任!因为胡总家里的人口对空间的需求是足够的,所以客厅采用的挑空的设计!楼梯和卫生间也进行的重新规划,原本的卫生间跟别墅的整体分布是非常不合理的,卫生间很小,这么大的别墅配个小小的卫生间也不像,现在的卫生间放在了原本的楼梯位置,楼梯放在了原本的卫生间位置,空间布局合理化!

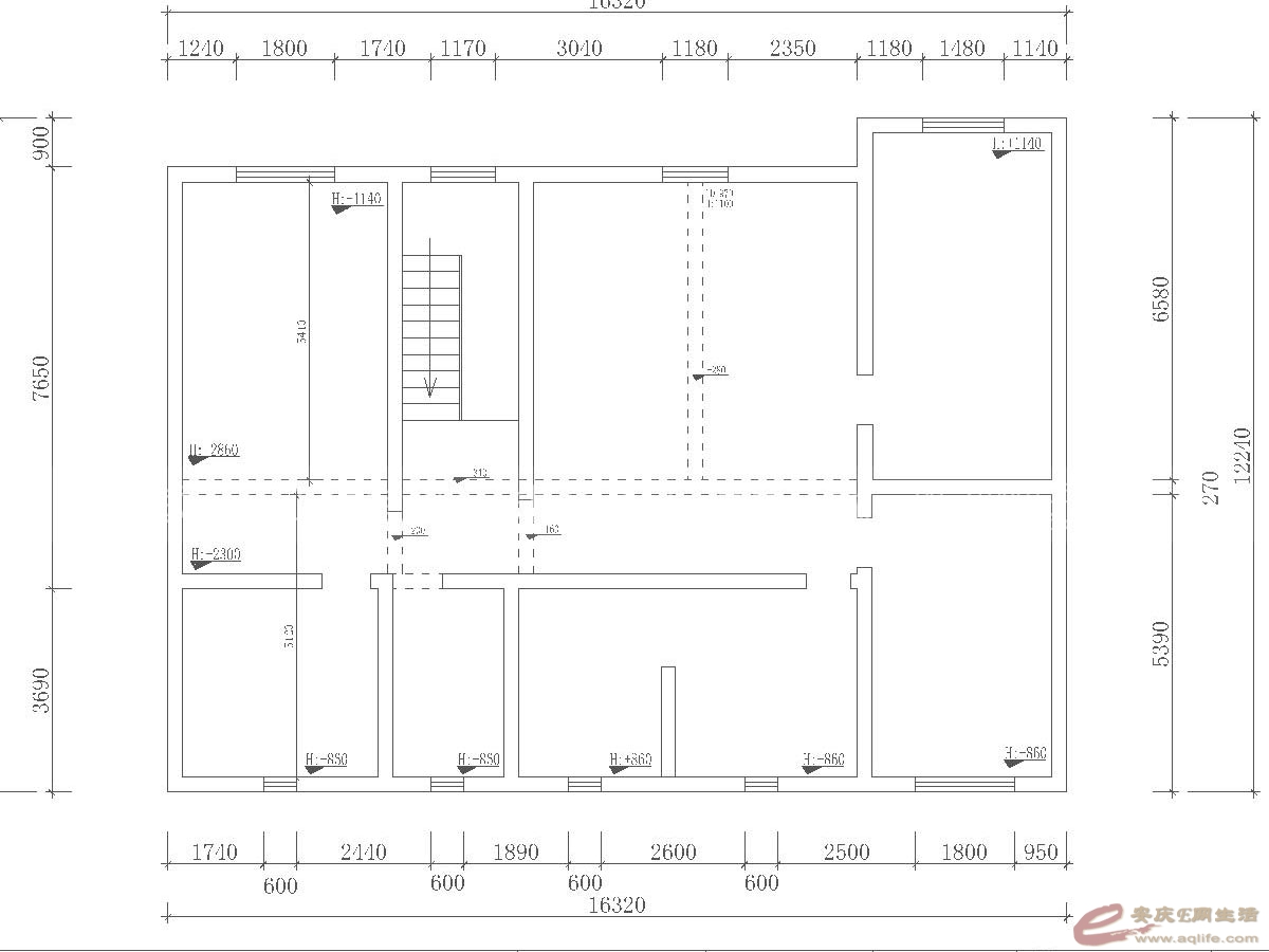
一楼原始图

一楼原始图

二楼原始图

二楼原始图

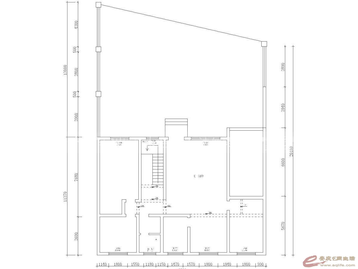
三楼原始图

三楼原始图

一楼平面布局图

一楼平面布局图

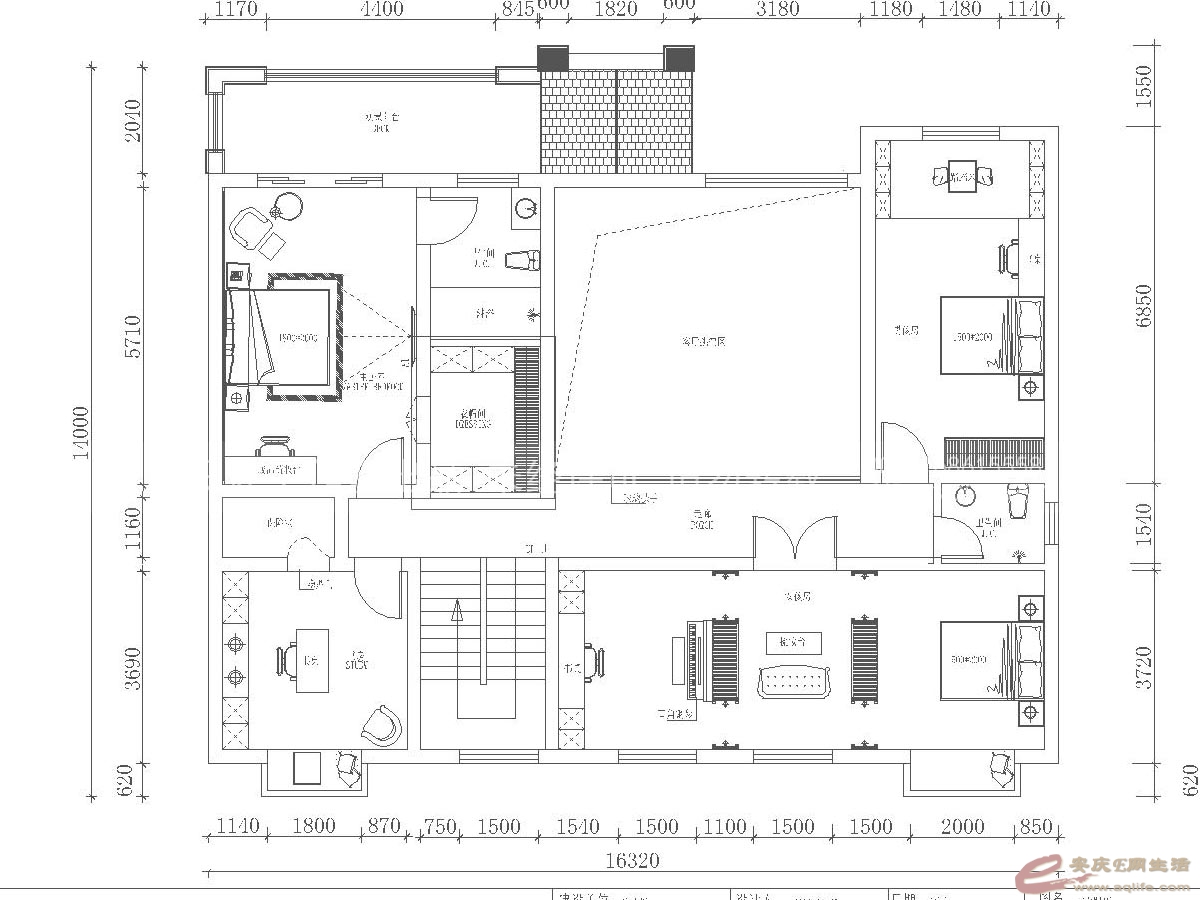
二楼平面布局图

二楼平面布局图

客厅背景墙

客厅背景墙

客厅沙发背景墙

客厅沙发背景墙

餐厅

餐厅

二楼俯视图

二楼俯视图

餐厅

餐厅

客厅

客厅

一楼卫生间干区

一楼卫生间干区

一楼楼梯间

一楼楼梯间

楼梯

楼梯

二楼过道

二楼过道

公主房

公主房

公主书房

公主书房

公主房

公主房

公主套房

公主套房

公主衣帽间

公主衣帽间

主卧室

主卧室

主卧室

主卧室

主卧室

主卧室

主卧室卫生间

主卧室卫生间

主卧室卫生间

主卧室卫生间
专业纯设计工作室:承接各种家装、工装的设计业务
地址:安庆华茂1958商业街B5#603室  电话:18055667977何工
何敏设计工作室
回复

使用道具 举报

1

收听

5

听众

228

帖子

未认证商家

注册时间
2015-9-13
精华
0
 楼主| 发表于 2017-9-23 15:38:25 | 显示全部楼层
专业纯设计工作室:承接各种家装、工装的设计业务
地址:安庆华茂1958商业街B5#603室  电话:18055667977何工
何敏设计工作室
回复

使用道具 举报

1

收听

5

听众

228

帖子

未认证商家

注册时间
2015-9-13
精华
0
 楼主| 发表于 2017-10-5 14:12:36 | 显示全部楼层
{:face_081:
专业纯设计工作室:承接各种家装、工装的设计业务
地址:安庆华茂1958商业街B5#603室  电话:18055667977何工
何敏设计工作室
回复 支持 反对

使用道具 举报

头像被屏蔽

0

收听

1

听众

30

帖子

禁止发言

注册时间
2017-10-10
精华
0
发表于 2017-10-10 14:50:46 | 显示全部楼层
提示: 作者被禁止或删除 内容自动屏蔽
回复 支持 反对

使用道具 举报

1

收听

5

听众

228

帖子

未认证商家

注册时间
2015-9-13
精华
0
 楼主| 发表于 2017-10-10 14:57:17 | 显示全部楼层

谢谢!
专业纯设计工作室:承接各种家装、工装的设计业务
地址:安庆华茂1958商业街B5#603室  电话:18055667977何工
何敏设计工作室
回复 支持 反对

使用道具 举报

0

收听

1

听众

30

帖子

E粉新人

注册时间
2017-10-10
精华
0
发表于 2017-10-11 10:02:42 | 显示全部楼层
我感觉卧室的抱枕太多了
回复 支持 反对

使用道具 举报

1

收听

5

听众

228

帖子

未认证商家

注册时间
2015-9-13
精华
0
 楼主| 发表于 2017-10-11 10:55:12 | 显示全部楼层
一个人旅游 发表于 2017-10-11 10:02
我感觉卧室的抱枕太多了

谢谢你的回复!这个是装饰效果,但是也会有几个的
专业纯设计工作室:承接各种家装、工装的设计业务
地址:安庆华茂1958商业街B5#603室  电话:18055667977何工
何敏设计工作室
回复 支持 反对

使用道具 举报

0

收听

1

听众

34

帖子

E粉新人

注册时间
2017-10-12
精华
0
QQ
发表于 2017-10-13 13:22:56 | 显示全部楼层
装饰行业是一个高同质化的行业,规范的装饰公司主材基本上都是品牌,施工上基本都能做到精工细作,设计上都会能满足客户的需求,最终还是价格,装饰公司的商业模式就很重要,是整合代理商资源还是厂家资源,整合厂家资源还是参股控股厂家,装饰公司一定要有互联网思维,不能从客户身上直接赚钱,要做到极致!
齐家典尚装饰安庆站
地址:菱湖南路御景国际2号楼4-1室、4-2室
电话:18755657616
回复 支持 反对

使用道具 举报

0

收听

1

听众

3

帖子

E粉新人

注册时间
2017-10-13
精华
0
发表于 2017-10-13 17:28:22 | 显示全部楼层
挺不错的
回复

使用道具 举报

1

收听

5

听众

228

帖子

未认证商家

注册时间
2015-9-13
精华
0
 楼主| 发表于 2017-10-14 14:41:17 | 显示全部楼层

谢谢你回复!你喜欢我很高兴!
专业纯设计工作室:承接各种家装、工装的设计业务
地址:安庆华茂1958商业街B5#603室  电话:18055667977何工
何敏设计工作室
回复 支持 反对

使用道具 举报

0

收听

1

听众

30

帖子

E粉新人

注册时间
2017-10-10
精华
0
发表于 2017-10-16 09:23:12 | 显示全部楼层
何敏设计工作室 发表于 2017-10-14 14:41
谢谢你回复!你喜欢我很高兴!

设计确实好看,很吸引眼球,和五星级酒店似的.
回复 支持 反对

使用道具 举报

1

收听

5

听众

228

帖子

未认证商家

注册时间
2015-9-13
精华
0
 楼主| 发表于 2017-10-17 14:24:25 | 显示全部楼层
一个人旅游 发表于 2017-10-16 09:23
设计确实好看,很吸引眼球,和五星级酒店似的.

感谢你的回复!客户满意就是对我们最大的肯定!
专业纯设计工作室:承接各种家装、工装的设计业务
地址:安庆华茂1958商业街B5#603室  电话:18055667977何工
何敏设计工作室
回复 支持 反对

使用道具 举报

1

收听

5

听众

228

帖子

未认证商家

注册时间
2015-9-13
精华
0
 楼主| 发表于 2017-10-28 15:09:26 | 显示全部楼层
专业纯设计工作室:承接各种家装、工装的设计业务
地址:安庆华茂1958商业街B5#603室  电话:18055667977何工
何敏设计工作室
回复

使用道具 举报

头像被屏蔽

0

收听

1

听众

137

帖子

禁止发言

注册时间
2017-8-30
精华
0
发表于 2017-10-29 22:04:56 www.aqlife.com | 显示全部楼层
提示: 作者被禁止或删除 内容自动屏蔽
回复 支持 反对

使用道具 举报

1

收听

5

听众

228

帖子

未认证商家

注册时间
2015-9-13
精华
0
 楼主| 发表于 2017-10-30 14:21:26 | 显示全部楼层

谢谢!!!
专业纯设计工作室:承接各种家装、工装的设计业务
地址:安庆华茂1958商业街B5#603室  电话:18055667977何工
何敏设计工作室
回复 支持 反对

使用道具 举报

1

收听

5

听众

228

帖子

未认证商家

注册时间
2015-9-13
精华
0
 楼主| 发表于 2017-11-6 14:33:09 | 显示全部楼层
专业纯设计工作室:承接各种家装、工装的设计业务
地址:安庆华茂1958商业街B5#603室  电话:18055667977何工
何敏设计工作室
回复

使用道具 举报

1

收听

5

听众

228

帖子

未认证商家

注册时间
2015-9-13
精华
0
 楼主| 发表于 2017-11-14 15:00:17 | 显示全部楼层
专业纯设计工作室:承接各种家装、工装的设计业务
地址:安庆华茂1958商业街B5#603室  电话:18055667977何工
何敏设计工作室
回复

使用道具 举报

0

收听

1

听众

3

帖子

E粉新人

注册时间
2017-9-21
精华
0
发表于 2017-11-27 09:30:35 | 显示全部楼层
望华西苑的别墅不错,设计也是高大上,一百个赞
来斯奥集成墙顶安庆运营中心
地址:光彩四期建材新城E区8栋27-29号
电话:0556-5030788  15391919090
回复 支持 反对

使用道具 举报

1

收听

5

听众

228

帖子

未认证商家

注册时间
2015-9-13
精华
0
 楼主| 发表于 2017-11-27 14:30:40 | 显示全部楼层
来斯奥集成墙顶 发表于 2017-11-27 09:30
望华西苑的别墅不错,设计也是高大上,一百个赞

谢谢你的评价
专业纯设计工作室:承接各种家装、工装的设计业务
地址:安庆华茂1958商业街B5#603室  电话:18055667977何工
何敏设计工作室
回复 支持 反对

使用道具 举报

1

收听

5

听众

228

帖子

未认证商家

注册时间
2015-9-13
精华
0
 楼主| 发表于 2017-12-13 15:00:23 | 显示全部楼层
专业纯设计工作室:承接各种家装、工装的设计业务
地址:安庆华茂1958商业街B5#603室  电话:18055667977何工
何敏设计工作室
回复

使用道具 举报

1

收听

5

听众

228

帖子

未认证商家

注册时间
2015-9-13
精华
0
 楼主| 发表于 2018-1-2 14:40:34 | 显示全部楼层
专业纯设计工作室:承接各种家装、工装的设计业务
地址:安庆华茂1958商业街B5#603室  电话:18055667977何工
何敏设计工作室
回复

使用道具 举报

1

收听

5

听众

228

帖子

未认证商家

注册时间
2015-9-13
精华
0
 楼主| 发表于 2018-1-18 14:31:50 | 显示全部楼层
专业纯设计工作室:承接各种家装、工装的设计业务
地址:安庆华茂1958商业街B5#603室  电话:18055667977何工
何敏设计工作室
回复

使用道具 举报

1

收听

5

听众

228

帖子

未认证商家

注册时间
2015-9-13
精华
0
 楼主| 发表于 2018-2-23 15:53:11 | 显示全部楼层
祝大家新年好!2018狗年旺旺旺!红红火火发大财!
专业纯设计工作室:承接各种家装、工装的设计业务
地址:安庆华茂1958商业街B5#603室  电话:18055667977何工
何敏设计工作室
回复 支持 反对

使用道具 举报

1

收听

5

听众

228

帖子

未认证商家

注册时间
2015-9-13
精华
0
 楼主| 发表于 2018-3-21 10:29:43 | 显示全部楼层
专业纯设计工作室:承接各种家装、工装的设计业务
地址:安庆华茂1958商业街B5#603室  电话:18055667977何工
何敏设计工作室
回复

使用道具 举报

1

收听

5

听众

228

帖子

未认证商家

注册时间
2015-9-13
精华
0
 楼主| 发表于 2018-4-27 10:06:30 | 显示全部楼层
专业纯设计工作室:承接各种家装、工装的设计业务
地址:安庆华茂1958商业街B5#603室  电话:18055667977何工
何敏设计工作室
回复

使用道具 举报

您需要登录后才可以回帖 登录 | 注册

本版积分规则

联系合作|手机版|手机APP|Archiver|

GMT+8, 2025-12-10 16:39 Powered by Discuz! X3.4

安庆E网生活网站 © 2001-2013 Comsenz Inc. ( 皖ICP备05012696号 )

QQ

安庆瑞易文化 地址:华茂1958-C7栋 联系电话:0556-5306667 联系邮箱:17779721@qq.com 互联网违法和不良信息举报电话和邮箱:0556-5306667 17779721@qq.com

皖公网安备 34080002000101号

    
快速回复 返回顶部 返回列表