安庆E网

搜索
楼主: 可怜小白兔

[装修日记] 学府花园爱的小窝装修记--毕业啦!

  [复制链接]

6

收听

4

听众

563

帖子

E粉明星

注册时间
2014-12-4
精华
0
 楼主| 发表于 2017-12-14 18:26:56 www.aqlife.com | 显示全部楼层
丢弃的铅笔头 发表于 2017-12-14 16:45
244644072        1#402   ,已加 不知道有没有回应,你也可以把 我拉进去,你家好像就是我那栋楼后面

嗯,那应该就是在后面,欢迎来玩
情不知所起,而一往情深

恨不知所终,而纠结流离
回复 支持 反对

使用道具 举报

0

收听

1

听众

40

帖子

E粉新星

注册时间
2011-1-26
精华
0
发表于 2017-12-18 16:34:39 | 显示全部楼层
回头去你家看看效果,感觉还行
回复 支持 反对

使用道具 举报

1

收听

9

听众

5117

帖子

E粉明星

注册时间
2009-11-24
精华
0

室内装饰设计QQ243160571

QQ
发表于 2017-12-23 14:16:37 | 显示全部楼层
过来顶顶
东盛装饰  您身边的装修专家!
地址:光彩四期烩街公寓6楼(光彩大舞台隔壁)
电话:13625565176   5200845
回复

使用道具 举报

0

收听

2

听众

145

帖子

E粉明星

注册时间
2017-2-19
精华
0
发表于 2017-12-26 00:16:45 | 显示全部楼层
家里有事几个月没来E网  一来就见到LZ圈我了
有地下室有院子  好棒啊
拜拜,满是蠢货与猥琐蝻的令人恶心的e网。
回复 支持 1 反对 0

使用道具 举报

6

收听

4

听众

563

帖子

E粉明星

注册时间
2014-12-4
精华
0
 楼主| 发表于 2017-12-26 16:36:45 | 显示全部楼层
包包家的面面 发表于 2017-12-26 00:16
家里有事几个月没来E网  一来就见到LZ圈我了
有地下室有院子  好棒啊

就是看了院子才买的,喜欢种些小植物
情不知所起,而一往情深

恨不知所终,而纠结流离
回复 支持 反对

使用道具 举报

6

收听

4

听众

563

帖子

E粉明星

注册时间
2014-12-4
精华
0
 楼主| 发表于 2017-12-28 16:50:13 | 显示全部楼层
      最近太忙再加上房子墙体在干燥,抽空去市场转了转没看到心仪的材料,可能是因为不急吧,所以慢慢看。      在光彩四期路过百佳五金时偶然间想起碧桂园兄在他家买过五金件,所以兴趣来了也就进去看看。店堂气派,主卖顶固五金和固特,转了几圈看到地漏和止逆阀时,一下子让加长地漏给吸引了,价格也高啊,回家商量商量定哪款,这款加长的真心让人心水啊!纯铜复古,质感自不必多说,就是价格让人流汗,找老板娘磨磨看,留下照片做记号
微信图片_20171228161758.jpg

要是加长款买不起就搞下面这款方形的做备胎吧
微信图片_20171228161751.jpg


情不知所起,而一往情深

恨不知所终,而纠结流离
回复 支持 反对

使用道具 举报

6

收听

4

听众

563

帖子

E粉明星

注册时间
2014-12-4
精华
0
 楼主| 发表于 2018-1-17 22:52:56 www.aqlife.com | 显示全部楼层
年底太忙,老公更是没空管装修,加上墙体太多就放着让它彻底干燥,自我安慰好饭不怕晚(*︶*)..:*~~~汪设计师说没问题,让我如果有空就看材料,年后就要陆续进场。好嘞!心里有数
情不知所起,而一往情深

恨不知所终,而纠结流离
回复 支持 反对

使用道具 举报

6

收听

4

听众

563

帖子

E粉明星

注册时间
2014-12-4
精华
0
 楼主| 发表于 2018-2-26 21:04:45 | 显示全部楼层
本帖最后由 可怜小白兔 于 2018-2-26 21:10 编辑

      年过完了,该出来干活啦!
   
   昨天瓦工已经入场了,由于临时有事就没过去看,交由徐总安排了,相信他。 今天上午抽空溜过去一眼,地面用的装修渣子夯实了,钢筋扎好了等着瓜子片砂浆现浇呢,看着满满的期待啊,到了下午再去时,已经收工了,光这素素的水泥面都觉得美美的(以前咋不觉得水泥面美呢?)哈哈!!!

原本以为就简单的用水泥石子就可以了,过来看了发现里面加了钢筋网,确实扎实很多,妥妥的

IMG_20180226_173906.jpg    IMG_20180226_173858.jpg

拆墙时多余的渣子也派上了用场,废物利用得当,成了用来夯实地面的好材料
4f9fd91c69807c07.jpg    33a98c22bbe0ab0e.jpg
胡师傅的背影
5c294da958bc50af.jpg

下午来时,地面已经震动压光好了,真心平整啊,以后在这块地面晒干货是没问题了
-43f4c94cce81101d.jpg   
IMG_20180226_173541.jpg




情不知所起,而一往情深

恨不知所终,而纠结流离
回复 支持 反对

使用道具 举报

6

收听

4

听众

563

帖子

E粉明星

注册时间
2014-12-4
精华
0
 楼主| 发表于 2018-2-26 21:18:09 | 显示全部楼层
本帖最后由 可怜小白兔 于 2018-2-26 21:24 编辑

      院子的设计又有了变化,要加个鱼池!没错,就是鱼池!缘于老公的爱好,一次无意中上网看到网友家的梦幻鱼池立马浮想联翩,想在自己家的小院子内倒腾一个心爱的鱼池。看在他对于装修没啥反对意见且全权交由我来做主的份上,我忍痛答应了。然后立马把想法告诉了徐工,交由徐工设计。这不,鱼池的方案也出来了,就等挖地的师傅过完正月上门开挖了,然后就是多余的银子得花掉,痛啊!

以下就是草图,还得添加水循环,感觉复杂的很,这事就让老公和徐工商量了,女孩子不喜欢讨论这些

QQ图片20180226211823副本.jpg

点评

鱼池也好哇,还可以养水生植物  发表于 2018-2-27 16:58
情不知所起,而一往情深

恨不知所终,而纠结流离
回复 支持 反对

使用道具 举报

6

收听

4

听众

563

帖子

E粉明星

注册时间
2014-12-4
精华
0
 楼主| 发表于 2018-2-26 21:27:17 | 显示全部楼层
本帖最后由 可怜小白兔 于 2018-2-26 22:15 编辑

此为吐槽帖!

所以说装修这事必须得速战速决啊,年底没做水电就生出个鱼池,真心无语啊!


开始听到要做个鱼池我是抵制的,反感的!  但经过一番软磨硬泡我就动摇了,唉!女人就是耳根子软啊!只是可惜了我的土地,少种多少花儿和菜呀!







情不知所起,而一往情深

恨不知所终,而纠结流离
回复 支持 反对

使用道具 举报

1

收听

9

听众

5117

帖子

E粉明星

注册时间
2009-11-24
精华
0

室内装饰设计QQ243160571

QQ
发表于 2018-2-27 17:03:19 | 显示全部楼层
可怜小白兔 发表于 2018-2-26 21:27
此为吐槽帖!

所以说装修这事必须得速战速决啊,年底没做水电就生出个鱼池,真心无语啊!

东盛装饰  您身边的装修专家!
地址:光彩四期烩街公寓6楼(光彩大舞台隔壁)
电话:13625565176   5200845
回复 支持 反对

使用道具 举报

6

收听

4

听众

563

帖子

E粉明星

注册时间
2014-12-4
精华
0
 楼主| 发表于 2018-3-1 21:39:48 | 显示全部楼层
本帖最后由 可怜小白兔 于 2018-3-2 18:15 编辑

今天为小院子开了个门,方便以后的进出,家里老人小孩子以后可以直接从南门进入,搬家具啥的也会大大的方便很多,最近天气又开始作妖了,只好暂停院子内的工作,等天气好转再继续啦

为了节省成本直接在原栅栏上切割然后找的电焊工花了三四个小时搞好的,然后表面重新做了漆,实际只需要两个小时,和物业沟通两个小时(省去一万字吧),总算是搞定了。小区开门的不少,做的漂亮的我家算一个
QQ图片20180302180950.jpg
情不知所起,而一往情深

恨不知所终,而纠结流离
回复 支持 反对

使用道具 举报

6

收听

4

听众

563

帖子

E粉明星

注册时间
2014-12-4
精华
0
 楼主| 发表于 2018-3-8 16:31:45 | 显示全部楼层
本帖最后由 可怜小白兔 于 2018-3-9 22:28 编辑

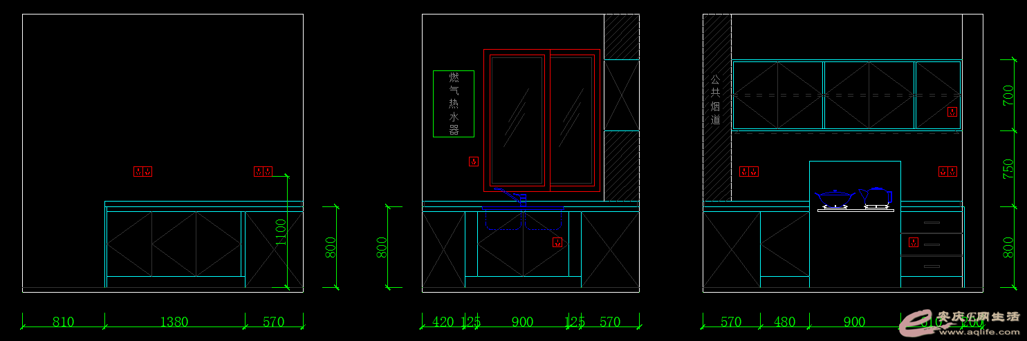
      水电开始定位了,回路分的很明确,所有空调独立回路,然后各房间厨卫空间独立回路,空调和厨房均用4.0的线,卧室插座类的2.5的也够了,厨房预留了前置过滤和净水位置,因为用的集成灶,橱柜又想手工做,橱柜图纸就委托汪设计师规划设计了,满足功能上的需求,挺人性化,回头附上图纸。这些都按常规的走,就是阳台我的小吧台以后也是家人经常玩电脑的位置,网络和电源个数都是足足的。

接下来就是开槽了,若是全按本姑娘这憨性格装修估计能搞一年,还是快快的动起来,避免家人唠叨没动静


橱柜图纸,大体就是这么个意思

QQ图片20180309222526.png

QQ图片20180309222542.png

情不知所起,而一往情深

恨不知所终,而纠结流离
回复 支持 反对

使用道具 举报

6

收听

4

听众

563

帖子

E粉明星

注册时间
2014-12-4
精华
0
 楼主| 发表于 2018-3-8 16:41:53 | 显示全部楼层
本帖最后由 可怜小白兔 于 2018-3-8 16:56 编辑

       前几天去巧夫人橱柜店转了转,看中了一款店里主推的集成灶,因为现住的房子用的是分体油烟机,实在是受不了油烟的困扰,家里的顶子上,墙砖上都是油,经常擦也没用。这次装修就彻底换成集成灶吧,跟着潮流走~~ 然后大胆的不吸集成吊顶了,用些木质结构的装饰做顶子,希望最后会美美哒~!

以下就是集成灶的靓照,看着还比较喜欢

微信图片_20180308165231.jpg
情不知所起,而一往情深

恨不知所终,而纠结流离
回复 支持 反对

使用道具 举报

6

收听

4

听众

563

帖子

E粉明星

注册时间
2014-12-4
精华
0
 楼主| 发表于 2018-3-8 17:06:27 | 显示全部楼层
本帖最后由 可怜小白兔 于 2018-3-8 17:38 编辑

       说说橱柜吧,由于对环保的重视,目前市场上的柜体我都研究过了,无非是颗粒板、密度板、多层实木板。因为都是用胶比较多的板材我还是内心很排斥的,虽然都长的很漂亮。然后来东盛这边也是因为看到用的是水性科天的板材让我心动不已,遂决定家里所有的柜体全用它了!哈哈哈~
      不过前几天在装修公司定水电方案时据说科天不在安庆做了,好在汪设计师囤了些板子,真为我们考虑的很周到啊,过了这村没那店的感觉。言归正传,手工做柜体,再配上质量较好的铰链还有柜门,门板想做铝合金的,因为水火不怕的,而且不会变形,环保无毒。我觉得我已经考虑的够到位的,就等东盛的帮我实现了,加油!

比较喜欢的台面石,到时候二选一

微信图片_20180308171211.jpg


这就是铝合金门板啦,材质是相当的好,衣柜门也会用这种的
阿里旺旺图片20180308171238.jpg


喜欢的拉手,喜欢仿古磨砂面的,除了能接受地砖是反光的,一切材质最好都不要反光

微信图片_20180308173442.png

微信图片_20180308173325.png


情不知所起,而一往情深

恨不知所终,而纠结流离
回复 支持 反对

使用道具 举报

6

收听

4

听众

563

帖子

E粉明星

注册时间
2014-12-4
精华
0
 楼主| 发表于 2018-3-8 17:21:48 | 显示全部楼层
对于用材和设计,多听听设计师的再自己斟酌好,装修实际是花钱又费精力的事,专业的事交由专业的人做相对来说要轻松很多,沟通也很重要,希望以上建议对装友有帮助
情不知所起,而一往情深

恨不知所终,而纠结流离
回复 支持 反对

使用道具 举报

0

收听

1

听众

573

帖子

未认证商家

注册时间
2013-7-14
精华
0
QQ
发表于 2018-3-8 17:29:57 | 显示全部楼层
2.jpg
安庆馨福家装饰【爱ta就给ta.馨福家】-全裸透明家装倡导者
地址:宜秀区迎宾东路文苑路神墩家居A馆一楼装乐汇
手机微信:139-6660-5185    监督电话:0556-5533123
回复 支持 反对

使用道具 举报

6

收听

4

听众

563

帖子

E粉明星

注册时间
2014-12-4
精华
0
 楼主| 发表于 2018-3-12 17:56:38 | 显示全部楼层
去年栽在院子里的牡丹王和后来栽的几株草莓因为占了鱼池的空间,让老公给挪窝了,为了自己喜欢的鱼池平时不会干活的老公也会帮着做点事了 开槽还在排队才轮上我家,百无聊赖之际给牡丹王拍个照吧,新芽已经出来了,生机勃勃,草莓的叶子也嫩绿嫩绿的
微信图片_20180312175253.jpg

微信图片_20180312175300.jpg
情不知所起,而一往情深

恨不知所终,而纠结流离
回复 支持 反对

使用道具 举报

6

收听

4

听众

563

帖子

E粉明星

注册时间
2014-12-4
精华
0
 楼主| 发表于 2018-3-14 09:55:04 | 显示全部楼层
昨天天气很好,把小院子里的鱼池挖出个雏形,没想到小小的地方挖出几十袋的泥土,下面就是现场实拍的图片
60来公分的深度,到时候还要现浇池子底层,估计最后也就50来公分的深度了。
IMG_20180314_082209.jpg

这个小角落是做过滤池的
IMG_20180314_082229.jpg

原来开发商建房就有这么个鸡肋处,说是为了地下室采光,这下刚好综合利用,做了深水池
IMG_20180314_082219.jpg

点评

楼主是个懂得生活的好手,期望毕业照。  发表于 2018-3-17 11:52
情不知所起,而一往情深

恨不知所终,而纠结流离
回复 支持 反对

使用道具 举报

1

收听

1

听众

40

帖子

E粉新人

注册时间
2018-3-16
精华
0
发表于 2018-3-17 11:42:54 | 显示全部楼层
做鱼池不会对家里的墙壁有渗水吗
回复 支持 反对

使用道具 举报

6

收听

4

听众

563

帖子

E粉明星

注册时间
2014-12-4
精华
0
 楼主| 发表于 2018-3-18 09:33:13 | 显示全部楼层
心安便是归处 发表于 2018-3-17 11:42
做鱼池不会对家里的墙壁有渗水吗

原先开发商做的这个小天井一直有水,地下室的墙壁都是干燥的,这次做成深水池,防水还是会做的,问题不大。而且一楼是挑高的不用担心家里会潮湿 ,我也是思虑万全才同意让他们弄
情不知所起,而一往情深

恨不知所终,而纠结流离
回复 支持 反对

使用道具 举报

6

收听

4

听众

563

帖子

E粉明星

注册时间
2014-12-4
精华
0
 楼主| 发表于 2018-3-22 09:25:06 | 显示全部楼层
本帖最后由 可怜小白兔 于 2018-3-22 11:50 编辑

   早上溜出半小时去房子里看看,水电进入收尾了,冷热水管用加厚保温棉,电路的回路和线径按规范来的,而且回路分的细且人性化,不错!

IMG_20180322_083524.jpg    IMG_20180322_083552.jpg    IMG_20180322_083621.jpg

这个是给前置过滤预留的位置
   IMG_20180322_083633.jpg

强弱电的回路,不少人纠结于线径粗细却忽略了回路,回路和线径同样重要,东盛家以往装友的装修日记我都看过,这些细节也是让我心动的原因之一。
IMG_20180322_083657.jpg    IMG_20180322_083719.jpg    IMG_20180322_083751.jpg
厨房因为不做吊顶,到时候这些线管全刷上颜色,哇哈哈!
IMG_20180322_083810.jpg
情不知所起,而一往情深

恨不知所终,而纠结流离
回复 支持 反对

使用道具 举报

6

收听

4

听众

563

帖子

E粉明星

注册时间
2014-12-4
精华
0
 楼主| 发表于 2018-3-22 09:30:54 | 显示全部楼层
本帖最后由 可怜小白兔 于 2018-3-22 09:32 编辑

提前运来的板材,看到板材真面目了,很爽的感觉
板材和地板是甲醛释放最多的材料了,所以要为了环保要控制污染的源头,看看为啥看上这板子吧

一,相比其它免漆板环保标准最高。二,杉木芯 足18mm厚,看看年轮就知道了,很清晰。
IMG_20180322_083932.jpg

IMG_20180322_083940.jpg

IMG_20180322_083952.jpg

IMG_20180322_084005.jpg

颜色浅,适合我这一楼采光不好的空间
IMG_20180322_084012.jpg



情不知所起,而一往情深

恨不知所终,而纠结流离
回复 支持 反对

使用道具 举报

6

收听

4

听众

563

帖子

E粉明星

注册时间
2014-12-4
精华
0
 楼主| 发表于 2018-3-22 10:39:03 | 显示全部楼层
鱼池下挖准备预埋管道了,越是临近越是期待啊

IMG_20180322_084047.jpg

草莓开始开花挂果,装修好以后估计就能吃了吧
IMG_20180322_083452.jpg

IMG_20180322_083442.jpg



情不知所起,而一往情深

恨不知所终,而纠结流离
回复 支持 反对

使用道具 举报

6

收听

4

听众

563

帖子

E粉明星

注册时间
2014-12-4
精华
0
 楼主| 发表于 2018-3-22 11:57:42 | 显示全部楼层
本帖最后由 可怜小白兔 于 2018-3-22 11:59 编辑

题外说说东盛

    好的装修公司先要看材料和工艺,还要看他们给你所使用的辅料,从头到尾的把控质量和环保的才是让人放心的。这点从多次和汪设计师沟通中发现,对好材料的苛刻让我彻底的沦陷啊,她说在他们所管的工地上是不会出现密度板,颗粒板和杂牌胶等有污染的材料。都这样说了彻底服了U,没签定合时看过他们几家正在施工的房子,确实如此,可以简装但不可盲目乱用杂七杂八的污染材料以及工艺。所以小伙伴们装修虽然麻烦,但也要擦亮双眼,尽量选安全放心的材料和工艺来筑小窝吧

情不知所起,而一往情深

恨不知所终,而纠结流离
回复 支持 反对

使用道具 举报

您需要登录后才可以回帖 登录 | 注册

本版积分规则

联系合作|手机版|手机APP|Archiver|

GMT+8, 2025-12-10 20:51 Powered by Discuz! X3.4

安庆E网生活网站 © 2001-2013 Comsenz Inc. ( 皖ICP备05012696号 )

QQ

安庆瑞易文化 地址:华茂1958-C7栋 联系电话:0556-5306667 联系邮箱:17779721@qq.com 互联网违法和不良信息举报电话和邮箱:0556-5306667 17779721@qq.com

皖公网安备 34080002000101号

    
快速回复 返回顶部 返回列表