安庆E网

搜索
查看: 7934|回复: 18

[设计交流] 【持久更新】永安公馆装修日记,精彩直播

[复制链接]

0

收听

1

听众

29

帖子

E粉新人

注册时间
2018-7-20
精华
0
发表于 2018-7-20 11:36:48 | 显示全部楼层 |阅读模式
本帖最后由 易随飞 于 2018-7-27 15:02 编辑

     先简单说下咱家公司吧,咱家在天柱山东路这边,规模算的话,应该算咱大安庆最大的一家装修公司吧。拥有4000平16套实景样板间可以参观哦,各种风格都有,欢迎参观。预约参观热线:0556-5202086。这个房子是咱们公司近期新开工的工地,业主喜欢咱们公司拉丁美风样板间。好了, 废话不多说,直接上户型啦,

      小区:永安公馆      

      面积:126㎡

      户型 :三室两厅

      喜欢样板间:拉丁美风

      装修公司:喜鹊家豪装工厂店安庆店。

更多精彩内容可点击:http://anqing.xqjgcd.com/(喜鹊家官网)进行查看哦~喜鹊家豪装工厂店等待您的光临!
回复

使用道具 举报

0

收听

1

听众

29

帖子

E粉新人

注册时间
2018-7-20
精华
0
 楼主| 发表于 2018-7-20 11:46:48 | 显示全部楼层
本帖最后由 喜鹊家 于 2018-7-26 11:17 编辑

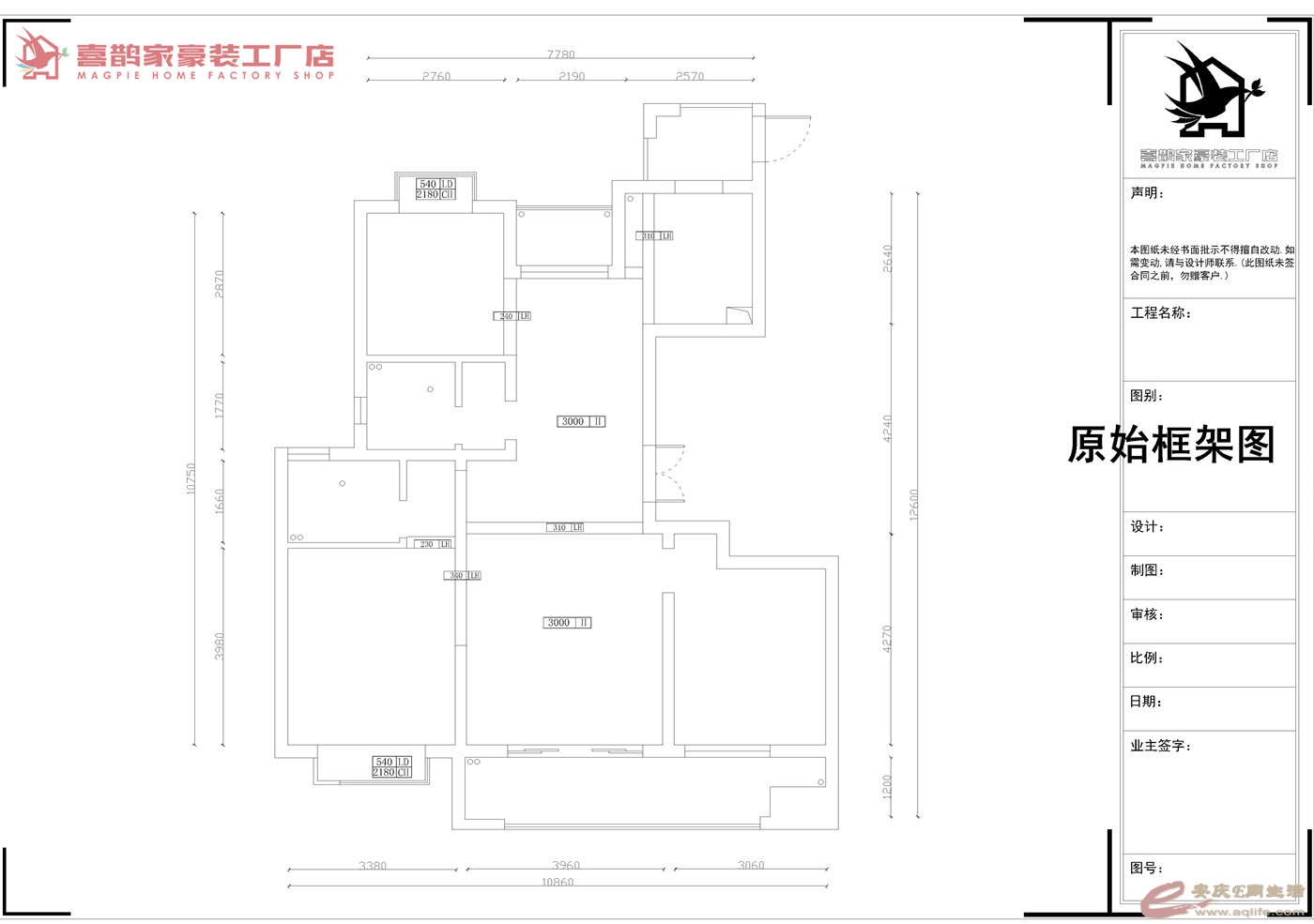
原始框架图在这里:
原始布置图.jpg





回复 支持 反对

使用道具 举报

0

收听

1

听众

29

帖子

E粉新人

注册时间
2018-7-20
精华
0
 楼主| 发表于 2018-7-20 11:48:45 | 显示全部楼层
本帖最后由 喜鹊家 于 2018-7-26 11:32 编辑

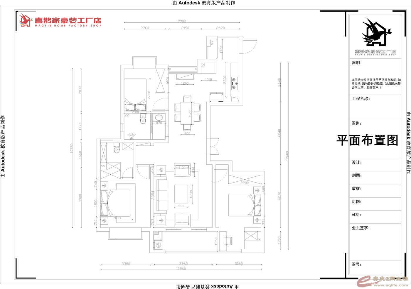
设计师做的平面布置图在这里: 平面布置.jpg
回复 支持 反对

使用道具 举报

0

收听

1

听众

29

帖子

E粉新人

注册时间
2018-7-20
精华
0
 楼主| 发表于 2018-7-20 13:42:40 | 显示全部楼层
本帖最后由 喜鹊家 于 2018-7-26 11:55 编辑

我们喜鹊家设计师做出来的效果图(我觉得超赞!)
1.jpg 2.jpg
3.jpg 4.jpg
5.jpg 6.jpg
回复 支持 反对

使用道具 举报

0

收听

1

听众

29

帖子

E粉新人

注册时间
2018-7-20
精华
0
 楼主| 发表于 2018-7-25 17:48:40 | 显示全部楼层
本帖最后由 喜鹊家 于 2018-7-26 16:29 编辑

我们正式开工啦!开业大吉!业主的满意就是我们的追求!


开工.jpg
回复 支持 反对

使用道具 举报

0

收听

1

听众

29

帖子

E粉新人

注册时间
2018-7-20
精华
0
 楼主| 发表于 2018-7-25 17:59:47 | 显示全部楼层
本帖最后由 喜鹊家 于 2018-7-27 09:37 编辑

每天一定会到施工现场 ,查看施工进度和质量 !施工团队负责人,项目经理,设计师联系方式都在签到表上,方便业主随时沟通,及时解决业主一系列问题!
                                         

签到2.jpg
签到.jpg
回复 支持 反对

使用道具 举报

0

收听

1

听众

29

帖子

E粉新人

注册时间
2018-7-20
精华
0
 楼主| 发表于 2018-7-25 18:04:57 | 显示全部楼层
本帖最后由 喜鹊家 于 2018-7-26 18:30 编辑

绿地(地固)与黄墙(墙固):墙固能让水泥黄沙与乳胶漆更好的融合!  地固防尘固沙,耐水防潮,也可以避免木地板受潮气侵蚀而产生的变形,同时避免日后从地板缝隙中“扑灰” 呦~   


墙固.jpg
回复 支持 反对

使用道具 举报

0

收听

1

听众

29

帖子

E粉新人

注册时间
2018-7-20
精华
0
 楼主| 发表于 2018-7-26 09:44:55 | 显示全部楼层
本帖最后由 喜鹊家 于 2018-7-27 09:33 编辑

将管线收纳整齐


线管.jpg
回复 支持 反对

使用道具 举报

0

收听

1

听众

29

帖子

E粉新人

注册时间
2018-7-20
精华
0
 楼主| 发表于 2018-7-26 09:47:10 | 显示全部楼层
本帖最后由 喜鹊家 于 2018-7-26 18:35 编辑

电视机柜的线我们也完美的将它隐藏起来了呦,让我们对乱成一团的线说再见!

隐藏电视线.jpg

回复 支持 反对

使用道具 举报

0

收听

1

听众

29

帖子

E粉新人

注册时间
2018-7-20
精华
0
 楼主| 发表于 2018-7-26 09:52:33 | 显示全部楼层
本帖最后由 喜鹊家 于 2018-7-26 18:39 编辑

3D放样,让您提前感受新居构造!贴心只服喜鹊家!
                        床

IMG_2367.jpg



衣柜

IMG_2373.jpg


酒柜


IMG_2365.jpg


回复 支持 反对

使用道具 举报

0

收听

1

听众

29

帖子

E粉新人

注册时间
2018-7-20
精华
0
 楼主| 发表于 2018-7-27 09:40:09 | 显示全部楼层
接下来我们 的水电施工,木工、瓦工敬请期待呦~喜鹊家豪装工厂店安庆店,走在质量把关最前线!

回复 支持 反对

使用道具 举报

3

收听

71

听众

1万

帖子

超级版主

注册时间
2004-12-8
精华
287

情多累美人

公益义工

QQ
发表于 2018-7-27 14:35:35 www.aqlife.com | 显示全部楼层
希望早日和我们网站合作18955600753

曾因酒醉鞭名马,生怕情多累美人……℡易随飞ooO…………18955600753
回复 支持 反对

使用道具 举报

0

收听

1

听众

29

帖子

E粉新人

注册时间
2018-7-20
精华
0
 楼主| 发表于 2018-10-3 10:33:14 | 显示全部楼层

永安公馆

哈哈,终于来记得更新了,期待毛坯房的一点点的蜕变!


回复 支持 反对

使用道具 举报

0

收听

1

听众

29

帖子

E粉新人

注册时间
2018-7-20
精华
0
 楼主| 发表于 2018-10-3 10:37:04 | 显示全部楼层
先上一个背景墙的前型吧~(背景做出来会很好看滴,期待)



IMG_5614_副本.jpg


回复 支持 反对

使用道具 举报

0

收听

1

听众

29

帖子

E粉新人

注册时间
2018-7-20
精华
0
 楼主| 发表于 2018-10-3 11:22:47 | 显示全部楼层

吊顶全都用了轻钢龙骨哦~石膏板接缝为v型缝。造型拐角切割成了L型,是不是钉子与钉子之间的间距都很完美呢?



IMG_5607_副本.jpg IMG_4561_副本.jpg

回复 支持 反对

使用道具 举报

0

收听

1

听众

29

帖子

E粉新人

注册时间
2018-7-20
精华
0
 楼主| 发表于 2018-10-3 11:43:37 | 显示全部楼层

瓷砖贴好了是不是很整齐?还特意检查了一下水平十字缝是否大小均匀一致呢!


IMG_5631_副本.jpg


回复 支持 反对

使用道具 举报

0

收听

1

听众

29

帖子

E粉新人

注册时间
2018-7-20
精华
0
 楼主| 发表于 2018-10-3 14:34:43 | 显示全部楼层

师傅在帮忙贴家里阳台的瓷砖~好想看看整体效果!


IMG_5654_副本.jpg


回复 支持 反对

使用道具 举报

0

收听

1

听众

29

帖子

E粉新人

注册时间
2018-7-20
精华
0
 楼主| 发表于 2018-10-3 14:35:14 | 显示全部楼层
下个工序我们再见!
回复 支持 反对

使用道具 举报

0

收听

1

听众

29

帖子

E粉新人

注册时间
2018-7-20
精华
0
 楼主| 发表于 2018-10-16 18:03:01 | 显示全部楼层
背景墙造型


IMG_6457_副本.jpg


回复 支持 反对

使用道具 举报

您需要登录后才可以回帖 登录 | 注册

本版积分规则

联系合作|手机版|手机APP|Archiver|

GMT+8, 2025-12-10 16:51 Powered by Discuz! X3.4

安庆E网生活网站 © 2001-2013 Comsenz Inc. ( 皖ICP备05012696号 )

QQ

安庆瑞易文化 地址:华茂1958-C7栋 联系电话:0556-5306667 联系邮箱:17779721@qq.com 互联网违法和不良信息举报电话和邮箱:0556-5306667 17779721@qq.com

皖公网安备 34080002000101号

    
快速回复 返回顶部 返回列表