安庆E网

搜索
查看: 4785|回复: 1

[设计交流] 青年装饰--山水云间北欧风

[复制链接]

0

收听

1

听众

483

帖子

认证商家

注册时间
2015-2-26
精华
0
QQ
发表于 2018-11-17 15:01:39 | 显示全部楼层 |阅读模式
本帖最后由 安庆青年装饰 于 2018-11-17 15:03 编辑

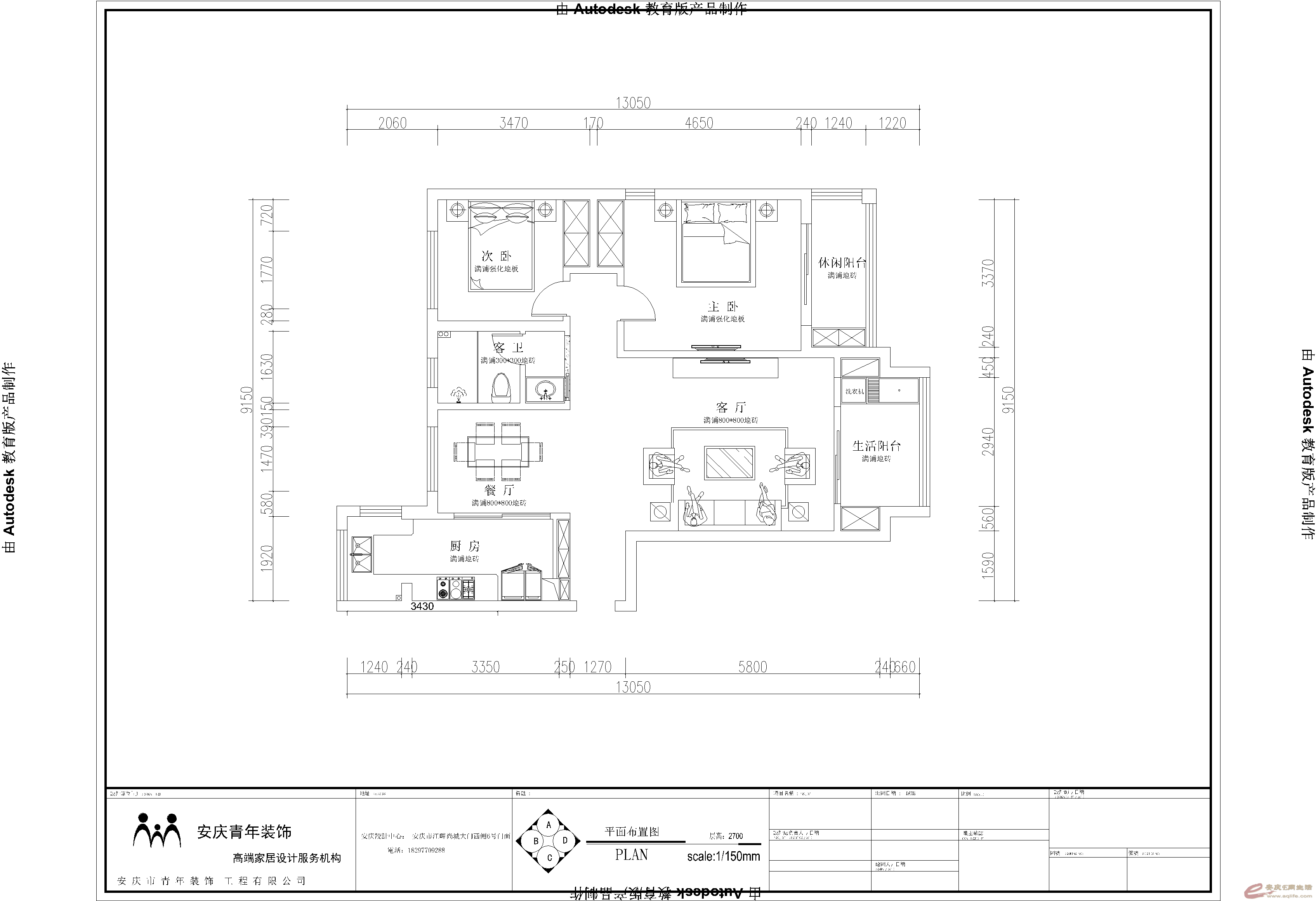
项目:碧桂园山水云间
面积:115平
户型:三室两厅一厨一卫两阳台
风格:北欧风
设计:青年    张忠琴
山水云间260-1506平面图-Model.png
b.jpg a.jpg
f.jpg
e.jpg
d.jpg
c.jpg
青年装饰
地址:安庆江畔尚城大门西侧人民东路144号
联系电话:18297709288
回复

使用道具 举报

0

收听

1

听众

483

帖子

认证商家

注册时间
2015-2-26
精华
0
QQ
 楼主| 发表于 2018-12-2 11:06:39 | 显示全部楼层

青年装饰
地址:安庆江畔尚城大门西侧人民东路144号
联系电话:18297709288
回复

使用道具 举报

您需要登录后才可以回帖 登录 | 注册

本版积分规则

联系合作|手机版|手机APP|Archiver|

GMT+8, 2025-12-10 19:11 Powered by Discuz! X3.4

安庆E网生活网站 © 2001-2013 Comsenz Inc. ( 皖ICP备05012696号 )

QQ

安庆瑞易文化 地址:华茂1958-C7栋 联系电话:0556-5306667 联系邮箱:17779721@qq.com 互联网违法和不良信息举报电话和邮箱:0556-5306667 17779721@qq.com

皖公网安备 34080002000101号

    
快速回复 返回顶部 返回列表