安庆E网

搜索
查看: 4295|回复: 0

[设计案列] 80平的轻奢风小户型二居室,不规则户型也能装得很美

[复制链接]

0

收听

1

听众

422

帖子

未认证商家

注册时间
2016-3-17
精华
0
发表于 2019-2-23 11:06:09 | 显示全部楼层 |阅读模式
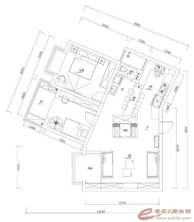
      222.jpg 今天分享的是一套建筑面积80平米的现代轻奢风小户型二居室,房子的问题主要就是户型本身不太规整,设计师用大胆独特的格局布置来解决不规则的户型麻烦,最终的设计效果让人感觉整个家通行流畅而又非常宽敞。
10.jpg
  平面布置图
11.jpg
入户玄关直面一个创意的背景墙,设计师通过中间的这个柱子来划分各个不同的空间,把餐厅、厨房、客厅给区分开。
01.jpg
但每个空间也都是相同的,所以在日常的使用上,非常的方便。柱子的周边也加上了嵌入式的柜子设计,满足屋主一家人的收纳需求。
02.jpg
客厅位于入户门的侧方,屋主把它作为一个会客、休闲的地方,所以没有摆放电视,沙发、茶几也是摆放的比较随意,充满了随性的感觉
12.jpg
中间一个壁炉的造型,两侧是嵌入式的柜子和书架、展示架,顶部的跌级吊顶加上了藏光,整个客厅让人感觉时尚奢华而又充满了创意。
04.jpg
餐厅这个空间被作为划分走廊和厨房的隔断,用餐桌椅把两者分开,从墙面延伸到吊顶的木质造型设计,给餐厅带来自然感。
05.jpg
厨房处选择把灶台和水槽放在了内部,避免油烟问题。U字型的橱柜还延伸了柜子到餐厅处,储物空间可以说是非常充足了,整个空间的配色也比较简洁。
06.jpg
主卧室的床头背景墙做了创意的护墙板造型,还在护墙板与墙面之间加装了藏光,以木色和白色、灰色为主的卧室空间,显得轻松而又舒适。
07.jpg
儿童房的空间比较小一些,把床放在了墙角,门的另一侧做个到顶的衣柜,衣柜侧方也留出了书桌区域,方便学习,儿童房整体的配色非常的可爱和清新。
08.jpg
卫生间的洗手台被放在了门外,还把洗衣机和洗手台结合起来,日常使用会方便一些。卫生间的内部也是干湿分离的设计,做了一个玻璃隔断划分淋浴区和马桶。
111.jpg
09.jpg
回复

使用道具 举报

您需要登录后才可以回帖 登录 | 注册

本版积分规则

联系合作|手机版|手机APP|Archiver|

GMT+8, 2025-12-10 16:51 Powered by Discuz! X3.4

安庆E网生活网站 © 2001-2013 Comsenz Inc. ( 皖ICP备05012696号 )

QQ

安庆瑞易文化 地址:华茂1958-C7栋 联系电话:0556-5306667 联系邮箱:17779721@qq.com 互联网违法和不良信息举报电话和邮箱:0556-5306667 17779721@qq.com

皖公网安备 34080002000101号

    
快速回复 返回顶部 返回列表