安庆E网

搜索
查看: 4528|回复: 0

[设计案列] 【品尚装饰】用原木风打造160平大宅,电视背景墙和阳台墙砖好喜欢!

[复制链接]

0

收听

1

听众

422

帖子

未认证商家

注册时间
2016-3-17
精华
0
发表于 2019-3-2 09:38:48 | 显示全部楼层 |阅读模式
本帖最后由 安庆品尚装饰 于 2019-3-2 09:41 编辑

                         01.jpg        今天分享的是一套建筑面积160平米的现代风大宅,只做了三个房间,所以每个空间都显得格外的宽敞,设计师以原木风为主,在局部点缀粗犷的石材元素等,让整个家充满了温馨感和创意感,让人羡慕不已。
       03.jpg
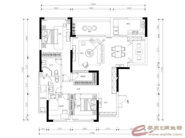
              平面布置图
       04.jpg
        入户的玄关门厅,正对门的墙面做了不规则的组合壁灯,左侧是悬空的鞋柜,鞋柜底部加上藏光的设计,让玄关门厅显得更为时尚。
      05.jpg
        走过玄关之后就到了客餐厅空间,客厅的侧面做了开放式的展示架,搭配电视柜,再也不担心客厅的收纳空间会不足。
       06.jpg
           小编很喜欢这面电视背景墙,用灰色的文化石来打造电视背景墙,凹凸不平的质感展现出粗犷的感觉。
      07.jpg
           客厅背后的是餐厅空间,餐厅侧方还有一个推拉门隐藏起来的榻榻米地台空间,方便和朋友一起玩游戏、泡茶聊天。
    08.jpg
         厨房内部的空间不大,橱柜也做了L型的布局,地面不规则的花砖搭配紫灰色的橱柜和奶白色的吊柜,给人一种精致的感觉。
    09.jpg
        主卧室给人一种温馨、素雅的感觉,大面积的运用木质原色,搭配灰色的床品和绿色的窗帘,展现出一个自然、舒适的空间。
      10.jpg
          次卧留空的浅灰床头墙以简约装饰画营造了可观性,而原木床铺了素净的床单,配合普蓝色床头靠背和窗帘,展现出简雅安静的气息。
      11.jpg
          卫生间以黑色与灰色的瓷砖搭配白色的卫具,展现出一个层次分明的卫生间空间,转角淋浴房的设计让卫生间布局更加合理。
      12.jpg
          阳台的地面铺设了浅色的木纹砖,墙面是花岗岩瓷砖,搭配白色的休闲桌椅和绿植,让人仿佛来到了森林当中,非常有自然气息。
      02.jpg

回复

使用道具 举报

您需要登录后才可以回帖 登录 | 注册

本版积分规则

联系合作|手机版|手机APP|Archiver|

GMT+8, 2025-12-10 17:46 Powered by Discuz! X3.4

安庆E网生活网站 © 2001-2013 Comsenz Inc. ( 皖ICP备05012696号 )

QQ

安庆瑞易文化 地址:华茂1958-C7栋 联系电话:0556-5306667 联系邮箱:17779721@qq.com 互联网违法和不良信息举报电话和邮箱:0556-5306667 17779721@qq.com

皖公网安备 34080002000101号

    
快速回复 返回顶部 返回列表