安庆E网

搜索
查看: 4940|回复: 0

[设计案列] 【青年装饰】--东方天韵水电展示

[复制链接]

0

收听

1

听众

483

帖子

认证商家

注册时间
2015-2-26
精华
0
QQ
发表于 2019-3-12 09:44:47 | 显示全部楼层 |阅读模式
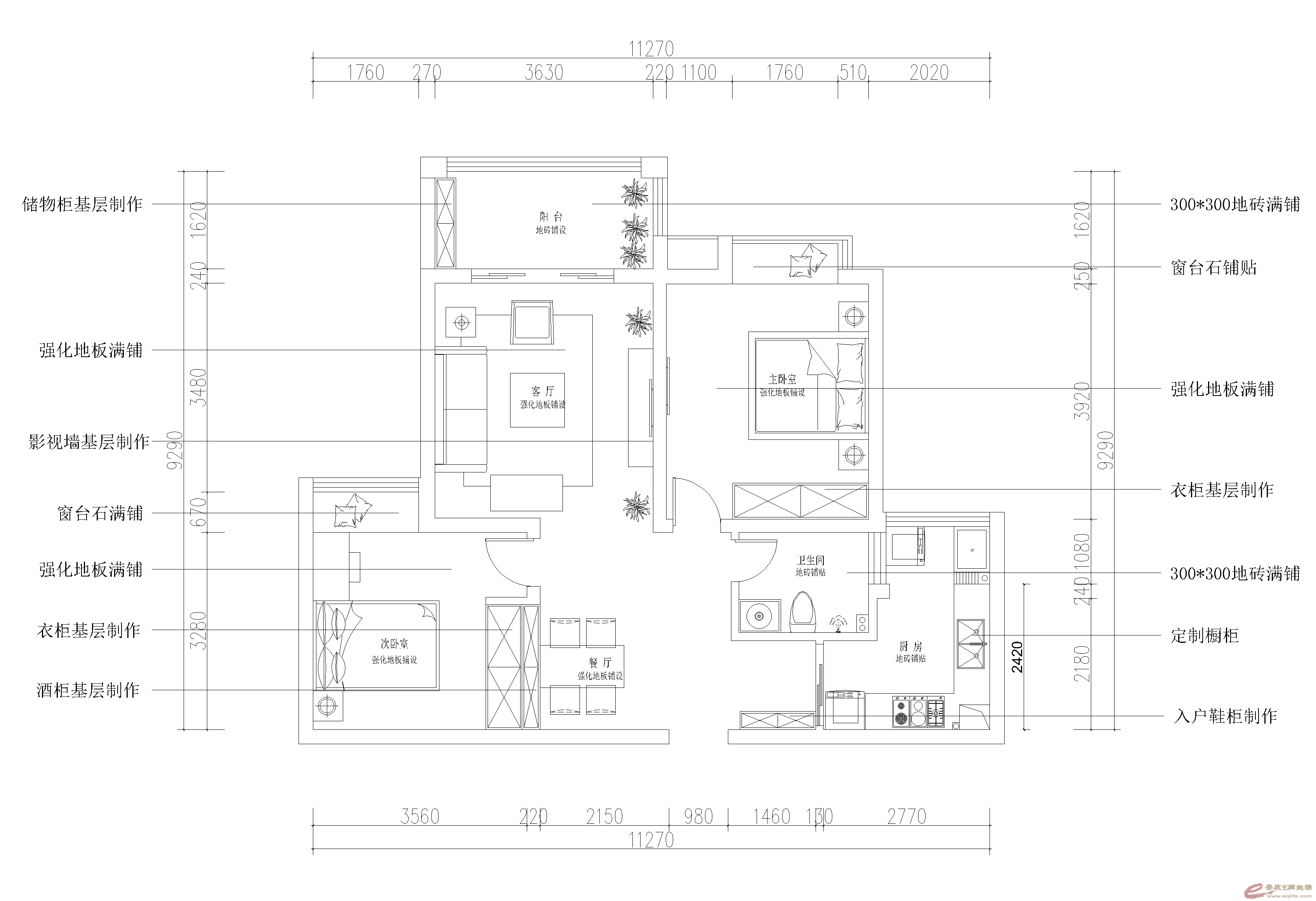
地址:东方天韵4-2706
面积:96平
户型:两室两厅一厨一卫一阳台
效果图:
东方天韵4-2706平面图-Model.png
微信图片_20190312092425.jpg
微信图片_20190312092411.jpg
微信图片_20190312092421.jpg
水电部分施工
微信图片_20190312093816.jpg
微信图片_20190312093824.jpg
微信图片_20190312093827.jpg
微信图片_20190312093830.jpg
微信图片_20190312093834.jpg
微信图片_20190312093837.jpg
微信图片_20190312093843.jpg
微信图片_20190312093846.jpg
微信图片_20190312093849.jpg

青年装饰
地址:安庆江畔尚城大门西侧人民东路144号
联系电话:18297709288
回复

使用道具 举报

您需要登录后才可以回帖 登录 | 注册

本版积分规则

联系合作|手机版|手机APP|Archiver|

GMT+8, 2025-12-10 21:55 Powered by Discuz! X3.4

安庆E网生活网站 © 2001-2013 Comsenz Inc. ( 皖ICP备05012696号 )

QQ

安庆瑞易文化 地址:华茂1958-C7栋 联系电话:0556-5306667 联系邮箱:17779721@qq.com 互联网违法和不良信息举报电话和邮箱:0556-5306667 17779721@qq.com

皖公网安备 34080002000101号

    
快速回复 返回顶部 返回列表