本帖最后由 jp5583871 于 2019-7-25 16:53 编辑
额,第一套大发的房子因为离父母太远了,所以把卖了,换了一个市里老房子。所以~~~又要装潢了,大发的装修日记在这边 http://www.aqlife.com/forum.php?mod=viewthread&tid=2107304&extra= 有兴趣的可以看看,这次日记就随便写写了,毕竟第二套没有第一套辣么激动了,形式上还是单独找个设计,然后单独找个施工队,没钱所以就不准备单独再找个监理了~~~还有基础材料我就不去自己买了感觉也省不了多少钱自己还累死,所以水管电线什么的我定个牌子就好,他们买回来我看看货对版就行,再说了我有上次的票,贵太多我也能知道~~~嗯
设计师嘛~~~还是何敏设计,话说两年没见貌似还瘦了!可以可以~~~因为是老人(我老了)所以价格很给劲哦,人还是很nice的,然后设计方案~~~因为我这个人钱少事儿还多,所以硬让他给我搞了六套CAD的方案,最后在解决掉卫生间跟厨房的疑难问题后终于定稿,再次多谢何敏设计!!!确实很专业 啧啧啧
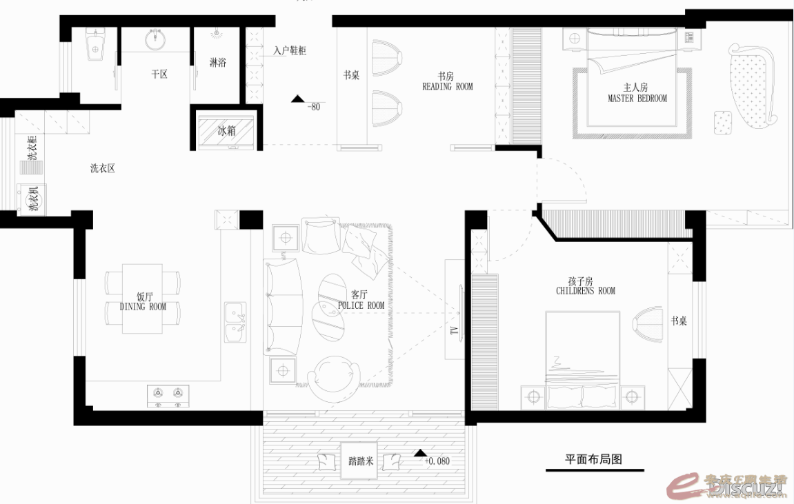
上个图,高清的就不上了免得有版权问题?(手动滑稽)证明一下确实给我出了6个方案,第一个是户型图~~~
总结一个:房子是自己住,自己的想法很重要!!!即使你花了钱请了设计师,他一开始也不能给你设计出你喜欢的,只能说他能照你的想法去设计接近你想法的房子,具象你的想法,但是具体到一个点或者一个功能可能还要根据住户也就是房子的主人你的要求来~~~每个人的对房子的要求和房子功能的需求都不一样,所以找设计师之前先把自己的喜欢的图片保存下来,自己要的功能写下来,还有其他一些个性的东西都需要自己先明白,这样跟设计师沟通起来就非常顺畅和效率。还有装修最好一个人说了算,别今天说这么定了,明天说不行要改,老婆不同意~~~所以说最多俩人商量,父母的话如果他们不跟你一起住就不要问他们的意见了~~~~嗯 以前大发是北欧风,这次试试日式,坐等效果图(其实没钱什么风都要打折,有钱的话味道可以足一点) 2019.04.02 何敏说设计图出来了后天去看,看他自己的意思对这套设计还是挺满意的,期待效果图哟~~~他自己定义为懒散的日式风格,不错,很贴切!因为我就是个懒人(非常懒)
|