安庆E网

搜索
查看: 93837|回复: 248

[装修日记] 老牛家的装修日记(网购家俱陆续进场)

    [复制链接]

0

收听

9

听众

1780

帖子

资深E粉

注册时间
2010-12-3
精华
0
QQ
发表于 2019-12-16 14:52:59 | 显示全部楼层 |阅读模式
本帖最后由 liuxt0556 于 2020-7-26 16:02 编辑

写在前面:
             一切为了孩子,为了孩子的一切,真的,发现做为父母,唯一的、无悔的奔头之一就是为了孩子,希望他(她)们一切都好。这不,刚脱离贫困线,为了女儿初中的入学,又要背债买房,重新做起贫下中农,以后每天只能馒头就咸菜过日子了。
          人家说,要货比三家,但这次装修,只找了2家装修公司进行洽谈,找太多,觉得没有必要,设计思路上跟设计师多聊聊,多问问,加上自己的想法,基本就差不多了;这次找的一个是宏达,一个就是东盛,说实话,二家公司设计师都很优秀,也给了我们不少建议,尤其是汪总,在房子的格局方面给了不少建议,感谢;经过综合考量,最终还是选择了宏达,这是与他们的第二次合作,第一次装修我们非常满意,希望这次更上一层楼。

直达电梯:
一、户型图及开工大吉(一楼)

二、更改进户门方向及订步阳防盗门        步阳防盗门2

三、水电开槽     水电开横槽小知识    预订巧夫人厨柜

四、更换屋顶排水管漏斗

五、日丰管测水压

六、安装窗户及雨棚 (栋梁铝材)   

七、防水测试

八、订制厨房、卫生间、阳台及柜子移门欧雅特移门

九、预订久盛地板     预订木门及门套(因没票子,在吉祥街选了几款木门,门套价格比光彩也便宜,安装的时候再做链接)

十、刷界面剂     房屋污染小知识  漆工材料进场     成品腻子与滑石粉的区别    第一遍腻子

     墙面漆升级为德爱威

十一、木工吊项   安装石膏线

十二、安装木门

十三:一点吐槽(关于栋梁铝材和巧夫人橱柜)

十四、第一遍漆

十五、安装集成吊顶      







网购:
强弱电箱(施耐德)           污水井盖             洗衣池          暖风机




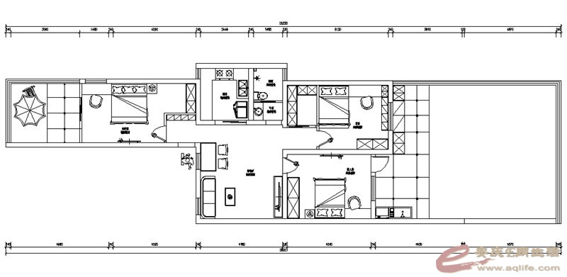
房子的平面图以及设计图:
钱牌楼11.jpg
              这是平面图
钱牌楼22.jpg
              设计图


         2019年12月16日   9:28,挥锤开工。



22.jpg

33.jpg

11.jpg

老牛想吃个嫩草
回复

使用道具 举报

0

收听

1

听众

83

帖子

E粉新人

注册时间
2018-11-25
精华
0
发表于 2019-12-16 15:33:43 | 显示全部楼层
恭喜楼主
世奇装饰  张工  18755670730(同微信号)
回复 支持 反对

使用道具 举报

0

收听

9

听众

742

帖子

未认证商家

注册时间
2010-5-19
精华
0
发表于 2019-12-17 11:39:14 | 显示全部楼层
恭祝刘府开工大吉
公司地址:新河路与文苑路交汇处新河湾商业A#
电话:0556-5197333  
监督电话:13955683080
回复 支持 反对

使用道具 举报

0

收听

1

听众

911

帖子

E粉明星

注册时间
2010-8-27
精华
0
发表于 2019-12-18 13:27:18 | 显示全部楼层
占个坑,几年前在E网写过一次装修日记,也是宏达公司负责装修,那套房已经卖了,新房要一年后才能拿到钥匙,先来向大家学习学习
回复 支持 反对

使用道具 举报

0

收听

9

听众

1780

帖子

资深E粉

注册时间
2010-12-3
精华
0
QQ
 楼主| 发表于 2019-12-18 20:14:34 | 显示全部楼层

谢谢!!
老牛想吃个嫩草
回复 支持 反对

使用道具 举报

0

收听

9

听众

1780

帖子

资深E粉

注册时间
2010-12-3
精华
0
QQ
 楼主| 发表于 2019-12-18 20:19:01 | 显示全部楼层

谢谢!祝公司乔迁大喜,生意兴隆,也希望本月28日乔迁大典上有惊喜。
老牛想吃个嫩草
回复 支持 反对

使用道具 举报

0

收听

9

听众

1780

帖子

资深E粉

注册时间
2010-12-3
精华
0
QQ
 楼主| 发表于 2019-12-18 20:22:17 | 显示全部楼层
牵着灵魂漫步 发表于 2019-12-18 13:27
占个坑,几年前在E网写过一次装修日记,也是宏达公司负责装修,那套房已经卖了,新房要一年后才能拿到钥匙 ...

一样的,你新房应该是明年12月份交房。
老牛想吃个嫩草
回复 支持 反对

使用道具 举报

0

收听

9

听众

1780

帖子

资深E粉

注册时间
2010-12-3
精华
0
QQ
 楼主| 发表于 2019-12-20 09:02:18 | 显示全部楼层
昨天,工程监理带着打墙的把需要拆除的墙体及相关旧物进行了确认,明天开始正式拆除。
老牛想吃个嫩草
回复 支持 反对

使用道具 举报

0

收听

9

听众

1780

帖子

资深E粉

注册时间
2010-12-3
精华
0
QQ
 楼主| 发表于 2019-12-21 15:28:55 | 显示全部楼层
老房子比新房子麻烦的地方就是破旧,旧的不拆,用了又不放心,拆就是一笔不小的费用,这个费用是预算之外的,真没办法。
早上,没时间去房子,工程监理发来前方施工照片,破旧正在进行时,辛苦了!
11.jpg

22.jpg

33.jpg
老牛想吃个嫩草
回复 支持 反对

使用道具 举报

0

收听

9

听众

1780

帖子

资深E粉

注册时间
2010-12-3
精华
0
QQ
 楼主| 发表于 2019-12-22 21:04:23 | 显示全部楼层
今天是繁忙的一天,早上7:20出门,晚上6点多到家,就中午吃饭用了10分钟,其他时间都在听课,今天一共听了46位老师的课,人都听麻木了。
实在是没时间去房子,感谢王经理从前方发来的图片,今日破旧第二天。

2.jpg

3.jpg

4.jpg

1.jpg

6.jpg
老牛想吃个嫩草
回复 支持 反对

使用道具 举报

0

收听

9

听众

1780

帖子

资深E粉

注册时间
2010-12-3
精华
0
QQ
 楼主| 发表于 2019-12-22 21:17:00 | 显示全部楼层
拆墙的师傅是我租房子的楼上装修,顺便问了一下他的电话号码,然后看了一次房子现场,确定了价格,觉得还合适,就定了,一个不错的人,话很少。
老牛想吃个嫩草
回复 支持 反对

使用道具 举报

0

收听

9

听众

1780

帖子

资深E粉

注册时间
2010-12-3
精华
0
QQ
 楼主| 发表于 2019-12-25 21:18:26 | 显示全部楼层
近几天进度有点慢,拆墙师傅说,墙壁难搞,拆了很费劲,今天终于把厨房和卫生间全部铲光了,余下的就是院子了。
感谢王监理发来的图片。
mmexport1577279297489.jpg

mmexport1577279303037.jpg

mmexport1577279318030.jpg
老牛想吃个嫩草
回复 支持 反对

使用道具 举报

0

收听

9

听众

1780

帖子

资深E粉

注册时间
2010-12-3
精华
0
QQ
 楼主| 发表于 2019-12-26 21:05:11 | 显示全部楼层
本帖最后由 liuxt0556 于 2019-12-26 21:16 编辑

今天下午抽空过去了一下房子,发现打墙师傅正在拆前面院子的顶棚,貌似很麻烦,上上下下好多次,顶棚拆掉后,打掉2面危墙,前面院子基本就这样了,但还没想好怎么规划。后面院子的墙也已打掉,只剩出垃圾了。

前院

前院


后院

后院


老牛想吃个嫩草
回复 支持 反对

使用道具 举报

0

收听

9

听众

1780

帖子

资深E粉

注册时间
2010-12-3
精华
0
QQ
 楼主| 发表于 2019-12-27 20:53:13 | 显示全部楼层
前面院子中的2面墙在原先设想中和设计中,都没有打算进行拆除,只是想着进行后期进行加固;但想着家里已经有了个调皮的娃,还有个正在茁壮成长的调皮的娃,这个墙不拆,万一哪天被他们给弄倒了,砸了东西还好点,砸了人就不是小事了,发个狠,在网上买了工地上的拦网,请打墙的师傅慢慢的拆除,这里要感谢一下宏达的王经理,从下午2点多,搞到4点多,一边出主意,一边出力,5个人,拆了2多个多小时,才终于把2面墙小心的拆掉,心里也落下了一块石头。
IMG_20191227_154930.jpg




老牛想吃个嫩草
回复 支持 反对

使用道具 举报

0

收听

9

听众

1780

帖子

资深E粉

注册时间
2010-12-3
精华
0
QQ
 楼主| 发表于 2019-12-29 20:29:52 | 显示全部楼层
打墙部分基本结束,除了一个进户门洞和后院子的一个棚子准备后一步再进行,明天开始上水泥黄沙准备砌墙粉墙。感谢前方发来的照片。
mmexport1577621822682.jpg

mmexport1577621832968.jpg

mmexport1577621837777.jpg

mmexport1577621843053.jpg

mmexport1577621826787.jpg




老牛想吃个嫩草
回复 支持 反对

使用道具 举报

0

收听

9

听众

1780

帖子

资深E粉

注册时间
2010-12-3
精华
0
QQ
 楼主| 发表于 2019-12-29 20:43:17 | 显示全部楼层
粉完墙后,水电就要开始定位,整体厨房要立即提上案头了,明天确定厨房。
老牛想吃个嫩草
回复 支持 反对

使用道具 举报

0

收听

9

听众

1780

帖子

资深E粉

注册时间
2010-12-3
精华
0
QQ
 楼主| 发表于 2019-12-30 22:00:44 | 显示全部楼层
印象中,所有抽奖,中的最多的就是肥皂和洗衣液;12月28日,是个喜庆的日子,宏达新店开业大典,想着带大、小宝过去玩玩,哪知居然中了二等奖,家里的冰箱有着落了,在这里谢谢宏达,也祝生意兴隆。
老牛想吃个嫩草
回复 支持 反对

使用道具 举报

0

收听

1

听众

73

帖子

E粉新人

注册时间
2019-6-3
精华
0
发表于 2019-12-30 22:12:45 | 显示全部楼层
liuxt0556 发表于 2019-12-30 22:00
印象中,所有抽奖,中的最多的就是肥皂和洗衣液;12月28日,是个喜庆的日子,宏达新店开业大典,想着带大、 ...

你牛啊
一招半式走江湖
回复 支持 反对

使用道具 举报

1

收听

1

听众

132

帖子

E粉明星

注册时间
2012-6-2
精华
1
发表于 2019-12-31 09:38:31 | 显示全部楼层
liuxt0556 发表于 2019-12-30 22:00
印象中,所有抽奖,中的最多的就是肥皂和洗衣液;12月28日,是个喜庆的日子,宏达新店开业大典,想着带大、 ...

运气爆棚,2019年的尾巴中个大奖,2020年好兆头。
回复 支持 反对

使用道具 举报

0

收听

9

听众

1780

帖子

资深E粉

注册时间
2010-12-3
精华
0
QQ
 楼主| 发表于 2019-12-31 13:42:54 | 显示全部楼层

回头搞点小酒喝喝
老牛想吃个嫩草
回复 支持 反对

使用道具 举报

0

收听

9

听众

1780

帖子

资深E粉

注册时间
2010-12-3
精华
0
QQ
 楼主| 发表于 2019-12-31 13:43:17 | 显示全部楼层
dp998d 发表于 2019-12-31 09:38
运气爆棚,2019年的尾巴中个大奖,2020年好兆头。

谢谢!2020,大家都会好运来。
老牛想吃个嫩草
回复 支持 反对

使用道具 举报

0

收听

1

听众

60

帖子

E粉新人

注册时间
2018-1-1
精华
0
发表于 2019-12-31 15:02:48 www.aqlife.com | 显示全部楼层
liuxt0556 发表于 2019-12-30 22:00
印象中,所有抽奖,中的最多的就是肥皂和洗衣液;12月28日,是个喜庆的日子,宏达新店开业大典,想着带大、小宝过去玩玩,哪知居然中了二等奖,家里的冰箱有着落了,在这里谢谢宏达,也祝生意兴隆。

宏达在哪?新房需要装修,打算去看看
回复 支持 反对

使用道具 举报

0

收听

9

听众

1780

帖子

资深E粉

注册时间
2010-12-3
精华
0
QQ
 楼主| 发表于 2019-12-31 15:24:51 | 显示全部楼层
猪猪猪臭 发表于 2019-12-31 15:02
宏达在哪?新房需要装修,打算去看看

公司地址:新河路与文苑路交汇处新河湾商业A#
电话:0556-5197333  
监督电话:13955683080
老牛想吃个嫩草
回复 支持 反对

使用道具 举报

0

收听

1

听众

60

帖子

E粉新人

注册时间
2018-1-1
精华
0
发表于 2019-12-31 16:09:41 www.aqlife.com | 显示全部楼层
liuxt0556 发表于 2019-12-31 15:24
公司地址:新河路与文苑路交汇处新河湾商业A#
电话:0556-5197333  
监督电话:13955683080

谢谢
回复 支持 反对

使用道具 举报

0

收听

9

听众

1780

帖子

资深E粉

注册时间
2010-12-3
精华
0
QQ
 楼主| 发表于 2020-1-2 22:07:30 | 显示全部楼层
本帖最后由 liuxt0556 于 2020-1-2 22:18 编辑

近几日,事情实在是多,没时间更新。
因为把进户门的方向变了,需要重新打门洞,加上旧门用着了不放心,所以前几天跟LP到湖心路去看了几家防盗门,门有甲、乙、丙、丁四个级别,每个级别价格都不同,钢材的厚度也不一样,看了几家,最后相中了第一个看的步阳防盗门,跟老板约好,元旦那天,把旧防盗门拆掉,换上新的步阳防盗门,甲级,超B锁,师傅大概安装了2个小时。安装好后忘记拍照片了。
IMG_20200101_092143_1.jpg

IMG_20200101_091943.jpg

老牛想吃个嫩草
回复 支持 反对

使用道具 举报

您需要登录后才可以回帖 登录 | 注册

本版积分规则

联系合作|手机版|手机APP|Archiver|

GMT+8, 2025-12-10 17:51 Powered by Discuz! X3.4

安庆E网生活网站 © 2001-2013 Comsenz Inc. ( 皖ICP备05012696号 )

QQ

安庆瑞易文化 地址:华茂1958-C7栋 联系电话:0556-5306667 联系邮箱:17779721@qq.com 互联网违法和不良信息举报电话和邮箱:0556-5306667 17779721@qq.com

皖公网安备 34080002000101号

    
快速回复 返回顶部 返回列表