安庆E网

搜索
查看: 13677|回复: 20

[装修日记] 人生第二套房装修日记(迎江府现代简约)

  [复制链接]

0

收听

1

听众

9

帖子

E粉新人

注册时间
2014-9-1
精华
0
发表于 2019-12-30 13:36:55 | 显示全部楼层 |阅读模式
    2007年装修了人生第一套房,那时是刚需的婚房,基本上都是由父母操办,家具电器自己选下款式就OK了。经过十多年的居住,发现在生活中有许多装修细节没有弄好,生活中有诸多不便,但是简约风格确实不容易过时,在出售时得到了买家的好评。    过了十几年,父母一天天老去,小孩正值读书时,为了能够更好的照顾老人,为了读书的孩子能够早上多睡一会,也为了改善居住环境,决定将开发区的房子卖了,在老城区购入了开(bu)盘(zhao)特(ren)别(mai)火(bu)爆(dao)的迎江府小区的一套住宅,据说此地风水好。因该楼盘开盘时买房者众多,一房难求,等准备好资金的时候发现该楼盘好楼栋好楼层已经出售的差不多了,无奈只好在低楼层中选择,售楼人员告知说一楼有送院子,觉得老城区带院子的住宅已经很少了,虽说阳光日照不行,但总符合冬至后日照三小时的标准,而且物业费比高楼层的要少啊(自我安慰)于是乎按流程交首付办贷款,一顿操作猛如虎,办完兜里只剩两块五。
    把老房子交给新主人的时候,觉得很是依依不舍,房子住得久了也是有感情的,搬进了出租房,每天努力搬砖,后面交税和装修都需要白花花的银子啊,想要把新的住宅装修成自己想要的温暖的家,决定写这篇日记来记录和分享一下装修中的点点滴滴,也希望和论坛里的朋友、大神、邻居多多交流心得经验。



回复

使用道具 举报

0

收听

1

听众

9

帖子

E粉新人

注册时间
2014-9-1
精华
0
 楼主| 发表于 2019-12-30 13:38:06 | 显示全部楼层
自己抢沙发,这两天忙着搞交房验房,后面再慢慢上图片,都是手机渣图,敬请谅解
回复 支持 反对

使用道具 举报

0

收听

1

听众

3397

帖子

E粉明星

注册时间
2007-7-26
精华
1
发表于 2019-12-30 13:39:54 www.aqlife.com | 显示全部楼层
楼主入手时多少钱一平方?一楼不用绑定车位,还是很划算的
东西出的比淘宝的高了,人家讲参考淘宝的价格;
东西出的比淘宝的低了,人家讲淘宝的价格虚高.
回复 支持 反对

使用道具 举报

0

收听

4

听众

5376

帖子

资深E粉

注册时间
2012-9-2
精华
9
发表于 2019-12-30 13:48:10 www.aqlife.com | 显示全部楼层
静等美图,感谢楼主分享
回复 支持 反对

使用道具 举报

0

收听

1

听众

127

帖子

E粉新星

注册时间
2019-5-13
精华
0
发表于 2019-12-30 14:26:34 www.aqlife.com | 显示全部楼层
楼主找到迎江府的微信群了吗?知道的话,麻烦告知,我们是邻居
回复 支持 反对

使用道具 举报

0

收听

1

听众

9

帖子

E粉新人

注册时间
2014-9-1
精华
0
 楼主| 发表于 2019-12-30 14:31:05 | 显示全部楼层
L小雷 发表于 2019-12-30 14:26
楼主找到迎江府的微信群了吗?知道的话,麻烦告知,我们是邻居

还没找到组织
回复 支持 反对

使用道具 举报

0

收听

1

听众

422

帖子

未认证商家

注册时间
2016-3-17
精华
0
发表于 2019-12-31 09:49:44 | 显示全部楼层
您好,楼主,可以联系我们去现场看看实地,测量尺寸,好让我们设计师给您新家设计出好的方案和效果图。
汪工.品尚装饰
        联系电话:15385562988汪经理(微信同号)              
            
地址:绿地三期北大门口(欧尚超市地下停车场往东100米处)
回复 支持 反对

使用道具 举报

0

收听

1

听众

127

帖子

E粉新星

注册时间
2019-5-13
精华
0
发表于 2019-12-31 10:57:51 www.aqlife.com | 显示全部楼层

欢迎进群985388763
回复 支持 反对

使用道具 举报

0

收听

9

听众

742

帖子

未认证商家

注册时间
2010-5-19
精华
0
发表于 2020-1-3 14:46:57 | 显示全部楼层
迎江府,好房。恭喜恭喜。装修可以来公司了解。宏达装饰欢迎您!
公司地址:新河路与文苑路交汇处新河湾商业A#
电话:0556-5197333  
监督电话:13955683080
回复 支持 反对

使用道具 举报

3

收听

2

听众

684

帖子

未认证商家

注册时间
2014-6-5
精华
0
QQ
发表于 2020-1-3 17:07:00 | 显示全部楼层
楼主你好,可以联系我们去现场看看,测量一下房子尺寸、然后出两套方案图和预算,让你做个比较。




                     地址;菱湖南路110号正奇家居三楼      13855649367   0556-5057922
回复 支持 反对

使用道具 举报

0

收听

1

听众

483

帖子

认证商家

注册时间
2015-2-26
精华
0
QQ
发表于 2020-1-4 14:34:45 | 显示全部楼层
楼主有空可以约下时间去量个房,回来做个设计和预算看看,说不定会有不一样的设计符合你。
青年装饰
联系人: 潮工  18297709288(微信同号)
地址:江畔尚城小区北大门西侧
青年装饰
地址:安庆江畔尚城大门西侧人民东路144号
联系电话:18297709288
回复 支持 反对

使用道具 举报

0

收听

1

听众

9

帖子

E粉新人

注册时间
2014-9-1
精华
0
 楼主| 发表于 2020-3-16 22:11:07 www.aqlife.com | 显示全部楼层
虽然拿房过程中有很多负面新闻,比如物业停车位等等问题,但还是如期拿房了,小区环境还是不错的,需要全体业主共同维护一个和谐文明的小区环境。 1584367919009580.jpeg 1584367919105460.jpeg 158436791919347.jpeg 158436791924780.jpeg 1584367919314220.jpeg 1584367919418885.jpeg
回复 支持 反对

使用道具 举报

0

收听

1

听众

473

帖子

认证商家

注册时间
2015-7-21
精华
0
发表于 2020-3-16 22:20:49 www.aqlife.com | 显示全部楼层
恭喜恭喜,选橱柜可以来巧夫人橱柜看看
回复 支持 反对

使用道具 举报

1

收听

3

听众

1136

帖子

E粉明星

注册时间
2006-3-3
精华
0
发表于 2020-3-16 22:26:22 | 显示全部楼层
恭喜恭喜,,,,邻居哈。
回复 支持 反对

使用道具 举报

0

收听

1

听众

9

帖子

E粉新人

注册时间
2014-9-1
精华
0
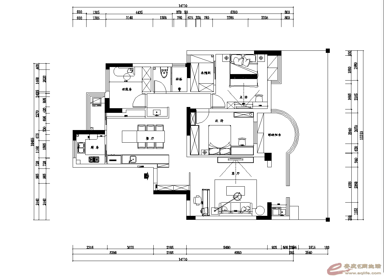
 楼主| 发表于 2020-3-17 10:07:52 www.aqlife.com | 显示全部楼层
照惯例上平面图和方案图 mmexport1574069666914.jpg 3CFC4958-B14B-47BB-978D-863442C82F06.jpg
回复 支持 反对

使用道具 举报

6

收听

4

听众

563

帖子

E粉明星

注册时间
2014-12-4
精华
0
发表于 2020-4-20 22:58:10 www.aqlife.com | 显示全部楼层
上点效果图看看,方案看着很不错
情不知所起,而一往情深

恨不知所终,而纠结流离
回复 支持 反对

使用道具 举报

0

收听

1

听众

9

帖子

E粉新人

注册时间
2014-9-1
精华
0
 楼主| 发表于 2020-5-12 22:29:44 www.aqlife.com | 显示全部楼层
因为总想着把房子装的很完美,导致方案改来改去,最后大致确定方案,还有细节要改
1589293998983617.jpeg
1589293999062993.jpeg
158929399912944.jpeg
1589293999192521.jpeg
回复 支持 反对

使用道具 举报

0

收听

1

听众

9

帖子

E粉新人

注册时间
2014-9-1
精华
0
 楼主| 发表于 2020-5-12 22:54:45 www.aqlife.com | 显示全部楼层
对于没有太多时间参与装修的业主来说,最重要的还是自己的想法,装修公司只是通过各种细节帮你实现,风格还是要自己把控,很费脑子,看了N多APP,下载了超多图片,头发掉了不少
在没收房时就已经开始构思设计了,中间也联系了几家装潢公司,从设计,工艺,价格各方面进行了比较,东盛的汪设计师很有亲和力,注意细节和环保,玄同的设计师想法大胆超前,都是挺不错的,但最终经过各种考量我选择了太禾,其实没有哪家公司比哪家好,只有哪家更适合自己!
回复 支持 反对

使用道具 举报

0

收听

1

听众

9

帖子

E粉新人

注册时间
2014-9-1
精华
0
 楼主| 发表于 2020-5-12 22:56:26 www.aqlife.com | 显示全部楼层
上点收房原始图片,院子都长草了
1589295577185435.jpeg
1589295577452295.jpeg
1589295577623464.jpeg
1589295577791807.jpeg
1589295577948716.jpeg
1589295578000632.jpeg
回复 支持 反对

使用道具 举报

0

收听

1

听众

473

帖子

认证商家

注册时间
2015-7-21
精华
0
发表于 2020-11-24 14:13:11 www.aqlife.com | 显示全部楼层
247# 巧夫人橱柜888 7 分钟前 巧夫人橱柜2020年开始做保养了,与我们联系,18297747092
回复 支持 反对

使用道具 举报

0

收听

1

听众

473

帖子

认证商家

注册时间
2015-7-21
精华
0
发表于 2021-1-23 07:32:46 www.aqlife.com | 显示全部楼层
巧夫人橱柜奥田集成灶免费清洗活动来了,请打18297747092
回复 支持 反对

使用道具 举报

您需要登录后才可以回帖 登录 | 注册

本版积分规则

联系合作|手机版|手机APP|Archiver|

GMT+8, 2025-12-10 22:49 Powered by Discuz! X3.4

安庆E网生活网站 © 2001-2013 Comsenz Inc. ( 皖ICP备05012696号 )

QQ

安庆瑞易文化 地址:华茂1958-C7栋 联系电话:0556-5306667 联系邮箱:17779721@qq.com 互联网违法和不良信息举报电话和邮箱:0556-5306667 17779721@qq.com

皖公网安备 34080002000101号

    
快速回复 返回顶部 返回列表