安庆E网

搜索
查看: 28956|回复: 37

[装修日记] 皖江府新居装修日记——青年(自己新居)

  [复制链接]

0

收听

1

听众

483

帖子

认证商家

注册时间
2015-2-26
精华
0
QQ
发表于 2020-3-11 19:14:56 | 显示全部楼层 |阅读模式
本帖最后由 安庆青年装饰 于 2020-4-20 16:51 编辑

这是人生中第二套住房,记得当时买房基本靠抢(2018年6月),第一天看中的户型和楼层,第二天就跑去订了。

元月16号一家人去交钱拿了钥匙,心情还是很激动的,小区绿化感觉还不错,美中不足就是进户门有点小丑还不给跟换
微信图片_20200311190916.jpg
微信图片_20200311190946.jpg
微信图片_20200311190933.jpg
微信图片_20200311190928.jpg


进户门,忍了

微信图片_20200311191252.jpg


青年装饰
地址:安庆江畔尚城大门西侧人民东路144号
联系电话:18297709288
回复

使用道具 举报

0

收听

1

听众

422

帖子

未认证商家

注册时间
2016-3-17
精华
0
发表于 2020-3-12 09:54:44 | 显示全部楼层
本帖最后由 安庆品尚装饰 于 2020-5-15 11:37 编辑

恭喜
回复 支持 反对

使用道具 举报

4

收听

2

听众

1414

帖子

未认证商家

注册时间
2011-5-4
精华
0
QQ
发表于 2020-3-12 10:38:34 | 显示全部楼层
青年装饰
地址:江畔尚城大门西侧
联系电话:18297709288   QQ:641125232
回复

使用道具 举报

0

收听

1

听众

473

帖子

认证商家

注册时间
2015-7-21
精华
0
发表于 2020-3-16 07:21:28 www.aqlife.com | 显示全部楼层
恭喜恭喜,开工大吉
回复 支持 反对

使用道具 举报

0

收听

1

听众

483

帖子

认证商家

注册时间
2015-2-26
精华
0
QQ
 楼主| 发表于 2020-3-16 15:10:48 | 显示全部楼层
年前腊月26带着家人大清早去开了工,开工仪式还是要搞的,6个苹果2条糕,苹果是家里选了几个卧室和客厅摆放了一下,寓意平安。糕叠放在主卧窗台上,寓意步步高 微信图片_20200316150201.jpg 微信图片_20200316150228.jpg
微信图片_20200316150216.jpg
微信图片_20200316150223.jpg
小锤60、大锤80
微信图片_20200316150221.jpg





青年装饰
地址:安庆江畔尚城大门西侧人民东路144号
联系电话:18297709288
回复 支持 反对

使用道具 举报

0

收听

1

听众

483

帖子

认证商家

注册时间
2015-2-26
精华
0
QQ
 楼主| 发表于 2020-3-16 15:27:24 | 显示全部楼层
本帖最后由 安庆青年装饰 于 2021-1-24 12:43 编辑

由于疫情影响,中间停了不少长时间,小区刚复工就忙着进材料,领着瓦工和项目经理现场把砌墙位置确定了,正式开始了装修的征程。
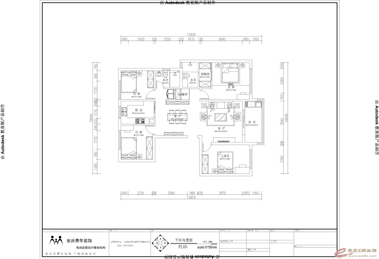
砌墙主要注意点:新旧墙体之间插钢筋、粉墙挂钢丝网、墙体上口斜砌。我家砌墙用的都是红砖,没用加气块了,红砖隔音、挂物件都比较牢固,墙体结束后要浇水养护今天。原户型图 131边户.jpg
平面图

微信图片_20200311184630.jpg

钢丝网、钢筋

微信图片_20200311184601.jpg
微信图片_20200311184537.jpg



墙体浇水养护

微信图片_20200316151912.jpg
微信图片_20200316151921.jpg

微信图片_20200316145934.jpg
微信图片_20200316150027.jpg




微信图片_20200311184604.jpg
微信图片_20200316150030.jpg
微信图片_20200316152138.jpg
青年装饰
地址:安庆江畔尚城大门西侧人民东路144号
联系电话:18297709288
回复 支持 反对

使用道具 举报

0

收听

1

听众

483

帖子

认证商家

注册时间
2015-2-26
精华
0
QQ
 楼主| 发表于 2020-3-24 20:28:25 | 显示全部楼层
皖江府的水电都是开发商前期走好的,由于前期开发商施工时到过现场,看了材料和走管布线,不忍直视,决定所有水电全部拆了重新走管布线,为了后期居住的安全和便捷。水管选的是保利的6分管,壁厚4.2的厚度,出水量和抗水压比较好,电线选的是安庆本地华鑫线单股铜芯线,网线选的是六类网线。水电定位厨房碰到一大难题,集成灶和洗碗机那面地柜尺寸比较吃紧,还有集成灶燃气接头的问题,和巧夫人橱柜老板比划了半天才定下来。这些天水电施工已经结束了,昨天联系了水管商家来对水管打压试压,10个压保半个小时,无掉压,水电基本告一段落。 微信图片_20200324201945.jpg

微信图片_20200324201948.jpg
微信图片_20200323184328.jpg
微信图片_20200323184335.jpg
微信图片_20200324201953.jpg
微信图片_20200323184331.jpg
微信图片_20200324201958.jpg
家里水电施工一定要注意几点:厨柜下进户水管安装截止阀,走水管时预留前置过滤器位置

卫生间坐便器上方预留插足,方便后期安装烘干毛巾架,
IMG_2626.jpg     AN$QXN%O$Y39P]Z([~@KOZJ.png
卫生间的等电位的连接也是必不可少的。
IMG_8735.jpg

电视机插座的预留高度,不要电视柜高度挡住插座。主卧照明做三控,卧室的床头两边后期安装带USB接头的插座
微信图片_20190930174141.jpg

考虑家里有老人和小孩,家里商量后安装地暖,本来打算全部铺地砖(地暖铺地砖散热比较好,地板散热要慢,),由于女主坚持卧室实木地板,考虑客厅地砖卧室地板两种不同材质会导致两个空间会有温差,经过商量敲定混装,就是客厅、餐厅和北面一卧室地暖,主卧、儿童房、老人房、卫生间装暖气片,暖气片后期也方便烘烘毛巾。地暖定的是尚美尚家的,锅炉威能的,给的价格也还不错,已经预约了明天开始地暖和暖气片的安装。后续上图




微信图片_20200323184304.jpg
微信图片_20200323184324.jpg
微信图片_20200323184320.jpg
青年装饰
地址:安庆江畔尚城大门西侧人民东路144号
联系电话:18297709288
回复 支持 反对

使用道具 举报

1

收听

3

听众

1136

帖子

E粉明星

注册时间
2006-3-3
精华
0
发表于 2020-3-24 22:37:16 | 显示全部楼层
回复

使用道具 举报

0

收听

1

听众

3397

帖子

E粉明星

注册时间
2007-7-26
精华
1
发表于 2020-3-28 01:13:06 | 显示全部楼层
请教,水管6分管对比4分管有什么优势吗?后期安装角阀和水龙头之类的规格是一样的吗?
东西出的比淘宝的高了,人家讲参考淘宝的价格;
东西出的比淘宝的低了,人家讲淘宝的价格虚高.
回复 支持 反对

使用道具 举报

0

收听

2

听众

76

帖子

E粉新人

注册时间
2016-11-30
精华
0
发表于 2020-3-28 20:18:40 | 显示全部楼层
不错 我家也准备装修一头雾水
回复 支持 反对

使用道具 举报

0

收听

1

听众

73

帖子

E粉新人

注册时间
2019-6-3
精华
0
发表于 2020-3-30 15:36:08 | 显示全部楼层

202145amw71jjkc4gjkwck_副本_副本.jpg

砌墙不规范暂不谈,水电同槽乃是大忌。



一招半式走江湖
回复 支持 反对

使用道具 举报

0

收听

1

听众

483

帖子

认证商家

注册时间
2015-2-26
精华
0
QQ
 楼主| 发表于 2020-3-30 18:39:50 | 显示全部楼层
某LOVE 发表于 2020-3-28 01:13
请教,水管6分管对比4分管有什么优势吗?后期安装角阀和水龙头之类的规格是一样的吗?

管径更粗,出水量较4分管大。壁厚更厚,抗水压更好
青年装饰
地址:安庆江畔尚城大门西侧人民东路144号
联系电话:18297709288
回复 支持 反对

使用道具 举报

0

收听

1

听众

483

帖子

认证商家

注册时间
2015-2-26
精华
0
QQ
 楼主| 发表于 2020-3-30 18:41:55 | 显示全部楼层
无影客 发表于 2020-3-30 15:36
砌墙不规范暂不谈,水电同槽乃是大忌。

这个是混凝土墙面,其次这个槽子开的比较大,电线管子与水管之间是拉开了距离的,有4-5公分的间距,不能同槽直的是水管与线管紧挨在一起共一个槽,仔细看下图,谢谢指正
青年装饰
地址:安庆江畔尚城大门西侧人民东路144号
联系电话:18297709288
回复 支持 反对

使用道具 举报

0

收听

1

听众

483

帖子

认证商家

注册时间
2015-2-26
精华
0
QQ
 楼主| 发表于 2020-3-30 18:48:57 | 显示全部楼层
无影客 发表于 2020-3-30 15:36
砌墙不规范暂不谈,水电同槽乃是大忌。

这个墙面是混凝土墙面,槽子特地开的比较宽,请仔细看下,再者线管与水管之间拉开距离的,有4-5公分的间距(详见图)。水电不能同槽指的是水管线管不能紧挨着在一个槽子里,这个可以看下施工规范怎么说的,不能只看字面,谢谢。墙面拍的是6公分墙面,顶端是斜砌不了。还是感谢点评
青年装饰
地址:安庆江畔尚城大门西侧人民东路144号
联系电话:18297709288
回复 支持 反对

使用道具 举报

0

收听

1

听众

483

帖子

认证商家

注册时间
2015-2-26
精华
0
QQ
 楼主| 发表于 2020-3-30 19:13:33 | 显示全部楼层
水电结束后,地暖进场,施工了两天,工作比较忙,也没顾上去现场看,也是整个安装完之后,售后人员联系去验收,去看了下,话不多说,上图 微信图片_20200330190340.jpg 微信图片_20200330190406.jpg
微信图片_20200330190359.jpg
地暖安装结束后,瓦工进场进行回填工作,回填的水泥砂浆里面加了瓜子片,以增加强度,客厅厅面铺地砖,考虑地面高度,薄找了一层,后面再铺地砖。卧室由于是实木地板,所有做了收光处理,找平后每天浇水养护,养护一个礼拜。
微信图片_20200330190425.jpg
微信图片_20200330190428.jpg
微信图片_20200330190442.jpg
微信图片_20200330190445.jpg
微信图片_20200330190449.jpg


青年装饰
地址:安庆江畔尚城大门西侧人民东路144号
联系电话:18297709288
回复 支持 反对

使用道具 举报

0

收听

1

听众

73

帖子

E粉新人

注册时间
2019-6-3
精华
0
发表于 2020-3-30 19:18:55 | 显示全部楼层
安庆青年装饰 发表于 2020-3-30 18:48
这个墙面是混凝土墙面,槽子特地开的比较宽,请仔细看下,再者线管与水管之间拉开距离的,有4-5公分的间 ...

202532pe85ekt1z1huu1ew.jpg 好吧,你说我不客观,就按你说的上图。

一招半式走江湖
回复 支持 反对

使用道具 举报

0

收听

1

听众

3397

帖子

E粉明星

注册时间
2007-7-26
精华
1
发表于 2020-3-30 19:34:27 | 显示全部楼层
安庆青年装饰 发表于 2020-3-30 18:39
管径更粗,出水量较4分管大。壁厚更厚,抗水压更好

后期龙头和角阀的安装呢?
东西出的比淘宝的高了,人家讲参考淘宝的价格;
东西出的比淘宝的低了,人家讲淘宝的价格虚高.
回复 支持 反对

使用道具 举报

0

收听

1

听众

483

帖子

认证商家

注册时间
2015-2-26
精华
0
QQ
 楼主| 发表于 2020-3-30 19:48:52 | 显示全部楼层
这两天抽时间把瓷砖看了下,看了三、四家,最终确认的是马可波罗家,挑瓷砖也是乙一番周折,开始看的客厅地面砖是705*1500的大板砖,厨卫选的都是600*1200的,后面算了下价格,有点超心里价位,回家一番商量,还是改规格,降预算客厅调整为600*1200的,厨卫全改成800*800的地砖加工上墙,造价看着还是比较舒服的。一开始看的中间这款灰色系的750*1500的大板砖,铺客厅、厨房、阳台,奈何考虑预算咬牙舍弃了
微信图片_20200330192334.jpg
后面选的砖
客厅、厨房、阳台地砖,规格600*1200
微信图片_20200330192326.jpg
厨房墙砖,800*800的,爵士白的,没拍好。
微信图片_20200330192330.jpg
厨房砖上墙效果
微信图片_20200330192955.jpg
客卫的墙砖,800*800地砖上墙
微信图片_20200330192322.jpg
客卫砖上墙效果
微信图片_20200330192952.jpg
主卫的墙砖,800*800地砖上墙
微信图片_20200330192312.jpg
主卫砖上墙效果
微信图片_20200330192947.jpg
目前砖都还在加工厂,等待中…………
加工砖上墙,需用到瓷砖背胶,施工时,先是对砖背面清洁再背胶正面涂刷。晾一天,第二天再施工,选择做美缝的瓷砖卡子用的是2毫米的塑料卡子瓦工工序中,防水由为重要,我们家要放水处理的地方有三处:卫生间、阳台还有房间拆除飘窗的四周。防水选用的马贝的干柔两个系列,干性防水刷墙面,地面用的是柔性防水,墙面防水制作是2.4米高,地面满刷。卫生间防水最注意的地方是刷地面防水之前一定要先把卫生间门槛石贴好,贴好后在连门槛石侧面一起把防水涂刷到位,以防后期潮气顺着门槛石跑出来,导致卫生间门口两边墙受潮起皮掉粉。
IMG_0476.jpg IMG_0487.jpg
还有就是现在一个争议比较大的话题,是墙砖压地砖,还是地砖压墙砖好,也就是墙砖地砖哪个先贴的问题。从美观上说,墙砖压地砖要好看些,且墙角不会留下朝天缝。如果地面墙面都做美缝的情况下,这个基本没什么区别。如下图
微信图片_20200330194621.png


青年装饰
地址:安庆江畔尚城大门西侧人民东路144号
联系电话:18297709288
回复 支持 反对

使用道具 举报

0

收听

1

听众

483

帖子

认证商家

注册时间
2015-2-26
精华
0
QQ
 楼主| 发表于 2020-3-30 19:49:35 | 显示全部楼层
无影客 发表于 2020-3-30 19:18
好吧,你说我不客观,就按你说的上图。

哥哥哎,那是等电位线
青年装饰
地址:安庆江畔尚城大门西侧人民东路144号
联系电话:18297709288
回复 支持 反对

使用道具 举报

0

收听

1

听众

483

帖子

认证商家

注册时间
2015-2-26
精华
0
QQ
 楼主| 发表于 2020-3-30 19:51:20 | 显示全部楼层
某LOVE 发表于 2020-3-30 19:34
后期龙头和角阀的安装呢?

不影响的,是一样的
青年装饰
地址:安庆江畔尚城大门西侧人民东路144号
联系电话:18297709288
回复 支持 反对

使用道具 举报

0

收听

1

听众

483

帖子

认证商家

注册时间
2015-2-26
精华
0
QQ
 楼主| 发表于 2020-3-30 20:47:58 | 显示全部楼层
荷花亭 发表于 2020-3-28 20:18
不错 我家也准备装修一头雾水

多看、多问、多做功课
青年装饰
地址:安庆江畔尚城大门西侧人民东路144号
联系电话:18297709288
回复 支持 反对

使用道具 举报

0

收听

1

听众

473

帖子

认证商家

注册时间
2015-7-21
精华
0
发表于 2020-3-30 21:53:26 www.aqlife.com | 显示全部楼层
恭喜恭喜
回复 支持 反对

使用道具 举报

0

收听

1

听众

483

帖子

认证商家

注册时间
2015-2-26
精华
0
QQ
 楼主| 发表于 2020-4-20 17:09:12 | 显示全部楼层
加工砖铺贴是有点耽误时间,前几天瓦工基本结束了,木工已经进场进行吊顶、制作柜体作业。上贴砖图
微信图片_20200420170319.jpg
微信图片_20200420170630.jpg
微信图片_20200420170615.jpg
微信图片_20200420170618.jpg
微信图片_20200420170624.jpg
微信图片_20200420170621.jpg
微信图片_20200420170636.jpg


青年装饰
地址:安庆江畔尚城大门西侧人民东路144号
联系电话:18297709288
回复 支持 反对

使用道具 举报

4

收听

2

听众

1414

帖子

未认证商家

注册时间
2011-5-4
精华
0
QQ
发表于 2020-4-24 16:40:47 | 显示全部楼层
青年装饰
地址:江畔尚城大门西侧
联系电话:18297709288   QQ:641125232
回复

使用道具 举报

0

收听

1

听众

19

帖子

E粉新人

注册时间
2019-9-25
精华
0
发表于 2020-5-17 23:17:49 www.aqlife.com | 显示全部楼层
某LOVE 发表于 2020-03-28 01:13
请教,水管6分管对比4分管有什么优势吗?后期安装角阀和水龙头之类的规格是一样的吗?

如果水表是20的(4分)屋里水管用6的没什么用,除了收费高些,如果水表是25的(6分)室内果断用6分,南方都用6分管,
回复 支持 反对

使用道具 举报

您需要登录后才可以回帖 登录 | 注册

本版积分规则

联系合作|手机版|手机APP|Archiver|

GMT+8, 2025-12-10 21:16 Powered by Discuz! X3.4

安庆E网生活网站 © 2001-2013 Comsenz Inc. ( 皖ICP备05012696号 )

QQ

安庆瑞易文化 地址:华茂1958-C7栋 联系电话:0556-5306667 联系邮箱:17779721@qq.com 互联网违法和不良信息举报电话和邮箱:0556-5306667 17779721@qq.com

皖公网安备 34080002000101号

    
快速回复 返回顶部 返回列表