安庆E网

搜索
查看: 12054|回复: 7

[样板间] 宏祥山庄4#405室老房改造效果图&实景图

[复制链接]

1

收听

5

听众

228

帖子

未认证商家

注册时间
2015-9-13
精华
0
发表于 2020-5-13 15:16:22 | 显示全部楼层 |阅读模式
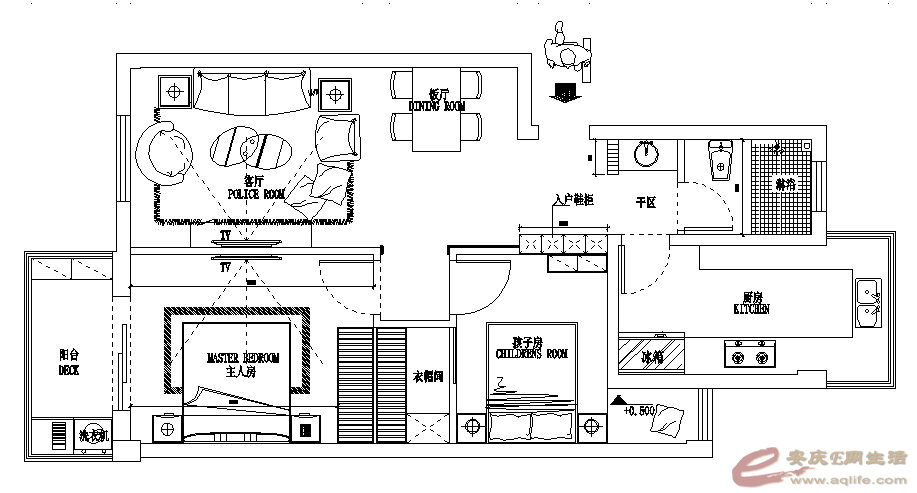
这个老房子原装修房型南北不通透,餐厅太小,采光通风不好!但是厨房不小!但是原来的厨房是从卫生间门进的。改造后户型南北通透,干湿分区,空间充分利用,次卧室还有衣帽间!收纳空间增加!

客厅效果图

客厅效果图

餐厅效果图

餐厅效果图

干区视角效果图

干区视角效果图

餐厅视角效果图

餐厅视角效果图

客厅效果图

客厅效果图

客餐厅效果图

客餐厅效果图

入户门效果图

入户门效果图

老房改造前

老房改造前

老房改造前

老房改造前

老房改造前

老房改造前

老房改造前

老房改造前

老房改造前

老房改造前

客厅

客厅

客餐厅

客餐厅

客餐厅

客餐厅

过道

过道

客餐厅

客餐厅

餐厅

餐厅

厨房

厨房

卫生间干湿区

卫生间干湿区

厨房到干区视角

厨房到干区视角

阳台

阳台

阳台

阳台

次卧室

次卧室

餐厅进户门视角

餐厅进户门视角
20.jpg

餐厅

餐厅

餐厅

餐厅

餐厅视角

餐厅视角

主卧

主卧

阳台

阳台

卫生间到客餐厅视角

卫生间到客餐厅视角

主卧室

主卧室

改造后平面布局

改造后平面布局

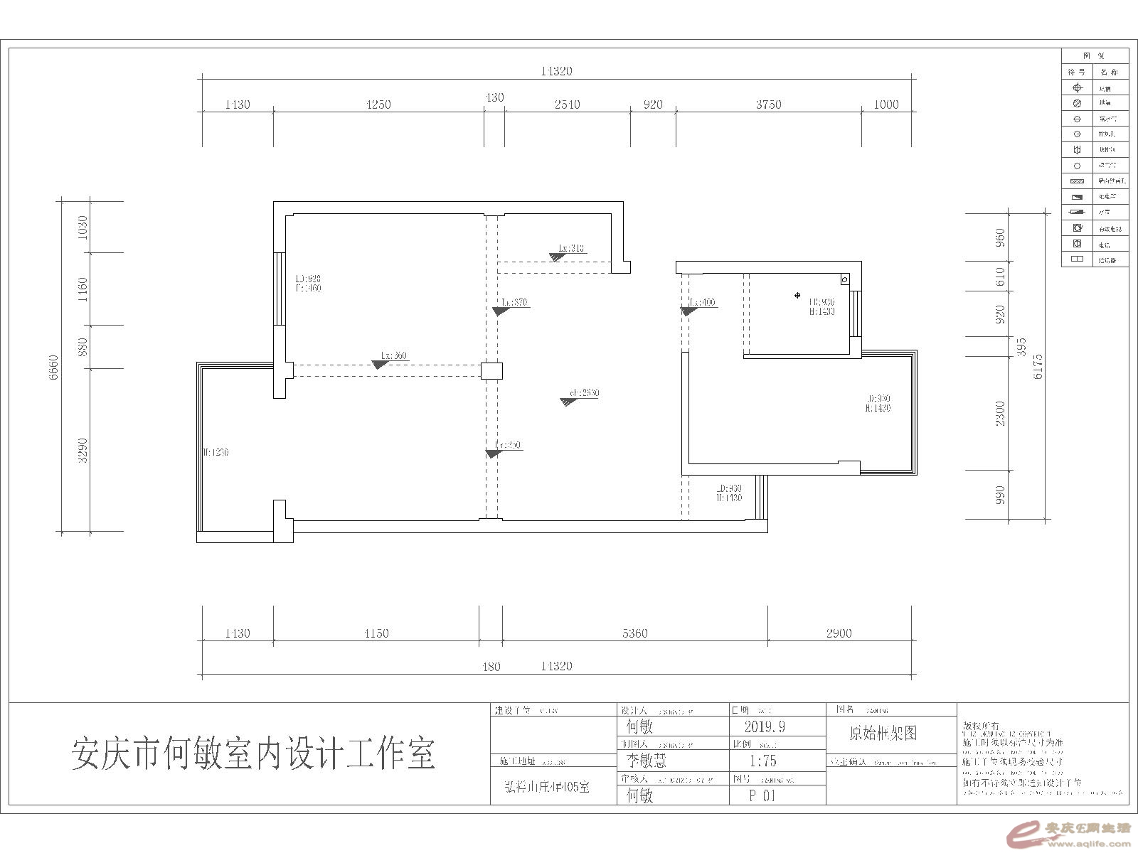
原户型

原户型

评分

参与人数 1鲜花 +1 收起 理由
yaya6287 + 1 E网因你而精彩

查看全部评分

专业纯设计工作室:承接各种家装、工装的设计业务
地址:安庆华茂1958商业街B5#603室  电话:18055667977何工
何敏设计工作室
回复

使用道具 举报

1

收听

3

听众

192

帖子

E粉新星

注册时间
2016-6-27
精华
0
发表于 2020-5-18 08:28:04 | 显示全部楼层
布局比原来的户型合理,收纳空间特别是客餐厅的收纳空间不足;效果图的配色比实景图好。
回复 支持 反对

使用道具 举报

1

收听

5

听众

228

帖子

未认证商家

注册时间
2015-9-13
精华
0
 楼主| 发表于 2020-5-18 14:18:54 | 显示全部楼层
小花仙剑 发表于 2020-5-18 08:28
布局比原来的户型合理,收纳空间特别是客餐厅的收纳空间不足;效果图的配色比实景图好。

软配是后面慢慢的搭配,很少有客户是会一步到位的,而且房子就是生活慢慢的沉淀一种美好体现!
专业纯设计工作室:承接各种家装、工装的设计业务
地址:安庆华茂1958商业街B5#603室  电话:18055667977何工
何敏设计工作室
回复 支持 反对

使用道具 举报

1

收听

5

听众

228

帖子

未认证商家

注册时间
2015-9-13
精华
0
 楼主| 发表于 2020-5-27 14:50:17 | 显示全部楼层
专业纯设计工作室:承接各种家装、工装的设计业务
地址:安庆华茂1958商业街B5#603室  电话:18055667977何工
何敏设计工作室
回复

使用道具 举报

1

收听

5

听众

228

帖子

未认证商家

注册时间
2015-9-13
精华
0
 楼主| 发表于 2020-7-4 14:38:58 | 显示全部楼层
专业纯设计工作室:承接各种家装、工装的设计业务
地址:安庆华茂1958商业街B5#603室  电话:18055667977何工
何敏设计工作室
回复

使用道具 举报

1

收听

5

听众

228

帖子

未认证商家

注册时间
2015-9-13
精华
0
 楼主| 发表于 2020-8-5 14:14:46 | 显示全部楼层
专业纯设计工作室:承接各种家装、工装的设计业务
地址:安庆华茂1958商业街B5#603室  电话:18055667977何工
何敏设计工作室
回复

使用道具 举报

0

收听

1

听众

2

帖子

E粉新人

注册时间
2018-2-14
精华
0
发表于 2021-4-20 19:19:41 | 显示全部楼层
挺好的挺棒的
回复 支持 反对

使用道具 举报

1

收听

5

听众

228

帖子

未认证商家

注册时间
2015-9-13
精华
0
 楼主| 发表于 2021-4-22 14:54:01 | 显示全部楼层

谢谢!
专业纯设计工作室:承接各种家装、工装的设计业务
地址:安庆华茂1958商业街B5#603室  电话:18055667977何工
何敏设计工作室
回复 支持 反对

使用道具 举报

您需要登录后才可以回帖 登录 | 注册

本版积分规则

联系合作|手机版|手机APP|Archiver|

GMT+8, 2025-12-10 15:33 Powered by Discuz! X3.4

安庆E网生活网站 © 2001-2013 Comsenz Inc. ( 皖ICP备05012696号 )

QQ

安庆瑞易文化 地址:华茂1958-C7栋 联系电话:0556-5306667 联系邮箱:17779721@qq.com 互联网违法和不良信息举报电话和邮箱:0556-5306667 17779721@qq.com

皖公网安备 34080002000101号

    
快速回复 返回顶部 返回列表