安庆E网

搜索
查看: 8168|回复: 0

[装修日记] 户型好面积小,想要大房子怎么办?买两套打通,一定要这样装修

[复制链接]

2

收听

2

听众

494

帖子

未认证商家

注册时间
2015-7-14
精华
0
发表于 2020-7-13 11:58:57 | 显示全部楼层 |阅读模式
本帖最后由 雅美居装饰 于 2020-7-13 16:19 编辑

如果有两套房子,你会想把它装成什么风格呢?
在本案中,徐明华徐工结合业主需求,通过对室内格局的改动,优化动线设计,硬装上简洁干净,简洁之余更添温馨自然。
1.jpg 2.jpg
▲效果图
在这个210㎡的空间里,

有他们爱的自然原木风定制,也有他们日常生活的温度。
3.jpg 4.jpg
▲原始结构图
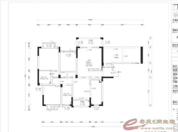
5.jpg
▲平面布置图
设计说明✓
小房换大房难,干脆两套打通更便捷!
房子是业主焦先生和父母孩子一起住的,当初买房的时候觉得对小区户型都特别满意,唯一就是面积小了点,和家人商量决定买下两套相邻的房子,打通在一起,正好满足了家人所有的需求!
差异化优势

1.厨房家电前置化、嵌入式设计


因为业主选择的是整装定制一体化服务,在家电设计方面可以规避掉很多问题。

∇比如厨房的内嵌冰箱、内嵌烤箱设计,嵌入式家电需设计为底部或顶部散热,不少品牌受限于技术实力,只能降低散热效率,留下安全隐患;
WeChat 圖片_20200713091510.png

而雅美居则可以做到对尺寸、风格、功能的有效管控,成套海尔家电配套方案与设计相结合。
7.jpg

∇其次,管线机前置化设计在酒水柜中,让业主无需自己烧水,达到即开即热直饮水;
8.jpg

上门测量、定制整套家电解决方案等,前置化的解决方式节省人力、金钱和时间成本,让业主可以享受到打造高端、品质化的整体装修服务。


2.衣柜细节处理


全房柜体封边采用隔墙收口处理,为达到柜子和墙面顶面的契合度:

∇“三师一体”无缝对接可以做到安装严丝合缝,油灰工、监理对墙面平整度的准确把控。

整体上十分美观,像回南天墙面难免潮湿,也完全不用担心受潮。
9.jpg 10.jpg

∇在柜体中设计感应灯带,弱化空间封闭和违和感,打开柜子时也不会因为柜体内部黑暗而影响使用。
11.jpg 12.jpg


3.特殊产品设计运用


设计师徐工为达到更好的效果及解决实际性痛点,专门去透彻研究一些特殊材质如何运用到设计中:

∇房门采用磁吸锁,开关操作便利;背景墙以斑德宅配定制护墙板与日式窗格一体设计;
13.jpg
14.jpg 15.jpg
利他优势

1.原始结构拆改,连接两边“通道”


进门巧妙之处就是把右侧阳台及房间拆改,打造成两套房子的一个“通道”。

两扇门打开时,三代同堂其乐融融,关上则是独立的私密空间,互不打扰。
16.jpg

2.定制鞋柜半高设计


一边是餐边柜+鞋柜一体化设计,分区明确。
两套房子均设计半高鞋柜,视觉不显压抑,满足业主不想进门一览无余、还能补充收纳的需求。
17.jpg 18.jpg


3.谷仓门设计隐藏卫生间


为避免过道空间的浪费,特意将卫生间做成谷仓门设计,干湿分离,进出不尴尬。
19.jpg
用流畅的动线保证卧室的静谧,搭配黑白格瓷砖的装饰效果也非常完美。
20.jpg 21.jpg



4.个性化定制书房、卫生间


∇单张的书桌已经不能满足多重需求,作为孩子的学习空间,设计师考虑到孩子的喜好,规划成现代黑白灰系,孩子逐渐长大也依旧适用。
鼹鼠灰+爱马仕橙跳色搭配,三面墙都做了定制收纳,储物柜+衣柜一体化设计。
22.jpg 23.jpg 24.jpg
∇转角衣柜连接玻璃门储物柜设计,并且延伸出书桌;
考虑到整体使用的连贯性,左侧设为开放式+玻璃柜,安装插座,美观实用;右侧矮柜顺手即可放物、取物,连接转角衣柜。
25.jpg
∇主卫采用双壁龛设计,储物使用十分方便,同时为父母特殊定制淋浴房
∇主卫采用
双壁龛设计,储物使用十分方便,同时为父母特殊定制淋浴房
1.jpg

2.jpg 3.jpg 看完整个房子的设计,有打动你吗?
对于把两套房的设计合二为一对于设计师来说其实也是有挑战的。
用业主的话来说:我就是比较“懒”,不想多操劳,雅美居整装三师一体设计服务,家居设计师做全案设计,满足了我们一家对使用功能、色彩、生活习惯、喜好等需求。
房子不需要花哨,舒适实用才是硬道理!

























平价客服热线:0556-5501169   18297790630皖江大道香水百合南门沿街商铺雅美居装饰
回复

使用道具 举报

您需要登录后才可以回帖 登录 | 注册

本版积分规则

联系合作|手机版|手机APP|Archiver|

GMT+8, 2025-12-10 23:07 Powered by Discuz! X3.4

安庆E网生活网站 © 2001-2013 Comsenz Inc. ( 皖ICP备05012696号 )

QQ

安庆瑞易文化 地址:华茂1958-C7栋 联系电话:0556-5306667 联系邮箱:17779721@qq.com 互联网违法和不良信息举报电话和邮箱:0556-5306667 17779721@qq.com

皖公网安备 34080002000101号

    
快速回复 返回顶部 返回列表