安庆E网

搜索
查看: 16786|回复: 10

[百姓声音] 逸龙府开发商自称房屋质量,如今已漏水

  [复制链接]

0

收听

1

听众

16

帖子

E粉新人

注册时间
2020-9-27
精华
1
发表于 2020-12-20 19:37:10 | 显示全部楼层 |阅读模式
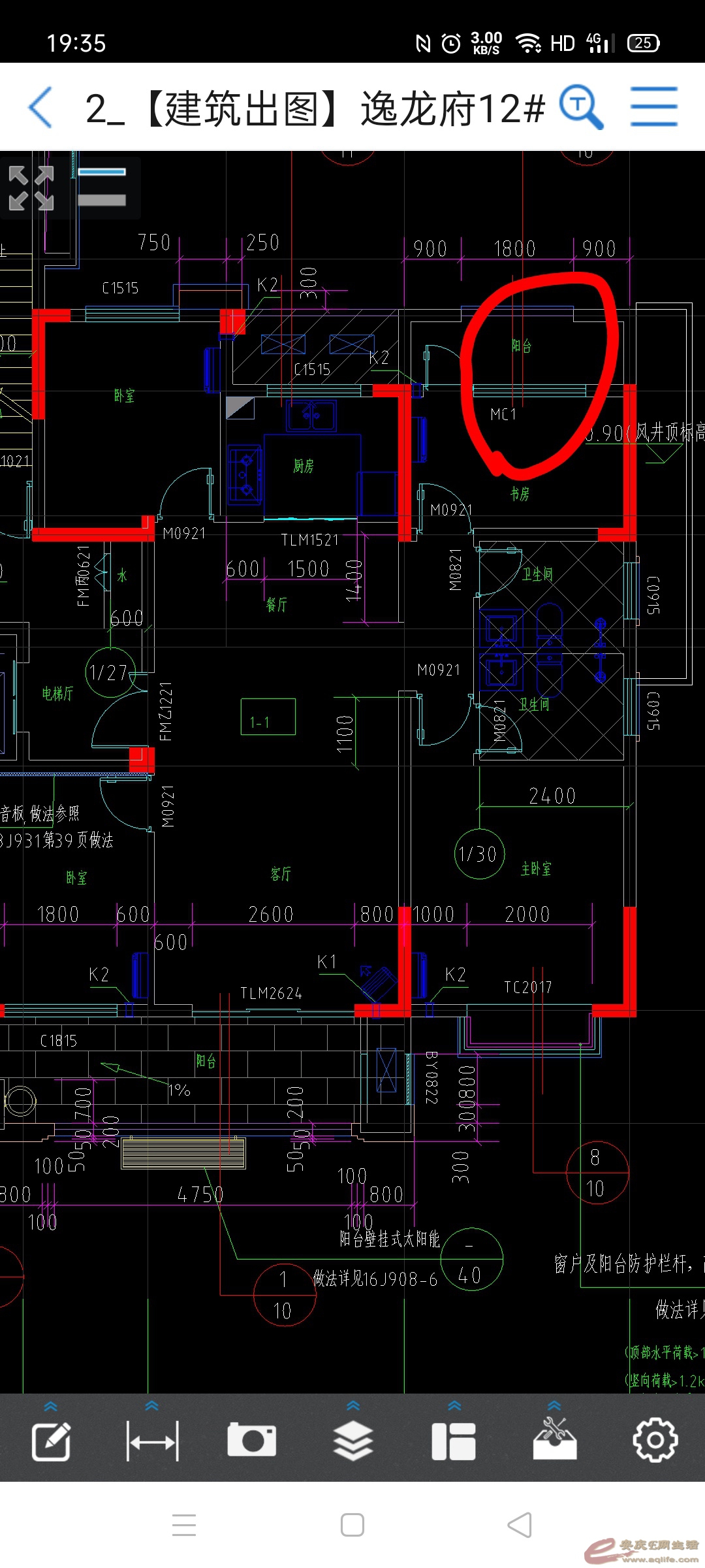
各位看客,以及安庆的父母官看看,好好管管这样的开发商,房屋交付不足两月地下室水流成河了,到处漏水。两月前我爆料房子质量有缺陷,开发商矢口否认,并请安庆媒体进行见证,今天这个漏水的事实证明了什么?是我诬陷他们,还是开发商的质量真的不行,明眼人应该能开出来吧?另外开发商利用不合理的设计变更偷了广大业主北边书房的一扇窗户,根本不满足规范窗墙比的要求,反应到相关部门也没有处理!!!
16084641404801.jpeg
160846414055437.jpeg
160846418865055.jpeg
回复

使用道具 举报

1

收听

9

听众

5117

帖子

E粉明星

注册时间
2009-11-24
精华
0

室内装饰设计QQ243160571

QQ
发表于 2020-12-21 09:13:45 | 显示全部楼层
现在的房屋质量咋都这样
东盛装饰  您身边的装修专家!
地址:光彩四期烩街公寓6楼(光彩大舞台隔壁)
电话:13625565176   5200845
回复 支持 反对

使用道具 举报

0

收听

1

听众

1162

帖子

E粉明星

注册时间
2016-12-29
精华
3
发表于 2020-12-21 20:13:59 | 显示全部楼层
看来恒大还是好些
安庆人联络QQ群
文明友善的加
群号:572487911
回复 支持 反对

使用道具 举报

1

收听

5

听众

7627

帖子

版主

注册时间
2008-8-26
精华
32
发表于 2020-12-21 21:54:18 www.aqlife.com | 显示全部楼层
本帖最后由 jiangan323 于 2020-12-21 21:58 编辑

先卖个关子,后面会有一出好戏
回复 支持 反对

使用道具 举报

1

收听

3

听众

5295

帖子

E粉明星

注册时间
2014-5-5
精华
4
发表于 2020-12-21 22:56:12 www.aqlife.com | 显示全部楼层
你这样的曝光,让这个小区二手房怎么卖
回复 支持 反对

使用道具 举报

0

收听

2

听众

8545

帖子

E粉明星

注册时间
2017-7-8
精华
8
发表于 2020-12-22 10:26:48 | 显示全部楼层
现在各个小区都差不多 或多或少都有毛病
回复 支持 反对

使用道具 举报

1

收听

5

听众

7627

帖子

版主

注册时间
2008-8-26
精华
32
发表于 2020-12-22 10:28:17 www.aqlife.com | 显示全部楼层
东京冷 发表于 2020-12-21 22:56
你这样的曝光,让这个小区二手房怎么卖

后面还有大料,现在先不说
回复 支持 反对

使用道具 举报

0

收听

1

听众

16

帖子

E粉新人

注册时间
2020-9-27
精华
1
 楼主| 发表于 2020-12-23 12:53:17 www.aqlife.com | 显示全部楼层
东京冷 发表于 2020-12-21 22:56
你这样的曝光,让这个小区二手房怎么卖

卖什么卖,谁让投机倒把的
回复 支持 反对

使用道具 举报

0

收听

2

听众

2774

帖子

E粉明星

注册时间
2010-7-4
精华
0
发表于 2020-12-24 20:35:36 | 显示全部楼层
本帖最后由 luckymayi 于 2020-12-24 20:37 编辑

东门的房子都难控制质量,当然部分原因也是因为开发商的建造水平和建造态度有关。东门属于长江冲击平原,以前都是田地,地基本身也不稳固,地基不稳固加上高楼大厦,时间久了自然裂缝就多了。北部新城的那些小开发商开发的楼房为啥很少听说质量问题,不是人家特意精心建造,而是地基本来就是大龙山山脚,往下挖都是岩石,地基牢不会塌陷。安庆从石化厂来就发展错了方向,本来应该发展西部和北部,把东部留给工厂,全给当时的人鼠目寸光把西门建了污染最大的工厂,而且还错失了高校。
回复 支持 反对

使用道具 举报

1

收听

3

听众

5295

帖子

E粉明星

注册时间
2014-5-5
精华
4
发表于 2020-12-24 21:05:03 www.aqlife.com | 显示全部楼层
安庆的风向决定东门不能发展化工
回复 支持 反对

使用道具 举报

1

收听

9

听众

5117

帖子

E粉明星

注册时间
2009-11-24
精华
0

室内装饰设计QQ243160571

QQ
发表于 2020-12-25 08:45:50 | 显示全部楼层
jiangan323 发表于 2020-12-22 10:28
后面还有大料,现在先不说

你知道内幕?
东盛装饰  您身边的装修专家!
地址:光彩四期烩街公寓6楼(光彩大舞台隔壁)
电话:13625565176   5200845
回复 支持 反对

使用道具 举报

您需要登录后才可以回帖 登录 | 注册

本版积分规则

联系合作|手机版|手机APP|Archiver|

GMT+8, 2025-12-16 02:33 Powered by Discuz! X3.4

安庆E网生活网站 © 2001-2013 Comsenz Inc. ( 皖ICP备05012696号 )

QQ

安庆瑞易文化 地址:华茂1958-C7栋 联系电话:0556-5306667 联系邮箱:17779721@qq.com 互联网违法和不良信息举报电话和邮箱:0556-5306667 17779721@qq.com

皖公网安备 34080002000101号

    
快速回复 返回顶部 返回列表