安庆E网

搜索
查看: 16920|回复: 0

[城事早知道] 新方案来了!安庆这家医院将新增568张床位

[复制链接]

1

收听

6

听众

8279

帖子

E网小编

注册时间
2014-10-14
精华
1068
发表于 2021-1-14 11:00:13 | 显示全部楼层 |阅读模式
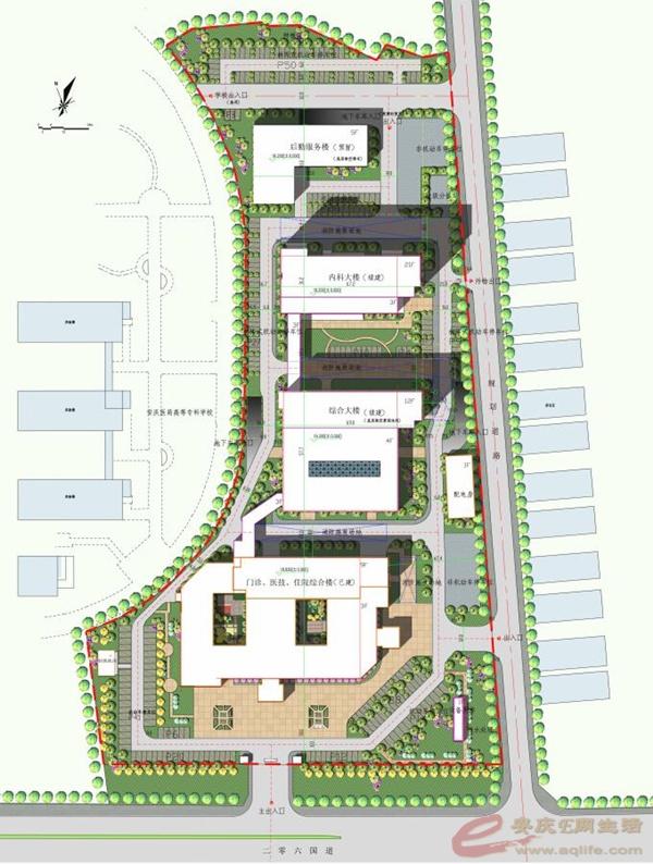
安庆市中医医院(安庆医药高等专科学校附属医院)位于206国道与巨石山路交叉口西北处。安庆市中医医院拟在已建工程的基础上,续建1栋21层住院楼、1栋12层的综合楼、附属用房及地下一层停车场,568张床位,总建筑面积6.59万㎡。

QQ截图20210114105354.jpg

拟修改方案总建筑面积10.86万㎡,容积率1.80,建筑密度27.7%,绿地率35.1%。

QQ截图20210114104835.jpg

QQ截图20210114105013.jpg

QQ截图20210114105034.jpg

该方案规划平面布局合理,配套功能完善,建筑立面简洁现代,交通组织顺畅。

安庆市中医医院(安庆医药高等专科学校附属医院)规划、建筑设计(修改)方案已上报市政府同意后,于1月11日正式审批,现予以批后公告。  

2021年1月11日

回复

使用道具 举报

您需要登录后才可以回帖 登录 | 注册

本版积分规则

联系合作|手机版|手机APP|Archiver|

GMT+8, 2025-12-17 08:45 Powered by Discuz! X3.4

安庆E网生活网站 © 2001-2013 Comsenz Inc. ( 皖ICP备05012696号 )

QQ

安庆瑞易文化 地址:华茂1958-C7栋 联系电话:0556-5306667 联系邮箱:17779721@qq.com 互联网违法和不良信息举报电话和邮箱:0556-5306667 17779721@qq.com

皖公网安备 34080002000101号

    
快速回复 返回顶部 返回列表