安庆E网

搜索
查看: 10678|回复: 24

[装修日记] 迎春三期 格格的复式新居--装修记录

  [复制链接]

0

收听

1

听众

111

帖子

E粉新星

注册时间
2020-9-22
精华
0
发表于 2021-8-2 10:07:55 | 显示全部楼层 |阅读模式
本帖最后由 颐和小格格 于 2021-8-2 15:12 编辑

         今天是8月2号,也是火把节又适合开工、装修。特意挑选的红火好日子,我也是不能免俗啊!今天开工了,一切顺利!小屋的装修正式开始!


建筑面积:160平米
装修公司:东盛
风格:现代
设计师:汪晶晶

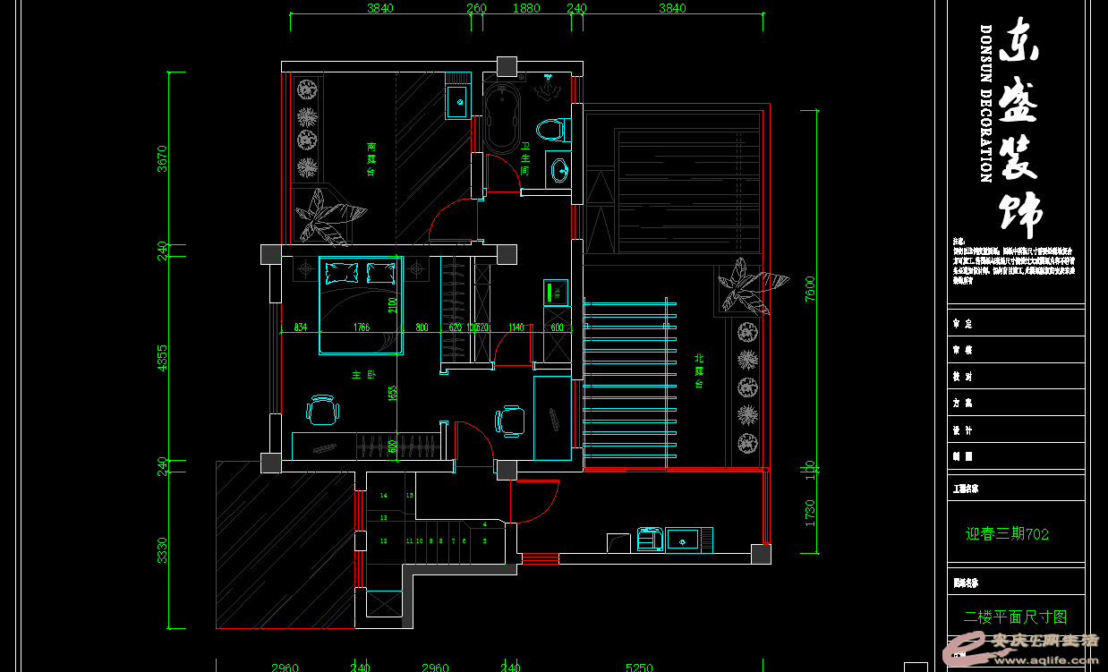
         由于老公前期没有仔细看过图纸,后来又进行了一轮图纸修改,最终图纸如下

我们思想过于跳跃,难为设计师了
mmexport1627869422497.png
mmexport1627869420188.png

评分

参与人数 1鲜花 +1 收起 理由
wjj11192226 + 1 E网因你而精彩

查看全部评分

回复

使用道具 举报

0

收听

1

听众

111

帖子

E粉新星

注册时间
2020-9-22
精华
0
 楼主| 发表于 2021-8-2 10:58:59 www.aqlife.com | 显示全部楼层
其实现场这么多墙很多都是多余的,拆改真的是浪费,费银子,光秃秃的多好,我想怎么改都可以
1627872956673275.jpeg
1627872957004385.jpeg
1627872973807606.jpeg
1627872974104598.jpeg
1627872997486157.jpeg
1627873109325688.jpeg
回复 支持 反对

使用道具 举报

0

收听

1

听众

111

帖子

E粉新星

注册时间
2020-9-22
精华
0
 楼主| 发表于 2021-8-5 10:32:14 www.aqlife.com | 显示全部楼层
连续拆墙和铲墙三天,改造内容多。现场收拾的很干净,木工和徐工开始给楼梯和后阳台现浇做基础了。估计下一步就是现浇了吧  
1628130592537297.jpeg
1628130732225286.jpeg
回复 支持 反对

使用道具 举报

0

收听

1

听众

111

帖子

E粉新星

注册时间
2020-9-22
精华
0
 楼主| 发表于 2021-8-9 09:33:15 www.aqlife.com | 显示全部楼层
楼梯制模雏形,能看到大概的结构了
1628472757301876.jpeg
1628472757463461.jpeg
1628472757595718.jpeg
1628472757713105.jpeg
1628472757845493.jpeg
回复 支持 反对

使用道具 举报

1

收听

9

听众

5117

帖子

E粉明星

注册时间
2009-11-24
精华
0

室内装饰设计QQ243160571

QQ
发表于 2021-8-10 15:19:26 | 显示全部楼层
东盛装饰  您身边的装修专家!
地址:光彩四期烩街公寓6楼(光彩大舞台隔壁)
电话:13625565176   5200845
回复

使用道具 举报

0

收听

1

听众

53

帖子

E粉新人

注册时间
2017-6-6
精华
0
发表于 2021-8-10 17:24:49 | 显示全部楼层
请问楼主阳台防水如何做的,有什么好办法一劳永逸,即保证不漏到下层,也不渗透到平层隔壁房间。
回复 支持 反对

使用道具 举报

1

收听

9

听众

5117

帖子

E粉明星

注册时间
2009-11-24
精华
0

室内装饰设计QQ243160571

QQ
发表于 2021-8-11 16:10:27 | 显示全部楼层
打到牛鬼蛇神 发表于 2021-8-10 17:24
请问楼主阳台防水如何做的,有什么好办法一劳永逸,即保证不漏到下层,也不渗透到平层隔壁房间。

你好,可以做防水的,有装修需要可以联系我们,我是东盛汪设计师,13625565176我手机也是微信号。
东盛装饰  您身边的装修专家!
地址:光彩四期烩街公寓6楼(光彩大舞台隔壁)
电话:13625565176   5200845
回复 支持 反对

使用道具 举报

0

收听

1

听众

111

帖子

E粉新星

注册时间
2020-9-22
精华
0
 楼主| 发表于 2021-8-14 09:22:21 www.aqlife.com | 显示全部楼层
为啥更新不了
回复 支持 反对

使用道具 举报

0

收听

1

听众

276

帖子

认证商家

注册时间
2016-2-24
精华
0
发表于 2021-8-17 09:41:14 | 显示全部楼层
楼主家可用集成灶啊?可以来我们美多比较比较
美多集成灶安庆专卖店地址:光彩二期五区7栋28号
电话:5015980      13905569197
安庆二店地址:南翔光彩家居博览中心南厅一层61号
电话:8882250      13905569197
回复 支持 反对

使用道具 举报

0

收听

1

听众

111

帖子

E粉新星

注册时间
2020-9-22
精华
0
 楼主| 发表于 2021-8-17 09:48:04 www.aqlife.com | 显示全部楼层
浇筑完成
1629164866508702.jpeg
1629164866695716.jpeg
1629164866820113.jpeg
1629164866942210.jpeg
162916486707887.jpeg
1629164867222592.jpeg
162916486736874.jpeg
回复 支持 反对

使用道具 举报

0

收听

1

听众

111

帖子

E粉新星

注册时间
2020-9-22
精华
0
 楼主| 发表于 2021-8-17 23:21:13 www.aqlife.com | 显示全部楼层
下班过去看了下,刚好汪监理浇过水,说楼梯可以踩了
回复 支持 反对

使用道具 举报

0

收听

1

听众

111

帖子

E粉新星

注册时间
2020-9-22
精华
0
 楼主| 发表于 2021-8-17 23:21:32 www.aqlife.com | 显示全部楼层
颐和小格格 发表于 2021-08-17 23:21
下班过去看了下,刚好汪监理浇过水,说楼梯可以踩了


162921369015956.jpeg
1629213690287387.jpeg
回复 支持 反对

使用道具 举报

0

收听

1

听众

111

帖子

E粉新星

注册时间
2020-9-22
精华
0
 楼主| 发表于 2021-8-25 17:11:04 | 显示全部楼层
      最近几天没啥更新,今天师傅们在处理阳台和露台的保温层,因为考虑做一点阳光顶能挡点雨水,顶楼风雨格外的大。因为楼梯还在养护阶段其它的活儿也不能做,不过瓦工估计也快来了,汪工讲等楼梯养护好以后墙面也就做好了,一切都在安排当中。


      下午带着娃看了下材料市场,打算把防盗门换掉,开发商配的门质量差,门里面都是空的,感觉就是一层铁皮,还是换成钢面的好点。市场上的门都不便宜,动辄四五千,不过没到下单不会还价,先看看再说。
回复 支持 反对

使用道具 举报

0

收听

1

听众

111

帖子

E粉新星

注册时间
2020-9-22
精华
0
 楼主| 发表于 2021-9-2 11:08:09 www.aqlife.com | 显示全部楼层
砌墙快结束了,已经在粉墙了
1630552076643898.jpeg
1630552076760483.jpeg
mmexport1630550748276.jpg
1630552076838604.jpeg
回复 支持 反对

使用道具 举报

0

收听

1

听众

122

帖子

E粉新星

注册时间
2020-3-10
精华
0
发表于 2021-9-3 15:57:02 | 显示全部楼层
东盛出品,必是精品,期待大片。
回复 支持 反对

使用道具 举报

0

收听

1

听众

276

帖子

认证商家

注册时间
2016-2-24
精华
0
发表于 2021-9-4 11:14:04 | 显示全部楼层
墙都砌好了,马上水电要定位了,橱柜和集成灶需要我们去定位
美多集成灶安庆专卖店地址:光彩二期五区7栋28号
电话:5015980      13905569197
安庆二店地址:南翔光彩家居博览中心南厅一层61号
电话:8882250      13905569197
回复 支持 反对

使用道具 举报

1

收听

9

听众

5117

帖子

E粉明星

注册时间
2009-11-24
精华
0

室内装饰设计QQ243160571

QQ
发表于 2021-9-4 14:37:41 | 显示全部楼层
善国 发表于 2021-9-3 15:57
东盛出品,必是精品,期待大片。

谢谢亲
东盛装饰  您身边的装修专家!
地址:光彩四期烩街公寓6楼(光彩大舞台隔壁)
电话:13625565176   5200845
回复 支持 反对

使用道具 举报

0

收听

1

听众

111

帖子

E粉新星

注册时间
2020-9-22
精华
0
 楼主| 发表于 2021-9-4 15:12:01 www.aqlife.com | 显示全部楼层
养护第一天,需要养护一周左右
1630739508965307.jpeg
1630739509097452.jpeg
163073950922725.jpeg
回复 支持 反对

使用道具 举报

0

收听

1

听众

111

帖子

E粉新星

注册时间
2020-9-22
精华
0
 楼主| 发表于 2021-9-5 09:48:49 www.aqlife.com | 显示全部楼层
养护期没啥事,今天约汪工看材料,把颜色确定下来,配色还挺关键,不能像以前那样按自己喜欢的随便装
回复 支持 反对

使用道具 举报

0

收听

1

听众

111

帖子

E粉新星

注册时间
2020-9-22
精华
0
 楼主| 发表于 2021-9-17 14:59:38 www.aqlife.com | 显示全部楼层
最近在做二楼北露台的鱼池基础,框架出来了,室内墙体养护的很好,门洞都是按超高门预留的,我觉得通风面和采光面更好,虽然我家不缺,但洋气啊
1631861884557742.jpeg
1631861884895771.jpeg
1631861885263205.jpeg
163186188577393.jpeg
1631861886288104.jpeg
1631861886728375.jpeg
回复 支持 反对

使用道具 举报

0

收听

1

听众

111

帖子

E粉新星

注册时间
2020-9-22
精华
0
 楼主| 发表于 2021-9-27 07:44:04 www.aqlife.com | 显示全部楼层
鱼池基础做好了
1632699828947898.jpeg
1632699829809258.jpeg
1632699830115360.jpeg
回复 支持 反对

使用道具 举报

0

收听

1

听众

111

帖子

E粉新星

注册时间
2020-9-22
精华
0
 楼主| 发表于 2021-10-11 14:46:50 | 显示全部楼层
最近在做南北露台花坛的基础,靠墙的部分都利用的是现浇方式,据说可以有效防止植物根系钻入墙体破坏建筑本体,当然后期还得用防钻膜再保护一遍可保万无一失了,还要做点屋檐挡雨和一部分阳光房,只有做好这些才可以做室内的细节水电了。过程艰辛漫长,好在施工质量很放心。
回复 支持 反对

使用道具 举报

0

收听

1

听众

111

帖子

E粉新星

注册时间
2020-9-22
精华
0
 楼主| 发表于 2021-10-11 14:54:14 | 显示全部楼层
通过几次选主材配色,还是考虑做全包了,把大件主材全部确定颜色型号后再把价格谈妥,其它的都交给汪设计师打理,我只用去验货就可以了。实在是没时间和商家对接,且汪设计师通过经验看材料后帮我砍了不少价,至少比我自己买便宜的多,等有时间了我再发点主材照片,最近太忙,更新的也慢。各位看官见谅
回复 支持 反对

使用道具 举报

0

收听

1

听众

111

帖子

E粉新星

注册时间
2020-9-22
精华
0
 楼主| 发表于 2021-10-13 07:12:30 www.aqlife.com | 显示全部楼层
都是花坛
1634080321944402.jpeg
1634080322256830.jpeg
1634080322521475.jpeg
回复 支持 反对

使用道具 举报

0

收听

1

听众

111

帖子

E粉新星

注册时间
2020-9-22
精华
0
 楼主| 发表于 2022-1-24 14:04:51 | 显示全部楼层
长时间没有更新了,因为开发商设计不合理,导致一二楼下雨就往家里漫水还有几处外墙渗水现象,这几个月来一直在周旋这个事情,导致装修暂停耽误几个月时间也只有年后继续施工了。幸亏是装修过程中发现这些事情,如果装修好再发现就晚了,感谢徐工的细心以及给出的施工方案。
回复 支持 反对

使用道具 举报

您需要登录后才可以回帖 登录 | 注册

本版积分规则

联系合作|手机版|手机APP|Archiver|

GMT+8, 2025-12-10 16:04 Powered by Discuz! X3.4

安庆E网生活网站 © 2001-2013 Comsenz Inc. ( 皖ICP备05012696号 )

QQ

安庆瑞易文化 地址:华茂1958-C7栋 联系电话:0556-5306667 联系邮箱:17779721@qq.com 互联网违法和不良信息举报电话和邮箱:0556-5306667 17779721@qq.com

皖公网安备 34080002000101号

    
快速回复 返回顶部 返回列表