安庆E网

搜索
查看: 24324|回复: 4

[城事早知道] 速看!安庆外国语学校国际幼儿园项目规划方案有变

[复制链接]

0

收听

1

听众

1万

帖子

资深E粉

注册时间
2015-10-15
精华
580
发表于 2021-9-29 14:46:21 | 显示全部楼层 |阅读模式
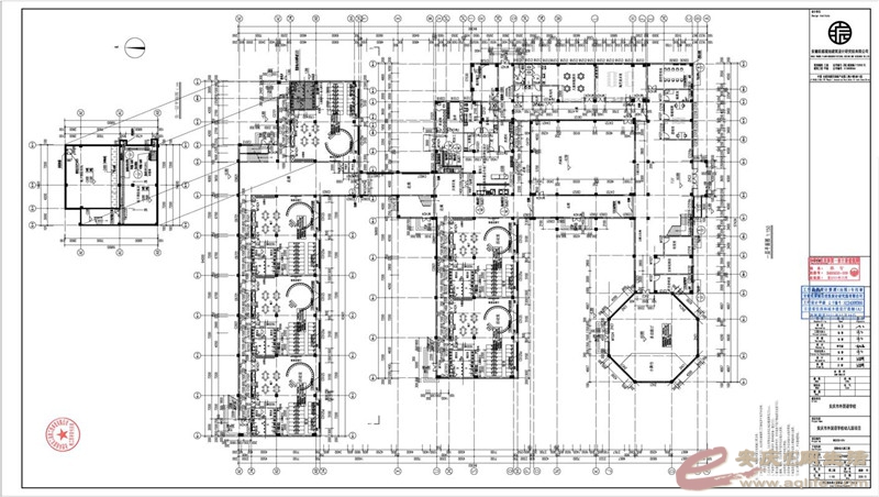
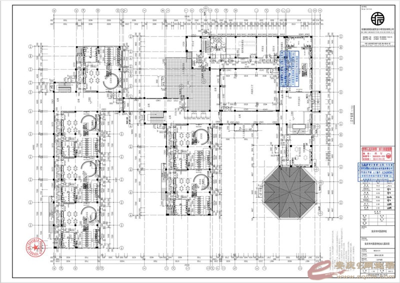
安庆外国语学校国际幼儿园项目位于安庆新区振风大道与潜江路交叉口东北角,规模为12个班,建设单位为安庆市外国语学校,该项目规划建筑设计方案于2020年11月18日审定。 因施工图审查局部疏散距离不足,需增设一部疏散楼梯;水专业复核用水量,泵房地下层高3.5米即可满足消防需求,建设单位申请方案调整,具体如下:

1、中间楼二层S至U轴交SB-1至SB-3轴区域至最近的疏散楼梯的直线距离不应大于20*1.25-2=23m,增设一部疏散楼梯。

2、幼儿园负一层(地下消防水池、泵房)层高4.5米变更为3.5 米,面积不变。

该调整方案于2021年9月26日经安庆市自然资源和规划局国土空间规划业务会2021年第二十次会议集中会审通过,现予以公示。

为充分尊重公众对规划的知情权和参与权,做到阳光规划和科学规划,我局依据《中华人民共和国城乡规划法》、《中华人民共和国行政许可法》及住建部《关于城乡规划公开公示的规定》等法律法规的要求,现将《安庆市外国语学校修建性详细规划修改暨国际幼儿园建筑设计方案调整》予以公示。
图片2.jpg
图片1.jpg
图片3.jpg
图片4.jpg
图片6.jpg
图片5.jpg
hulihutuyouhulihulu
回复

使用道具 举报

0

收听

3

听众

4958

帖子

E粉明星

注册时间
2011-3-9
精华
0
发表于 2021-9-30 09:19:50 | 显示全部楼层
国际幼儿园?一个没落的四线城市,哪有多少外国小朋友来入园?没必要称为国际幼儿园吧,有关部门是不是要查一查,是否涉嫌虚假广告?
回复 支持 反对

使用道具 举报

0

收听

1

听众

3083

帖子

E粉明星

注册时间
2012-9-19
精华
2
发表于 2021-9-30 16:55:33 | 显示全部楼层
听风2012 发表于 2021-9-30 09:19
国际幼儿园?一个没落的四线城市,哪有多少外国小朋友来入园?没必要称为国际幼儿园吧,有关部门是不是要查 ...

国际幼儿园,不是指有没有外国小朋友哦,一般是指双语教育的幼儿园哦
回复 支持 反对

使用道具 举报

0

收听

3

听众

4958

帖子

E粉明星

注册时间
2011-3-9
精华
0
发表于 2021-10-8 08:35:20 | 显示全部楼层
衣服起毛球 发表于 2021-9-30 16:55
国际幼儿园,不是指有没有外国小朋友哦,一般是指双语教育的幼儿园哦

哦。也没必要挂个国际幼儿园吧,纯粹是利用国人心态打的广告。双语就国际?
回复 支持 反对

使用道具 举报

0

收听

3

听众

4958

帖子

E粉明星

注册时间
2011-3-9
精华
0
发表于 2021-10-8 08:35:46 | 显示全部楼层
衣服起毛球 发表于 2021-9-30 16:55
国际幼儿园,不是指有没有外国小朋友哦,一般是指双语教育的幼儿园哦

是否违反广告法?
回复 支持 反对

使用道具 举报

您需要登录后才可以回帖 登录 | 注册

本版积分规则

联系合作|手机版|手机APP|Archiver|

GMT+8, 2026-1-31 13:04 Powered by Discuz! X3.4

安庆E网生活网站 © 2001-2013 Comsenz Inc. ( 皖ICP备05012696号 )

QQ

安庆瑞易文化 地址:华茂1958-C7栋 联系电话:0556-5306667 联系邮箱:17779721@qq.com 互联网违法和不良信息举报电话和邮箱:0556-5306667 17779721@qq.com

皖公网安备 34080002000101号

    
快速回复 返回顶部 返回列表