安庆E网

搜索
查看: 4521|回复: 1

[中介出售] 自有房屋出售

[复制链接]

1

收听

4

听众

685

帖子

E粉明星

注册时间
2010-11-4
精华
0
发表于 2022-4-29 17:00:12 | 显示全部楼层 |阅读模式
本帖最后由 云霞 于 2022-5-2 15:13 编辑

                                   自有房屋出售

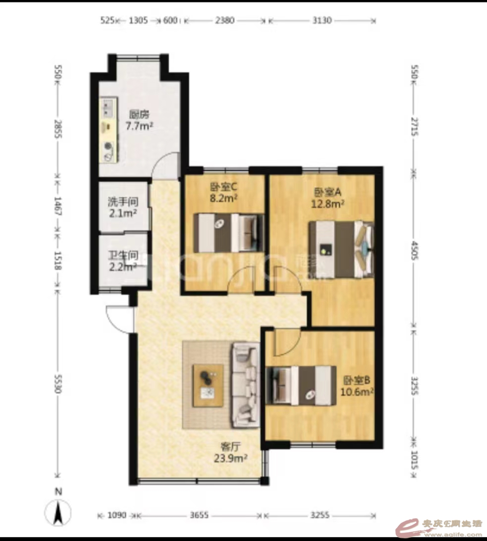
       现有石化菱北生活区住房一套,面积76.9平方米,三室一厅,厅通阳台,南北朝向,阳台朝南,没有任何楼栋遮挡,而且不沿街,环境很好。
       这套房子是2000年底建成,2001年初入住,在整个菱北小区里算是比较新的房子了。房子户型好,一家三口住有富余,因为当时是石化厂建造的房子,建筑质量很好,整个楼顶做有隔离层,顶楼从来不漏水,而且公摊面积小。阳光充足,阳台正对着的是两栋楼房的间隙,而且楼间距大,视野很开阔。虽然装修有些年头,但是我们维护的很好,有不少地方和东西最近两年还换新了。房子结构合理,居住很舒适。
        小区环境好,物业管理到位,小区安排井然有序。交通方便,生活便利,周围什么都有,平时没事可以去皖江公园散步,如果不是跟孩子去了外地居住,说实话,真有点舍不得离开那套房子。 如果有真心想买房子的,可以提前1天联系我看下房子。电话:15212942428
ce6c500ee53c6d385a6144fb26d7d77.jpg b1fa8056b896e39cf38043c0e683e5a.jpg 0277291ebd700feb36d9d3fd2049405.jpg f493d66d3e4110ab8b90245a48a4b86.jpg c15004f5baa874b9fd54e3fb8d857d5.jpg 13c866065eccba964cd6c5f1b391a83.jpg c011fa3621846eb35eab14d0861135d.jpg ac388182c628ee453621e47e021447f.jpg 1af6a3a02295a4dadd36c79098b20b6.jpg















回复

使用道具 举报

1

收听

4

听众

685

帖子

E粉明星

注册时间
2010-11-4
精华
0
 楼主| 发表于 2022-5-2 15:13:50 | 显示全部楼层
回复

使用道具 举报

您需要登录后才可以回帖 登录 | 注册

本版积分规则

联系合作|手机版|手机APP|Archiver|

GMT+8, 2025-12-10 17:01 Powered by Discuz! X3.4

安庆E网生活网站 © 2001-2013 Comsenz Inc. ( 皖ICP备05012696号 )

QQ

安庆瑞易文化 地址:华茂1958-C7栋 联系电话:0556-5306667 联系邮箱:17779721@qq.com 互联网违法和不良信息举报电话和邮箱:0556-5306667 17779721@qq.com

皖公网安备 34080002000101号

    
快速回复 返回顶部 返回列表