安庆E网

搜索
查看: 5280|回复: 0

[房屋出售] 集贤南路,三室双卫,80平只要32万

[复制链接]

0

收听

1

听众

2933

帖子

E粉明星

注册时间
2020-5-4
精华
0
发表于 2023-2-9 17:18:44 | 显示全部楼层 |阅读模式
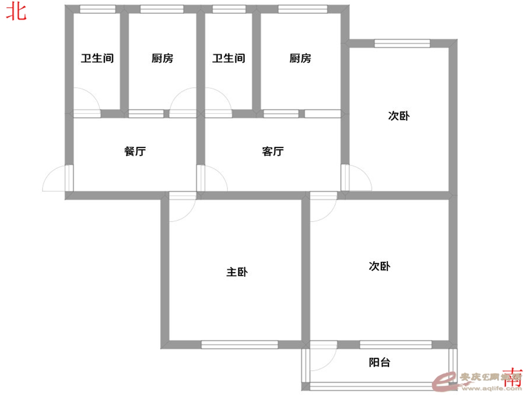
房子在集贤南路小区,三室的双卫双厨,户型正,装修很简单但是便宜呀,4楼诚心卖,看房随时15922350705
3efdd94d-dca4-4413-966f-716ebb795eb9_0.jpg
7ea31bc3-738d-47c0-b160-b52182bf6a48_0.jpg
37de2c9a-7e99-4235-8383-488555df324b_0.jpg
4769680d-1d78-4375-b3bb-033cefc30f24_0.jpg
a3d7cf1e-a538-4b4d-95c1-658d9f934d39_0.jpg
cb9a1e7e-64e2-41d4-9d12-ea5f4b3584d9_0.jpg
d09cff12-d4f4-4852-8c7d-e49fecc6549c_0.jpg
回复

使用道具 举报

您需要登录后才可以回帖 登录 | 注册

本版积分规则

联系合作|手机版|手机APP|Archiver|

GMT+8, 2025-12-18 10:02 Powered by Discuz! X3.4

安庆E网生活网站 © 2001-2013 Comsenz Inc. ( 皖ICP备05012696号 )

QQ

安庆瑞易文化 地址:华茂1958-C7栋 联系电话:0556-5306667 联系邮箱:17779721@qq.com 互联网违法和不良信息举报电话和邮箱:0556-5306667 17779721@qq.com

皖公网安备 34080002000101号

    
快速回复 返回顶部 返回列表